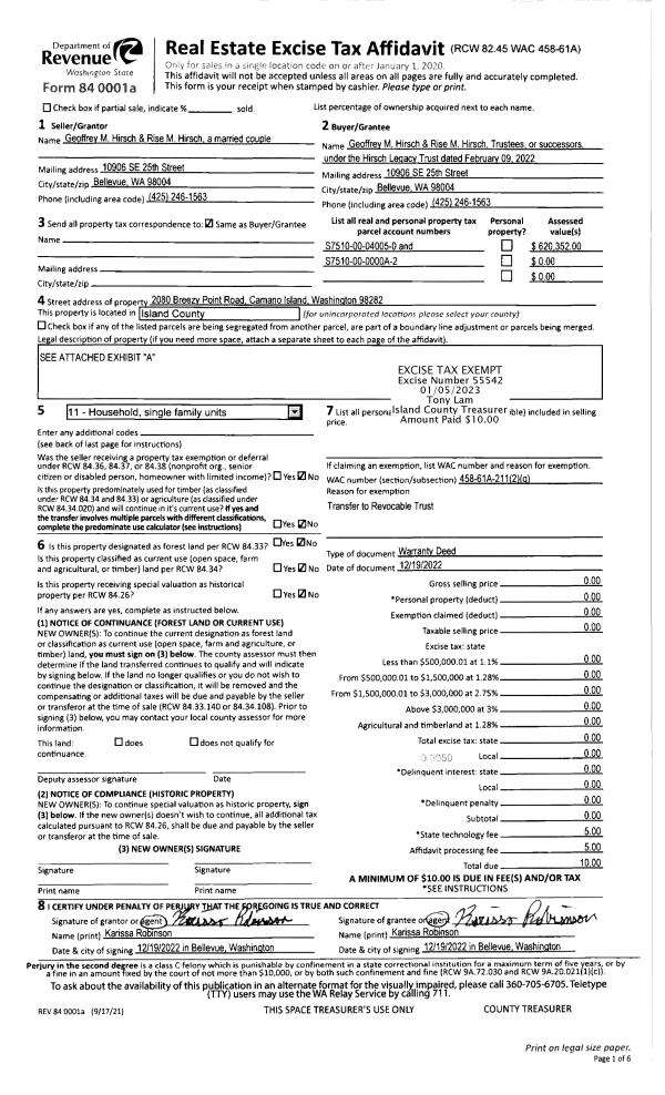
Property
Account |
| Property ID: | 140582 | Abbreviated Legal Description: | 24 - W/2 SW SE SE EX PT LY N OF RD EX RD TGW EZ |
| Geographic ID: | R32928-036-4000 | Agent Code: | |
| Type: | Real | | |
| Tax Area: | 712 - APPRAISER-S Whid Schl Dist, outside Langley, improved, greater than 1 acre | Land Use Code | 83 |
| Open Space: | Y | DFL | N |
| Historic Property: | N | Remodel Property: | N |
| Multi-Family Redevelopment: | N | | |
| Township: | 29 | Section: | 28 |
| Range: | R3 |
Location |
| Address: | 3500 QUADE RD CLINTON, WA 98236 | Mapsco: | |
| Neighborhood: | Cycle 4 | Map ID: | 825 |
| Neighborhood CD: | 4 |
Owner |
| Name: | DICKERSON, MARY E | Owner ID: | 266181 |
| Mailing Address: | 3500 QUADE RD CLINTON, WA 98236 | % Ownership: | 100.0000000000% |
| | | Exemptions: | |
Taxes and Assessment Details
Values
| (+) Improvement Homesite Value: | + | $0 | |
| (+) Improvement Non-Homesite Value: | + | $419,278 | |
| (+) Land Homesite Value: | + | $0 | |
| (+) Land Non-Homesite Value: | + | $260,000 | |
| (+) Curr Use (HS): | + | $0 | $0 |
| (+) Curr Use (NHS): | + | $110,000 | $2,944 |
| | | -------------------------- | |
| (=) Market Value: | = | $789,278 | |
| (–) Productivity Loss: | – | $107,056 | |
| | | -------------------------- | |
| (=) Subtotal: | = | $682,222 | |
| (+) Senior Appraised Value: | + | $0 | |
| (+) Non-Senior Appraised Value: | + | $682,222 | |
| | | -------------------------- | |
| (=) Total Appraised Value: | = | $682,222 | |
| (–) Senior Exemption Loss: | – | $0 | |
| (–) Exemption Loss: | – | $0 | |
| | | -------------------------- | |
| (=) Taxable Value: | = | $682,222 | |
Taxing Jurisdiction
| Owner: | DICKERSON, MARY E | | |
| % Ownership: | 100.0000000000% | | |
| Total Value: | $789,278 | | |
| Tax Area: | 712 - APPRAISER-S Whid Schl Dist, outside Langley, improved, greater than 1 acre |
| CF | Conservation Futures | 0.0316035091 | $682,222 | $682,222 | $21.56 | | |
| FIRE3 | Fire & Rescue Dist #3 S Whidbey GEN | 1.2004855531 | $682,222 | $682,222 | $819.00 | | |
| HOBOND | Hospital BOND | 0.1910887512 | $682,222 | $682,222 | $130.36 | | |
| HOGEN | Hospital GEN | 0.3902502903 | $682,222 | $682,222 | $266.24 | | |
| CE | County Current Expense | 0.3708482477 | $682,222 | $682,222 | $253.00 | | |
| CR | County Roads | 0.4584763726 | $682,222 | $682,222 | $312.78 | | |
| ISLANDEMS | Hospital GEN (EMS) | 0.5000000000 | $682,222 | $682,222 | $341.11 | | |
| LIB | Library Sno-Isle GEN | 0.3153421757 | $682,222 | $682,222 | $215.13 | | |
| PORTWHID | Port of S Whidbey GEN | 0.1094540357 | $682,222 | $682,222 | $74.67 | | |
| SCH206BOND | School 206 BOND | 0.3161759235 | $682,222 | $682,222 | $215.70 | | |
| SCH206MO | School 206 Enrichment | 0.4547169547 | $682,222 | $682,222 | $310.22 | | |
| ST | State School | 1.3035497053 | $682,222 | $682,222 | $889.31 | | |
| ST2 | State School Part 2 | 0.8169543533 | $682,222 | $682,222 | $557.34 | | |
| SWHIDPRBD | P & R S Whidbey BOND | 0.0152817568 | $682,222 | $682,222 | $10.43 | | |
| SWHIDPRBD2 | P & R S Whidbey BOND2 | 0.0138911264 | $682,222 | $682,222 | $9.48 | | |
| SWHIDPRMT | P & R S Whidbey GEN | 0.2053334452 | $682,222 | $682,222 | $140.08 | | |
| | Total Tax Rate: | 6.6934522006 | | | | | |
| | | | | Taxes w/Current Exemptions: | $4,566.41 | | |
| | | | | Taxes w/o Exemptions: | $4,566.41 | | |
Improvement / Building
| Improvement #1: | RESIDENTIAL | State Code: | Y | 3045.0 sqft | Value: | $419,278 |
| Bathrooms: | 2.5 | Bedrooms: | 2 | | Ceiling: | DRYWALL PAINTED | Cooling: | HEAT PUMP/CONV/V | | Exterior Wall/Cover: | PLY/HARDBOARD T-111 | Floor Covering: | HARDWOOD/CARP 80-20 | | Floor Structure: | WOOD W/SUBFLOOR | Foundation: | CONCRETE | | Interior Finish: | DRYWALL PAINT | Plumbing Fixture Cnt: | 11 | | Roof Slope: | 8" IN 12" | Roof Structure/Cover: | CJ CONCRETE TILE |
|
| | Type | Description | Class CD | Sub Class CD | Year Built | Area |
| | BAS | BASE/MAIN FLOOR | 3 | 0 | 1988 | 1678.0 |
| | OP4 | OPEN PORCH W/CEILING-ROOF | 3 | 0 | 1988 | 107.1 |
| | OP4 | OPEN PORCH W/CEILING-ROOF | 3 | 0 | 1988 | 80.0 |
| | AGR | ATTACHED GARAGE | 3 | 0 | 1988 | 696.0 |
| | BIG | BUILT IN GARAGE | 3 | 0 | 1988 | 336.0 |
| | UPS | UPPER STORY | 3 | 0 | 1988 | 1067.0 |
| | LOF | LOFT | 3 | 0 | 1988 | 300.0 |
| | UTY | STORAGE/UTILITY | 3 | 0 | 1988 | 1750.0 |
Sketch
Property Image
Land
| 1 | 83 | OPEN AGRICULTURE | 4.0000 | 174240.00 | 0.00 | 0.00 | 1.00 | $110,000 | $2,944 |
| 2 | HS | HOMESITE | 1.0000 | 43560.00 | 0.00 | 0.00 | 1.00 | $260,000 | $0 |
Roll Value History
| 2026 | N/A | N/A | N/A | N/A | N/A |
| 2025 | $419,278 | $370,000 | $2,944 | $682,222 | $682,222 |
| 2024 | $424,812 | $350,000 | $2,944 | $677,756 | $677,756 |
| 2023 | $430,343 | $330,000 | $2,944 | $499,287 | $499,287 |
| 2022 | $395,501 | $280,000 | $2,944 | $454,445 | $454,445 |
| 2021 | $349,386 | $230,000 | $2,944 | $398,330 | $398,330 |
| 2020 | $337,139 | $190,000 | $2,944 | $378,083 | $378,083 |
| 2019 | $275,894 | $250,000 | $2,944 | $328,838 | $328,838 |
| 2018 | $276,744 | $210,000 | $2,944 | $321,688 | $321,688 |
| 2017 | $278,440 | $165,000 | $2,944 | $314,384 | $314,384 |
| 2016 | $281,840 | $165,000 | $2,944 | $317,784 | $317,784 |
| 2015 | $274,953 | $135,000 | $2,944 | $304,897 | $304,897 |
| 2014 | $283,594 | $135,000 | $2,944 | $313,538 | $313,538 |
| 2013 | $0 | $91,800 | $2,944 | $2,944 | $2,944 |
| 2012 | $0 | $91,800 | $2,944 | $2,944 | $2,944 |
| 2011 | $0 | $108,000 | $2,944 | $2,944 | $2,944 |
| 2010 | $0 | $108,000 | $2,944 | $2,944 | $2,944 |
| 2009 | $0 | $120,000 | $2,944 | $2,944 | $2,944 |
| 2008 | $0 | $52,000 | $2,944 | $2,944 | $2,944 |
| 2007 | $0 | $160,000 | $2,944 | $2,944 | $2,944 |
Deed and Sales History
| 1 | 05/27/2014 | DECREE | Divorce Decree/Legal Separation | DICKERSON, PAUL W | DICKERSON, MARY E | | | $0.00 | 15435 | 4360040 |
| 2 | 04/10/2001 | WD | Warranty Deed | SPANGLER, DUANE | DICKERSON, PAUL W | | | $304,000.00 | 11220 | 20029651 |
| 3 | 07/01/1978 | OTHER | Other - Misc. Documents | Unknown | SPANGLER, DUANE | | | $0.00 | 83258 | 0 |
Payout Agreement
| No payout information available.. |