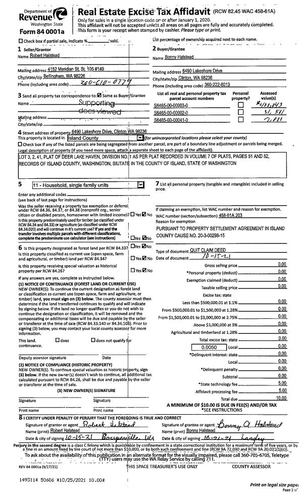
Property
Account |
| Property ID: | 140608 | Abbreviated Legal Description: | 16 - IN SE SW: BG SWCR SD SUBD E ALG SLN 835' N TP 360'S OF SLN RD W20' N TO CLN RD SWLY ALG CLN TO SLN SD SUBD TPB EX RD & EX PT, IF ANY, LY WITHIN E485' SD SUBD |
| Geographic ID: | R32928-039-1820 | Agent Code: | |
| Type: | Real | | |
| Tax Area: | 712 - APPRAISER-S Whid Schl Dist, outside Langley, improved, greater than 1 acre | Land Use Code | 11 |
| Open Space: | N | DFL | N |
| Historic Property: | N | Remodel Property: | N |
| Multi-Family Redevelopment: | N | | |
| Township: | 29 | Section: | 28 |
| Range: | R3 |
Location |
| Address: | 6759 MAXWELTON RD CLINTON, WA 98236 | Mapsco: | |
| Neighborhood: | Cycle 4 | Map ID: | 824 |
| Neighborhood CD: | 4 |
Owner |
| Name: | GRAVES, CORY ELLIOTT | Owner ID: | 299384 |
| Mailing Address: | KATRINE ANNE GORHAM 5477 WILKINSON RD LANGLEY, WA 98260 | % Ownership: | 100.0000000000% |
| | | Exemptions: | |
Taxes and Assessment Details
Values
| (+) Improvement Homesite Value: | + | $0 | |
| (+) Improvement Non-Homesite Value: | + | $349,191 | |
| (+) Land Homesite Value: | + | $0 | |
| (+) Land Non-Homesite Value: | + | $370,000 | |
| (+) Curr Use (HS): | + | $0 | $0 |
| (+) Curr Use (NHS): | + | $0 | $0 |
| | | -------------------------- | |
| (=) Market Value: | = | $719,191 | |
| (–) Productivity Loss: | – | $0 | |
| | | -------------------------- | |
| (=) Subtotal: | = | $719,191 | |
| (+) Senior Appraised Value: | + | $0 | |
| (+) Non-Senior Appraised Value: | + | $719,191 | |
| | | -------------------------- | |
| (=) Total Appraised Value: | = | $719,191 | |
| (–) Senior Exemption Loss: | – | $0 | |
| (–) Exemption Loss: | – | $0 | |
| | | -------------------------- | |
| (=) Taxable Value: | = | $719,191 | |
Taxing Jurisdiction
| Owner: | GRAVES, CORY ELLIOTT | | |
| % Ownership: | 100.0000000000% | | |
| Total Value: | $719,191 | | |
| Tax Area: | 712 - APPRAISER-S Whid Schl Dist, outside Langley, improved, greater than 1 acre |
| CF | Conservation Futures | 0.0316035091 | $719,191 | $719,191 | $22.73 | | |
| FIRE3 | Fire & Rescue Dist #3 S Whidbey GEN | 1.2004855531 | $719,191 | $719,191 | $863.38 | | |
| HOBOND | Hospital BOND | 0.1910887512 | $719,191 | $719,191 | $137.43 | | |
| HOGEN | Hospital GEN | 0.3902502903 | $719,191 | $719,191 | $280.66 | | |
| CE | County Current Expense | 0.3708482477 | $719,191 | $719,191 | $266.71 | | |
| CR | County Roads | 0.4584763726 | $719,191 | $719,191 | $329.73 | | |
| ISLANDEMS | Hospital GEN (EMS) | 0.5000000000 | $719,191 | $719,191 | $359.60 | | |
| LIB | Library Sno-Isle GEN | 0.3153421757 | $719,191 | $719,191 | $226.79 | | |
| PORTWHID | Port of S Whidbey GEN | 0.1094540357 | $719,191 | $719,191 | $78.72 | | |
| SCH206BOND | School 206 BOND | 0.3161759235 | $719,191 | $719,191 | $227.39 | | |
| SCH206MO | School 206 Enrichment | 0.4547169547 | $719,191 | $719,191 | $327.03 | | |
| ST | State School | 1.3035497053 | $719,191 | $719,191 | $937.50 | | |
| ST2 | State School Part 2 | 0.8169543533 | $719,191 | $719,191 | $587.55 | | |
| SWHIDPRBD | P & R S Whidbey BOND | 0.0152817568 | $719,191 | $719,191 | $10.99 | | |
| SWHIDPRBD2 | P & R S Whidbey BOND2 | 0.0138911264 | $719,191 | $719,191 | $9.99 | | |
| SWHIDPRMT | P & R S Whidbey GEN | 0.2053334452 | $719,191 | $719,191 | $147.67 | | |
| | Total Tax Rate: | 6.6934522006 | | | | | |
| | | | | Taxes w/Current Exemptions: | $4,813.87 | | |
| | | | | Taxes w/o Exemptions: | $4,813.87 | | |
Improvement / Building
| Improvement #1: | RESIDENTIAL | State Code: | Y | 948.0 sqft | Value: | $349,191 |
| Bathrooms: | 1 | Bedrooms: | 1 | | Ceiling: | DRYWALL PAINTED | Cooling: | HEAT PUMP/CONV/V | | Exterior Wall/Cover: | VINYL | Floor Covering: | VINYL 100% | | Floor Structure: | WOOD W/SUBFLOOR | Foundation: | SLAB | | Interior Finish: | DRYWALL PAINT | Plumbing Fixture Cnt: | 7 | | Roof Slope: | 6" IN 12" | Roof Structure/Cover: | CJ ALUMINIUM HEAVY |
|
| | Type | Description | Class CD | Sub Class CD | Year Built | Area |
| | BAS | BASE/MAIN FLOOR | 3 | 0 | 2024 | 948.0 |
| | BIG | BUILT IN GARAGE | 3 | 0 | 2024 | 885.0 |
| | ATU | ATTIC UNFINISHED | 3 | 0 | 2024 | 492.0 |
| | CPD | OPEN CARPORT DIRT FLOOR | 3 | 0 | 2024 | 576.0 |
| | CPD | OPEN CARPORT DIRT FLOOR | 3 | 0 | 2024 | 576.0 |
| | BAW | BALCONY WOOD RAIL | 3 | 0 | 2024 | 132.0 |
| | OP4 | OPEN PORCH W/CEILING-ROOF | 3 | 0 | 2024 | 240.0 |
| | UTY | STORAGE/UTILITY | 3 | 0 | 2024 | 315.0 |
| | oPOL | POLE BARN | 3 | 0 | 2025 | 1584.0 |
Sketch
| No sketches available for this property. |
Property Image
Land
| 1 | 32 | AC (03.01-09.99) | 5.0000 | 0.00 | 0.00 | 0.00 | 1.00 | $370,000 | $0 |
Roll Value History
| 2026 | N/A | N/A | N/A | N/A | N/A |
| 2025 | $349,191 | $370,000 | $0 | $719,191 | $719,191 |
| 2024 | $328,215 | $350,000 | $0 | $678,215 | $678,215 |
| 2023 | $330,861 | $330,000 | $0 | $660,861 | $660,861 |
| 2022 | $301,988 | $280,000 | $0 | $581,988 | $581,988 |
| 2021 | $264,693 | $230,000 | $0 | $494,693 | $494,693 |
| 2020 | $257,249 | $190,000 | $0 | $447,249 | $447,249 |
| 2019 | $186,749 | $250,000 | $0 | $436,749 | $436,749 |
| 2018 | $176,071 | $210,000 | $0 | $386,071 | $386,071 |
| 2017 | $138,084 | $130,000 | $0 | $268,084 | $268,084 |
| 2016 | $1,000 | $120,230 | $0 | $121,230 | $121,230 |
| 2015 | $1,000 | $120,230 | $0 | $121,230 | $121,230 |
| 2014 | $6,142 | $163,080 | $0 | $169,222 | $169,222 |
| 2013 | $6,142 | $163,080 | $0 | $169,222 | $169,222 |
| 2012 | $6,142 | $163,080 | $0 | $169,222 | $169,222 |
| 2011 | $6,142 | $163,080 | $0 | $169,222 | $169,222 |
| 2010 | $6,142 | $163,080 | $0 | $169,222 | $169,222 |
| 2009 | $6,184 | $223,080 | $0 | $229,264 | $229,264 |
| 2008 | $6,228 | $218,080 | $0 | $224,308 | $224,308 |
| 2007 | $6,270 | $218,080 | $0 | $224,350 | $224,350 |
Deed and Sales History
| 1 | 05/13/2021 | WD | Warranty Deed | EICKHOFF, SHARON M | GRAVES, CORY ELLIOTT | | | $580,000.00 | 48260 | 4519460 |
| 2 | 02/03/2020 | QCD | Quit Claim Deed | SIMMONS, GORDON | EICKHOFF, SHARON M | | | $0.00 | 43475 | 4489482 |
| 3 | 02/03/2020 | QCD | Quit Claim Deed | SIMMONS, ESTATE OF SHIRLEY A | SIMMONS, GORDON | | | $0.00 | 42149 | 4481562 |
| 4 | 11/06/2002 | BLA | DNU - Boundary Line Adjustment | SIMMONS, GORDON P | SIMMONS, GORDON | | | $0.00 | 69600 | 20035262 |
| 5 | 04/01/1981 | OTHER | Other - Misc. Documents | SIMMONS, GORDON P | SIMMONS, GORDON P | | | $15,000.00 | 11006 | 0 |
| 6 | 03/01/1981 | EXECUTORD | Executor Deed | STERNER, OLEVIA A | SIMMONS, GORDON P | | | $45,000.00 | 11007 | 381442 |
| 7 | 01/01/1900 | OTHER | Other - Misc. Documents | STERNER, OLEVIA C | STERNER, OLEVIA A | | | $0.00 | 0 | 0 |
| 8 | 01/01/1900 | OTHER | Other - Misc. Documents | Unknown | STERNER, OLEVIA C | | | $0.00 | 0 | 0 |
Payout Agreement
| No payout information available.. |