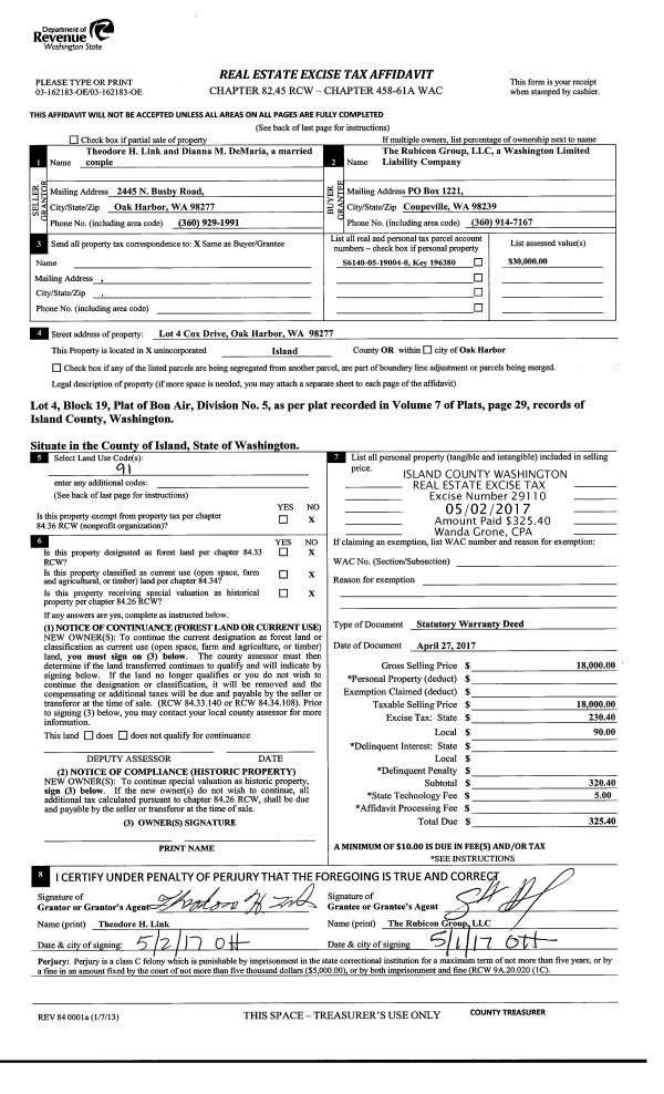
Property
Account |
| Property ID: | 140859 | Abbreviated Legal Description: | 39 - N/2 S/2 NE SE W OF RD & S60' OF S/2 N/2 NE SE W OF RD |
| Geographic ID: | R32928-203-3980 | Agent Code: | |
| Type: | Real | | |
| Tax Area: | 710 - APPRAISER-S Whid Schl Dist, outside Langley, improved & 1 acre or less | Land Use Code | 11 |
| Open Space: | N | DFL | N |
| Historic Property: | N | Remodel Property: | N |
| Multi-Family Redevelopment: | N | | |
| Township: | 29 | Section: | 28 |
| Range: | R3 |
Location |
| Address: | 6650 MAXWELTON RD CLINTON, WA 98236 | Mapsco: | |
| Neighborhood: | Cycle 4 | Map ID: | 825 |
| Neighborhood CD: | 4 |
Owner |
| Name: | JOHNSON JR, JAMES DAVID | Owner ID: | 308888 |
| Mailing Address: | 3626 S STARLAKE RD AUBURN, WA 98001 | % Ownership: | 100.0000000000% |
| | | Exemptions: | |
Taxes and Assessment Details
Values
| (+) Improvement Homesite Value: | + | $0 | |
| (+) Improvement Non-Homesite Value: | + | $10,360 | |
| (+) Land Homesite Value: | + | $0 | |
| (+) Land Non-Homesite Value: | + | $90,000 | |
| (+) Curr Use (HS): | + | $0 | $0 |
| (+) Curr Use (NHS): | + | $0 | $0 |
| | | -------------------------- | |
| (=) Market Value: | = | $100,360 | |
| (–) Productivity Loss: | – | $0 | |
| | | -------------------------- | |
| (=) Subtotal: | = | $100,360 | |
| (+) Senior Appraised Value: | + | $0 | |
| (+) Non-Senior Appraised Value: | + | $100,360 | |
| | | -------------------------- | |
| (=) Total Appraised Value: | = | $100,360 | |
| (–) Senior Exemption Loss: | – | $0 | |
| (–) Exemption Loss: | – | $0 | |
| | | -------------------------- | |
| (=) Taxable Value: | = | $100,360 | |
Taxing Jurisdiction
| Owner: | JOHNSON JR, JAMES DAVID | | |
| % Ownership: | 100.0000000000% | | |
| Total Value: | $100,360 | | |
| Tax Area: | 710 - APPRAISER-S Whid Schl Dist, outside Langley, improved & 1 acre or less |
| CF | Conservation Futures | 0.0316035091 | $100,360 | $100,360 | $3.17 | | |
| FIRE3 | Fire & Rescue Dist #3 S Whidbey GEN | 1.2004855531 | $100,360 | $100,360 | $120.48 | | |
| HOBOND | Hospital BOND | 0.1910887512 | $100,360 | $100,360 | $19.18 | | |
| HOGEN | Hospital GEN | 0.3902502903 | $100,360 | $100,360 | $39.17 | | |
| CE | County Current Expense | 0.3708482477 | $100,360 | $100,360 | $37.22 | | |
| CR | County Roads | 0.4584763726 | $100,360 | $100,360 | $46.01 | | |
| ISLANDEMS | Hospital GEN (EMS) | 0.5000000000 | $100,360 | $100,360 | $50.18 | | |
| LIB | Library Sno-Isle GEN | 0.3153421757 | $100,360 | $100,360 | $31.65 | | |
| PORTWHID | Port of S Whidbey GEN | 0.1094540357 | $100,360 | $100,360 | $10.98 | | |
| SCH206BOND | School 206 BOND | 0.3161759235 | $100,360 | $100,360 | $31.73 | | |
| SCH206MO | School 206 Enrichment | 0.4547169547 | $100,360 | $100,360 | $45.64 | | |
| ST | State School | 1.3035497053 | $100,360 | $100,360 | $130.82 | | |
| ST2 | State School Part 2 | 0.8169543533 | $100,360 | $100,360 | $81.99 | | |
| SWHIDPRBD | P & R S Whidbey BOND | 0.0152817568 | $100,360 | $100,360 | $1.53 | | |
| SWHIDPRBD2 | P & R S Whidbey BOND2 | 0.0138911264 | $100,360 | $100,360 | $1.39 | | |
| SWHIDPRMT | P & R S Whidbey GEN | 0.2053334452 | $100,360 | $100,360 | $20.61 | | |
| | Total Tax Rate: | 6.6934522006 | | | | | |
| | | | | Taxes w/Current Exemptions: | $671.75 | | |
| | | | | Taxes w/o Exemptions: | $671.75 | | |
Improvement / Building
| Improvement #1: | RESIDENTIAL | State Code: | Y | 504.0 sqft | Value: | $6,360 |
| Bathrooms: | 1 | Bedrooms: | 0 | | Ceiling: | (NONE) | Exterior Wall/Cover: | PLY/HARDBOARD T-111 | | Floor Covering: | (NONE) | Floor Structure: | WOOD W/SUBFLOOR | | Foundation: | CONCRETE | Heating: | (NONE) | | Interior Finish: | (NONE) | Plumbing Fixture Cnt: | 5 | | Roof Slope: | 6" IN 12" | Roof Structure/Cover: | CJ ASPHALT |
|
| | Type | Description | Class CD | Sub Class CD | Year Built | Area |
| | BAS | BASE/MAIN FLOOR | 1 | 0 | 1947 | 504.0 |
| | UB8 | BASEMENT UNFINISHED 8" | 1 | 0 | 1947 | 504.0 |
| | ATU | ATTIC UNFINISHED | 1 | 0 | 1947 | 144.0 |
| | UTY | STORAGE/UTILITY | 1 | 0 | 1947 | 660.5 |
| Improvement #2: | RESIDENTIAL | State Code: | Y | 0.0 sqft | Value: | $4,000 |
Sketch
Property Image
Land
| 1 | 15 | SQ (12001-21780) | 0.0000 | 0.00 | 0.00 | 0.00 | 1.00 | $90,000 | $0 |
Roll Value History
| 2026 | N/A | N/A | N/A | N/A | N/A |
| 2025 | $10,360 | $90,000 | $0 | $100,360 | $100,360 |
| 2024 | $6,360 | $80,000 | $0 | $86,360 | $86,360 |
| 2023 | $5,067 | $70,000 | $0 | $75,067 | $75,067 |
| 2022 | $4,587 | $70,000 | $0 | $74,587 | $74,587 |
| 2021 | $3,990 | $60,000 | $0 | $63,990 | $63,990 |
| 2020 | $6,666 | $60,000 | $0 | $66,666 | $66,666 |
| 2019 | $4,661 | $70,000 | $0 | $74,661 | $74,661 |
| 2018 | $4,661 | $70,000 | $0 | $74,661 | $74,661 |
| 2017 | $4,661 | $80,000 | $0 | $84,661 | $84,661 |
| 2016 | $4,661 | $80,000 | $0 | $84,661 | $84,661 |
| 2015 | $4,816 | $55,000 | $0 | $59,816 | $59,816 |
| 2014 | $9,943 | $119,000 | $0 | $128,943 | $128,943 |
| 2013 | $10,254 | $119,000 | $0 | $129,254 | $129,254 |
| 2012 | $10,565 | $119,000 | $0 | $129,565 | $129,565 |
| 2011 | $10,876 | $140,000 | $0 | $150,876 | $150,876 |
| 2010 | $9,850 | $140,000 | $0 | $149,850 | $149,850 |
| 2009 | $10,135 | $130,000 | $0 | $140,135 | $140,135 |
| 2008 | $10,135 | $109,000 | $0 | $119,135 | $119,135 |
| 2007 | $10,135 | $109,000 | $0 | $119,135 | $119,135 |
Deed and Sales History
| 1 | 06/05/2023 | WD | Warranty Deed | BLAKEY, VICKIE L | JOHNSON JR, JAMES DAVID | | | $185,000.00 | 56930 | 4560732 |
| 2 | 10/12/2022 | QCD | Quit Claim Deed | BLAKEY, VICKIE L | BALLARDO, MARTIN H | | | $0.00 | 54836 | 4552486 |
| 3 | 03/04/2021 | WD | Warranty Deed | GARDNER, KRISTEN CROWDER | BLAKEY, VICKIE L | | | $80,000.00 | 47215 | 4512779 |
| 4 | 03/22/2017 | EZ | Easement | GARDNER, KRISTEN CROWDER | GARDNER, KRISTEN CROWDER | | | $4,724.00 | 29013 | 4421369 |
| 5 | 06/29/2009 | QCD | Quit Claim Deed | CROWDER, JEFFERY M | GARDNER, KRISTEN CROWDER | | | $28,759.00 | 91480 | 4255260 |
| 6 | 10/01/1987 | REC | Real Estate Contract | VAN, HOLLEBECK, K | CROWDER, JEFFERY M | | | $16,000.00 | 73517 | 87015338 |
| 7 | 12/01/1979 | EXECUTORD | Executor Deed | VAN, HOLLEBEKE, K | VAN, HOLLEBECK, K | | | $15,000.00 | 96 | 363804 |
| 8 | 12/01/1979 | EXECUTORD | Executor Deed | SMITH, DOUGLAS C | VAN, HOLLEBEKE, K | | | $15,000.00 | 96 | 363804 |
| 9 | 01/01/1900 | OTHER | Other - Misc. Documents | Unknown | SMITH, DOUGLAS C | | | $0.00 | 0 | 0 |
Payout Agreement
| No payout information available.. |