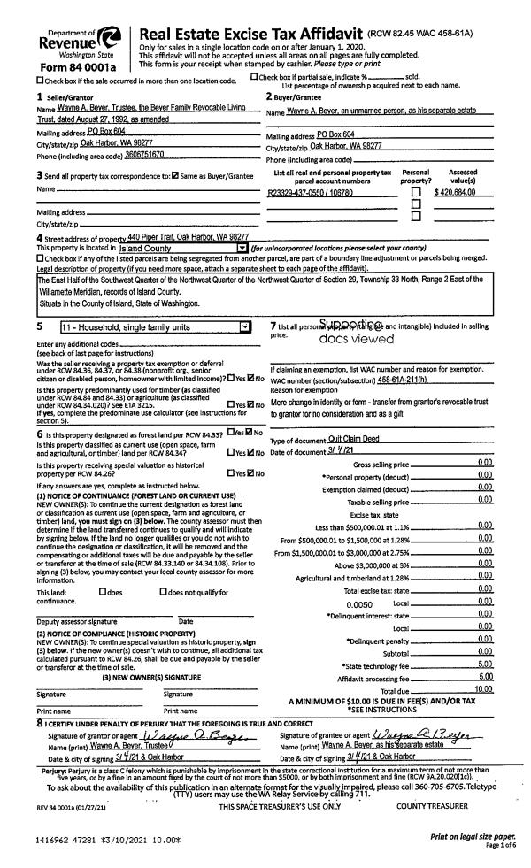
Property
Account |
| Property ID: | 141064 | Abbreviated Legal Description: | 56 - N/2 SE SW NE & N/2 SW SE NE LY WLY OF CLN MAXWELTON CREEK INCL 1/12 INT IN WELL & WELL SITE & SUBJ TO EZ |
| Geographic ID: | R32928-325-3570 | Agent Code: | |
| Type: | Real | | |
| Tax Area: | 712 - APPRAISER-S Whid Schl Dist, outside Langley, improved, greater than 1 acre | Land Use Code | 11 |
| Open Space: | N | DFL | N |
| Historic Property: | N | Remodel Property: | N |
| Multi-Family Redevelopment: | N | | |
| Township: | 29 | Section: | 28 |
| Range: | R3 |
Location |
| Address: | 3498 DAISY LN CLINTON, WA 98236 | Mapsco: | |
| Neighborhood: | Cycle 4 | Map ID: | 827 |
| Neighborhood CD: | 4 |
Owner |
| Name: | STREITLER III, JEAN | Owner ID: | 97681 |
| Mailing Address: | CAROLYN RAE STREITLER 3498 DAISY LN CLINTON, WA 98236-8640 | % Ownership: | 100.0000000000% |
| | | Exemptions: | |
Taxes and Assessment Details
Values
| (+) Improvement Homesite Value: | + | $0 | |
| (+) Improvement Non-Homesite Value: | + | $461,214 | |
| (+) Land Homesite Value: | + | $0 | |
| (+) Land Non-Homesite Value: | + | $370,000 | |
| (+) Curr Use (HS): | + | $0 | $0 |
| (+) Curr Use (NHS): | + | $0 | $0 |
| | | -------------------------- | |
| (=) Market Value: | = | $831,214 | |
| (–) Productivity Loss: | – | $0 | |
| | | -------------------------- | |
| (=) Subtotal: | = | $831,214 | |
| (+) Senior Appraised Value: | + | $0 | |
| (+) Non-Senior Appraised Value: | + | $831,214 | |
| | | -------------------------- | |
| (=) Total Appraised Value: | = | $831,214 | |
| (–) Senior Exemption Loss: | – | $0 | |
| (–) Exemption Loss: | – | $0 | |
| | | -------------------------- | |
| (=) Taxable Value: | = | $831,214 | |
Taxing Jurisdiction
| Owner: | STREITLER III, JEAN | | |
| % Ownership: | 100.0000000000% | | |
| Total Value: | $831,214 | | |
| Tax Area: | 712 - APPRAISER-S Whid Schl Dist, outside Langley, improved, greater than 1 acre |
| CF | Conservation Futures | 0.0316035091 | $831,214 | $831,214 | $26.27 | | |
| FIRE3 | Fire & Rescue Dist #3 S Whidbey GEN | 1.2004855531 | $831,214 | $831,214 | $997.86 | | |
| HOBOND | Hospital BOND | 0.1910887512 | $831,214 | $831,214 | $158.84 | | |
| HOGEN | Hospital GEN | 0.3902502903 | $831,214 | $831,214 | $324.38 | | |
| CE | County Current Expense | 0.3708482477 | $831,214 | $831,214 | $308.25 | | |
| CR | County Roads | 0.4584763726 | $831,214 | $831,214 | $381.09 | | |
| ISLANDEMS | Hospital GEN (EMS) | 0.5000000000 | $831,214 | $831,214 | $415.61 | | |
| LIB | Library Sno-Isle GEN | 0.3153421757 | $831,214 | $831,214 | $262.12 | | |
| PORTWHID | Port of S Whidbey GEN | 0.1094540357 | $831,214 | $831,214 | $90.98 | | |
| SCH206BOND | School 206 BOND | 0.3161759235 | $831,214 | $831,214 | $262.81 | | |
| SCH206MO | School 206 Enrichment | 0.4547169547 | $831,214 | $831,214 | $377.97 | | |
| ST | State School | 1.3035497053 | $831,214 | $831,214 | $1,083.53 | | |
| ST2 | State School Part 2 | 0.8169543533 | $831,214 | $831,214 | $679.06 | | |
| SWHIDPRBD | P & R S Whidbey BOND | 0.0152817568 | $831,214 | $831,214 | $12.70 | | |
| SWHIDPRBD2 | P & R S Whidbey BOND2 | 0.0138911264 | $831,214 | $831,214 | $11.55 | | |
| SWHIDPRMT | P & R S Whidbey GEN | 0.2053334452 | $831,214 | $831,214 | $170.68 | | |
| | Total Tax Rate: | 6.6934522006 | | | | | |
| | | | | Taxes w/Current Exemptions: | $5,563.70 | | |
| | | | | Taxes w/o Exemptions: | $5,563.70 | | |
Improvement / Building
| Improvement #1: | RESIDENTIAL | State Code: | Y | 1830.0 sqft | Value: | $461,214 |
| Bathrooms: | 2.5 | Bedrooms: | 3 | | Ceiling: | DRYWALL PAINTED | Exterior Wall/Cover: | WOOD SIDING | | Floor Covering: | VINYL TILE/CARP 20-80 | Floor Structure: | WOOD W/SUBFLOOR | | Foundation: | CONCRETE | Heating: | FHA GAS | | Interior Finish: | DRYWALL PAINT | Plumbing Fixture Cnt: | 12 | | Roof Slope: | 5" IN 12" | Roof Structure/Cover: | CJ ASPHALT |
|
| | Type | Description | Class CD | Sub Class CD | Year Built | Area |
| | BAS | BASE/MAIN FLOOR | 3 | 0 | 2001 | 1830.0 |
| | OP1 | OPEN PORCH SLAB | 3 | 0 | 2001 | 315.6 |
| | OP3 | OPEN PORCH W/ROOF | 3 | 0 | 2001 | 96.0 |
| | AGR | ATTACHED GARAGE | 3 | 0 | 2001 | 612.0 |
| | OWP | OPEN WOOD PORCH W/STEPS | 3 | 0 | 2001 | 185.1 |
| | OWC | OPEN WOOD PORCH W/STEPS/ROOF/C | 3 | 0 | 2001 | 360.0 |
| | oCAR | CARPORT | 3 | 0 | 2001 | 768.0 |
| | oPOL | POLE BARN | 3 | 0 | 2001 | 2304.0 |
| | oCB2 | CABIN FIN | 3 | 0 | 2001 | 1152.0 |
| | oCB2 | CABIN FIN | 3 | 0 | 2001 | 1152.0 |
| | oSTA | STABLE | 3 | 0 | 2001 | 900.0 |
| | CPD | OPEN CARPORT DIRT FLOOR | 3 | 0 | 2001 | 300.0 |
| | CPD | OPEN CARPORT DIRT FLOOR | 3 | 0 | 2001 | 550.0 |
Sketch
Property Image
Land
| 1 | 52 | SUMMER PASTURE | 1.0000 | 43560.00 | 0.00 | 0.00 | 1.00 | $0 | $0 |
| 2 | 32 | AC (03.01-09.99) | 4.8300 | 0.00 | 0.00 | 0.00 | 1.00 | $370,000 | $0 |
Roll Value History
| 2026 | N/A | N/A | N/A | N/A | N/A |
| 2025 | $461,214 | $370,000 | $0 | $831,214 | $831,214 |
| 2024 | $465,348 | $350,000 | $0 | $815,348 | $815,348 |
| 2023 | $469,481 | $330,000 | $0 | $799,481 | $799,481 |
| 2022 | $439,938 | $280,000 | $0 | $719,938 | $719,938 |
| 2021 | $401,073 | $230,000 | $0 | $631,073 | $631,073 |
| 2020 | $354,830 | $190,000 | $0 | $544,830 | $544,830 |
| 2019 | $288,350 | $250,000 | $0 | $538,350 | $538,350 |
| 2018 | $288,904 | $210,000 | $0 | $498,904 | $498,904 |
| 2017 | $290,012 | $190,000 | $0 | $480,012 | $480,012 |
| 2016 | $292,230 | $165,000 | $0 | $457,230 | $457,230 |
| 2015 | $294,450 | $113,070 | $0 | $407,520 | $407,520 |
| 2014 | $306,346 | $155,580 | $0 | $461,926 | $461,926 |
| 2013 | $308,628 | $155,580 | $0 | $464,208 | $464,208 |
| 2012 | $310,912 | $155,580 | $0 | $466,492 | $466,492 |
| 2011 | $313,193 | $155,580 | $0 | $468,773 | $468,773 |
| 2010 | $320,720 | $155,580 | $0 | $476,300 | $476,300 |
| 2009 | $332,300 | $212,454 | $0 | $544,754 | $544,754 |
| 2008 | $335,020 | $250,690 | $0 | $585,710 | $585,710 |
| 2007 | $340,145 | $250,690 | $0 | $590,835 | $590,835 |
Deed and Sales History
| 1 | 12/18/2023 | QCD | Quit Claim Deed | AGWEST FARM CREDT, FLCA | PHOENIX CAPITAL GROUP HOLDINGS, LLC | | | $0.00 | 60366 | 4573630 |
| 2 | 10/16/2003 | WD | Warranty Deed | BIRNEY, C W | STREITLER III, JEAN | | | $403,300.00 | 34786 | 4080295 |
| 3 | 05/01/1994 | WD | Warranty Deed | THOMAS, RICHARD S | BIRNEY, C W | | | $29,400.00 | 42146 | 94012388 |
| 4 | 12/01/1983 | WD | Warranty Deed | STOCKAM, GALE R | THOMAS, RICHARD S | | | $20,000.00 | 33752 | 419225 |
| 5 | 01/01/1900 | OTHER | Other - Misc. Documents | Unknown | STOCKAM, GALE R | | | $0.00 | 0 | 0 |
Payout Agreement
| No payout information available.. |