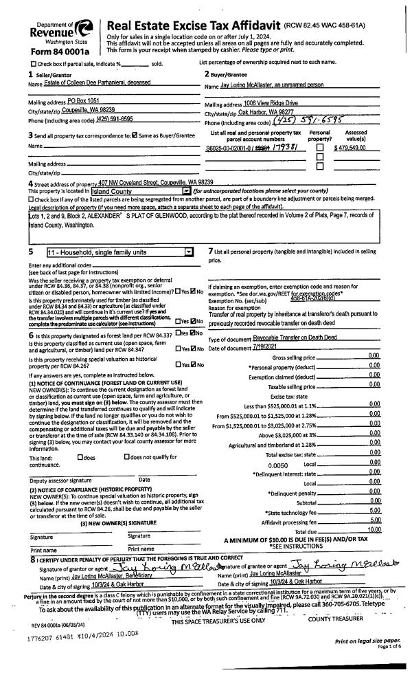
Property
Account |
| Property ID: | 141135 | Abbreviated Legal Description: | 54 - BG NWCR SE NE S75*E 1079.76' TO WLN RD SWLY 300 TPB CONT ALG SD RD TO SLN N/2 SE NE W TO CLN MAXWELTON CR N TP N75*W OF TPB S75*E TPB TGW 1/12 INT WELL |
| Geographic ID: | R32928-356-4280 | Agent Code: | |
| Type: | Real | | |
| Tax Area: | 712 - APPRAISER-S Whid Schl Dist, outside Langley, improved, greater than 1 acre | Land Use Code | 11 |
| Open Space: | N | DFL | N |
| Historic Property: | N | Remodel Property: | N |
| Multi-Family Redevelopment: | N | | |
| Township: | 29 | Section: | 28 |
| Range: | R3 |
Location |
| Address: | | Mapsco: | |
| Neighborhood: | Cycle 4 | Map ID: | 827 |
| Neighborhood CD: | 4 |
Owner |
| Name: | KALVELAGE, JEFF | Owner ID: | 19331 |
| Mailing Address: | 6544 MAXWELTON RD CLINTON, WA 98236-8608 | % Ownership: | 100.0000000000% |
| | | Exemptions: | |
Taxes and Assessment Details
Values
| (+) Improvement Homesite Value: | + | $0 | |
| (+) Improvement Non-Homesite Value: | + | $154,899 | |
| (+) Land Homesite Value: | + | $0 | |
| (+) Land Non-Homesite Value: | + | $370,000 | |
| (+) Curr Use (HS): | + | $0 | $0 |
| (+) Curr Use (NHS): | + | $0 | $0 |
| | | -------------------------- | |
| (=) Market Value: | = | $524,899 | |
| (–) Productivity Loss: | – | $0 | |
| | | -------------------------- | |
| (=) Subtotal: | = | $524,899 | |
| (+) Senior Appraised Value: | + | $0 | |
| (+) Non-Senior Appraised Value: | + | $524,899 | |
| | | -------------------------- | |
| (=) Total Appraised Value: | = | $524,899 | |
| (–) Senior Exemption Loss: | – | $0 | |
| (–) Exemption Loss: | – | $0 | |
| | | -------------------------- | |
| (=) Taxable Value: | = | $524,899 | |
Taxing Jurisdiction
| Owner: | KALVELAGE, JEFF | | |
| % Ownership: | 100.0000000000% | | |
| Total Value: | $524,899 | | |
| Tax Area: | 712 - APPRAISER-S Whid Schl Dist, outside Langley, improved, greater than 1 acre |
| CF | Conservation Futures | 0.0316035091 | $524,899 | $524,899 | $16.59 | | |
| FIRE3 | Fire & Rescue Dist #3 S Whidbey GEN | 1.2004855531 | $524,899 | $524,899 | $630.13 | | |
| HOBOND | Hospital BOND | 0.1910887512 | $524,899 | $524,899 | $100.30 | | |
| HOGEN | Hospital GEN | 0.3902502903 | $524,899 | $524,899 | $204.84 | | |
| CE | County Current Expense | 0.3708482477 | $524,899 | $524,899 | $194.66 | | |
| CR | County Roads | 0.4584763726 | $524,899 | $524,899 | $240.65 | | |
| ISLANDEMS | Hospital GEN (EMS) | 0.5000000000 | $524,899 | $524,899 | $262.45 | | |
| LIB | Library Sno-Isle GEN | 0.3153421757 | $524,899 | $524,899 | $165.52 | | |
| PORTWHID | Port of S Whidbey GEN | 0.1094540357 | $524,899 | $524,899 | $57.45 | | |
| SCH206BOND | School 206 BOND | 0.3161759235 | $524,899 | $524,899 | $165.96 | | |
| SCH206MO | School 206 Enrichment | 0.4547169547 | $524,899 | $524,899 | $238.68 | | |
| ST | State School | 1.3035497053 | $524,899 | $524,899 | $684.23 | | |
| ST2 | State School Part 2 | 0.8169543533 | $524,899 | $524,899 | $428.82 | | |
| SWHIDPRBD | P & R S Whidbey BOND | 0.0152817568 | $524,899 | $524,899 | $8.02 | | |
| SWHIDPRBD2 | P & R S Whidbey BOND2 | 0.0138911264 | $524,899 | $524,899 | $7.29 | | |
| SWHIDPRMT | P & R S Whidbey GEN | 0.2053334452 | $524,899 | $524,899 | $107.78 | | |
| | Total Tax Rate: | 6.6934522006 | | | | | |
| | | | | Taxes w/Current Exemptions: | $3,513.37 | | |
| | | | | Taxes w/o Exemptions: | $3,513.37 | | |
Improvement / Building
| Improvement #1: | MANUFACTURED HOME | State Code: | Y | 1782.0 sqft | Value: | $154,899 |
| Bathrooms: | 0 | Bedrooms: | 3 | | Ceiling: | PLASTER PAINTED | Cooling: | EVAP NO DUCT | | Exterior Wall/Cover: | VINYL | Floor Covering: | CARPET 100% | | Floor Structure: | SLAB ON GRADE | Foundation: | SLAB | | Heating: | FHA ELECTRIC | Interior Finish: | PLASTER | | Plumbing Fixture Cnt: | 1 | Roof Slope: | FLAT | | Roof Structure/Cover: | CJ ALUMINIUM HEAVY |   |   |
|
| | Type | Description | Class CD | Sub Class CD | Year Built | Area |
| | BAS | BASE/MAIN FLOOR | 4 | 0 | 2004 | 1782.0 |
| | OWP | OPEN WOOD PORCH W/STEPS | 4 | 0 | 2004 | 523.5 |
| | DGR | DETACHED GARAGE | 4 | 0 | 2004 | 720.0 |
| | UTY | STORAGE/UTILITY | 4 | 0 | 2004 | 120.0 |
Sketch
Property Image
Land
| 1 | 32 | AC (03.01-09.99) | 4.6500 | 0.00 | 0.00 | 0.00 | 1.00 | $370,000 | $0 |
Roll Value History
| 2026 | N/A | N/A | N/A | N/A | N/A |
| 2025 | $154,899 | $370,000 | $0 | $524,899 | $524,899 |
| 2024 | $159,029 | $350,000 | $0 | $509,029 | $509,029 |
| 2023 | $141,875 | $330,000 | $0 | $471,875 | $471,875 |
| 2022 | $131,720 | $280,000 | $0 | $411,720 | $411,720 |
| 2021 | $117,360 | $230,000 | $0 | $347,360 | $347,360 |
| 2020 | $106,413 | $190,000 | $0 | $296,413 | $296,413 |
| 2019 | $86,472 | $250,000 | $0 | $336,472 | $336,472 |
| 2018 | $88,483 | $210,000 | $0 | $298,483 | $298,483 |
| 2017 | $89,489 | $190,000 | $0 | $279,489 | $279,489 |
| 2016 | $90,495 | $165,000 | $0 | $255,495 | $255,495 |
| 2015 | $92,507 | $135,000 | $0 | $227,507 | $227,507 |
| 2014 | $94,169 | $148,800 | $0 | $242,969 | $242,969 |
| 2013 | $95,837 | $148,800 | $0 | $244,637 | $244,637 |
| 2012 | $96,671 | $148,800 | $0 | $245,471 | $245,471 |
| 2011 | $98,339 | $148,800 | $0 | $247,139 | $247,139 |
| 2010 | $93,828 | $148,800 | $0 | $242,628 | $242,628 |
| 2009 | $124,878 | $204,600 | $0 | $329,478 | $329,478 |
| 2008 | $121,417 | $199,950 | $0 | $321,367 | $321,367 |
| 2007 | $123,643 | $199,950 | $0 | $323,593 | $323,593 |
Deed and Sales History
| 1 | 12/18/2023 | QCD | Quit Claim Deed | AGWEST FARM CREDT, FLCA | PHOENIX CAPITAL GROUP HOLDINGS, LLC | | | $0.00 | 60366 | 4573630 |
| 2 | 08/01/1994 | WD | Warranty Deed | KALVELAGE, JEFF | KALVELAGE, JEFF | | | $62,000.00 | 43159 | 94016988 |
| 3 | 02/01/1992 | OTHER | Other - Misc. Documents | HIDECKER, MICHAEL J | KALVELAGE, JEFF | | | $16,500.00 | 20644 | 0 |
| 4 | 10/01/1989 | OTHER | Other - Misc. Documents | HIDECKER, MICHAEL/RUTH A | DVIRNAK, LELAND A | | | $20,000.00 | 94484 | 0 |
| 5 | 10/01/1989 | QCD | Quit Claim Deed | STANDINGER, MICHAEL C | HIDECKER, MICHAEL J | | | $0.00 | 94232 | 89013907 |
| 6 | 10/01/1989 | WD | Warranty Deed | DVIRNAK, LELAND A | STANDINGER, MICHAEL C | | | $35,000.00 | 94233 | 89013905 |
| 7 | 10/01/1989 | WD | Warranty Deed | DVIRNAK, LELAND A | DVIRNAK, LELAND A | | | $49,000.00 | 94483 | 89014657 |
| 8 | 07/01/1985 | OTHER | Other - Misc. Documents | HIDECKER, MICHAEL J | HIDECKER, MICHAEL/RUTH A | | | $0.00 | 51790 | 0 |
| 9 | 05/01/1985 | QCD | Quit Claim Deed | POFFENBERGER, RUSSELL R | HIDECKER, MICHAEL J | | | $0.00 | 51600 | 85006402 |
| 10 | 01/01/1900 | OTHER | Other - Misc. Documents | Unknown | POFFENBERGER, RUSSELL | | | $0.00 | 0 | 0 |
| 11 | 01/01/1900 | OTHER | Other - Misc. Documents | POFFENBERGER, RUSSELL | POFFENBERGER, RUSSELL R | | | $0.00 | 0 | 0 |
Payout Agreement
| No payout information available.. |