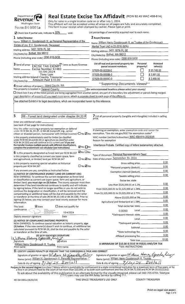
Property
Account |
| Property ID: | 141215 | Abbreviated Legal Description: | 60 - N1/2 NW SW NE |
| Geographic ID: | R32928-390-2850 | Agent Code: | |
| Type: | Real | | |
| Tax Area: | 719 - APPRAISER-S Whid Schl Dist, outside Langley, vacant & 50 acres or less | Land Use Code | 83 |
| Open Space: | Y | DFL | N |
| Historic Property: | N | Remodel Property: | N |
| Multi-Family Redevelopment: | N | | |
| Township: | 29 | Section: | 28 |
| Range: | R3 |
Location |
| Address: | | Mapsco: | |
| Neighborhood: | Cycle 4 | Map ID: | 827 |
| Neighborhood CD: | 4 |
Owner |
| Name: | LONG, LELAND M | Owner ID: | 202878 |
| Mailing Address: | 3468 EWING RD CLINTON, WA 98236 | % Ownership: | 100.0000000000% |
| | | Exemptions: | |
Taxes and Assessment Details
Values
| (+) Improvement Homesite Value: | + | $0 | |
| (+) Improvement Non-Homesite Value: | + | $0 | |
| (+) Land Homesite Value: | + | $0 | |
| (+) Land Non-Homesite Value: | + | $0 | |
| (+) Curr Use (HS): | + | $0 | $0 |
| (+) Curr Use (NHS): | + | $22,500 | $3,054 |
| | | -------------------------- | |
| (=) Market Value: | = | $22,500 | |
| (–) Productivity Loss: | – | $19,446 | |
| | | -------------------------- | |
| (=) Subtotal: | = | $3,054 | |
| (+) Senior Appraised Value: | + | $0 | |
| (+) Non-Senior Appraised Value: | + | $3,054 | |
| | | -------------------------- | |
| (=) Total Appraised Value: | = | $3,054 | |
| (–) Senior Exemption Loss: | – | $0 | |
| (–) Exemption Loss: | – | $0 | |
| | | -------------------------- | |
| (=) Taxable Value: | = | $3,054 | |
Taxing Jurisdiction
| Owner: | LONG, LELAND M | | |
| % Ownership: | 100.0000000000% | | |
| Total Value: | $22,500 | | |
| Tax Area: | 719 - APPRAISER-S Whid Schl Dist, outside Langley, vacant & 50 acres or less |
| CF | Conservation Futures | 0.0316035091 | $3,054 | $3,054 | $0.10 | | |
| HOBOND | Hospital BOND | 0.1910887512 | $3,054 | $3,054 | $0.58 | | |
| HOGEN | Hospital GEN | 0.3902502903 | $3,054 | $3,054 | $1.19 | | |
| CE | County Current Expense | 0.3708482477 | $3,054 | $3,054 | $1.13 | | |
| CR | County Roads | 0.4584763726 | $3,054 | $3,054 | $1.40 | | |
| ISLANDEMS | Hospital GEN (EMS) | 0.5000000000 | $3,054 | $3,054 | $1.53 | | |
| LIB | Library Sno-Isle GEN | 0.3153421757 | $3,054 | $3,054 | $0.96 | | |
| PORTWHID | Port of S Whidbey GEN | 0.1094540357 | $3,054 | $3,054 | $0.33 | | |
| SCH206BOND | School 206 BOND | 0.3161759235 | $3,054 | $3,054 | $0.97 | | |
| SCH206MO | School 206 Enrichment | 0.4547169547 | $3,054 | $3,054 | $1.39 | | |
| ST | State School | 1.3035497053 | $3,054 | $3,054 | $3.98 | | |
| ST2 | State School Part 2 | 0.8169543533 | $3,054 | $3,054 | $2.49 | | |
| SWHIDPRBD | P & R S Whidbey BOND | 0.0152817568 | $3,054 | $3,054 | $0.05 | | |
| SWHIDPRBD2 | P & R S Whidbey BOND2 | 0.0138911264 | $3,054 | $3,054 | $0.04 | | |
| SWHIDPRMT | P & R S Whidbey GEN | 0.2053334452 | $3,054 | $3,054 | $0.63 | | |
| | Total Tax Rate: | 5.4929666475 | | | | | |
| | | | | Taxes w/Current Exemptions: | $16.77 | | |
| | | | | Taxes w/o Exemptions: | $16.77 | | |
Improvement / Building
Sketch
| No sketches available for this property. |
Property Image
Land
| 1 | 32 | AC (03.01-09.99) | 5.0000 | 217800.00 | 0.00 | 0.00 | 1.00 | $22,500 | $3,054 |
Roll Value History
| 2026 | N/A | N/A | N/A | N/A | N/A |
| 2025 | $0 | $22,500 | $3,054 | $3,054 | $3,054 |
| 2024 | $0 | $230,000 | $3,054 | $3,054 | $3,054 |
| 2023 | $0 | $200,000 | $3,054 | $3,054 | $3,054 |
| 2022 | $0 | $170,000 | $3,054 | $3,054 | $3,054 |
| 2021 | $0 | $150,000 | $3,054 | $3,054 | $3,054 |
| 2020 | $0 | $150,000 | $3,054 | $3,054 | $3,054 |
| 2019 | $0 | $135,000 | $3,054 | $3,054 | $3,054 |
| 2018 | $0 | $130,000 | $3,054 | $3,054 | $3,054 |
| 2017 | $0 | $130,000 | $3,054 | $3,054 | $3,054 |
| 2016 | $0 | $130,000 | $3,054 | $3,054 | $3,054 |
| 2015 | $0 | $100,000 | $3,054 | $3,054 | $3,054 |
| 2014 | $0 | $114,750 | $3,054 | $3,054 | $3,054 |
| 2013 | $0 | $114,750 | $3,054 | $3,054 | $3,054 |
| 2012 | $0 | $114,750 | $3,054 | $3,054 | $3,054 |
| 2011 | $0 | $135,000 | $3,054 | $3,054 | $3,054 |
| 2010 | $0 | $135,000 | $3,054 | $3,054 | $3,054 |
| 2009 | $0 | $170,000 | $3,054 | $3,054 | $3,054 |
| 2008 | $0 | $170,000 | $3,054 | $3,054 | $3,054 |
| 2007 | $0 | $130,000 | $3,054 | $3,054 | $3,054 |
Deed and Sales History
| 1 | 12/18/2023 | QCD | Quit Claim Deed | AGWEST FARM CREDT, FLCA | PHOENIX CAPITAL GROUP HOLDINGS, LLC | | | $0.00 | 60366 | 4573630 |
| 2 | 04/15/2010 | QCD | Quit Claim Deed | LONG, LELAND M | LONG, LELAND M | | | $0.00 | 898 | 4272314 |
| 3 | 01/01/1900 | QCD | Quit Claim Deed | Unknown | LONG, LELAND M | | | $0.00 | 0 | 0 |
Payout Agreement
| No payout information available.. |