Property
Account |
| Property ID: | 141402 | Abbreviated Legal Description: | 38 - S140' OF N275' OF S/2 S/2 SE SE LY W OF SILLS RD & S140' OF N275' OF GL4 LY S OF NLN SD S/2 S/2 SE SE EXT WLY |
| Geographic ID: | R32929-010-4040 | Agent Code: | |
| Type: | Real | | |
| Tax Area: | 712 - APPRAISER-S Whid Schl Dist, outside Langley, improved, greater than 1 acre | Land Use Code | 11 |
| Open Space: | N | DFL | N |
| Historic Property: | N | Remodel Property: | N |
| Multi-Family Redevelopment: | N | | |
| Township: | 29 | Section: | 29 |
| Range: | R3 |
Location |
| Address: | 6790 SILLS RD CLINTON, WA 98236 | Mapsco: | |
| Neighborhood: | Cycle 4 | Map ID: | 829 |
| Neighborhood CD: | 4 |
Owner |
| Name: | LEE, JONG | Owner ID: | 316210 |
| Mailing Address: | JANIE LEE 1943 104TH AVE SE BELLEVUE, WA 98004 | % Ownership: | 100.0000000000% |
| | | Exemptions: | |
Taxes and Assessment Details
Values
| (+) Improvement Homesite Value: | + | $0 | |
| (+) Improvement Non-Homesite Value: | + | $731,826 | |
| (+) Land Homesite Value: | + | $0 | |
| (+) Land Non-Homesite Value: | + | $750,000 | |
| (+) Curr Use (HS): | + | $0 | $0 |
| (+) Curr Use (NHS): | + | $0 | $0 |
| | | -------------------------- | |
| (=) Market Value: | = | $1,481,826 | |
| (–) Productivity Loss: | – | $0 | |
| | | -------------------------- | |
| (=) Subtotal: | = | $1,481,826 | |
| (+) Senior Appraised Value: | + | $0 | |
| (+) Non-Senior Appraised Value: | + | $1,481,826 | |
| | | -------------------------- | |
| (=) Total Appraised Value: | = | $1,481,826 | |
| (–) Senior Exemption Loss: | – | $0 | |
| (–) Exemption Loss: | – | $0 | |
| | | -------------------------- | |
| (=) Taxable Value: | = | $1,481,826 | |
Taxing Jurisdiction
| Owner: | LEE, JONG | | |
| % Ownership: | 100.0000000000% | | |
| Total Value: | $1,481,826 | | |
| Tax Area: | 712 - APPRAISER-S Whid Schl Dist, outside Langley, improved, greater than 1 acre |
| CF | Conservation Futures | 0.0316035091 | $1,481,826 | $1,481,826 | $46.83 | | |
| FIRE3 | Fire & Rescue Dist #3 S Whidbey GEN | 1.2004855531 | $1,481,826 | $1,481,826 | $1,778.91 | | |
| HOBOND | Hospital BOND | 0.1910887512 | $1,481,826 | $1,481,826 | $283.16 | | |
| HOGEN | Hospital GEN | 0.3902502903 | $1,481,826 | $1,481,826 | $578.28 | | |
| CE | County Current Expense | 0.3708482477 | $1,481,826 | $1,481,826 | $549.53 | | |
| CR | County Roads | 0.4584763726 | $1,481,826 | $1,481,826 | $679.38 | | |
| ISLANDEMS | Hospital GEN (EMS) | 0.5000000000 | $1,481,826 | $1,481,826 | $740.91 | | |
| LIB | Library Sno-Isle GEN | 0.3153421757 | $1,481,826 | $1,481,826 | $467.28 | | |
| PORTWHID | Port of S Whidbey GEN | 0.1094540357 | $1,481,826 | $1,481,826 | $162.19 | | |
| SCH206BOND | School 206 BOND | 0.3161759235 | $1,481,826 | $1,481,826 | $468.52 | | |
| SCH206MO | School 206 Enrichment | 0.4547169547 | $1,481,826 | $1,481,826 | $673.81 | | |
| ST | State School | 1.3035497053 | $1,481,826 | $1,481,826 | $1,931.63 | | |
| ST2 | State School Part 2 | 0.8169543533 | $1,481,826 | $1,481,826 | $1,210.58 | | |
| SWHIDPRBD | P & R S Whidbey BOND | 0.0152817568 | $1,481,826 | $1,481,826 | $22.64 | | |
| SWHIDPRBD2 | P & R S Whidbey BOND2 | 0.0138911264 | $1,481,826 | $1,481,826 | $20.58 | | |
| SWHIDPRMT | P & R S Whidbey GEN | 0.2053334452 | $1,481,826 | $1,481,826 | $304.27 | | |
| | Total Tax Rate: | 6.6934522006 | | | | | |
| | | | | Taxes w/Current Exemptions: | $9,918.50 | | |
| | | | | Taxes w/o Exemptions: | $9,918.50 | | |
Improvement / Building
| Improvement #1: | RESIDENTIAL | State Code: | Y | 2875.5 sqft | Value: | $731,826 |
| Bathrooms: | 2.5 | Bedrooms: | 3 | | Ceiling: | TONGUE & GROOVE | Exterior Wall/Cover: | WOOD SIDING | | Floor Covering: | CERAMIC TILE/CPT 40-60 | Floor Structure: | WOOD W/SUBFLOOR | | Foundation: | CONCRETE | Heating: | RADIANT FLOOR | | Interior Finish: | DRYWALL PAINT | Plumbing Fixture Cnt: | 17 | | Roof Slope: | 8" IN 12" | Roof Structure/Cover: | BEAM ASPHALT |
|
| | Type | Description | Class CD | Sub Class CD | Year Built | Area |
| | BAS | BASE/MAIN FLOOR | 4 | 0 | 1951 | 1391.5 |
| | OP3 | OPEN PORCH W/ROOF | 4 | 0 | 1951 | 687.9 |
| | OP4 | OPEN PORCH W/CEILING-ROOF | 4 | 0 | 1951 | 58.3 |
| | OWP | OPEN WOOD PORCH W/STEPS | 4 | 0 | 1951 | 885.0 |
| | OWC | OPEN WOOD PORCH W/STEPS/ROOF/C | 4 | 0 | 1951 | 55.0 |
| | DWN | DOWNSTAIRS LIVING AREA | 4 | 0 | 1951 | 1084.0 |
| | DGR | DETACHED GARAGE | 4 | 0 | 1951 | 576.0 |
| | UTY | STORAGE/UTILITY | 4 | 0 | 1951 | 0.0 |
| | UPS | UPPER STORY | 4 | 0 | 1951 | 400.0 |
| | ENP | ENCLOSED PORCH | 4 | 0 | 1951 | 200.0 |
| | CPD | OPEN CARPORT DIRT FLOOR | 4 | 0 | 1951 | 480.0 |
| | OWR | OPEN WOOD PORCH W/STEPS/ROOF | 4 | 0 | 1951 | 156.0 |
Sketch
| No sketches available for this property. |
Property Image
Land
| 1 | HB | HIGH BLUFF | 3.6400 | 158558.40 | 145.00 | 0.00 | 1.00 | $750,000 | $0 |
Roll Value History
| 2026 | N/A | N/A | N/A | N/A | N/A |
| 2025 | $731,826 | $750,000 | $0 | $1,481,826 | $1,481,826 |
| 2024 | $710,416 | $710,000 | $0 | $1,420,416 | $1,420,416 |
| 2023 | $718,597 | $710,000 | $0 | $1,428,597 | $1,428,597 |
| 2022 | $658,581 | $660,000 | $0 | $1,318,581 | $1,318,581 |
| 2021 | $579,753 | $550,000 | $0 | $1,129,753 | $1,129,753 |
| 2020 | $556,995 | $500,000 | $0 | $1,056,995 | $1,056,995 |
| 2019 | $432,735 | $600,000 | $0 | $1,032,735 | $1,032,735 |
| 2018 | $433,907 | $500,000 | $0 | $933,907 | $933,907 |
| 2017 | $289,454 | $500,000 | $0 | $789,454 | $789,454 |
| 2016 | $292,909 | $500,000 | $0 | $792,909 | $792,909 |
| 2015 | $296,362 | $500,000 | $0 | $796,362 | $796,362 |
| 2014 | $296,146 | $500,000 | $0 | $796,146 | $796,146 |
| 2013 | $299,288 | $529,041 | $0 | $828,329 | $828,329 |
| 2012 | $302,433 | $529,041 | $0 | $831,474 | $831,474 |
| 2011 | $305,575 | $529,041 | $0 | $834,616 | $834,616 |
| 2010 | $320,517 | $529,041 | $0 | $849,558 | $849,558 |
| 2009 | $333,047 | $635,867 | $0 | $968,914 | $968,914 |
| 2008 | $328,491 | $635,867 | $0 | $964,358 | $964,358 |
| 2007 | $291,230 | $635,867 | $0 | $927,097 | $927,097 |
Deed and Sales History
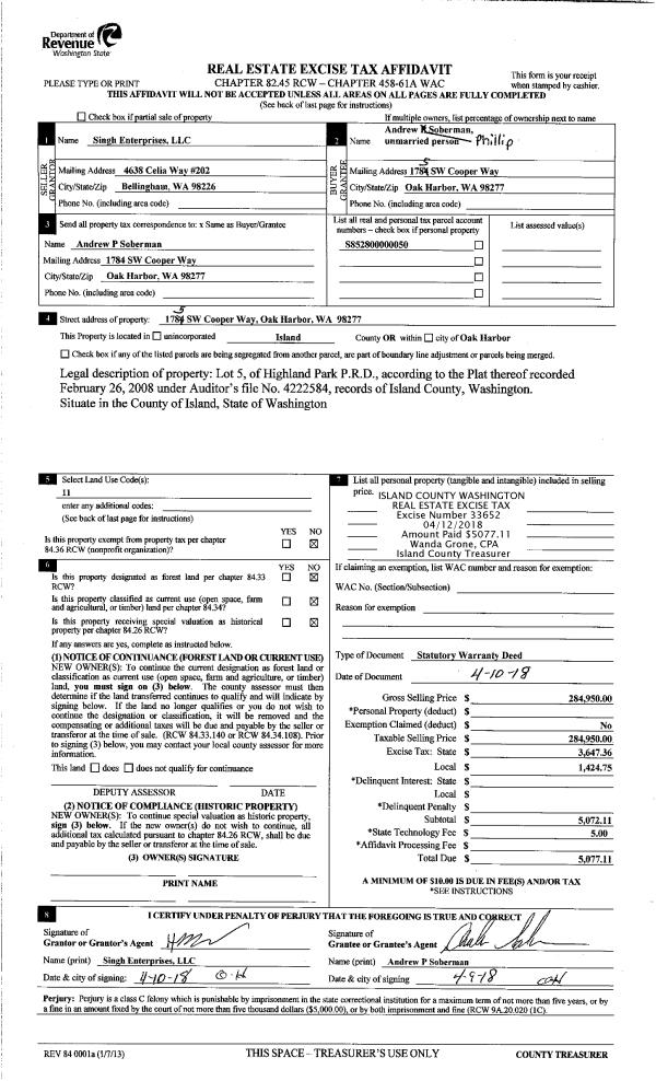
| 1 | 04/17/2025 | WD | Warranty Deed | SHAPIRO FAMILY, LLC | LEE, JONG | | | $1,800,000.00 | 63215 | 4584831 |
| 2 | 03/20/2018 | WD | Warranty Deed | DRAVES, RICHARD F | SHAPIRO FAMILY, LLC | | | $1,050,000.00 | 33514 | 4441824 |
| 3 | 10/01/1992 | WD | Warranty Deed | DRAVES, RICHARD F | DRAVES, RICHARD F | | | $291,561.00 | 23916 | 92018952 |
| 4 | 09/01/1992 | WD | Warranty Deed | WISHARD, THOMAS E | DRAVES, RICHARD F | | | $0.00 | 33961 | 93020642 |
| 5 | 07/01/1989 | WD | Warranty Deed | BRONS, ALVIN R | WISHARD, THOMAS E | | | $189,000.00 | 93236 | 89010847 |
| 6 | 01/01/1900 | OTHER | Other - Misc. Documents | Unknown | BRONS, ALVIN R | | | $0.00 | 0 | 0 |
Payout Agreement
| No payout information available.. |