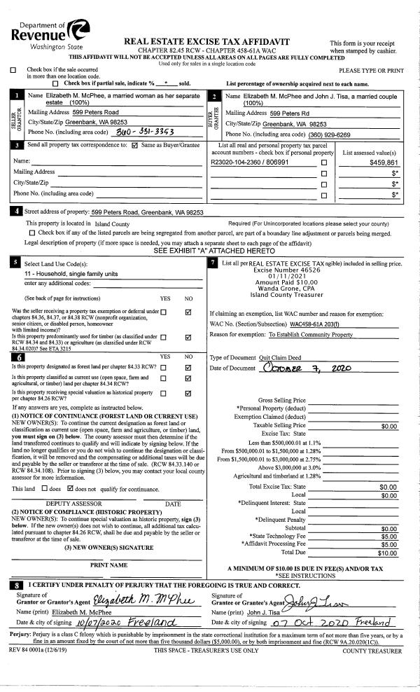
Property
Account |
| Property ID: | 141493 | Abbreviated Legal Description: | 36 - IN GL4: BG WLN RD & SLN N/2 N/2 SE SE W1000' TPB N60' W190' S60' E190' TPB |
| Geographic ID: | R32929-100-3430 | Agent Code: | |
| Type: | Real | | |
| Tax Area: | 710 - APPRAISER-S Whid Schl Dist, outside Langley, improved & 1 acre or less | Land Use Code | 11 |
| Open Space: | N | DFL | N |
| Historic Property: | N | Remodel Property: | N |
| Multi-Family Redevelopment: | N | | |
| Township: | 29 | Section: | 29 |
| Range: | R3 |
Location |
| Address: | 6733 KENNEY WAY CLINTON, WA 98236 | Mapsco: | |
| Neighborhood: | Cycle 4 | Map ID: | 829 |
| Neighborhood CD: | 4 |
Owner |
| Name: | PERRINO, JONATHAN L | Owner ID: | 267467 |
| Mailing Address: | KRISTEN L PERRINO 7302 17TH AVE NW SEATTLE, WA 98117 | % Ownership: | 100.0000000000% |
| | | Exemptions: | |
Taxes and Assessment Details
Values
| (+) Improvement Homesite Value: | + | $0 | |
| (+) Improvement Non-Homesite Value: | + | $236,972 | |
| (+) Land Homesite Value: | + | $0 | |
| (+) Land Non-Homesite Value: | + | $240,000 | |
| (+) Curr Use (HS): | + | $0 | $0 |
| (+) Curr Use (NHS): | + | $0 | $0 |
| | | -------------------------- | |
| (=) Market Value: | = | $476,972 | |
| (–) Productivity Loss: | – | $0 | |
| | | -------------------------- | |
| (=) Subtotal: | = | $476,972 | |
| (+) Senior Appraised Value: | + | $0 | |
| (+) Non-Senior Appraised Value: | + | $476,972 | |
| | | -------------------------- | |
| (=) Total Appraised Value: | = | $476,972 | |
| (–) Senior Exemption Loss: | – | $0 | |
| (–) Exemption Loss: | – | $0 | |
| | | -------------------------- | |
| (=) Taxable Value: | = | $476,972 | |
Taxing Jurisdiction
| Owner: | PERRINO, JONATHAN L | | |
| % Ownership: | 100.0000000000% | | |
| Total Value: | $476,972 | | |
| Tax Area: | 710 - APPRAISER-S Whid Schl Dist, outside Langley, improved & 1 acre or less |
| CF | Conservation Futures | 0.0316035091 | $476,972 | $476,972 | $15.07 | | |
| FIRE3 | Fire & Rescue Dist #3 S Whidbey GEN | 1.2004855531 | $476,972 | $476,972 | $572.60 | | |
| HOBOND | Hospital BOND | 0.1910887512 | $476,972 | $476,972 | $91.14 | | |
| HOGEN | Hospital GEN | 0.3902502903 | $476,972 | $476,972 | $186.14 | | |
| CE | County Current Expense | 0.3708482477 | $476,972 | $476,972 | $176.88 | | |
| CR | County Roads | 0.4584763726 | $476,972 | $476,972 | $218.68 | | |
| ISLANDEMS | Hospital GEN (EMS) | 0.5000000000 | $476,972 | $476,972 | $238.49 | | |
| LIB | Library Sno-Isle GEN | 0.3153421757 | $476,972 | $476,972 | $150.41 | | |
| PORTWHID | Port of S Whidbey GEN | 0.1094540357 | $476,972 | $476,972 | $52.21 | | |
| SCH206BOND | School 206 BOND | 0.3161759235 | $476,972 | $476,972 | $150.81 | | |
| SCH206MO | School 206 Enrichment | 0.4547169547 | $476,972 | $476,972 | $216.89 | | |
| ST | State School | 1.3035497053 | $476,972 | $476,972 | $621.76 | | |
| ST2 | State School Part 2 | 0.8169543533 | $476,972 | $476,972 | $389.66 | | |
| SWHIDPRBD | P & R S Whidbey BOND | 0.0152817568 | $476,972 | $476,972 | $7.29 | | |
| SWHIDPRBD2 | P & R S Whidbey BOND2 | 0.0138911264 | $476,972 | $476,972 | $6.63 | | |
| SWHIDPRMT | P & R S Whidbey GEN | 0.2053334452 | $476,972 | $476,972 | $97.94 | | |
| | Total Tax Rate: | 6.6934522006 | | | | | |
| | | | | Taxes w/Current Exemptions: | $3,192.60 | | |
| | | | | Taxes w/o Exemptions: | $3,192.60 | | |
Improvement / Building
| Improvement #1: | RESIDENTIAL | State Code: | Y | 1472.0 sqft | Value: | $236,972 |
| Bathrooms: | 2 | Bedrooms: | 2 | | Ceiling: | DRYWALL PAINTED | Exterior Wall/Cover: | WOOD SIDING | | Floor Covering: | HARDWOOD/CARP 60-40 | Floor Structure: | WOOD W/SUBFLOOR | | Foundation: | CONCRETE | Heating: | BASEBOARD ELECTRIC | | Interior Finish: | DRYWALL PAINT | Plumbing Fixture Cnt: | 9 | | Roof Slope: | 8" IN 12" | Roof Structure/Cover: | BEAM ASPHALT |
|
| | Type | Description | Class CD | Sub Class CD | Year Built | Area |
| | BAS | BASE/MAIN FLOOR | 3 | 0 | 1980 | 832.0 |
| | UTY | STORAGE/UTILITY | 3 | 0 | 1980 | 28.0 |
| | UPS | UPPER STORY | 3 | 0 | 1980 | 640.0 |
| | OWP | OPEN WOOD PORCH W/STEPS | 3 | 0 | 1980 | 169.6 |
| | OWP | OPEN WOOD PORCH W/STEPS | 3 | 0 | 1980 | 332.0 |
| | UTY | STORAGE/UTILITY | 3 | 0 | 1980 | 210.0 |
Sketch
Property Image
Land
| 1 | 14 | SQ (08001-12000) | 0.2600 | 11325.60 | 0.00 | 0.00 | 1.00 | $240,000 | $0 |
Roll Value History
| 2026 | N/A | N/A | N/A | N/A | N/A |
| 2025 | $236,972 | $240,000 | $0 | $476,972 | $476,972 |
| 2024 | $244,801 | $230,000 | $0 | $474,801 | $474,801 |
| 2023 | $248,012 | $230,000 | $0 | $478,012 | $478,012 |
| 2022 | $227,476 | $210,000 | $0 | $437,476 | $437,476 |
| 2021 | $200,332 | $150,000 | $0 | $350,332 | $350,332 |
| 2020 | $175,144 | $120,000 | $0 | $295,144 | $295,144 |
| 2019 | $127,753 | $170,000 | $0 | $297,753 | $297,753 |
| 2018 | $128,151 | $130,000 | $0 | $258,151 | $258,151 |
| 2017 | $128,871 | $110,000 | $0 | $238,871 | $238,871 |
| 2016 | $130,463 | $100,000 | $0 | $230,463 | $230,463 |
| 2015 | $132,055 | $100,000 | $0 | $232,055 | $232,055 |
| 2014 | $119,692 | $106,250 | $0 | $225,942 | $225,942 |
| 2013 | $121,224 | $106,250 | $0 | $227,474 | $227,474 |
| 2012 | $122,757 | $106,250 | $0 | $229,007 | $229,007 |
| 2011 | $124,291 | $125,000 | $0 | $249,291 | $249,291 |
| 2010 | $126,272 | $125,000 | $0 | $251,272 | $251,272 |
| 2009 | $131,818 | $150,000 | $0 | $281,818 | $281,818 |
| 2008 | $138,437 | $139,500 | $0 | $277,937 | $277,937 |
| 2007 | $115,732 | $135,000 | $0 | $250,732 | $250,732 |
Deed and Sales History
| 1 | 08/08/2014 | WD | Warranty Deed | HATTAL, GARY | PERRINO, JONATHAN L | | | $253,200.00 | 16384 | 4363864 |
| 2 | 09/11/2007 | WD | Warranty Deed | TIMMS, LAWRENCE G | HATTAL, GARY | | | $320,000.00 | 73169 | 4212302 |
| 3 | 10/09/2006 | WD | Warranty Deed | HARVEY, SHARON P | TIMMS, LAWRENCE G | | | $285,000.00 | 64414 | 4184109 |
| 4 | 12/03/2001 | WD | Warranty Deed | HARVEY, SHARON P | HARVEY, SHARON P | | | $137,500.00 | 14606 | 4004954 |
| 5 | 10/05/2001 | WD | Warranty Deed | LANGHANS, BRIAN P | HARVEY, SHARON P | | | $0.00 | 64441 | 4184259 |
| 6 | 06/16/1998 | WD | Warranty Deed | SCHULTHESS, JAKOB | LANGHANS, BRIAN P | | | $90,000.00 | 82477 | 98012871 |
| 7 | 06/01/1989 | WD | Warranty Deed | ESTATE, OF B | SCHULTHESS, JAKOB | | | $42,000.00 | 92236 | 89007645 |
| 8 | 08/01/1987 | OTHER | Other - Misc. Documents | BROWN, JOHN E | ESTATE, OF B | | | $0.00 | 62307 | 0 |
| 9 | 09/01/1958 | OTHER | Other - Misc. Documents | LANGHANS, BRIAN | BROWN, JOHN E | | | $0.00 | 4450 | 0 |
| 10 | 01/01/1900 | OTHER | Other - Misc. Documents | Unknown | LANGHANS, BRIAN | | | $0.00 | 82477 | 98012871 |
Payout Agreement
| No payout information available.. |