Property
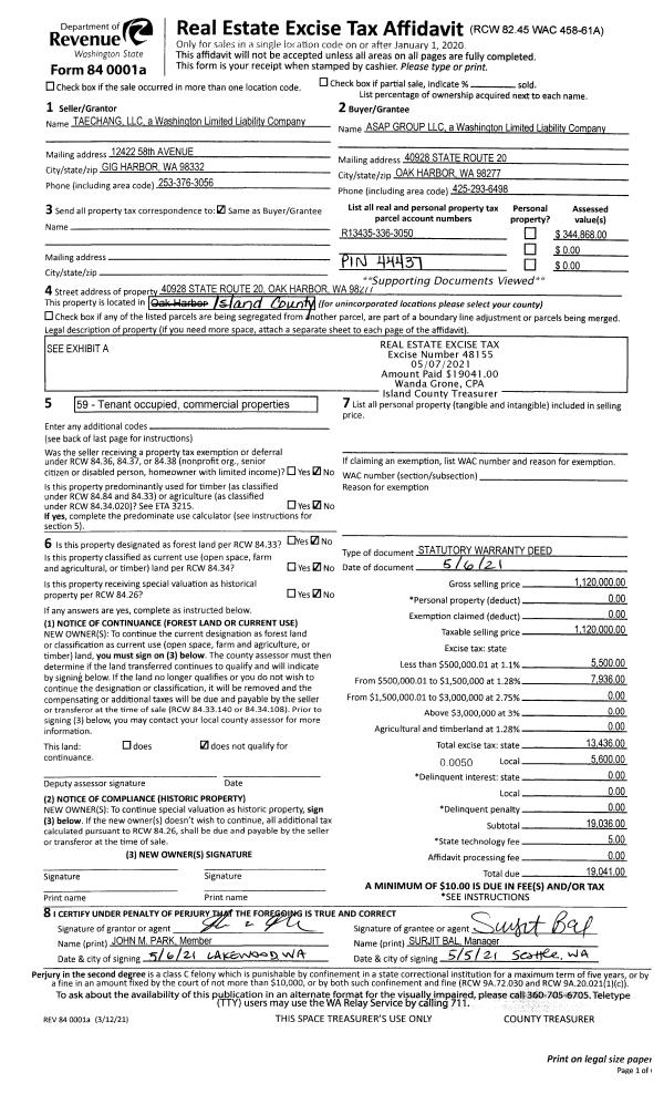
Account |
| Property ID: | 14157 | Abbreviated Legal Description: | 51 - IN SE NE:BG SE CR L1 B2 FAIRWAY EST N55*W112.65' S43*W192.81' TPB S43*W100' S46*E125' TO RD N43*E100' N46*W125'TPB TR B SP70-037 |
| Geographic ID: | R13204-366-4740 | Agent Code: | |
| Type: | Real | | |
| Tax Area: | 110 - APPRAISER-OH Schl Dist, outside OH, improved & 1 acre or less | Land Use Code | 11 |
| Open Space: | N | DFL | N |
| Historic Property: | N | Remodel Property: | N |
| Multi-Family Redevelopment: | N | | |
| Township: | 32 | Section: | 04 |
| Range: | R1 |
Location |
| Address: | 753 SW THORNBERRY DR OAK HARBOR, WA 98277 | Mapsco: | |
| Neighborhood: | Cycle 1 | Map ID: | 97 |
| Neighborhood CD: | 1 |
Owner |
| Name: | WELDEN, CHRISTOPHER | Owner ID: | 297823 |
| Mailing Address: | AMIE WELDEN 753 SW THORNBERRY DR OAK HARBOR, WA 98277 | % Ownership: | 100.0000000000% |
| | | Exemptions: | |
Taxes and Assessment Details
Values
| (+) Improvement Homesite Value: | + | $0 | |
| (+) Improvement Non-Homesite Value: | + | $257,736 | |
| (+) Land Homesite Value: | + | $0 | |
| (+) Land Non-Homesite Value: | + | $200,000 | |
| (+) Curr Use (HS): | + | $0 | $0 |
| (+) Curr Use (NHS): | + | $0 | $0 |
| | | -------------------------- | |
| (=) Market Value: | = | $457,736 | |
| (–) Productivity Loss: | – | $0 | |
| | | -------------------------- | |
| (=) Subtotal: | = | $457,736 | |
| (+) Senior Appraised Value: | + | $0 | |
| (+) Non-Senior Appraised Value: | + | $457,736 | |
| | | -------------------------- | |
| (=) Total Appraised Value: | = | $457,736 | |
| (–) Senior Exemption Loss: | – | $0 | |
| (–) Exemption Loss: | – | $0 | |
| | | -------------------------- | |
| (=) Taxable Value: | = | $457,736 | |
Taxing Jurisdiction
| Owner: | WELDEN, CHRISTOPHER | | |
| % Ownership: | 100.0000000000% | | |
| Total Value: | $457,736 | | |
| Tax Area: | 110 - APPRAISER-OH Schl Dist, outside OH, improved & 1 acre or less |
| CF | Conservation Futures | 0.0316035091 | $457,736 | $457,736 | $14.47 | | |
| CEM1 | Cemetery #1 | 0.0040320932 | $457,736 | $457,736 | $1.85 | | |
| FIRE2 | Fire & Rescue Dist #2 N Whidbey GEN | 0.5475949600 | $457,736 | $457,736 | $250.65 | | |
| HOBOND | Hospital BOND | 0.1910887512 | $457,736 | $457,736 | $87.47 | | |
| HOGEN | Hospital GEN | 0.3902502903 | $457,736 | $457,736 | $178.63 | | |
| CE | County Current Expense | 0.3708482477 | $457,736 | $457,736 | $169.75 | | |
| CR | County Roads | 0.4584763726 | $457,736 | $457,736 | $209.86 | | |
| ISLANDEMS | Hospital GEN (EMS) | 0.5000000000 | $457,736 | $457,736 | $228.87 | | |
| LIB | Library Sno-Isle GEN | 0.3153421757 | $457,736 | $457,736 | $144.34 | | |
| NWHIDPRMT | P & R N Whidbey GEN | 0.2004466701 | $457,736 | $457,736 | $91.75 | | |
| SCH201MO | School 201 Enrichment | 1.8559231640 | $457,736 | $457,736 | $849.52 | | |
| ST | State School | 1.3035497053 | $457,736 | $457,736 | $596.68 | | |
| ST2 | State School Part 2 | 0.8169543533 | $457,736 | $457,736 | $373.95 | | |
| | Total Tax Rate: | 6.9861102925 | | | | | |
| | | | | Taxes w/Current Exemptions: | $3,197.79 | | |
| | | | | Taxes w/o Exemptions: | $3,197.79 | | |
Improvement / Building
| Improvement #1: | RESIDENTIAL | State Code: | Y | 1576.0 sqft | Value: | $257,736 |
| Bathrooms: | 1.75 | Bedrooms: | 4 | | Ceiling: | DRY WALL SPRAYED | Exterior Wall/Cover: | PLY/HARDBOARD T-111 | | Floor Covering: | CARPET/VINYL 60-40 | Floor Structure: | WOOD W/SUBFLOOR | | Foundation: | CONCRETE BLOCKS | Heating: | BASEBOARD ELECTRIC | | Interior Finish: | DRYWALL PAINT | Plumbing Fixture Cnt: | 9 | | Roof Slope: | 4" IN 12" | Roof Structure/Cover: | CJ ASPHALT |
|
| | Type | Description | Class CD | Sub Class CD | Year Built | Area |
| | BAS | BASE/MAIN FLOOR | 3 | 0 | 1970 | 1576.0 |
| | AGR | ATTACHED GARAGE | 3 | 0 | 1970 | 400.0 |
| | OWP | OPEN WOOD PORCH W/STEPS | 3 | 0 | 1970 | 209.8 |
| | OWP | OPEN WOOD PORCH W/STEPS | 3 | 0 | 1970 | 178.4 |
| | OWR | OPEN WOOD PORCH W/STEPS/ROOF | 3 | 0 | 1970 | 160.1 |
Sketch
Property Image
Land
| 1 | 15 | SQ (12001-21780) | 0.3000 | 13068.00 | 0.00 | 0.00 | 1.00 | $200,000 | $0 |
Roll Value History
| 2026 | N/A | N/A | N/A | N/A | N/A |
| 2025 | $257,736 | $200,000 | $0 | $457,736 | $457,736 |
| 2024 | $266,662 | $190,000 | $0 | $456,662 | $456,662 |
| 2023 | $263,339 | $180,000 | $0 | $443,339 | $443,339 |
| 2022 | $241,475 | $180,000 | $0 | $421,475 | $421,475 |
| 2021 | $212,587 | $135,000 | $0 | $347,587 | $347,587 |
| 2020 | $192,067 | $100,000 | $0 | $292,067 | $292,067 |
| 2019 | $140,300 | $150,000 | $0 | $290,300 | $290,300 |
| 2018 | $140,756 | $130,000 | $0 | $270,756 | $270,756 |
| 2017 | $140,659 | $110,000 | $0 | $250,659 | $250,659 |
| 2016 | $100,980 | $90,000 | $0 | $190,980 | $190,980 |
| 2015 | $102,721 | $70,000 | $0 | $172,721 | $172,721 |
| 2014 | $104,462 | $55,000 | $0 | $159,462 | $159,462 |
| 2013 | $106,202 | $55,000 | $0 | $161,202 | $161,202 |
| 2012 | $107,943 | $63,750 | $0 | $171,693 | $171,693 |
| 2011 | $110,543 | $75,000 | $0 | $185,543 | $185,543 |
| 2010 | $125,679 | $75,000 | $0 | $200,679 | $200,679 |
| 2009 | $129,693 | $90,000 | $0 | $219,693 | $219,693 |
| 2008 | $131,946 | $95,000 | $0 | $226,946 | $226,946 |
| 2007 | $134,192 | $88,000 | $0 | $222,192 | $222,192 |
Deed and Sales History
| 1 | 01/14/2021 | WD | Warranty Deed | BREAUX, RANDALL L | WELDEN, CHRISTOPHER | | | $390,000.00 | 46660 | 4508806 |
| 2 | 06/27/2016 | WD | Warranty Deed | ADAMS, JEFFREY A | BREAUX, RANDALL L | | | $272,500.00 | 25100 | 4402509 |
| 3 | 08/01/1997 | WD | Warranty Deed | QUINN, DONALD P | ADAMS, JEFFREY A | | | $126,900.00 | 73040 | 97014360 |
| 4 | 01/01/1985 | WD | Warranty Deed | HOSKINS, DONALD R | QUINN, DONALD P | | | $76,200.00 | 50046 | 85000187 |
| 5 | 01/01/1900 | OTHER | Other - Misc. Documents | Unknown | HOSKINS, DONALD R | | | $0.00 | 0 | 0 |
Payout Agreement
| No payout information available.. |