Property
Account |
| Property ID: | 141607 | Abbreviated Legal Description: | 29 - IN GL 4 |
| Geographic ID: | R32929-115-3430 | Agent Code: | |
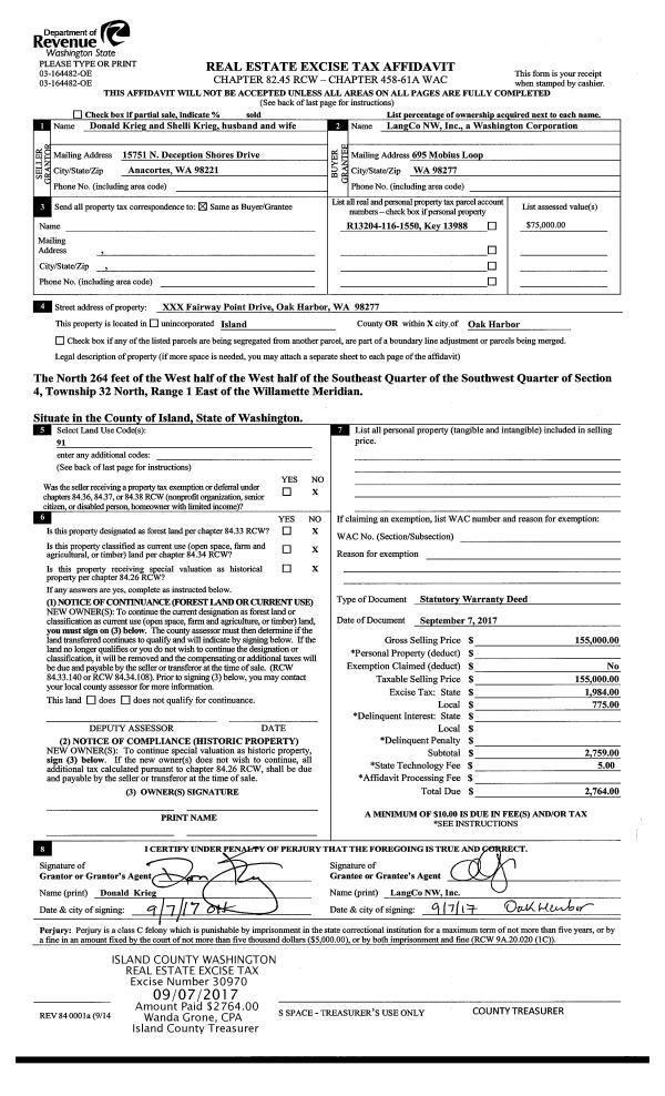
| Type: | Real | | |
| Tax Area: | 710 - APPRAISER-S Whid Schl Dist, outside Langley, improved & 1 acre or less | Land Use Code | 11 |
| Open Space: | N | DFL | N |
| Historic Property: | N | Remodel Property: | N |
| Multi-Family Redevelopment: | N | | |
| Township: | 29 | Section: | 29 |
| Range: | R3 |
Location |
| Address: | 3076 HUGHTAYLOR LN CLINTON, WA 98236 | Mapsco: | |
| Neighborhood: | Cycle 4 | Map ID: | 829 |
| Neighborhood CD: | 4 |
Owner |
| Name: | TAYLOR TRUSTEE, BRADLEY WILLIAM | Owner ID: | 281855 |
| Mailing Address: | KATHLEEN BYBEE TAYLOR TRUSTEE 14417 50TH ST NE LAKE STEVENS, WA 98258 | % Ownership: | 100.0000000000% |
| | | Exemptions: | |
Taxes and Assessment Details
Values
| (+) Improvement Homesite Value: | + | $0 | |
| (+) Improvement Non-Homesite Value: | + | $13,881 | |
| (+) Land Homesite Value: | + | $0 | |
| (+) Land Non-Homesite Value: | + | $260,000 | |
| (+) Curr Use (HS): | + | $0 | $0 |
| (+) Curr Use (NHS): | + | $0 | $0 |
| | | -------------------------- | |
| (=) Market Value: | = | $273,881 | |
| (–) Productivity Loss: | – | $0 | |
| | | -------------------------- | |
| (=) Subtotal: | = | $273,881 | |
| (+) Senior Appraised Value: | + | $0 | |
| (+) Non-Senior Appraised Value: | + | $273,881 | |
| | | -------------------------- | |
| (=) Total Appraised Value: | = | $273,881 | |
| (–) Senior Exemption Loss: | – | $0 | |
| (–) Exemption Loss: | – | $0 | |
| | | -------------------------- | |
| (=) Taxable Value: | = | $273,881 | |
Taxing Jurisdiction
| Owner: | TAYLOR TRUSTEE, BRADLEY WILLIAM | | |
| % Ownership: | 100.0000000000% | | |
| Total Value: | $273,881 | | |
| Tax Area: | 710 - APPRAISER-S Whid Schl Dist, outside Langley, improved & 1 acre or less |
| CF | Conservation Futures | 0.0316035091 | $273,881 | $273,881 | $8.66 | | |
| FIRE3 | Fire & Rescue Dist #3 S Whidbey GEN | 1.2004855531 | $273,881 | $273,881 | $328.79 | | |
| HOBOND | Hospital BOND | 0.1910887512 | $273,881 | $273,881 | $52.34 | | |
| HOGEN | Hospital GEN | 0.3902502903 | $273,881 | $273,881 | $106.88 | | |
| CE | County Current Expense | 0.3708482477 | $273,881 | $273,881 | $101.57 | | |
| CR | County Roads | 0.4584763726 | $273,881 | $273,881 | $125.57 | | |
| ISLANDEMS | Hospital GEN (EMS) | 0.5000000000 | $273,881 | $273,881 | $136.94 | | |
| LIB | Library Sno-Isle GEN | 0.3153421757 | $273,881 | $273,881 | $86.37 | | |
| PORTWHID | Port of S Whidbey GEN | 0.1094540357 | $273,881 | $273,881 | $29.98 | | |
| SCH206BOND | School 206 BOND | 0.3161759235 | $273,881 | $273,881 | $86.59 | | |
| SCH206MO | School 206 Enrichment | 0.4547169547 | $273,881 | $273,881 | $124.54 | | |
| ST | State School | 1.3035497053 | $273,881 | $273,881 | $357.02 | | |
| ST2 | State School Part 2 | 0.8169543533 | $273,881 | $273,881 | $223.75 | | |
| SWHIDPRBD | P & R S Whidbey BOND | 0.0152817568 | $273,881 | $273,881 | $4.19 | | |
| SWHIDPRBD2 | P & R S Whidbey BOND2 | 0.0138911264 | $273,881 | $273,881 | $3.80 | | |
| SWHIDPRMT | P & R S Whidbey GEN | 0.2053334452 | $273,881 | $273,881 | $56.24 | | |
| | Total Tax Rate: | 6.6934522006 | | | | | |
| | | | | Taxes w/Current Exemptions: | $1,833.23 | | |
| | | | | Taxes w/o Exemptions: | $1,833.23 | | |
Improvement / Building
| Improvement #1: | RESIDENTIAL | State Code: | Y | 576.0 sqft | Value: | $13,881 |
| Bathrooms: | 1 | Bedrooms: | 2 | | Ceiling: | ACOUSTIC FURRED | Exterior Wall/Cover: | WOOD SIDING | | Floor Covering: | VINYL 100% | Floor Structure: | WOOD W/SUBFLOOR | | Foundation: | WOOD BLOCKS | Heating: | GAS HEATERS | | Interior Finish: | DRYWALL PAINT | Plumbing Fixture Cnt: | 5 | | Roof Slope: | 4" IN 12" | Roof Structure/Cover: | CJ ASPHALT |
|
Sketch
Property Image
Land
| 1 | 16 | AC (00.51-01.00) | 0.0000 | 22651.20 | 0.00 | 0.00 | 1.00 | $260,000 | $0 |
Roll Value History
| 2026 | N/A | N/A | N/A | N/A | N/A |
| 2025 | $13,881 | $260,000 | $0 | $273,881 | $273,881 |
| 2024 | $14,299 | $250,000 | $0 | $264,299 | $264,299 |
| 2023 | $14,716 | $240,000 | $0 | $254,716 | $254,716 |
| 2022 | $13,704 | $240,000 | $0 | $253,704 | $253,704 |
| 2021 | $12,245 | $160,000 | $0 | $172,245 | $172,245 |
| 2020 | $10,557 | $135,000 | $0 | $145,557 | $145,557 |
| 2019 | $7,825 | $180,000 | $0 | $187,825 | $187,825 |
| 2018 | $7,875 | $150,000 | $0 | $157,875 | $157,875 |
| 2017 | $7,974 | $110,000 | $0 | $117,974 | $117,974 |
| 2016 | $7,680 | $100,000 | $0 | $107,680 | $107,680 |
| 2015 | $7,867 | $100,000 | $0 | $107,867 | $107,867 |
| 2014 | $13,074 | $110,500 | $0 | $123,574 | $123,574 |
| 2013 | $13,326 | $110,500 | $0 | $123,826 | $123,826 |
| 2012 | $13,579 | $110,500 | $0 | $124,079 | $124,079 |
| 2011 | $14,000 | $130,000 | $0 | $144,000 | $144,000 |
| 2010 | $15,084 | $130,000 | $0 | $145,084 | $145,084 |
| 2009 | $16,014 | $160,000 | $0 | $176,014 | $176,014 |
Deed and Sales History
| 1 | 08/30/2017 | QCD | Quit Claim Deed | TAYLOR, BRADLEY W | TAYLOR TRUSTEE, BRADLEY WILLIAM | | | $0.00 | 31027 | 4429919 |
| 2 | 09/29/2009 | PRD | Personal Representatives Deed | TAYLOR, RAYMOND J | TAYLOR, BRADLEY W | | | $0.00 | 92307 | 4260959 |
| 3 | 01/01/1900 | OTHER | Other - Misc. Documents | Unknown | TAYLOR, RAYMOND J | | | $0.00 | 0 | 0 |
Payout Agreement
| No payout information available.. |