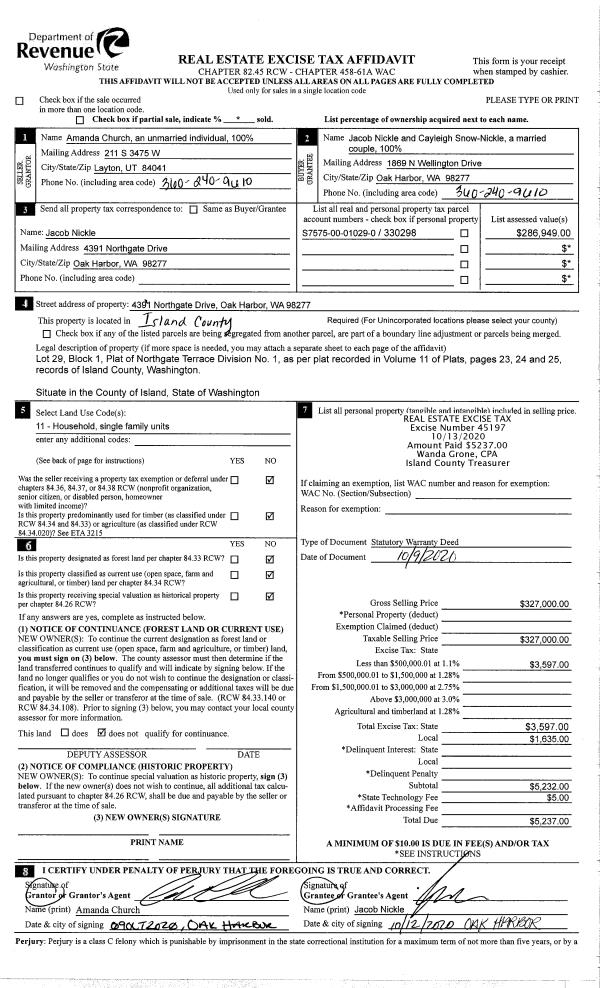
Property
Account |
| Property ID: | 141670 | Abbreviated Legal Description: | 50 - IN SESE & IN GL3&4 (LOT 22 & W1/2 L23 UNREC OLYMPIC VIEW TRS) BG WLN RD & SLN N/2 N/2 SE SE W600' N145' N60' NLN PRIV RD NWLY ALG RD 60' TPB N270' W150' S260' TO RD ALG RD TPB |
| Geographic ID: | R32929-137-3790 | Agent Code: | |
| Type: | Real | | |
| Tax Area: | 710 - APPRAISER-S Whid Schl Dist, outside Langley, improved & 1 acre or less | Land Use Code | 11 |
| Open Space: | N | DFL | N |
| Historic Property: | N | Remodel Property: | N |
| Multi-Family Redevelopment: | N | | |
| Township: | 29 | Section: | 29 |
| Range: | R3 |
Location |
| Address: | HUGHTAYLOR LN CLINTON, WA 98236 | Mapsco: | |
| Neighborhood: | Cycle 4 | Map ID: | 829 |
| Neighborhood CD: | 4 |
Owner |
| Name: | MALTBY, MARY DELILAH | Owner ID: | 288317 |
| Mailing Address: | CHRISTOPHER JOHN MALTBY 506 NE 94TH ST SEATTLE, WA 98115 | % Ownership: | 100.0000000000% |
| | | Exemptions: | |
Taxes and Assessment Details
Values
| (+) Improvement Homesite Value: | + | $0 | |
| (+) Improvement Non-Homesite Value: | + | $56,669 | |
| (+) Land Homesite Value: | + | $0 | |
| (+) Land Non-Homesite Value: | + | $260,000 | |
| (+) Curr Use (HS): | + | $0 | $0 |
| (+) Curr Use (NHS): | + | $0 | $0 |
| | | -------------------------- | |
| (=) Market Value: | = | $316,669 | |
| (–) Productivity Loss: | – | $0 | |
| | | -------------------------- | |
| (=) Subtotal: | = | $316,669 | |
| (+) Senior Appraised Value: | + | $0 | |
| (+) Non-Senior Appraised Value: | + | $316,669 | |
| | | -------------------------- | |
| (=) Total Appraised Value: | = | $316,669 | |
| (–) Senior Exemption Loss: | – | $0 | |
| (–) Exemption Loss: | – | $0 | |
| | | -------------------------- | |
| (=) Taxable Value: | = | $316,669 | |
Taxing Jurisdiction
| Owner: | MALTBY, MARY DELILAH | | |
| % Ownership: | 100.0000000000% | | |
| Total Value: | $316,669 | | |
| Tax Area: | 710 - APPRAISER-S Whid Schl Dist, outside Langley, improved & 1 acre or less |
| CF | Conservation Futures | 0.0316035091 | $316,669 | $316,669 | $10.01 | | |
| FIRE3 | Fire & Rescue Dist #3 S Whidbey GEN | 1.2004855531 | $316,669 | $316,669 | $380.16 | | |
| HOBOND | Hospital BOND | 0.1910887512 | $316,669 | $316,669 | $60.51 | | |
| HOGEN | Hospital GEN | 0.3902502903 | $316,669 | $316,669 | $123.58 | | |
| CE | County Current Expense | 0.3708482477 | $316,669 | $316,669 | $117.44 | | |
| CR | County Roads | 0.4584763726 | $316,669 | $316,669 | $145.19 | | |
| ISLANDEMS | Hospital GEN (EMS) | 0.5000000000 | $316,669 | $316,669 | $158.33 | | |
| LIB | Library Sno-Isle GEN | 0.3153421757 | $316,669 | $316,669 | $99.86 | | |
| PORTWHID | Port of S Whidbey GEN | 0.1094540357 | $316,669 | $316,669 | $34.66 | | |
| SCH206BOND | School 206 BOND | 0.3161759235 | $316,669 | $316,669 | $100.12 | | |
| SCH206MO | School 206 Enrichment | 0.4547169547 | $316,669 | $316,669 | $143.99 | | |
| ST | State School | 1.3035497053 | $316,669 | $316,669 | $412.79 | | |
| ST2 | State School Part 2 | 0.8169543533 | $316,669 | $316,669 | $258.70 | | |
| SWHIDPRBD | P & R S Whidbey BOND | 0.0152817568 | $316,669 | $316,669 | $4.84 | | |
| SWHIDPRBD2 | P & R S Whidbey BOND2 | 0.0138911264 | $316,669 | $316,669 | $4.40 | | |
| SWHIDPRMT | P & R S Whidbey GEN | 0.2053334452 | $316,669 | $316,669 | $65.02 | | |
| | Total Tax Rate: | 6.6934522006 | | | | | |
| | | | | Taxes w/Current Exemptions: | $2,119.60 | | |
| | | | | Taxes w/o Exemptions: | $2,119.60 | | |
Improvement / Building
| Improvement #1: | RESIDENTIAL | State Code: | Y | 360.0 sqft | Value: | $56,669 |
| Bathrooms: | 1 | Bedrooms: | 1 | | Ceiling: | ACOUSTIC FURRED | Exterior Wall/Cover: | WOOD SIDING | | Floor Covering: | VINYL 100% | Floor Structure: | WOOD W/SUBFLOOR | | Foundation: | WOOD BLOCKS | Heating: | BASEBOARD ELECTRIC | | Interior Finish: | DRYWALL PAINT | Plumbing Fixture Cnt: | 5 | | Roof Slope: | 8" IN 12" | Roof Structure/Cover: | CJ WOOD SHAKES |
|
| | Type | Description | Class CD | Sub Class CD | Year Built | Area |
| | BAS | BASE/MAIN FLOOR | 2 | 0 | 1945 | 360.0 |
| | OWP | OPEN WOOD PORCH W/STEPS | 2 | 0 | 1945 | 316.0 |
Sketch
Property Image
Land
| 1 | 16 | AC (00.51-01.00) | 0.0000 | 39639.60 | 0.00 | 0.00 | 1.00 | $260,000 | $0 |
Roll Value History
| 2026 | N/A | N/A | N/A | N/A | N/A |
| 2025 | $56,669 | $260,000 | $0 | $316,669 | $316,669 |
| 2024 | $58,799 | $250,000 | $0 | $308,799 | $308,799 |
| 2023 | $59,713 | $240,000 | $0 | $299,713 | $299,713 |
| 2022 | $54,900 | $240,000 | $0 | $294,900 | $294,900 |
| 2021 | $48,460 | $160,000 | $0 | $208,460 | $208,460 |
| 2020 | $0 | $100,000 | $0 | $100,000 | $100,000 |
| 2019 | $0 | $100,000 | $0 | $100,000 | $100,000 |
| 2018 | $0 | $100,000 | $0 | $100,000 | $100,000 |
| 2017 | $0 | $70,000 | $0 | $70,000 | $70,000 |
| 2016 | $0 | $70,000 | $0 | $70,000 | $70,000 |
| 2015 | $0 | $70,000 | $0 | $70,000 | $70,000 |
| 2014 | $0 | $66,400 | $0 | $66,400 | $66,400 |
| 2013 | $0 | $66,400 | $0 | $66,400 | $66,400 |
| 2012 | $0 | $66,400 | $0 | $66,400 | $66,400 |
| 2011 | $0 | $66,400 | $0 | $66,400 | $66,400 |
| 2010 | $0 | $66,400 | $0 | $66,400 | $66,400 |
| 2009 | $0 | $80,000 | $0 | $80,000 | $80,000 |
| 2008 | $0 | $65,000 | $0 | $65,000 | $65,000 |
| 2007 | $0 | $65,000 | $0 | $65,000 | $65,000 |
Deed and Sales History
| 1 | 12/21/2018 | QCD | Quit Claim Deed | MALTBY TRUSTEE, NANCY E | MALTBY, MARY DELILAH | | | $0.00 | 37070 | 4456969 |
| 2 | 04/12/2010 | QCD | Quit Claim Deed | MALTBY, BILLY B | MALTBY TRUSTEE, NANCY E | | | $0.00 | 843 | 4271999 |
| 3 | 04/18/2001 | QCD | Quit Claim Deed | MALTBY, BILLY B | MALTBY, BILLY B | | | $0.00 | 11375 | 20030525 |
| 4 | 07/01/1966 | OTHER | Other - Misc. Documents | Unknown | MALTBY, BILLY B | | | $0.00 | 23743 | 0 |
Payout Agreement
| No payout information available.. |