Property
Account |
| Property ID: | 141876 | Abbreviated Legal Description: | 44 - S165' OF GL2 EX BG SE CR GL2 N165' TPB W527.55' N24' SLN JOHNSON TR E TPB & SW NE SLY OF SILLS RD SUB EZ |
| Geographic ID: | R32929-279-1800 | Agent Code: | |
| Type: | Real | | |
| Tax Area: | 712 - APPRAISER-S Whid Schl Dist, outside Langley, improved, greater than 1 acre | Land Use Code | 11 |
| Open Space: | N | DFL | N |
| Historic Property: | N | Remodel Property: | N |
| Multi-Family Redevelopment: | N | | |
| Township: | 29 | Section: | 29 |
| Range: | R3 |
Location |
| Address: | 6600 SILLS RD CLINTON, WA 98236 | Mapsco: | |
| Neighborhood: | Cycle 4 | Map ID: | 830 |
| Neighborhood CD: | 4 |
Owner |
| Name: | MATHEWS, JOHN WAYNE | Owner ID: | 285975 |
| Mailing Address: | ANDREA WOODWARD 18901 43RD AVE SE BOTHELL, WA 98012 | % Ownership: | 100.0000000000% |
| | | Exemptions: | |
Taxes and Assessment Details
Values
| (+) Improvement Homesite Value: | + | $0 | |
| (+) Improvement Non-Homesite Value: | + | $1,064,635 | |
| (+) Land Homesite Value: | + | $0 | |
| (+) Land Non-Homesite Value: | + | $750,000 | |
| (+) Curr Use (HS): | + | $0 | $0 |
| (+) Curr Use (NHS): | + | $0 | $0 |
| | | -------------------------- | |
| (=) Market Value: | = | $1,814,635 | |
| (–) Productivity Loss: | – | $0 | |
| | | -------------------------- | |
| (=) Subtotal: | = | $1,814,635 | |
| (+) Senior Appraised Value: | + | $0 | |
| (+) Non-Senior Appraised Value: | + | $1,814,635 | |
| | | -------------------------- | |
| (=) Total Appraised Value: | = | $1,814,635 | |
| (–) Senior Exemption Loss: | – | $0 | |
| (–) Exemption Loss: | – | $0 | |
| | | -------------------------- | |
| (=) Taxable Value: | = | $1,814,635 | |
Taxing Jurisdiction
| Owner: | MATHEWS, JOHN WAYNE | | |
| % Ownership: | 100.0000000000% | | |
| Total Value: | $1,814,635 | | |
| Tax Area: | 712 - APPRAISER-S Whid Schl Dist, outside Langley, improved, greater than 1 acre |
| CF | Conservation Futures | 0.0316035091 | $1,814,635 | $1,814,635 | $57.35 | | |
| FIRE3 | Fire & Rescue Dist #3 S Whidbey GEN | 1.2004855531 | $1,814,635 | $1,814,635 | $2,178.44 | | |
| HOBOND | Hospital BOND | 0.1910887512 | $1,814,635 | $1,814,635 | $346.76 | | |
| HOGEN | Hospital GEN | 0.3902502903 | $1,814,635 | $1,814,635 | $708.16 | | |
| CE | County Current Expense | 0.3708482477 | $1,814,635 | $1,814,635 | $672.95 | | |
| CR | County Roads | 0.4584763726 | $1,814,635 | $1,814,635 | $831.97 | | |
| ISLANDEMS | Hospital GEN (EMS) | 0.5000000000 | $1,814,635 | $1,814,635 | $907.32 | | |
| LIB | Library Sno-Isle GEN | 0.3153421757 | $1,814,635 | $1,814,635 | $572.23 | | |
| PORTWHID | Port of S Whidbey GEN | 0.1094540357 | $1,814,635 | $1,814,635 | $198.62 | | |
| SCH206BOND | School 206 BOND | 0.3161759235 | $1,814,635 | $1,814,635 | $573.74 | | |
| SCH206MO | School 206 Enrichment | 0.4547169547 | $1,814,635 | $1,814,635 | $825.15 | | |
| ST | State School | 1.3035497053 | $1,814,635 | $1,814,635 | $2,365.47 | | |
| ST2 | State School Part 2 | 0.8169543533 | $1,814,635 | $1,814,635 | $1,482.47 | | |
| SWHIDPRBD | P & R S Whidbey BOND | 0.0152817568 | $1,814,635 | $1,814,635 | $27.73 | | |
| SWHIDPRBD2 | P & R S Whidbey BOND2 | 0.0138911264 | $1,814,635 | $1,814,635 | $25.21 | | |
| SWHIDPRMT | P & R S Whidbey GEN | 0.2053334452 | $1,814,635 | $1,814,635 | $372.61 | | |
| | Total Tax Rate: | 6.6934522006 | | | | | |
| | | | | Taxes w/Current Exemptions: | $12,146.18 | | |
| | | | | Taxes w/o Exemptions: | $12,146.18 | | |
Improvement / Building
| Improvement #1: | RESIDENTIAL | State Code: | Y | 3692.0 sqft | Value: | $445,310 |
| Bathrooms: | 3 | Bedrooms: | 5 | | Ceiling: | BEAM PAINTED | Exterior Wall/Cover: | SHINGLE | | Floor Covering: | CARPET/VINYL 80-20 | Floor Structure: | WOOD W/SUBFLOOR | | Foundation: | CONCRETE BLOCKS | Heating: | BASEBOARD ELECTRIC | | Interior Finish: | DRYWALL PAINT | Plumbing Fixture Cnt: | 14 | | Roof Slope: | 8" IN 12" | Roof Structure/Cover: | BEAM ASPHALT |
|
| | Type | Description | Class CD | Sub Class CD | Year Built | Area |
| | BAS | BASE/MAIN FLOOR | 3 | 0 | 1962 | 1922.0 |
| | OP1 | OPEN PORCH SLAB | 3 | 0 | 1962 | 540.0 |
| | UPS | UPPER STORY | 3 | 0 | 1962 | 1258.0 |
| | OWC | OPEN WOOD PORCH W/STEPS/ROOF/C | 3 | 0 | 1962 | 984.0 |
| | UPH | HALF STORY | 3 | 0 | 1962 | 512.0 |
| | DGR | DETACHED GARAGE | 3 | 0 | 1962 | 378.0 |
| Improvement #2: | RESIDENTIAL | State Code: | Y | 3266.5 sqft | Value: | $619,325 |
| Bathrooms: | 3 | Bedrooms: | 1 | | Ceiling: | BEAM PAINTED | Exterior Wall/Cover: | SHINGLE | | Floor Covering: | HARDWOOD/CARP 60-40 | Floor Structure: | WOOD W/SUBFLOOR | | Foundation: | CONCRETE | Heating: | FHA GAS | | Interior Finish: | DRYWALL PAINT | Plumbing Fixture Cnt: | 14 | | Roof Slope: | 8" IN 12" | Roof Structure/Cover: | BEAM ASPHALT |
|
| | Type | Description | Class CD | Sub Class CD | Year Built | Area |
| | BAS | BASE/MAIN FLOOR | 5 | 0 | 1995 | 1225.0 |
| | OP4 | OPEN PORCH W/CEILING-ROOF | 5 | 0 | 1995 | 107.2 |
| | AGR | ATTACHED GARAGE | 5 | 0 | 1995 | 329.0 |
| | UPS | UPPER STORY | 5 | 0 | 1995 | 816.5 |
| | OWP | OPEN WOOD PORCH W/STEPS | 5 | 0 | 1995 | 1033.7 |
| | DWN | DOWNSTAIRS LIVING AREA | 5 | 0 | 1995 | 1225.0 |
Sketch
Property Image
Land
| 1 | HB | HIGH BLUFF | 0.0000 | 0.00 | 95.00 | 0.00 | 1.00 | $750,000 | $0 |
Roll Value History
| 2026 | N/A | N/A | N/A | N/A | N/A |
| 2025 | $1,064,635 | $750,000 | $0 | $1,814,635 | $1,814,635 |
| 2024 | $1,070,465 | $700,000 | $0 | $1,770,465 | $1,770,465 |
| 2023 | $1,083,981 | $700,000 | $0 | $1,783,981 | $1,783,981 |
| 2022 | $993,799 | $650,000 | $0 | $1,643,799 | $1,643,799 |
| 2021 | $874,835 | $550,000 | $0 | $1,424,835 | $1,424,835 |
| 2020 | $854,172 | $500,000 | $0 | $1,354,172 | $1,354,172 |
| 2019 | $717,183 | $600,000 | $0 | $1,317,183 | $1,317,183 |
| 2018 | $641,249 | $600,000 | $0 | $1,241,249 | $1,241,249 |
| 2017 | $645,474 | $600,000 | $0 | $1,245,474 | $1,245,474 |
| 2016 | $653,919 | $600,000 | $0 | $1,253,919 | $1,253,919 |
| 2015 | $662,364 | $600,000 | $0 | $1,262,364 | $1,262,364 |
| 2014 | $672,809 | $600,000 | $0 | $1,272,809 | $1,272,809 |
| 2013 | $681,211 | $605,997 | $0 | $1,287,208 | $1,287,208 |
| 2012 | $689,613 | $605,997 | $0 | $1,295,610 | $1,295,610 |
| 2011 | $698,016 | $605,997 | $0 | $1,304,013 | $1,304,013 |
| 2010 | $733,249 | $605,997 | $0 | $1,339,246 | $1,339,246 |
| 2009 | $761,209 | $728,362 | $0 | $1,489,571 | $1,489,571 |
| 2008 | $652,720 | $728,362 | $0 | $1,381,082 | $1,381,082 |
| 2007 | $658,918 | $728,362 | $0 | $1,387,280 | $1,387,280 |
Deed and Sales History
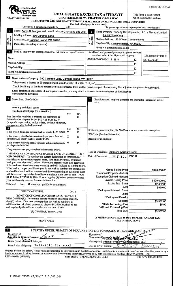
| 1 | 07/02/2018 | WD | Warranty Deed | MEAD, KEVIN C | MATHEWS, JOHN WAYNE | | | $1,300,000.00 | 34964 | 4447848 |
| 2 | 05/31/2006 | WD | Warranty Deed | ELLIOTT, RICHARD W | MEAD, KEVIN C | | | $1,475,000.00 | 62428 | 4172117 |
| 3 | 11/01/1978 | OTHER | Other - Misc. Documents | Unknown | ELLIOTT, RICHARD W | | | $500.00 | 86269 | 345246 |
Payout Agreement
| No payout information available.. |