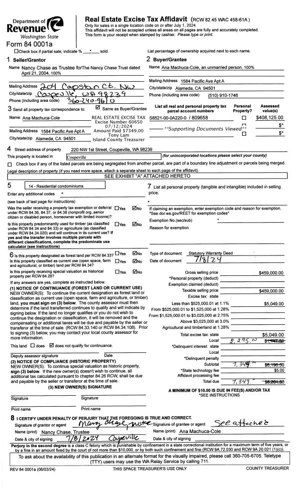
Property
Account |
| Property ID: | 141947 | Abbreviated Legal Description: | 2 - IN S 1/2 NWNE |
| Geographic ID: | R32929-431-3180 | Agent Code: | |
| Type: | Real | | |
| Tax Area: | 719 - APPRAISER-S Whid Schl Dist, outside Langley, vacant & 50 acres or less | Land Use Code | 88 |
| Open Space: | N | DFL | Y |
| Historic Property: | N | Remodel Property: | N |
| Multi-Family Redevelopment: | N | | |
| Township: | 29 | Section: | 29 |
| Range: | R3 |
Location |
| Address: | CLINTON, WA 98236 | Mapsco: | |
| Neighborhood: | Cycle 4 | Map ID: | 831 |
| Neighborhood CD: | 4 |
Owner |
| Name: | WINDECKER TTEE, ROBERT A | Owner ID: | 310446 |
| Mailing Address: | SALLY H WINDECKER TTEE PO BOX 100 CLINTON, WA 98236 | % Ownership: | 100.0000000000% |
| | | Exemptions: | |
Taxes and Assessment Details
Values
| (+) Improvement Homesite Value: | + | $0 | |
| (+) Improvement Non-Homesite Value: | + | $0 | |
| (+) Land Homesite Value: | + | $0 | |
| (+) Land Non-Homesite Value: | + | $0 | |
| (+) Curr Use (HS): | + | $0 | $0 |
| (+) Curr Use (NHS): | + | $390,000 | $2,970 |
| | | -------------------------- | |
| (=) Market Value: | = | $390,000 | |
| (–) Productivity Loss: | – | $387,030 | |
| | | -------------------------- | |
| (=) Subtotal: | = | $2,970 | |
| (+) Senior Appraised Value: | + | $0 | |
| (+) Non-Senior Appraised Value: | + | $2,970 | |
| | | -------------------------- | |
| (=) Total Appraised Value: | = | $2,970 | |
| (–) Senior Exemption Loss: | – | $0 | |
| (–) Exemption Loss: | – | $0 | |
| | | -------------------------- | |
| (=) Taxable Value: | = | $2,970 | |
Taxing Jurisdiction
| Owner: | WINDECKER TTEE, ROBERT A | | |
| % Ownership: | 100.0000000000% | | |
| Total Value: | $390,000 | | |
| Tax Area: | 719 - APPRAISER-S Whid Schl Dist, outside Langley, vacant & 50 acres or less |
| CF | Conservation Futures | 0.0316035091 | $2,970 | $2,970 | $0.09 | | |
| HOBOND | Hospital BOND | 0.1910887512 | $2,970 | $2,970 | $0.57 | | |
| HOGEN | Hospital GEN | 0.3902502903 | $2,970 | $2,970 | $1.16 | | |
| CE | County Current Expense | 0.3708482477 | $2,970 | $2,970 | $1.10 | | |
| CR | County Roads | 0.4584763726 | $2,970 | $2,970 | $1.36 | | |
| ISLANDEMS | Hospital GEN (EMS) | 0.5000000000 | $2,970 | $2,970 | $1.49 | | |
| LIB | Library Sno-Isle GEN | 0.3153421757 | $2,970 | $2,970 | $0.94 | | |
| PORTWHID | Port of S Whidbey GEN | 0.1094540357 | $2,970 | $2,970 | $0.33 | | |
| SCH206BOND | School 206 BOND | 0.3161759235 | $2,970 | $2,970 | $0.94 | | |
| SCH206MO | School 206 Enrichment | 0.4547169547 | $2,970 | $2,970 | $1.35 | | |
| ST | State School | 1.3035497053 | $2,970 | $2,970 | $3.87 | | |
| ST2 | State School Part 2 | 0.8169543533 | $2,970 | $2,970 | $2.43 | | |
| SWHIDPRBD | P & R S Whidbey BOND | 0.0152817568 | $2,970 | $2,970 | $0.05 | | |
| SWHIDPRBD2 | P & R S Whidbey BOND2 | 0.0138911264 | $2,970 | $2,970 | $0.04 | | |
| SWHIDPRMT | P & R S Whidbey GEN | 0.2053334452 | $2,970 | $2,970 | $0.61 | | |
| | Total Tax Rate: | 5.4929666475 | | | | | |
| | | | | Taxes w/Current Exemptions: | $16.33 | | |
| | | | | Taxes w/o Exemptions: | $16.33 | | |
Improvement / Building
Sketch
| No sketches available for this property. |
Property Image
Land
| 1 | 35 | AC (10.00-30.99) | 17.3200 | 754459.20 | 0.00 | 0.00 | 1.00 | $337,740 | $2,581 |
| 2 | 35 | AC (10.00-30.99) | 2.6800 | 116740.80 | 0.00 | 0.00 | 1.00 | $52,260 | $389 |
Roll Value History
| 2026 | N/A | N/A | N/A | N/A | N/A |
| 2025 | $0 | $390,000 | $2,970 | $2,970 | $2,970 |
| 2024 | $0 | $360,000 | $2,989 | $2,989 | $2,989 |
| 2023 | $0 | $320,000 | $2,869 | $2,869 | $2,869 |
| 2022 | $0 | $300,000 | $2,869 | $2,869 | $2,869 |
| 2021 | $0 | $210,000 | $2,869 | $2,869 | $2,869 |
| 2020 | $0 | $210,000 | $2,869 | $2,869 | $2,869 |
| 2019 | $0 | $210,000 | $2,769 | $2,769 | $2,769 |
| 2018 | $0 | $200,000 | $2,729 | $2,729 | $2,729 |
| 2017 | $0 | $200,000 | $2,729 | $2,729 | $2,729 |
| 2016 | $0 | $200,000 | $1,940 | $1,940 | $1,940 |
| 2015 | $0 | $200,000 | $1,940 | $1,940 | $1,940 |
| 2014 | $0 | $170,000 | $1,940 | $1,940 | $1,940 |
| 2013 | $0 | $170,000 | $1,940 | $1,940 | $1,940 |
| 2012 | $0 | $170,000 | $1,940 | $1,940 | $1,940 |
| 2011 | $0 | $200,000 | $1,940 | $1,940 | $1,940 |
| 2010 | $0 | $200,000 | $1,940 | $1,940 | $1,940 |
| 2009 | $0 | $240,000 | $1,940 | $1,940 | $1,940 |
| 2008 | $0 | $210,000 | $1,940 | $1,940 | $1,940 |
| 2007 | $0 | $183,340 | $1,940 | $1,940 | $1,940 |
Deed and Sales History
| 1 | 10/18/2023 | QCD | Quit Claim Deed | WINDECKER, ROBERT A | WINDECKER TTEE, ROBERT A | | | $0.00 | 58304 | 4565979 |
Payout Agreement
| No payout information available.. |