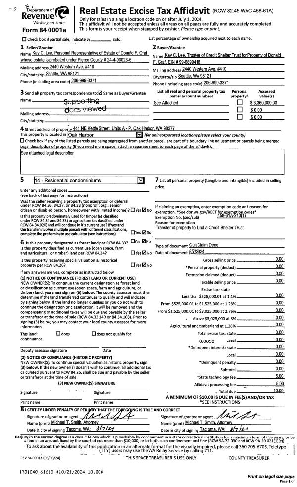
Property
Account |
| Property ID: | 141992 | Abbreviated Legal Description: | 52 - IN GL1:BG NWCR GL1 E326.2'S785'W TO ML NWLY ALG ML TO WLN GL 1 N TPB INCL EZ |
| Geographic ID: | R32929-495-0180 | Agent Code: | |
| Type: | Real | | |
| Tax Area: | 712 - APPRAISER-S Whid Schl Dist, outside Langley, improved, greater than 1 acre | Land Use Code | 11 |
| Open Space: | N | DFL | N |
| Historic Property: | N | Remodel Property: | N |
| Multi-Family Redevelopment: | N | | |
| Township: | 29 | Section: | 29 |
| Range: | R3 |
Location |
| Address: | 2820 EWING RD CLINTON, WA 98236 | Mapsco: | |
| Neighborhood: | Cycle 4 | Map ID: | 830 |
| Neighborhood CD: | 4 |
Owner |
| Name: | CURTICE, MELANIE K | Owner ID: | 312844 |
| Mailing Address: | DENISE M BOUDREAU 2820 EWING RD CLINTON, WA 98236 | % Ownership: | 100.0000000000% |
| | | Exemptions: | |
Taxes and Assessment Details
Values
| (+) Improvement Homesite Value: | + | $0 | |
| (+) Improvement Non-Homesite Value: | + | $1,072,271 | |
| (+) Land Homesite Value: | + | $0 | |
| (+) Land Non-Homesite Value: | + | $900,000 | |
| (+) Curr Use (HS): | + | $0 | $0 |
| (+) Curr Use (NHS): | + | $0 | $0 |
| | | -------------------------- | |
| (=) Market Value: | = | $1,972,271 | |
| (–) Productivity Loss: | – | $0 | |
| | | -------------------------- | |
| (=) Subtotal: | = | $1,972,271 | |
| (+) Senior Appraised Value: | + | $0 | |
| (+) Non-Senior Appraised Value: | + | $1,972,271 | |
| | | -------------------------- | |
| (=) Total Appraised Value: | = | $1,972,271 | |
| (–) Senior Exemption Loss: | – | $0 | |
| (–) Exemption Loss: | – | $0 | |
| | | -------------------------- | |
| (=) Taxable Value: | = | $1,972,271 | |
Taxing Jurisdiction
| Owner: | CURTICE, MELANIE K | | |
| % Ownership: | 100.0000000000% | | |
| Total Value: | $1,972,271 | | |
| Tax Area: | 712 - APPRAISER-S Whid Schl Dist, outside Langley, improved, greater than 1 acre |
| CF | Conservation Futures | 0.0316035091 | $1,972,271 | $1,972,271 | $62.33 | | |
| FIRE3 | Fire & Rescue Dist #3 S Whidbey GEN | 1.2004855531 | $1,972,271 | $1,972,271 | $2,367.68 | | |
| HOBOND | Hospital BOND | 0.1910887512 | $1,972,271 | $1,972,271 | $376.88 | | |
| HOGEN | Hospital GEN | 0.3902502903 | $1,972,271 | $1,972,271 | $769.68 | | |
| CE | County Current Expense | 0.3708482477 | $1,972,271 | $1,972,271 | $731.41 | | |
| CR | County Roads | 0.4584763726 | $1,972,271 | $1,972,271 | $904.24 | | |
| ISLANDEMS | Hospital GEN (EMS) | 0.5000000000 | $1,972,271 | $1,972,271 | $986.14 | | |
| LIB | Library Sno-Isle GEN | 0.3153421757 | $1,972,271 | $1,972,271 | $621.94 | | |
| PORTWHID | Port of S Whidbey GEN | 0.1094540357 | $1,972,271 | $1,972,271 | $215.87 | | |
| SCH206BOND | School 206 BOND | 0.3161759235 | $1,972,271 | $1,972,271 | $623.58 | | |
| SCH206MO | School 206 Enrichment | 0.4547169547 | $1,972,271 | $1,972,271 | $896.83 | | |
| ST | State School | 1.3035497053 | $1,972,271 | $1,972,271 | $2,570.95 | | |
| ST2 | State School Part 2 | 0.8169543533 | $1,972,271 | $1,972,271 | $1,611.26 | | |
| SWHIDPRBD | P & R S Whidbey BOND | 0.0152817568 | $1,972,271 | $1,972,271 | $30.14 | | |
| SWHIDPRBD2 | P & R S Whidbey BOND2 | 0.0138911264 | $1,972,271 | $1,972,271 | $27.40 | | |
| SWHIDPRMT | P & R S Whidbey GEN | 0.2053334452 | $1,972,271 | $1,972,271 | $404.97 | | |
| | Total Tax Rate: | 6.6934522006 | | | | | |
| | | | | Taxes w/Current Exemptions: | $13,201.30 | | |
| | | | | Taxes w/o Exemptions: | $13,201.30 | | |
Improvement / Building
| Improvement #1: | RESIDENTIAL | State Code: | Y | 4963.5 sqft | Value: | $1,072,271 |
| Bathrooms: | 3.5 | Bedrooms: | 3 | | Ceiling: | DRYWALL PAINTED | Exterior Wall/Cover: | CEMENT FIBER | | Floor Covering: | HARDWOOD/CARP 80-20 | Floor Structure: | WOOD W/SUBFLOOR | | Foundation: | CONCRETE | Heating: | RADIANT FLOOR | | Interior Finish: | DRYWALL PAINT | Plumbing Fixture Cnt: | 17 | | Roof Slope: | 8" IN 12" | Roof Structure/Cover: | CJ ASPHALT |
|
| | Type | Description | Class CD | Sub Class CD | Year Built | Area |
| | BAS | BASE/MAIN FLOOR | 5 | 0 | 2002 | 2890.9 |
| | DWN | DOWNSTAIRS LIVING AREA | 5 | 0 | 2002 | 740.7 |
| | OP4 | OPEN PORCH W/CEILING-ROOF | 5 | 0 | 2002 | 168.6 |
| | OP4 | OPEN PORCH W/CEILING-ROOF | 5 | 0 | 2002 | 473.5 |
| | DGR | DETACHED GARAGE | 5 | 0 | 2002 | 623.8 |
| | UPS | UPPER STORY | 5 | 0 | 2002 | 1331.9 |
| | OWP | OPEN WOOD PORCH W/STEPS | 5 | 0 | 2002 | 409.1 |
| | OWC | OPEN WOOD PORCH W/STEPS/ROOF/C | 5 | 0 | 2002 | 115.5 |
| | UB8 | BASEMENT UNFINISHED 8" | 5 | 0 | 2002 | 1064.0 |
Sketch
Property Image
Land
| 1 | HB | HIGH BLUFF | 5.0000 | 217800.00 | 130.00 | 0.00 | 1.00 | $900,000 | $0 |
Roll Value History
| 2026 | N/A | N/A | N/A | N/A | N/A |
| 2025 | $1,072,271 | $900,000 | $0 | $1,972,271 | $1,972,271 |
| 2024 | $1,012,479 | $850,000 | $0 | $1,862,479 | $1,862,479 |
| 2023 | $1,063,491 | $850,000 | $0 | $1,913,491 | $1,913,491 |
| 2022 | $974,074 | $800,000 | $0 | $1,774,074 | $1,774,074 |
| 2021 | $856,609 | $650,000 | $0 | $1,506,609 | $1,506,609 |
| 2020 | $799,279 | $600,000 | $0 | $1,399,279 | $1,399,279 |
| 2019 | $680,871 | $600,000 | $0 | $1,280,871 | $1,280,871 |
| 2018 | $682,914 | $600,000 | $0 | $1,282,914 | $1,282,914 |
| 2017 | $686,999 | $600,000 | $0 | $1,286,999 | $1,286,999 |
| 2016 | $695,178 | $600,000 | $0 | $1,295,178 | $1,295,178 |
| 2015 | $703,000 | $600,000 | $0 | $1,303,000 | $1,303,000 |
| 2014 | $729,755 | $500,000 | $0 | $1,229,755 | $1,229,755 |
| 2013 | $738,144 | $485,217 | $0 | $1,223,361 | $1,223,361 |
| 2012 | $746,530 | $485,217 | $0 | $1,231,747 | $1,231,747 |
| 2011 | $761,461 | $485,217 | $0 | $1,246,678 | $1,246,678 |
| 2010 | $863,958 | $485,217 | $0 | $1,349,175 | $1,349,175 |
| 2009 | $890,932 | $583,193 | $0 | $1,474,125 | $1,474,125 |
| 2008 | $805,096 | $536,731 | $0 | $1,341,827 | $1,341,827 |
| 2007 | $805,754 | $515,154 | $0 | $1,320,908 | $1,320,908 |
Deed and Sales History
| 1 | 06/17/2024 | WD | Warranty Deed | RAMSDEN, STEPHEN B | CURTICE, MELANIE K | | | $2,416,705.00 | 60394 | 4573708 |
| 2 | 08/19/2019 | WD | Warranty Deed | SHOUP, DAVID E | RAMSDEN, STEPHEN B | | | $1,540,000.00 | 39948 | 4469833 |
| 3 | 06/03/1999 | WD | Warranty Deed | Unknown | SHOUP, DAVID E | | | $417,500.00 | 92253 | 99013967 |
Payout Agreement
| No payout information available.. |