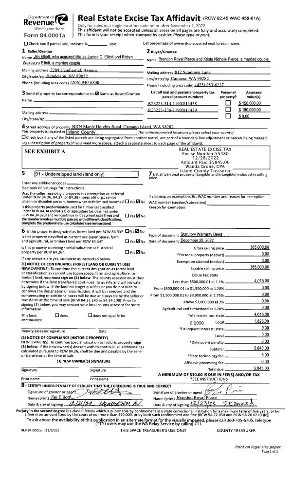
Property
Account |
| Property ID: | 142394 | Abbreviated Legal Description: | 16 - S/2 SE SW EX BG SECR SW/4 N 285'TPB; N 220'; W ALG FENCE AS OF 11/19/71 152';SLY ALG FENCE 207'; ELY 151' TPB EX CO RD |
| Geographic ID: | R32933-035-2020 | Agent Code: | |
| Type: | Real | | |
| Tax Area: | 712 - APPRAISER-S Whid Schl Dist, outside Langley, improved, greater than 1 acre | Land Use Code | 83 |
| Open Space: | Y | DFL | N |
| Historic Property: | N | Remodel Property: | N |
| Multi-Family Redevelopment: | N | | |
| Township: | 29 | Section: | 33 |
| Range: | R3 |
Location |
| Address: | 7174 BAILEY RD CLINTON, WA 98236 | Mapsco: | |
| Neighborhood: | Cycle 4 | Map ID: | 834 |
| Neighborhood CD: | 4 |
Owner |
| Name: | COLLINS, ANNE MARIE | Owner ID: | 295329 |
| Mailing Address: | 7174 BAILEY RD CLINTON, WA 98236 | % Ownership: | 100.0000000000% |
| | | Exemptions: | |
Taxes and Assessment Details
Values
| (+) Improvement Homesite Value: | + | $0 | |
| (+) Improvement Non-Homesite Value: | + | $373,589 | |
| (+) Land Homesite Value: | + | $0 | |
| (+) Land Non-Homesite Value: | + | $260,000 | |
| (+) Curr Use (HS): | + | $0 | $0 |
| (+) Curr Use (NHS): | + | $140,000 | $11,026 |
| | | -------------------------- | |
| (=) Market Value: | = | $773,589 | |
| (–) Productivity Loss: | – | $128,974 | |
| | | -------------------------- | |
| (=) Subtotal: | = | $644,615 | |
| (+) Senior Appraised Value: | + | $0 | |
| (+) Non-Senior Appraised Value: | + | $644,615 | |
| | | -------------------------- | |
| (=) Total Appraised Value: | = | $644,615 | |
| (–) Senior Exemption Loss: | – | $0 | |
| (–) Exemption Loss: | – | $0 | |
| | | -------------------------- | |
| (=) Taxable Value: | = | $644,615 | |
Taxing Jurisdiction
| Owner: | COLLINS, ANNE MARIE | | |
| % Ownership: | 100.0000000000% | | |
| Total Value: | $773,589 | | |
| Tax Area: | 712 - APPRAISER-S Whid Schl Dist, outside Langley, improved, greater than 1 acre |
| CF | Conservation Futures | 0.0316035091 | $644,615 | $644,615 | $20.37 | | |
| FIRE3 | Fire & Rescue Dist #3 S Whidbey GEN | 1.2004855531 | $644,615 | $644,615 | $773.85 | | |
| HOBOND | Hospital BOND | 0.1910887512 | $644,615 | $644,615 | $123.18 | | |
| HOGEN | Hospital GEN | 0.3902502903 | $644,615 | $644,615 | $251.56 | | |
| CE | County Current Expense | 0.3708482477 | $644,615 | $644,615 | $239.05 | | |
| CR | County Roads | 0.4584763726 | $644,615 | $644,615 | $295.54 | | |
| ISLANDEMS | Hospital GEN (EMS) | 0.5000000000 | $644,615 | $644,615 | $322.31 | | |
| LIB | Library Sno-Isle GEN | 0.3153421757 | $644,615 | $644,615 | $203.27 | | |
| PORTWHID | Port of S Whidbey GEN | 0.1094540357 | $644,615 | $644,615 | $70.56 | | |
| SCH206BOND | School 206 BOND | 0.3161759235 | $644,615 | $644,615 | $203.81 | | |
| SCH206MO | School 206 Enrichment | 0.4547169547 | $644,615 | $644,615 | $293.12 | | |
| ST | State School | 1.3035497053 | $644,615 | $644,615 | $840.29 | | |
| ST2 | State School Part 2 | 0.8169543533 | $644,615 | $644,615 | $526.62 | | |
| SWHIDPRBD | P & R S Whidbey BOND | 0.0152817568 | $644,615 | $644,615 | $9.85 | | |
| SWHIDPRBD2 | P & R S Whidbey BOND2 | 0.0138911264 | $644,615 | $644,615 | $8.95 | | |
| SWHIDPRMT | P & R S Whidbey GEN | 0.2053334452 | $644,615 | $644,615 | $132.36 | | |
| | Total Tax Rate: | 6.6934522006 | | | | | |
| | | | | Taxes w/Current Exemptions: | $4,314.69 | | |
| | | | | Taxes w/o Exemptions: | $4,314.69 | | |
Improvement / Building
| Improvement #1: | RESIDENTIAL | State Code: | Y | 2744.0 sqft | Value: | $373,589 |
| Bathrooms: | 2.5 | Bedrooms: | 3 | | Ceiling: | BEAM PAINTED | Cooling: | HEAT PUMP/CONV/V | | Exterior Wall/Cover: | WOOD SIDING | Floor Covering: | HARDWOOD/CARP 20-80 | | Floor Structure: | WOOD W/SUBFLOOR | Foundation: | CONCRETE | | Interior Finish: | DRYWALL PAINT | Plumbing Fixture Cnt: | 11 | | Roof Slope: | 4" IN 12" | Roof Structure/Cover: | BEAM ASPHALT |
|
| | Type | Description | Class CD | Sub Class CD | Year Built | Area |
| | BAS | BASE/MAIN FLOOR | 3 | 0 | 1984 | 1517.0 |
| | DWN | DOWNSTAIRS LIVING AREA | 3 | 0 | 1984 | 1227.0 |
| | OP1 | OPEN PORCH SLAB | 3 | 0 | 1984 | 96.0 |
| | OP4 | OPEN PORCH W/CEILING-ROOF | 3 | 0 | 1984 | 20.0 |
| | DGR | DETACHED GARAGE | 3 | 0 | 1984 | 720.0 |
| | AGR | ATTACHED GARAGE | 3 | 0 | 1984 | 600.0 |
| | BGR | BASEMENT GARAGE | 3 | 0 | 1984 | 300.0 |
| | OWP | OPEN WOOD PORCH W/STEPS | 3 | 0 | 1984 | 652.0 |
Sketch
Property Image
Land
| 1 | 83 | OPEN AGRICULTURE | 18.0500 | 786258.00 | 18.05 | 0.00 | 1.00 | $140,000 | $11,026 |
| 2 | HS | HOMESITE | 1.0000 | 43560.00 | 0.00 | 0.00 | 1.00 | $260,000 | $0 |
Roll Value History
| 2026 | N/A | N/A | N/A | N/A | N/A |
| 2025 | $373,589 | $400,000 | $11,026 | $644,615 | $644,615 |
| 2024 | $372,326 | $360,000 | $11,026 | $633,352 | $633,352 |
| 2023 | $377,703 | $360,000 | $11,026 | $407,627 | $407,627 |
| 2022 | $346,858 | $350,000 | $11,026 | $376,257 | $376,257 |
| 2021 | $305,852 | $250,000 | $11,026 | $330,001 | $330,001 |
| 2020 | $283,467 | $250,000 | $11,026 | $307,616 | $307,616 |
| 2019 | $224,900 | $350,000 | $11,026 | $254,299 | $254,299 |
| 2018 | $225,658 | $290,000 | $11,026 | $251,907 | $251,907 |
| 2017 | $227,174 | $260,000 | $11,026 | $251,848 | $251,848 |
| 2016 | $230,203 | $270,000 | $11,026 | $255,402 | $255,402 |
| 2015 | $233,230 | $270,000 | $11,026 | $258,429 | $258,429 |
| 2014 | $234,525 | $337,140 | $11,026 | $312,691 | $312,691 |
| 2013 | $0 | $270,000 | $11,026 | $11,026 | $11,026 |
| 2012 | $0 | $275,760 | $11,026 | $11,026 | $11,026 |
| 2011 | $0 | $275,760 | $11,026 | $11,026 | $11,026 |
| 2010 | $0 | $275,760 | $11,026 | $11,026 | $11,026 |
| 2009 | $0 | $270,820 | $11,026 | $11,026 | $11,026 |
| 2008 | $0 | $324,960 | $11,026 | $11,026 | $11,026 |
| 2007 | $0 | $171,000 | $11,026 | $11,026 | $11,026 |
Deed and Sales History
| 1 | 11/17/2021 | QCD | Quit Claim Deed | OBIE, GENE | COLLINS, ANNE MARIE | | | $0.00 | 53876 | 4548636 |
| 2 | 02/27/2003 | ESTSEPPROP | Establish Separate Property | OBIE, GENE | OBIE, GENE | | | $0.00 | 30785 | 4049304 |
| 3 | 02/27/2003 | WD | Warranty Deed | NOURSE, T G | OBIE, GENE | | | $0.00 | 30784 | 4049303 |
| 4 | 01/01/1900 | OTHER | Other - Misc. Documents | Unknown | NOURSE, T G | | | $0.00 | 0 | 0 |
Payout Agreement
| No payout information available.. |