Property
Account |
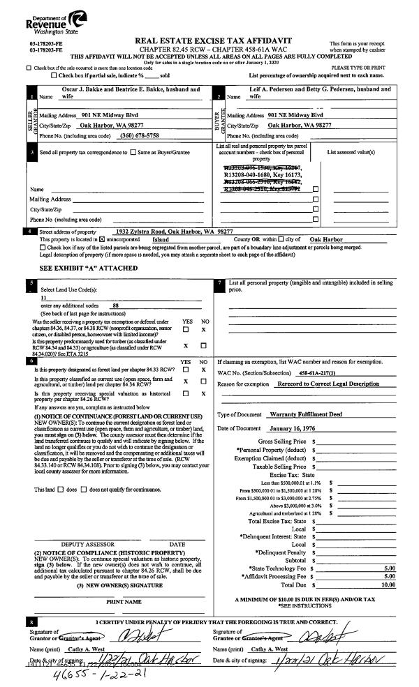
| Property ID: | 142713 | Abbreviated Legal Description: | 61 - N102' OF S/2 S/2 GL1 W OF SAYLOR RD ALSO PT GL3 SEC 32-29-3 LY W OF & PAR/ TO N102' OF S/2 S/2 GL1 |
| Geographic ID: | R32933-164-0320 | Agent Code: | |
| Type: | Real | | |
| Tax Area: | 719 - APPRAISER-S Whid Schl Dist, outside Langley, vacant & 50 acres or less | Land Use Code | 91 |
| Open Space: | N | DFL | N |
| Historic Property: | N | Remodel Property: | N |
| Multi-Family Redevelopment: | N | | |
| Township: | 29 | Section: | 33 |
| Range: | R3 |
Location |
| Address: | | Mapsco: | |
| Neighborhood: | Cycle 4 | Map ID: | 834 |
| Neighborhood CD: | 4 |
Owner |
| Name: | FERGUSON, JUDY A | Owner ID: | 264256 |
| Mailing Address: | 837 NIGHTINGALE COURT NE KEIZER, OR 97303-3408 | % Ownership: | 100.0000000000% |
| | | Exemptions: | |
Taxes and Assessment Details
Values
| (+) Improvement Homesite Value: | + | $0 | |
| (+) Improvement Non-Homesite Value: | + | $0 | |
| (+) Land Homesite Value: | + | $0 | |
| (+) Land Non-Homesite Value: | + | $330,000 | |
| (+) Curr Use (HS): | + | $0 | $0 |
| (+) Curr Use (NHS): | + | $0 | $0 |
| | | -------------------------- | |
| (=) Market Value: | = | $330,000 | |
| (–) Productivity Loss: | – | $0 | |
| | | -------------------------- | |
| (=) Subtotal: | = | $330,000 | |
| (+) Senior Appraised Value: | + | $0 | |
| (+) Non-Senior Appraised Value: | + | $330,000 | |
| | | -------------------------- | |
| (=) Total Appraised Value: | = | $330,000 | |
| (–) Senior Exemption Loss: | – | $0 | |
| (–) Exemption Loss: | – | $0 | |
| | | -------------------------- | |
| (=) Taxable Value: | = | $330,000 | |
Taxing Jurisdiction
| Owner: | FERGUSON, JUDY A | | |
| % Ownership: | 100.0000000000% | | |
| Total Value: | $330,000 | | |
| Tax Area: | 719 - APPRAISER-S Whid Schl Dist, outside Langley, vacant & 50 acres or less |
| CF | Conservation Futures | 0.0316035091 | $330,000 | $330,000 | $10.43 | | |
| HOBOND | Hospital BOND | 0.1910887512 | $330,000 | $330,000 | $63.06 | | |
| HOGEN | Hospital GEN | 0.3902502903 | $330,000 | $330,000 | $128.78 | | |
| CE | County Current Expense | 0.3708482477 | $330,000 | $330,000 | $122.38 | | |
| CR | County Roads | 0.4584763726 | $330,000 | $330,000 | $151.30 | | |
| ISLANDEMS | Hospital GEN (EMS) | 0.5000000000 | $330,000 | $330,000 | $165.00 | | |
| LIB | Library Sno-Isle GEN | 0.3153421757 | $330,000 | $330,000 | $104.06 | | |
| PORTWHID | Port of S Whidbey GEN | 0.1094540357 | $330,000 | $330,000 | $36.12 | | |
| SCH206BOND | School 206 BOND | 0.3161759235 | $330,000 | $330,000 | $104.34 | | |
| SCH206MO | School 206 Enrichment | 0.4547169547 | $330,000 | $330,000 | $150.06 | | |
| ST | State School | 1.3035497053 | $330,000 | $330,000 | $430.17 | | |
| ST2 | State School Part 2 | 0.8169543533 | $330,000 | $330,000 | $269.59 | | |
| SWHIDPRBD | P & R S Whidbey BOND | 0.0152817568 | $330,000 | $330,000 | $5.04 | | |
| SWHIDPRBD2 | P & R S Whidbey BOND2 | 0.0138911264 | $330,000 | $330,000 | $4.58 | | |
| SWHIDPRMT | P & R S Whidbey GEN | 0.2053334452 | $330,000 | $330,000 | $67.76 | | |
| | Total Tax Rate: | 5.4929666475 | | | | | |
| | | | | Taxes w/Current Exemptions: | $1,812.67 | | |
| | | | | Taxes w/o Exemptions: | $1,812.67 | | |
Improvement / Building
Sketch
| No sketches available for this property. |
Property Image
Land
| 1 | HB | HIGH BLUFF | 1.3900 | 60548.40 | 102.00 | 0.00 | 1.00 | $330,000 | $0 |
Roll Value History
| 2026 | N/A | N/A | N/A | N/A | N/A |
| 2025 | $0 | $330,000 | $0 | $330,000 | $330,000 |
| 2024 | $0 | $315,000 | $0 | $315,000 | $315,000 |
| 2023 | $0 | $315,000 | $0 | $315,000 | $315,000 |
| 2022 | $0 | $300,000 | $0 | $300,000 | $300,000 |
| 2021 | $0 | $250,000 | $0 | $250,000 | $250,000 |
| 2020 | $0 | $250,000 | $0 | $250,000 | $250,000 |
| 2019 | $0 | $250,000 | $0 | $250,000 | $250,000 |
| 2018 | $0 | $250,000 | $0 | $250,000 | $250,000 |
| 2017 | $0 | $250,000 | $0 | $250,000 | $250,000 |
| 2016 | $0 | $250,000 | $0 | $250,000 | $250,000 |
| 2015 | $0 | $250,000 | $0 | $250,000 | $250,000 |
| 2014 | $0 | $250,000 | $0 | $250,000 | $250,000 |
| 2013 | $0 | $243,737 | $0 | $243,737 | $243,737 |
| 2012 | $0 | $243,737 | $0 | $243,737 | $243,737 |
| 2011 | $0 | $243,737 | $0 | $243,737 | $243,737 |
| 2010 | $0 | $243,737 | $0 | $243,737 | $243,737 |
| 2009 | $0 | $315,384 | $0 | $315,384 | $315,384 |
| 2008 | $0 | $335,307 | $0 | $335,307 | $335,307 |
| 2007 | $0 | $231,166 | $0 | $231,166 | $231,166 |
Deed and Sales History
| 1 | 11/14/2013 | TOD | Transfer On Death Deed | SILLIMAN, ANNE V | FERGUSON, JUDY A | | | | 83805 | |
| 2 | 08/16/2000 | QCD | Quit Claim Deed | SILLIMAN, ANNE | SILLIMAN, ANNE V | | | $0.00 | 3382 | 20015707 |
| 3 | 03/07/2000 | OTHER | Other - Misc. Documents | SILLIMAN, RALPH P | SILLIMAN, ANNE | | | $0.00 | 68628 | 0 |
| 4 | 06/01/1985 | QCD | Quit Claim Deed | COSPER, MARIETTA | SILLIMAN, RALPH P | | | $0.00 | 51689 | 85006745 |
| 5 | 12/01/1982 | OTHER | Other - Misc. Documents | COSPER, CLAIR W | COSPER, MARIETTA | | | $0.00 | 59781 | 403787 |
| 6 | 01/01/1900 | OTHER | Other - Misc. Documents | Unknown | COSPER, CLAIR W | | | $0.00 | 0 | 0 |
Payout Agreement
| No payout information available.. |