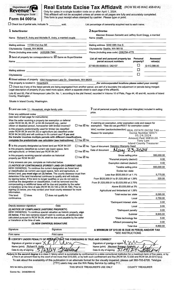
Property
Account |
| Property ID: | 14282 | Abbreviated Legal Description: | 31 - IN NW NE:BG SLY CR L15 PAT HILLCRST 3 S87*W420' ALG RD N39*E283.6' S50*E309 .57' TPB |
| Geographic ID: | R13204-410-3520 | Agent Code: | |
| Type: | Real | | |
| Tax Area: | 112 - APPRAISER-OH Schl Dist, outside OH, improved, greater than 1 acre | Land Use Code | 11 |
| Open Space: | N | DFL | N |
| Historic Property: | N | Remodel Property: | N |
| Multi-Family Redevelopment: | N | | |
| Township: | 32 | Section: | 04 |
| Range: | R1 |
Location |
| Address: | 2399 FAIRWAY LN OAK HARBOR, WA 98277 | Mapsco: | |
| Neighborhood: | Cycle 1 | Map ID: | 97 |
| Neighborhood CD: | 1 |
Owner |
| Name: | FRASER, SARA | Owner ID: | 290894 |
| Mailing Address: | 2399 FAIRWAY LN OAK HARBOR, WA 98277 | % Ownership: | 100.0000000000% |
| | | Exemptions: | |
Taxes and Assessment Details
Values
| (+) Improvement Homesite Value: | + | $0 | |
| (+) Improvement Non-Homesite Value: | + | $372,246 | |
| (+) Land Homesite Value: | + | $0 | |
| (+) Land Non-Homesite Value: | + | $240,000 | |
| (+) Curr Use (HS): | + | $0 | $0 |
| (+) Curr Use (NHS): | + | $0 | $0 |
| | | -------------------------- | |
| (=) Market Value: | = | $612,246 | |
| (–) Productivity Loss: | – | $0 | |
| | | -------------------------- | |
| (=) Subtotal: | = | $612,246 | |
| (+) Senior Appraised Value: | + | $0 | |
| (+) Non-Senior Appraised Value: | + | $612,246 | |
| | | -------------------------- | |
| (=) Total Appraised Value: | = | $612,246 | |
| (–) Senior Exemption Loss: | – | $0 | |
| (–) Exemption Loss: | – | $0 | |
| | | -------------------------- | |
| (=) Taxable Value: | = | $612,246 | |
Taxing Jurisdiction
| Owner: | FRASER, SARA | | |
| % Ownership: | 100.0000000000% | | |
| Total Value: | $612,246 | | |
| Tax Area: | 112 - APPRAISER-OH Schl Dist, outside OH, improved, greater than 1 acre |
| CF | Conservation Futures | 0.0316035091 | $612,246 | $612,246 | $19.35 | | |
| CEM1 | Cemetery #1 | 0.0040320932 | $612,246 | $612,246 | $2.47 | | |
| FIRE2 | Fire & Rescue Dist #2 N Whidbey GEN | 0.5475949600 | $612,246 | $612,246 | $335.26 | | |
| HOBOND | Hospital BOND | 0.1910887512 | $612,246 | $612,246 | $116.99 | | |
| HOGEN | Hospital GEN | 0.3902502903 | $612,246 | $612,246 | $238.93 | | |
| CE | County Current Expense | 0.3708482477 | $612,246 | $612,246 | $227.05 | | |
| CR | County Roads | 0.4584763726 | $612,246 | $612,246 | $280.70 | | |
| ISLANDEMS | Hospital GEN (EMS) | 0.5000000000 | $612,246 | $612,246 | $306.12 | | |
| LIB | Library Sno-Isle GEN | 0.3153421757 | $612,246 | $612,246 | $193.07 | | |
| NWHIDPRMT | P & R N Whidbey GEN | 0.2004466701 | $612,246 | $612,246 | $122.72 | | |
| SCH201MO | School 201 Enrichment | 1.8559231640 | $612,246 | $612,246 | $1,136.28 | | |
| ST | State School | 1.3035497053 | $612,246 | $612,246 | $798.09 | | |
| ST2 | State School Part 2 | 0.8169543533 | $612,246 | $612,246 | $500.18 | | |
| | Total Tax Rate: | 6.9861102925 | | | | | |
| | | | | Taxes w/Current Exemptions: | $4,277.21 | | |
| | | | | Taxes w/o Exemptions: | $4,277.21 | | |
Improvement / Building
| Improvement #1: | RESIDENTIAL | State Code: | Y | 1901.8 sqft | Value: | $372,246 |
| Bathrooms: | 2.5 | Bedrooms: | 3 | | Ceiling: | DRYWALL PAINTED | Exterior Wall/Cover: | WOOD SIDING | | Floor Covering: | CARPET/VINYL 80-20 | Floor Structure: | WOOD W/SUBFLOOR | | Foundation: | CONCRETE | Heating: | FHA GAS | | Interior Finish: | DRYWALL PAINT | Plumbing Fixture Cnt: | 11 | | Roof Slope: | 6" IN 12" | Roof Structure/Cover: | CJ ASPHALT |
|
| | Type | Description | Class CD | Sub Class CD | Year Built | Area |
| | BAS | BASE/MAIN FLOOR | 4 | 0 | 1987 | 1901.8 |
| | OP3 | OPEN PORCH W/ROOF | 4 | 0 | 1987 | 39.0 |
| | OP4 | OPEN PORCH W/CEILING-ROOF | 4 | 0 | 1987 | 20.0 |
| | AGR | ATTACHED GARAGE | 4 | 0 | 1987 | 660.0 |
| | OWR | OPEN WOOD PORCH W/STEPS/ROOF | 4 | 0 | 1987 | 96.0 |
Sketch
Property Image
Land
| 1 | 17 | AC (01.01-02.00) | 1.0100 | 43995.60 | 0.00 | 0.00 | 1.00 | $240,000 | $0 |
Roll Value History
| 2026 | N/A | N/A | N/A | N/A | N/A |
| 2025 | $372,246 | $240,000 | $0 | $612,246 | $612,246 |
| 2024 | $377,004 | $220,000 | $0 | $597,004 | $597,004 |
| 2023 | $367,491 | $220,000 | $0 | $587,491 | $587,491 |
| 2022 | $337,077 | $200,000 | $0 | $537,077 | $537,077 |
| 2021 | $296,851 | $170,000 | $0 | $466,851 | $466,851 |
| 2020 | $289,311 | $130,000 | $0 | $419,311 | $419,311 |
| 2019 | $213,290 | $160,000 | $0 | $373,290 | $373,290 |
| 2018 | $213,946 | $150,000 | $0 | $363,946 | $363,946 |
| 2017 | $192,238 | $150,000 | $0 | $342,238 | $342,238 |
| 2016 | $195,024 | $120,000 | $0 | $315,024 | $315,024 |
| 2015 | $197,808 | $85,000 | $0 | $282,808 | $282,808 |
| 2014 | $200,596 | $85,000 | $0 | $285,596 | $285,596 |
| 2013 | $203,382 | $85,000 | $0 | $288,382 | $288,382 |
| 2012 | $206,167 | $85,000 | $0 | $291,167 | $291,167 |
| 2011 | $219,207 | $100,000 | $0 | $319,207 | $319,207 |
| 2010 | $223,708 | $100,000 | $0 | $323,708 | $323,708 |
| 2009 | $233,553 | $120,000 | $0 | $353,553 | $353,553 |
| 2008 | $242,624 | $120,000 | $0 | $362,624 | $362,624 |
| 2007 | $245,689 | $120,000 | $0 | $365,689 | $365,689 |
Deed and Sales History
| 1 | 07/11/2019 | WD | Warranty Deed | FRANSSEN, FRANS P | FRASER, SARA | | | $375,000.00 | 39387 | 4467127 |
| 2 | 03/01/1980 | OTHER | Other - Misc. Documents | HULSWIT, PETER G | FRANSSEN, FRANS | | | $45,000.00 | 1019 | 366868 |
| 3 | 01/01/1900 | OTHER | Other - Misc. Documents | Unknown | HULSWIT, PETER G | | | $0.00 | 0 | 0 |
Payout Agreement
| No payout information available.. |