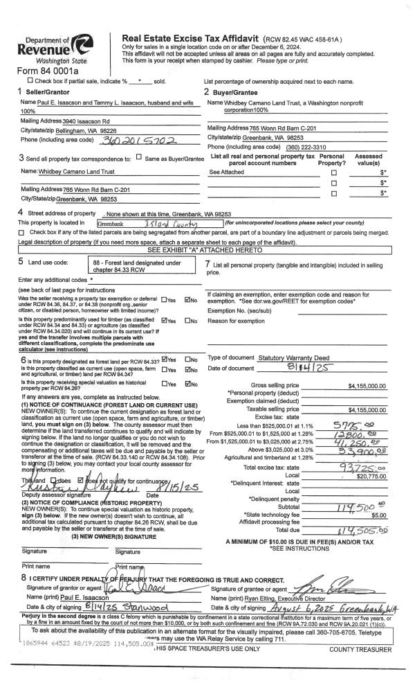
Property
Account |
| Property ID: | 142820 | Abbreviated Legal Description: | S/2 NE NW SE TGW EZ |
| Geographic ID: | R32933-220-3600 | Agent Code: | |
| Type: | Real | | |
| Tax Area: | 719 - APPRAISER-S Whid Schl Dist, outside Langley, vacant & 50 acres or less | Land Use Code | 88 |
| Open Space: | N | DFL | Y |
| Historic Property: | N | Remodel Property: | N |
| Multi-Family Redevelopment: | N | | |
| Township: | 29 | Section: | 33 |
| Range: | R3 |
Location |
| Address: | 3507 FRENCH RD CLINTON, WA 98236 | Mapsco: | |
| Neighborhood: | Cycle 4 | Map ID: | 835 |
| Neighborhood CD: | 4 |
Owner |
| Name: | YEATER TTEE, AMY | Owner ID: | 315095 |
| Mailing Address: | KEITH SMITH TTEE 705 UNIT E N 94TH ST SEATTLE, WA 98103 | % Ownership: | 100.0000000000% |
| | | Exemptions: | |
Taxes and Assessment Details
Values
| (+) Improvement Homesite Value: | + | $0 | |
| (+) Improvement Non-Homesite Value: | + | $0 | |
| (+) Land Homesite Value: | + | $0 | |
| (+) Land Non-Homesite Value: | + | $50,209 | |
| (+) Curr Use (HS): | + | $0 | $0 |
| (+) Curr Use (NHS): | + | $189,791 | $563 |
| | | -------------------------- | |
| (=) Market Value: | = | $240,000 | |
| (–) Productivity Loss: | – | $189,228 | |
| | | -------------------------- | |
| (=) Subtotal: | = | $50,772 | |
| (+) Senior Appraised Value: | + | $0 | |
| (+) Non-Senior Appraised Value: | + | $50,772 | |
| | | -------------------------- | |
| (=) Total Appraised Value: | = | $50,772 | |
| (–) Senior Exemption Loss: | – | $0 | |
| (–) Exemption Loss: | – | $0 | |
| | | -------------------------- | |
| (=) Taxable Value: | = | $50,772 | |
Taxing Jurisdiction
| Owner: | YEATER TTEE, AMY | | |
| % Ownership: | 100.0000000000% | | |
| Total Value: | $240,000 | | |
| Tax Area: | 719 - APPRAISER-S Whid Schl Dist, outside Langley, vacant & 50 acres or less |
| CF | Conservation Futures | 0.0316035091 | $50,772 | $50,772 | $1.60 | | |
| HOBOND | Hospital BOND | 0.1910887512 | $50,772 | $50,772 | $9.70 | | |
| HOGEN | Hospital GEN | 0.3902502903 | $50,772 | $50,772 | $19.81 | | |
| CE | County Current Expense | 0.3708482477 | $50,772 | $50,772 | $18.83 | | |
| CR | County Roads | 0.4584763726 | $50,772 | $50,772 | $23.28 | | |
| ISLANDEMS | Hospital GEN (EMS) | 0.5000000000 | $50,772 | $50,772 | $25.39 | | |
| LIB | Library Sno-Isle GEN | 0.3153421757 | $50,772 | $50,772 | $16.01 | | |
| PORTWHID | Port of S Whidbey GEN | 0.1094540357 | $50,772 | $50,772 | $5.56 | | |
| SCH206BOND | School 206 BOND | 0.3161759235 | $50,772 | $50,772 | $16.05 | | |
| SCH206MO | School 206 Enrichment | 0.4547169547 | $50,772 | $50,772 | $23.09 | | |
| ST | State School | 1.3035497053 | $50,772 | $50,772 | $66.18 | | |
| ST2 | State School Part 2 | 0.8169543533 | $50,772 | $50,772 | $41.48 | | |
| SWHIDPRBD | P & R S Whidbey BOND | 0.0152817568 | $50,772 | $50,772 | $0.78 | | |
| SWHIDPRBD2 | P & R S Whidbey BOND2 | 0.0138911264 | $50,772 | $50,772 | $0.71 | | |
| SWHIDPRMT | P & R S Whidbey GEN | 0.2053334452 | $50,772 | $50,772 | $10.43 | | |
| | Total Tax Rate: | 5.4929666475 | | | | | |
| | | | | Taxes w/Current Exemptions: | $278.90 | | |
| | | | | Taxes w/o Exemptions: | $278.90 | | |
Improvement / Building
Sketch
| No sketches available for this property. |
Property Image
Land
| 1 | 32 | AC (03.01-09.99) | 3.7800 | 164656.80 | 0.00 | 0.00 | 1.00 | $189,791 | $563 |
| 2 | 32 | AC (03.01-09.99) | 1.0000 | 43560.00 | 0.00 | 0.00 | 1.00 | $50,209 | $0 |
Roll Value History
| 2026 | N/A | N/A | N/A | N/A | N/A |
| 2025 | $0 | $240,000 | $563 | $50,772 | $50,772 |
| 2024 | $0 | $230,000 | $567 | $48,684 | $48,684 |
| 2023 | $0 | $200,000 | $544 | $42,385 | $42,385 |
| 2022 | $0 | $170,000 | $544 | $36,109 | $36,109 |
| 2021 | $0 | $150,000 | $544 | $31,925 | $31,925 |
| 2020 | $0 | $150,000 | $544 | $31,925 | $31,925 |
| 2019 | $0 | $135,000 | $664 | $664 | $664 |
| 2018 | $0 | $130,000 | $655 | $655 | $655 |
| 2017 | $0 | $130,000 | $655 | $655 | $655 |
| 2016 | $0 | $100,000 | $468 | $468 | $468 |
| 2015 | $0 | $100,000 | $468 | $468 | $468 |
| 2014 | $0 | $90,000 | $468 | $468 | $468 |
| 2013 | $0 | $90,000 | $468 | $468 | $468 |
| 2012 | $0 | $109,701 | $468 | $468 | $468 |
| 2011 | $0 | $129,060 | $468 | $468 | $468 |
| 2010 | $0 | $129,060 | $468 | $468 | $468 |
| 2009 | $0 | $162,360 | $468 | $468 | $468 |
| 2008 | $0 | $164,500 | $468 | $468 | $468 |
| 2007 | $0 | $120,000 | $468 | $468 | $468 |
Deed and Sales History
| 1 | 01/09/2025 | QCD | Quit Claim Deed | SMITH, KEITH L | YEATER TTEE, AMY | | | $0.00 | 62285 | 4581141 |
| 2 | 01/15/2020 | WD | Warranty Deed | ERIKSON, JANICE R | SMITH, KEITH L | | | $150,000.00 | 42167 | 4481630 |
|   | |
| 3 | 10/12/2017 | QCD | Quit Claim Deed | ERIKSON, JOHN A | ERIKSON, JANICE R | | | $0.00 | 31772 | 4433342 |
| 4 | 04/27/1999 | BLA | DNU - Boundary Line Adjustment | ERIKSON, JOHN A | ERIKSON, JOHN A | | | $0.00 | 68241 | 98026998 |
| 5 | 03/01/1983 | QCD | Quit Claim Deed | MOLL, SHARON R | ERIKSON, JOHN A | | | $0.00 | 30812 | 407777 |
| 6 | 03/01/1979 | OTHER | Other - Misc. Documents | Unknown | MOLL, SHARON R | | | $0.00 | 91683 | 350791 |
Payout Agreement
| No payout information available.. |