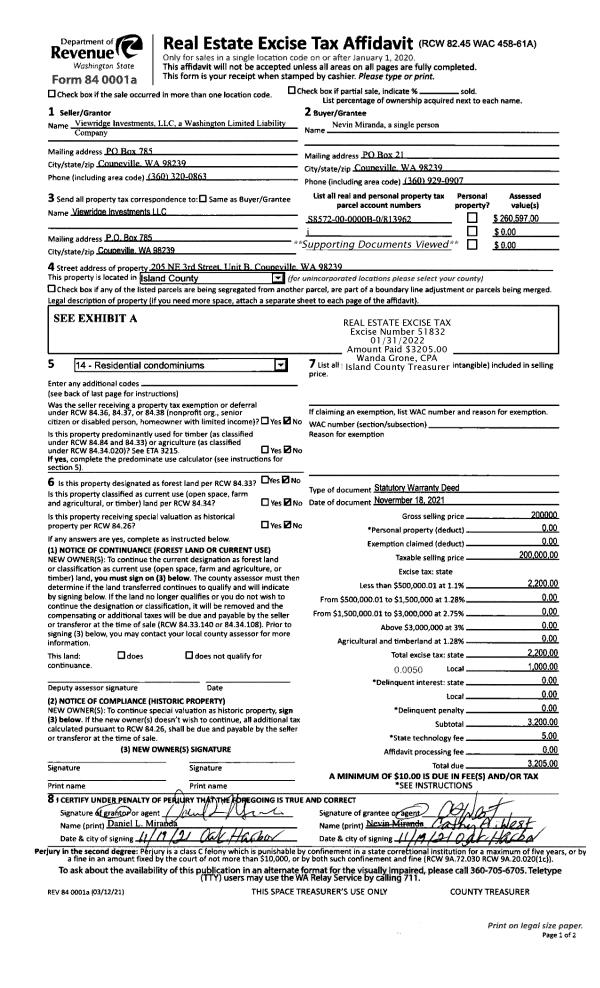
Property
Account |
| Property ID: | 142875 | Abbreviated Legal Description: | N/2 NE NW SE TGW EZ |
| Geographic ID: | R32933-252-3600 | Agent Code: | |
| Type: | Real | | |
| Tax Area: | 719 - APPRAISER-S Whid Schl Dist, outside Langley, vacant & 50 acres or less | Land Use Code | 88 |
| Open Space: | N | DFL | Y |
| Historic Property: | N | Remodel Property: | N |
| Multi-Family Redevelopment: | N | | |
| Township: | 29 | Section: | 33 |
| Range: | R3 |
Location |
| Address: | CLINTON, WA 98236 | Mapsco: | |
| Neighborhood: | Cycle 4 | Map ID: | 835 |
| Neighborhood CD: | 4 |
Owner |
| Name: | ROBERTSON, ALEA A | Owner ID: | 301461 |
| Mailing Address: | ZACHARY W SIMONSON-BOND PO BOX 4 CLINTON, WA 98236 | % Ownership: | 100.0000000000% |
| | | Exemptions: | |
Taxes and Assessment Details
Values
| (+) Improvement Homesite Value: | + | $0 | |
| (+) Improvement Non-Homesite Value: | + | $0 | |
| (+) Land Homesite Value: | + | $0 | |
| (+) Land Non-Homesite Value: | + | $47,431 | |
| (+) Curr Use (HS): | + | $0 | $0 |
| (+) Curr Use (NHS): | + | $192,569 | $601 |
| | | -------------------------- | |
| (=) Market Value: | = | $240,000 | |
| (–) Productivity Loss: | – | $191,968 | |
| | | -------------------------- | |
| (=) Subtotal: | = | $48,032 | |
| (+) Senior Appraised Value: | + | $0 | |
| (+) Non-Senior Appraised Value: | + | $48,032 | |
| | | -------------------------- | |
| (=) Total Appraised Value: | = | $48,032 | |
| (–) Senior Exemption Loss: | – | $0 | |
| (–) Exemption Loss: | – | $0 | |
| | | -------------------------- | |
| (=) Taxable Value: | = | $48,032 | |
Taxing Jurisdiction
| Owner: | ROBERTSON, ALEA A | | |
| % Ownership: | 100.0000000000% | | |
| Total Value: | $240,000 | | |
| Tax Area: | 719 - APPRAISER-S Whid Schl Dist, outside Langley, vacant & 50 acres or less |
| CF | Conservation Futures | 0.0316035091 | $48,032 | $48,032 | $1.52 | | |
| HOBOND | Hospital BOND | 0.1910887512 | $48,032 | $48,032 | $9.18 | | |
| HOGEN | Hospital GEN | 0.3902502903 | $48,032 | $48,032 | $18.74 | | |
| CE | County Current Expense | 0.3708482477 | $48,032 | $48,032 | $17.81 | | |
| CR | County Roads | 0.4584763726 | $48,032 | $48,032 | $22.02 | | |
| ISLANDEMS | Hospital GEN (EMS) | 0.5000000000 | $48,032 | $48,032 | $24.02 | | |
| LIB | Library Sno-Isle GEN | 0.3153421757 | $48,032 | $48,032 | $15.15 | | |
| PORTWHID | Port of S Whidbey GEN | 0.1094540357 | $48,032 | $48,032 | $5.26 | | |
| SCH206BOND | School 206 BOND | 0.3161759235 | $48,032 | $48,032 | $15.19 | | |
| SCH206MO | School 206 Enrichment | 0.4547169547 | $48,032 | $48,032 | $21.84 | | |
| ST | State School | 1.3035497053 | $48,032 | $48,032 | $62.61 | | |
| ST2 | State School Part 2 | 0.8169543533 | $48,032 | $48,032 | $39.24 | | |
| SWHIDPRBD | P & R S Whidbey BOND | 0.0152817568 | $48,032 | $48,032 | $0.73 | | |
| SWHIDPRBD2 | P & R S Whidbey BOND2 | 0.0138911264 | $48,032 | $48,032 | $0.67 | | |
| SWHIDPRMT | P & R S Whidbey GEN | 0.2053334452 | $48,032 | $48,032 | $9.86 | | |
| | Total Tax Rate: | 5.4929666475 | | | | | |
| | | | | Taxes w/Current Exemptions: | $263.84 | | |
| | | | | Taxes w/o Exemptions: | $263.84 | | |
Improvement / Building
Sketch
| No sketches available for this property. |
Property Image
Land
| 1 | 32 | AC (03.01-09.99) | 3.1000 | 135036.00 | 0.00 | 0.00 | 1.00 | $147,035 | $462 |
| 2 | 32 | AC (03.01-09.99) | 0.9600 | 41817.60 | 0.00 | 0.00 | 1.00 | $45,534 | $139 |
| 3 | 32 | AC (03.01-09.99) | 1.0000 | 43560.00 | 0.00 | 0.00 | 1.00 | $47,431 | $0 |
Roll Value History
| 2026 | N/A | N/A | N/A | N/A | N/A |
| 2025 | $0 | $240,000 | $601 | $48,032 | $48,032 |
| 2024 | $0 | $230,000 | $605 | $42,659 | $42,659 |
| 2023 | $0 | $200,000 | $580 | $40,106 | $40,106 |
| 2022 | $0 | $170,000 | $580 | $34,177 | $34,177 |
| 2021 | $0 | $150,000 | $580 | $30,225 | $30,225 |
| 2020 | $0 | $150,000 | $580 | $30,225 | $30,225 |
| 2019 | $0 | $135,000 | $561 | $27,241 | $27,241 |
| 2018 | $0 | $130,000 | $690 | $690 | $690 |
| 2017 | $0 | $130,000 | $690 | $690 | $690 |
| 2016 | $0 | $100,000 | $496 | $496 | $496 |
| 2015 | $0 | $100,000 | $496 | $496 | $496 |
| 2014 | $0 | $90,000 | $496 | $496 | $496 |
| 2013 | $0 | $90,000 | $496 | $496 | $496 |
| 2012 | $0 | $116,178 | $496 | $496 | $496 |
| 2011 | $0 | $136,680 | $496 | $496 | $496 |
| 2010 | $0 | $136,680 | $496 | $496 | $496 |
| 2009 | $0 | $170,720 | $496 | $496 | $0 |
| 2008 | $0 | $174,000 | $496 | $496 | $496 |
| 2007 | $0 | $120,000 | $496 | $496 | $496 |
Deed and Sales History
| 1 | 09/27/2021 | QCD | Quit Claim Deed | ROBERTSON, ALEA A | ROBERTSON, ALEA A | | | $0.00 | 50335 | 4530681 |
| 2 | 09/24/2019 | WD | Warranty Deed | MOLL, SHARON R | ROBERTSON, ALEA A | | | $155,000.00 | 40430 | 4472098 |
|   | |
| 3 | 04/01/1997 | OTHER | Other - Misc. Documents | MOLL, GEORGE B | ERIKSON, RANDOLPH - | | | $0.00 | 67345 | 0 |
| 4 | 02/01/1983 | QCD | Quit Claim Deed | ERIKSON, JOHN A | MOLL, GEORGE B | | | $0.00 | 30811 | 407776 |
| 5 | 03/01/1979 | OTHER | Other - Misc. Documents | Unknown | ERIKSON, JOHN A | | | $0.00 | 91682 | 350790 |
Payout Agreement
| No payout information available.. |