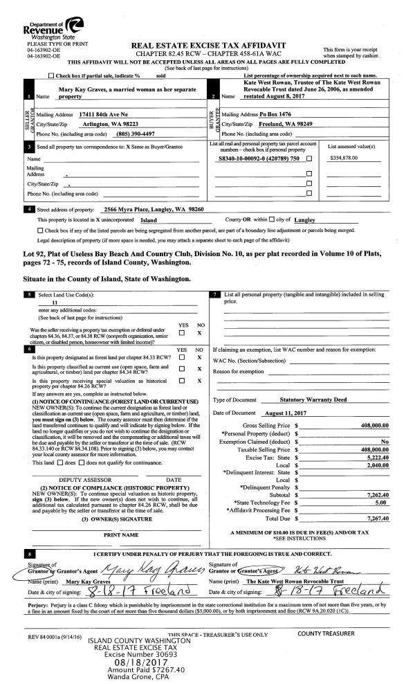
Property
Account |
| Property ID: | 142919 | Abbreviated Legal Description: | PT S1/4 SW NW SEC 33 T29N R3E LY W OF CO RD KNOWN AS MAXWELTON RD EX PT DESC: BG INTER OF SLN OF ABOVE DESC WITH ELN CO RD KNOWN AS SILLS RD E ALG SLN 141' N @ RT ANG 307' M/L TO NLN ABOVE DESC W TO ELN SILLS RD SWLY ALG ELN TPB ALSO EX W 20' TO CO FOR RD |
| Geographic ID: | R32933-289-0730 | Agent Code: | |
| Type: | Real | | |
| Tax Area: | 712 - APPRAISER-S Whid Schl Dist, outside Langley, improved, greater than 1 acre | Land Use Code | 11 |
| Open Space: | N | DFL | N |
| Historic Property: | N | Remodel Property: | N |
| Multi-Family Redevelopment: | N | | |
| Township: | 29 | Section: | 33 |
| Range: | R3 |
Location |
| Address: | | Mapsco: | |
| Neighborhood: | Cycle 4 | Map ID: | 836 |
| Neighborhood CD: | 4 |
Owner |
| Name: | STRAKA, JOSEPH E | Owner ID: | 269541 |
| Mailing Address: | CINDY L STRAKA BOX 868 NORTH BEND, WA 98045 | % Ownership: | 100.0000000000% |
| | | Exemptions: | |
Taxes and Assessment Details
Values
| (+) Improvement Homesite Value: | + | $0 | |
| (+) Improvement Non-Homesite Value: | + | $215,879 | |
| (+) Land Homesite Value: | + | $0 | |
| (+) Land Non-Homesite Value: | + | $370,000 | |
| (+) Curr Use (HS): | + | $0 | $0 |
| (+) Curr Use (NHS): | + | $0 | $0 |
| | | -------------------------- | |
| (=) Market Value: | = | $585,879 | |
| (–) Productivity Loss: | – | $0 | |
| | | -------------------------- | |
| (=) Subtotal: | = | $585,879 | |
| (+) Senior Appraised Value: | + | $0 | |
| (+) Non-Senior Appraised Value: | + | $585,879 | |
| | | -------------------------- | |
| (=) Total Appraised Value: | = | $585,879 | |
| (–) Senior Exemption Loss: | – | $0 | |
| (–) Exemption Loss: | – | $0 | |
| | | -------------------------- | |
| (=) Taxable Value: | = | $585,879 | |
Taxing Jurisdiction
| Owner: | STRAKA, JOSEPH E | | |
| % Ownership: | 100.0000000000% | | |
| Total Value: | $585,879 | | |
| Tax Area: | 712 - APPRAISER-S Whid Schl Dist, outside Langley, improved, greater than 1 acre |
| CF | Conservation Futures | 0.0316035091 | $585,879 | $585,879 | $18.52 | | |
| FIRE3 | Fire & Rescue Dist #3 S Whidbey GEN | 1.2004855531 | $585,879 | $585,879 | $703.34 | | |
| HOBOND | Hospital BOND | 0.1910887512 | $585,879 | $585,879 | $111.95 | | |
| HOGEN | Hospital GEN | 0.3902502903 | $585,879 | $585,879 | $228.64 | | |
| CE | County Current Expense | 0.3708482477 | $585,879 | $585,879 | $217.27 | | |
| CR | County Roads | 0.4584763726 | $585,879 | $585,879 | $268.61 | | |
| ISLANDEMS | Hospital GEN (EMS) | 0.5000000000 | $585,879 | $585,879 | $292.94 | | |
| LIB | Library Sno-Isle GEN | 0.3153421757 | $585,879 | $585,879 | $184.75 | | |
| PORTWHID | Port of S Whidbey GEN | 0.1094540357 | $585,879 | $585,879 | $64.13 | | |
| SCH206BOND | School 206 BOND | 0.3161759235 | $585,879 | $585,879 | $185.24 | | |
| SCH206MO | School 206 Enrichment | 0.4547169547 | $585,879 | $585,879 | $266.41 | | |
| ST | State School | 1.3035497053 | $585,879 | $585,879 | $763.72 | | |
| ST2 | State School Part 2 | 0.8169543533 | $585,879 | $585,879 | $478.64 | | |
| SWHIDPRBD | P & R S Whidbey BOND | 0.0152817568 | $585,879 | $585,879 | $8.95 | | |
| SWHIDPRBD2 | P & R S Whidbey BOND2 | 0.0138911264 | $585,879 | $585,879 | $8.14 | | |
| SWHIDPRMT | P & R S Whidbey GEN | 0.2053334452 | $585,879 | $585,879 | $120.30 | | |
| | Total Tax Rate: | 6.6934522006 | | | | | |
| | | | | Taxes w/Current Exemptions: | $3,921.55 | | |
| | | | | Taxes w/o Exemptions: | $3,921.55 | | |
Improvement / Building
| Improvement #1: | RESIDENTIAL | State Code: | Y | 705.0 sqft | Value: | $215,879 |
| Bathrooms: | 1 | Bedrooms: | 1 | | Ceiling: | DRYWALL PAINTED | Exterior Wall/Cover: | WOOD SIDING | | Floor Covering: | CERAMIC TILE/HWD 40/60 | Floor Structure: | WOOD W/SUBFLOOR | | Foundation: | PEIRS | Heating: | WALL HEAT ELECTRIC | | Interior Finish: | DRYWALL PAINT | Plumbing Fixture Cnt: | 6 | | Roof Slope: | 3" IN 12" | Roof Structure/Cover: | CJ ASPHALT |
|
| | Type | Description | Class CD | Sub Class CD | Year Built | Area |
| | BAS | BASE/MAIN FLOOR | 3 | 0 | 1940 | 375.0 |
| | DGR | DETACHED GARAGE | 3 | 0 | 1940 | 776.0 |
| | UPS | UPPER STORY | 3 | 0 | 1940 | 330.0 |
| | OWP | OPEN WOOD PORCH W/STEPS | 3 | 0 | 1940 | 153.0 |
| | UTY | STORAGE/UTILITY | 3 | 0 | 1940 | 288.0 |
| | ENP | ENCLOSED PORCH | 3 | 0 | 1940 | 204.0 |
Sketch
Property Image
Land
| 1 | 32 | AC (03.01-09.99) | 4.2600 | 185565.60 | 0.00 | 0.00 | 1.00 | $370,000 | $0 |
Roll Value History
| 2026 | N/A | N/A | N/A | N/A | N/A |
| 2025 | $215,879 | $370,000 | $0 | $585,879 | $585,879 |
| 2024 | $218,570 | $350,000 | $0 | $568,570 | $568,570 |
| 2023 | $221,260 | $330,000 | $0 | $551,260 | $551,260 |
| 2022 | $202,786 | $280,000 | $0 | $482,786 | $482,786 |
| 2021 | $178,451 | $230,000 | $0 | $408,451 | $408,451 |
| 2020 | $25,870 | $190,000 | $0 | $215,870 | $215,870 |
| 2019 | $18,503 | $250,000 | $0 | $268,503 | $268,503 |
| 2018 | $18,503 | $210,000 | $0 | $228,503 | $228,503 |
| 2017 | $18,503 | $190,000 | $0 | $208,503 | $208,503 |
| 2016 | $18,503 | $135,000 | $0 | $153,503 | $153,503 |
| 2015 | $18,503 | $135,000 | $0 | $153,503 | $153,503 |
| 2014 | $31,215 | $110,000 | $0 | $141,215 | $141,215 |
| 2013 | $32,407 | $110,000 | $0 | $142,407 | $142,407 |
| 2012 | $33,257 | $167,280 | $0 | $200,537 | $200,537 |
| 2011 | $34,108 | $167,280 | $0 | $201,388 | $201,388 |
| 2010 | $35,155 | $167,280 | $0 | $202,435 | $202,435 |
| 2009 | $37,248 | $216,480 | $0 | $253,728 | $253,728 |
| 2008 | $51,204 | $233,263 | $0 | $284,467 | $284,467 |
| 2007 | $54,193 | $157,000 | $0 | $211,193 | $211,193 |
Deed and Sales History
| 1 | 03/25/2017 | EZ | Easement | STRAKA, JOSEPH E | STRAKA, JOSEPH E | | | $3,046.00 | 29332 | 4422705 |
| 2 | 03/17/2015 | WD | Warranty Deed | UMLAUF, ANDREW | STRAKA, JOSEPH E | | | $135,000.00 | 18861 | 4375191 |
| 3 | 01/28/2011 | WD | Warranty Deed | LUCKER TTEE, HELENA MARIA | UMLAUF, ANDREW | | | $135,000.00 | 3489 | 4289622 |
| 4 | 05/17/2010 | BLA | DNU - Boundary Line Adjustment | LUCKER TTEE, HELENA MARIA | LUCKER TTEE, HELENA MARIA | | | $0.00 | 81653 | 4264243 |
| 5 | 12/21/2007 | TRUSTEED | Trustee's Deed | MARSHALL, CHRISTOPHER | LUCKER TTEE, HELENA MARIA | | | $0.00 | 80651 | 4224340 |
| 6 | 07/22/2002 | OTHER | Other - Misc. Documents | MARSHALL, CHRISTIOPHER | MARSHALL, CHRISTOPHER | | | $0.00 | 69512 | 0 |
| 7 | 09/11/2000 | TRUSTEED | Trustee's Deed | Unknown | MARSHALL, CHRISTIOPHER | | | $119,500.00 | 3575 | 20016470 |
Payout Agreement
| No payout information available.. |