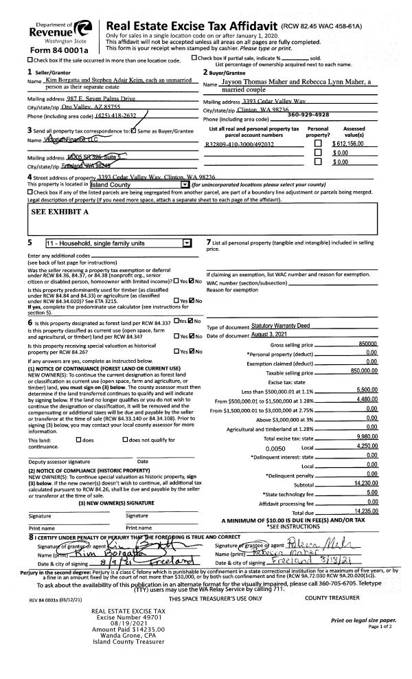
Property
Account |
| Property ID: | 143062 | Abbreviated Legal Description: | 48 - IN NW NW: BG 990'E OF NWCR SEC 33 S660' TPB S660' E330' N660' W330' TPB EX RD EX: BG NWCR NW NW E990' S660' TPB S198' E330' N198' W330' TPB EX: BG NECR NW NW S858' TPB S140' W330' N140' E330' TPB (SUR V5P51 DIFFS, AC COR 2/9/82) |
| Geographic ID: | R32933-413-1140 | Agent Code: | |
| Type: | Real | | |
| Tax Area: | 712 - APPRAISER-S Whid Schl Dist, outside Langley, improved, greater than 1 acre | Land Use Code | 11 |
| Open Space: | N | DFL | N |
| Historic Property: | N | Remodel Property: | N |
| Multi-Family Redevelopment: | N | | |
| Township: | 29 | Section: | 33 |
| Range: | R3 |
Location |
| Address: | 3289 CARRIAGE CT CLINTON, WA 98236 | Mapsco: | |
| Neighborhood: | Cycle 4 | Map ID: | 836 |
| Neighborhood CD: | 4 |
Owner |
| Name: | COINS, ALBERT | Owner ID: | 315639 |
| Mailing Address: | 3289 CARRIAGE CT CLINTON, WA 98236 | % Ownership: | 100.0000000000% |
| | | Exemptions: | |
Taxes and Assessment Details
Values
| (+) Improvement Homesite Value: | + | $0 | |
| (+) Improvement Non-Homesite Value: | + | $81,307 | |
| (+) Land Homesite Value: | + | $0 | |
| (+) Land Non-Homesite Value: | + | $120,000 | |
| (+) Curr Use (HS): | + | $0 | $0 |
| (+) Curr Use (NHS): | + | $0 | $0 |
| | | -------------------------- | |
| (=) Market Value: | = | $201,307 | |
| (–) Productivity Loss: | – | $0 | |
| | | -------------------------- | |
| (=) Subtotal: | = | $201,307 | |
| (+) Senior Appraised Value: | + | $0 | |
| (+) Non-Senior Appraised Value: | + | $201,307 | |
| | | -------------------------- | |
| (=) Total Appraised Value: | = | $201,307 | |
| (–) Senior Exemption Loss: | – | $0 | |
| (–) Exemption Loss: | – | $0 | |
| | | -------------------------- | |
| (=) Taxable Value: | = | $201,307 | |
Taxing Jurisdiction
| Owner: | COINS, ALBERT | | |
| % Ownership: | 100.0000000000% | | |
| Total Value: | $201,307 | | |
| Tax Area: | 712 - APPRAISER-S Whid Schl Dist, outside Langley, improved, greater than 1 acre |
| CF | Conservation Futures | 0.0316035091 | $201,307 | $201,307 | $6.36 | | |
| FIRE3 | Fire & Rescue Dist #3 S Whidbey GEN | 1.2004855531 | $201,307 | $201,307 | $241.67 | | |
| HOBOND | Hospital BOND | 0.1910887512 | $201,307 | $201,307 | $38.47 | | |
| HOGEN | Hospital GEN | 0.3902502903 | $201,307 | $201,307 | $78.56 | | |
| CE | County Current Expense | 0.3708482477 | $201,307 | $201,307 | $74.65 | | |
| CR | County Roads | 0.4584763726 | $201,307 | $201,307 | $92.29 | | |
| ISLANDEMS | Hospital GEN (EMS) | 0.5000000000 | $201,307 | $201,307 | $100.65 | | |
| LIB | Library Sno-Isle GEN | 0.3153421757 | $201,307 | $201,307 | $63.48 | | |
| PORTWHID | Port of S Whidbey GEN | 0.1094540357 | $201,307 | $201,307 | $22.03 | | |
| SCH206BOND | School 206 BOND | 0.3161759235 | $201,307 | $201,307 | $63.65 | | |
| SCH206MO | School 206 Enrichment | 0.4547169547 | $201,307 | $201,307 | $91.54 | | |
| ST | State School | 1.3035497053 | $201,307 | $201,307 | $262.41 | | |
| ST2 | State School Part 2 | 0.8169543533 | $201,307 | $201,307 | $164.46 | | |
| SWHIDPRBD | P & R S Whidbey BOND | 0.0152817568 | $201,307 | $201,307 | $3.08 | | |
| SWHIDPRBD2 | P & R S Whidbey BOND2 | 0.0138911264 | $201,307 | $201,307 | $2.80 | | |
| SWHIDPRMT | P & R S Whidbey GEN | 0.2053334452 | $201,307 | $201,307 | $41.34 | | |
| | Total Tax Rate: | 6.6934522006 | | | | | |
| | | | | Taxes w/Current Exemptions: | $1,347.44 | | |
| | | | | Taxes w/o Exemptions: | $1,347.44 | | |
Improvement / Building
| Improvement #1: | RESIDENTIAL | State Code: | Y | 1038.0 sqft | Value: | $81,307 |
| Bathrooms: | 1 | Bedrooms: | 3 | | Ceiling: | (NONE) | Exterior Wall/Cover: | WOOD SIDING | | Floor Covering: | (NONE) | Floor Structure: | WOOD W/SUBFLOOR | | Foundation: | CONCRETE | Heating: | (NONE) | | Interior Finish: | (NONE) | Plumbing Fixture Cnt: | 6 | | Roof Slope: | 4" IN 12" | Roof Structure/Cover: | CJ ASPHALT |
|
| | Type | Description | Class CD | Sub Class CD | Year Built | Area |
| | BAS | BASE/MAIN FLOOR | 3 | 0 | 1913 | 1038.0 |
| | UB6 | BASEMENT UNFINISHED 6" | 3 | 0 | 1913 | 384.0 |
| | BGR | BASEMENT GARAGE | 3 | 0 | 1913 | 240.0 |
| | OWP | OPEN WOOD PORCH W/STEPS | 3 | 0 | 1913 | 410.0 |
| | OWP | OPEN WOOD PORCH W/STEPS | 3 | 0 | 1913 | 324.0 |
| | oUTI | UTILITY | 3 | 0 | 1913 | 0.0 |
Sketch
Property Image
Land
| 1 | 17 | AC (01.01-02.00) | 0.0000 | 0.00 | 0.00 | 0.00 | 1.00 | $120,000 | $0 |
Roll Value History
| 2026 | N/A | N/A | N/A | N/A | N/A |
| 2025 | $81,307 | $120,000 | $0 | $201,307 | $201,307 |
| 2024 | $113,050 | $120,000 | $0 | $233,050 | $233,050 |
| 2023 | $114,896 | $110,000 | $0 | $224,896 | $224,896 |
| 2022 | $105,705 | $110,000 | $0 | $215,705 | $215,705 |
| 2021 | $93,374 | $110,000 | $0 | $203,374 | $203,374 |
| 2020 | $90,981 | $110,000 | $0 | $200,981 | $200,981 |
| 2019 | $64,051 | $110,000 | $0 | $174,051 | $174,051 |
| 2018 | $66,612 | $170,000 | $0 | $236,612 | $236,612 |
| 2017 | $67,246 | $150,000 | $0 | $217,246 | $74,143 |
| 2016 | $68,514 | $135,000 | $0 | $203,514 | $74,143 |
| 2015 | $69,783 | $135,000 | $0 | $204,783 | $74,143 |
| 2014 | $72,070 | $110,500 | $0 | $182,570 | $73,028 |
| 2013 | $73,663 | $110,500 | $0 | $184,163 | $73,665 |
| 2012 | $74,857 | $110,500 | $0 | $185,357 | $74,143 |
| 2011 | $76,049 | $130,000 | $0 | $206,049 | $206,049 |
| 2010 | $82,049 | $130,000 | $0 | $212,049 | $212,049 |
| 2009 | $86,017 | $155,000 | $0 | $241,017 | $241,017 |
| 2008 | $87,546 | $160,000 | $0 | $247,546 | $247,546 |
| 2007 | $86,750 | $170,000 | $0 | $256,750 | $256,750 |
Deed and Sales History
| 1 | 02/26/2025 | WD | Warranty Deed | MILLER, LYNN H | COINS, ALBERT | | | $125,000.00 | 62704 | 4582829 |
| 2 | 09/22/2022 | WD | Warranty Deed | LUHN, ALBERT R | MILLER, LYNN H | | | $250,000.00 | 54738 | 4552012 |
| 3 | 01/22/2021 | QCD | Quit Claim Deed | BERTO, JAMES A | LUHN, ALBERT R | | | $0.00 | 46676 | 4509000 |
| 4 | 09/26/2018 | WD | Warranty Deed | WALSH, CARLA D | BERTO, JAMES A | | | $182,000.00 | 36098 | 4452630 |
| 5 | 02/21/2017 | EZ | Easement | WALSH, CARLA D | PUGET SOUND ENERGY | | | $2,190.00 | 28491 | 4418999 |
| 6 | 09/01/1993 | WD | Warranty Deed | STRACK, ROBERT W | WALSH, CARLA D | | | $125,000.00 | 33535 | 93018430 |
| 7 | 08/01/1985 | DECREE | Divorce Decree/Legal Separation | STRACK, ROBERT W | STRACK, ROBERT W | | | $0.00 | 61253 | 86005886 |
| 8 | 12/01/1976 | EXECUTORD | Executor Deed | Unknown | STRACK, ROBERT W | | | $12,000.00 | 64517 | 0 |
Payout Agreement
| No payout information available.. |