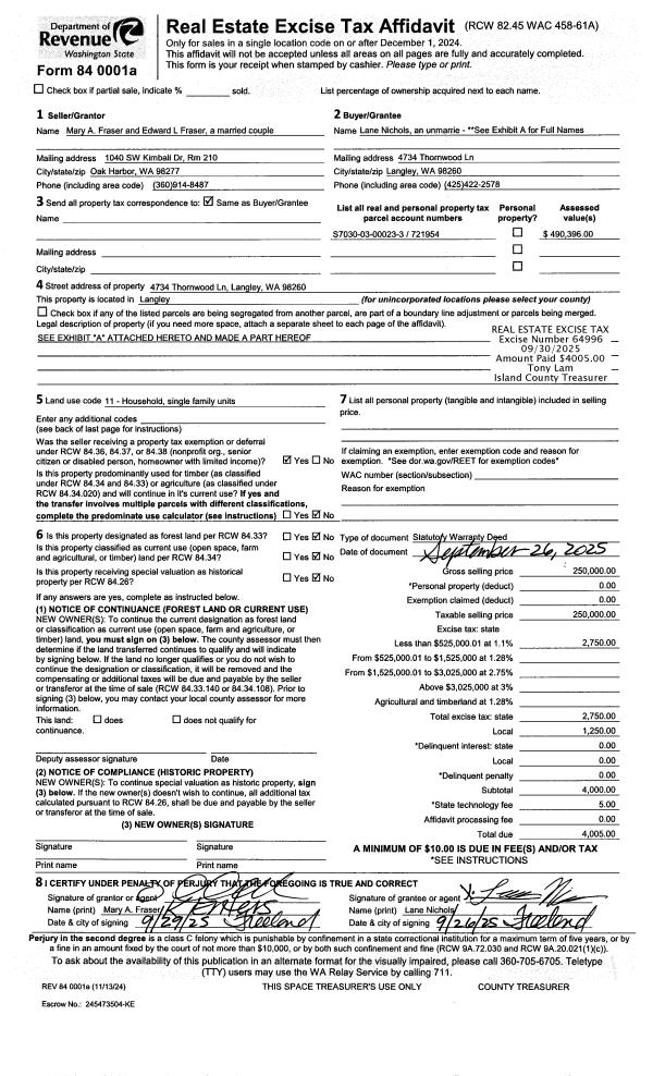
Property
Account |
| Property ID: | 143348 | Abbreviated Legal Description: | 43 - N/2 NE SW SE SUB TGW EZ |
| Geographic ID: | R32934-126-3400 | Agent Code: | |
| Type: | Real | | |
| Tax Area: | 712 - APPRAISER-S Whid Schl Dist, outside Langley, improved, greater than 1 acre | Land Use Code | 11 |
| Open Space: | N | DFL | N |
| Historic Property: | N | Remodel Property: | N |
| Multi-Family Redevelopment: | N | | |
| Township: | 29 | Section: | 34 |
| Range: | R3 |
Location |
| Address: | 3773 SPRINGWATER LN CLINTON, WA 98236 | Mapsco: | |
| Neighborhood: | Cycle 4 | Map ID: | 839 |
| Neighborhood CD: | 4 |
Owner |
| Name: | LANE, TANNER CALVIN | Owner ID: | 309094 |
| Mailing Address: | SYDNEY JEANE BOYLE PO BOX 1248 CLINTON, WA 98236 | % Ownership: | 100.0000000000% |
| | | Exemptions: | |
Taxes and Assessment Details
Values
| (+) Improvement Homesite Value: | + | $0 | |
| (+) Improvement Non-Homesite Value: | + | $360,958 | |
| (+) Land Homesite Value: | + | $0 | |
| (+) Land Non-Homesite Value: | + | $370,000 | |
| (+) Curr Use (HS): | + | $0 | $0 |
| (+) Curr Use (NHS): | + | $0 | $0 |
| | | -------------------------- | |
| (=) Market Value: | = | $730,958 | |
| (–) Productivity Loss: | – | $0 | |
| | | -------------------------- | |
| (=) Subtotal: | = | $730,958 | |
| (+) Senior Appraised Value: | + | $0 | |
| (+) Non-Senior Appraised Value: | + | $730,958 | |
| | | -------------------------- | |
| (=) Total Appraised Value: | = | $730,958 | |
| (–) Senior Exemption Loss: | – | $0 | |
| (–) Exemption Loss: | – | $0 | |
| | | -------------------------- | |
| (=) Taxable Value: | = | $730,958 | |
Taxing Jurisdiction
| Owner: | LANE, TANNER CALVIN | | |
| % Ownership: | 100.0000000000% | | |
| Total Value: | $730,958 | | |
| Tax Area: | 712 - APPRAISER-S Whid Schl Dist, outside Langley, improved, greater than 1 acre |
| CF | Conservation Futures | 0.0316035091 | $730,958 | $730,958 | $23.10 | | |
| FIRE3 | Fire & Rescue Dist #3 S Whidbey GEN | 1.2004855531 | $730,958 | $730,958 | $877.50 | | |
| HOBOND | Hospital BOND | 0.1910887512 | $730,958 | $730,958 | $139.68 | | |
| HOGEN | Hospital GEN | 0.3902502903 | $730,958 | $730,958 | $285.26 | | |
| CE | County Current Expense | 0.3708482477 | $730,958 | $730,958 | $271.07 | | |
| CR | County Roads | 0.4584763726 | $730,958 | $730,958 | $335.13 | | |
| ISLANDEMS | Hospital GEN (EMS) | 0.5000000000 | $730,958 | $730,958 | $365.48 | | |
| LIB | Library Sno-Isle GEN | 0.3153421757 | $730,958 | $730,958 | $230.50 | | |
| PORTWHID | Port of S Whidbey GEN | 0.1094540357 | $730,958 | $730,958 | $80.01 | | |
| SCH206BOND | School 206 BOND | 0.3161759235 | $730,958 | $730,958 | $231.11 | | |
| SCH206MO | School 206 Enrichment | 0.4547169547 | $730,958 | $730,958 | $332.38 | | |
| ST | State School | 1.3035497053 | $730,958 | $730,958 | $952.84 | | |
| ST2 | State School Part 2 | 0.8169543533 | $730,958 | $730,958 | $597.16 | | |
| SWHIDPRBD | P & R S Whidbey BOND | 0.0152817568 | $730,958 | $730,958 | $11.17 | | |
| SWHIDPRBD2 | P & R S Whidbey BOND2 | 0.0138911264 | $730,958 | $730,958 | $10.15 | | |
| SWHIDPRMT | P & R S Whidbey GEN | 0.2053334452 | $730,958 | $730,958 | $150.09 | | |
| | Total Tax Rate: | 6.6934522006 | | | | | |
| | | | | Taxes w/Current Exemptions: | $4,892.63 | | |
| | | | | Taxes w/o Exemptions: | $4,892.63 | | |
Improvement / Building
| Improvement #1: | RESIDENTIAL | State Code: | Y | 1194.7 sqft | Value: | $360,958 |
| Bathrooms: | 1.5 | Bedrooms: | 2 | | Ceiling: | DRYWALL PAINTED | Cooling: | HEAT PUMP/CONV/V | | Exterior Wall/Cover: | CEMENT FIBER | Floor Covering: | LAMINATE/LVP | | Floor Structure: | WOOD W/SUBFLOOR | Foundation: | CONCRETE | | Interior Finish: | DRYWALL PAINT | Plumbing Fixture Cnt: | 8 | | Roof Slope: | 4" IN 12" | Roof Structure/Cover: | CJ ASPHALT |
|
| | Type | Description | Class CD | Sub Class CD | Year Built | Area |
| | BAS | BASE/MAIN FLOOR | 3 | 0 | 2024 | 1194.7 |
| | AGR | ATTACHED GARAGE | 3 | 0 | 2024 | 621.7 |
| | BIG | BUILT IN GARAGE | 3 | 0 | 2024 | 1194.7 |
| | OWP | OPEN WOOD PORCH W/STEPS | 3 | 0 | 2024 | 355.7 |
| | OWC | OPEN WOOD PORCH W/STEPS/ROOF/C | 3 | 0 | 2024 | 144.0 |
Sketch
Property Image
Land
| 1 | 32 | AC (03.01-09.99) | 5.0000 | 0.00 | 0.00 | 0.00 | 1.00 | $370,000 | $0 |
Roll Value History
| 2026 | N/A | N/A | N/A | N/A | N/A |
| 2025 | $360,958 | $370,000 | $0 | $730,958 | $730,958 |
| 2024 | $102,438 | $230,000 | $0 | $332,438 | $332,438 |
| 2023 | $0 | $180,000 | $0 | $180,000 | $180,000 |
| 2022 | $0 | $170,000 | $0 | $170,000 | $170,000 |
| 2021 | $0 | $150,000 | $0 | $150,000 | $150,000 |
| 2020 | $0 | $150,000 | $0 | $150,000 | $150,000 |
| 2019 | $0 | $135,000 | $0 | $135,000 | $135,000 |
| 2018 | $0 | $130,000 | $0 | $130,000 | $130,000 |
| 2017 | $0 | $130,000 | $0 | $130,000 | $130,000 |
| 2016 | $0 | $130,000 | $0 | $130,000 | $130,000 |
| 2015 | $0 | $100,000 | $0 | $100,000 | $100,000 |
| 2014 | $0 | $135,000 | $0 | $135,000 | $135,000 |
| 2013 | $0 | $135,000 | $0 | $135,000 | $135,000 |
| 2012 | $0 | $135,000 | $0 | $135,000 | $135,000 |
| 2011 | $0 | $135,000 | $0 | $135,000 | $135,000 |
| 2010 | $0 | $135,000 | $0 | $135,000 | $135,000 |
| 2009 | $0 | $170,000 | $0 | $170,000 | $170,000 |
| 2008 | $0 | $170,000 | $0 | $170,000 | $170,000 |
| 2007 | $0 | $150,000 | $0 | $150,000 | $150,000 |
Deed and Sales History
| 1 | 06/23/2023 | WD | Warranty Deed | RICHEY, MICHAEL CLAY | LANE, TANNER CALVIN | | | $225,000.00 | 57123 | 4561519 |
| 2 | 02/26/2021 | WD | Warranty Deed | HELLAND, TIMOTHY JOHN | RICHEY, MICHAEL CLAY | | | $115,000.00 | 47152 | 4512359 |
| 3 | 04/26/2017 | WD | Warranty Deed | GILBERT, BYRON N | HELLAND, TIMOTHY JOHN | | | $42,000.00 | 29056 | 4421537 |
| 4 | 11/23/2016 | TRUSTEED | Trustee's Deed | GILBERT, TR, DONALD B | GILBERT, BYRON N | | | $0.00 | 27573 | 4414435 |
| 5 | 01/10/2002 | QCD | Quit Claim Deed | GILBERT, TR, DONALD B | GILBERT, TR, DONALD B | | | $0.00 | 21412 | 4017216 |
| 6 | 08/21/2000 | QCD | Quit Claim Deed | GILBERT, DONALD | GILBERT, TR, DONALD B | | | $0.00 | 3268 | 20015327 |
| 7 | 12/01/1984 | WD | Warranty Deed | SHERMAN, GERRY | GILBERT, DONALD | | | $17,000.00 | 43555 | 84006573 |
| 8 | 08/01/1978 | OTHER | Other - Misc. Documents | COLLEY, T J | SHERMAN, GERRY | | | $12,000.00 | 83852 | 337845 |
Payout Agreement
| No payout information available.. |