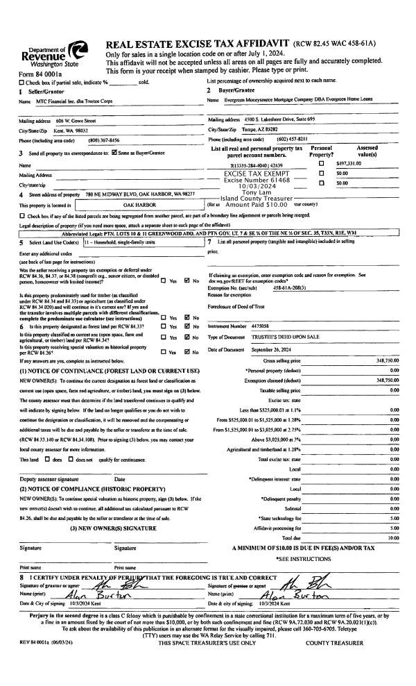
Property
Account |
| Property ID: | 143865 | Abbreviated Legal Description: | E/2 SW NE SE |
| Geographic ID: | R32935-164-4350 | Agent Code: | |
| Type: | Real | | |
| Tax Area: | 712 - APPRAISER-S Whid Schl Dist, outside Langley, improved, greater than 1 acre | Land Use Code | 11 |
| Open Space: | N | DFL | N |
| Historic Property: | N | Remodel Property: | N |
| Multi-Family Redevelopment: | N | | |
| Township: | 29 | Section: | 35 |
| Range: | R3 |
Location |
| Address: | 7339 HEGGENES RD CLINTON, WA 98236 | Mapsco: | |
| Neighborhood: | Cycle 4 | Map ID: | 843 |
| Neighborhood CD: | 4 |
Owner |
| Name: | ALEXANDER, TOHNIA THERESA | Owner ID: | 296953 |
| Mailing Address: | 7339 HEGGENES ROAD CLINTON, WA 98236 | % Ownership: | 100.0000000000% |
| | | Exemptions: | |
Taxes and Assessment Details
Values
| (+) Improvement Homesite Value: | + | $0 | |
| (+) Improvement Non-Homesite Value: | + | $144,497 | |
| (+) Land Homesite Value: | + | $0 | |
| (+) Land Non-Homesite Value: | + | $270,000 | |
| (+) Curr Use (HS): | + | $0 | $0 |
| (+) Curr Use (NHS): | + | $0 | $0 |
| | | -------------------------- | |
| (=) Market Value: | = | $414,497 | |
| (–) Productivity Loss: | – | $0 | |
| | | -------------------------- | |
| (=) Subtotal: | = | $414,497 | |
| (+) Senior Appraised Value: | + | $0 | |
| (+) Non-Senior Appraised Value: | + | $414,497 | |
| | | -------------------------- | |
| (=) Total Appraised Value: | = | $414,497 | |
| (–) Senior Exemption Loss: | – | $0 | |
| (–) Exemption Loss: | – | $0 | |
| | | -------------------------- | |
| (=) Taxable Value: | = | $414,497 | |
Taxing Jurisdiction
| Owner: | ALEXANDER, TOHNIA THERESA | | |
| % Ownership: | 100.0000000000% | | |
| Total Value: | $414,497 | | |
| Tax Area: | 712 - APPRAISER-S Whid Schl Dist, outside Langley, improved, greater than 1 acre |
| CF | Conservation Futures | 0.0316035091 | $414,497 | $414,497 | $13.10 | | |
| FIRE3 | Fire & Rescue Dist #3 S Whidbey GEN | 1.2004855531 | $414,497 | $414,497 | $497.60 | | |
| HOBOND | Hospital BOND | 0.1910887512 | $414,497 | $414,497 | $79.21 | | |
| HOGEN | Hospital GEN | 0.3902502903 | $414,497 | $414,497 | $161.76 | | |
| CE | County Current Expense | 0.3708482477 | $414,497 | $414,497 | $153.72 | | |
| CR | County Roads | 0.4584763726 | $414,497 | $414,497 | $190.04 | | |
| ISLANDEMS | Hospital GEN (EMS) | 0.5000000000 | $414,497 | $414,497 | $207.25 | | |
| LIB | Library Sno-Isle GEN | 0.3153421757 | $414,497 | $414,497 | $130.71 | | |
| PORTWHID | Port of S Whidbey GEN | 0.1094540357 | $414,497 | $414,497 | $45.37 | | |
| SCH206BOND | School 206 BOND | 0.3161759235 | $414,497 | $414,497 | $131.05 | | |
| SCH206MO | School 206 Enrichment | 0.4547169547 | $414,497 | $414,497 | $188.48 | | |
| ST | State School | 1.3035497053 | $414,497 | $414,497 | $540.32 | | |
| ST2 | State School Part 2 | 0.8169543533 | $414,497 | $414,497 | $338.63 | | |
| SWHIDPRBD | P & R S Whidbey BOND | 0.0152817568 | $414,497 | $414,497 | $6.33 | | |
| SWHIDPRBD2 | P & R S Whidbey BOND2 | 0.0138911264 | $414,497 | $414,497 | $5.76 | | |
| SWHIDPRMT | P & R S Whidbey GEN | 0.2053334452 | $414,497 | $414,497 | $85.11 | | |
| | Total Tax Rate: | 6.6934522006 | | | | | |
| | | | | Taxes w/Current Exemptions: | $2,774.44 | | |
| | | | | Taxes w/o Exemptions: | $2,774.44 | | |
Improvement / Building
| Improvement #1: | RESIDENTIAL | State Code: | Y | 900.0 sqft | Value: | $144,497 |
| Bathrooms: | 1 | Bedrooms: | 2 | | Ceiling: | (NONE) | Cooling: | (NONE) | | Exterior Wall/Cover: | VINYL | Floor Covering: | (NONE) | | Floor Structure: | WOOD W/SUBFLOOR | Foundation: | CONCRETE | | Interior Finish: | (NONE) | Plumbing Fixture Cnt: | 1 | | Roof Slope: | 3" IN 12" | Roof Structure/Cover: | STEEL TERNE |
|
| | Type | Description | Class CD | Sub Class CD | Year Built | Area |
| | BAS | BASE/MAIN FLOOR | 3 | 0 | 2023 | 900.0 |
| | OWP | OPEN WOOD PORCH W/STEPS | 3 | 0 | 2023 | 24.0 |
| | OWP | OPEN WOOD PORCH W/STEPS | 3 | 0 | 2023 | 24.0 |
| | ENP | ENCLOSED PORCH | 3 | 0 | 2023 | 192.0 |
| | OWR | OPEN WOOD PORCH W/STEPS/ROOF | 3 | 0 | 2023 | 104.0 |
| | ENP | ENCLOSED PORCH | 3 | 0 | 2023 | 120.0 |
Sketch
Property Image
Land
| 1 | 32 | AC (03.01-09.99) | 5.0000 | 0.00 | 0.00 | 0.00 | 1.00 | $270,000 | $0 |
Roll Value History
| 2026 | N/A | N/A | N/A | N/A | N/A |
| 2025 | $144,497 | $270,000 | $0 | $414,497 | $414,497 |
| 2024 | $139,655 | $220,000 | $0 | $359,655 | $359,655 |
| 2023 | $96,757 | $200,000 | $0 | $296,757 | $296,757 |
| 2022 | $13,500 | $170,000 | $0 | $183,500 | $183,500 |
| 2021 | $4,000 | $150,000 | $0 | $154,000 | $154,000 |
| 2020 | $4,000 | $150,000 | $0 | $154,000 | $154,000 |
| 2019 | $4,000 | $120,000 | $0 | $124,000 | $124,000 |
| 2018 | $4,000 | $210,000 | $0 | $214,000 | $214,000 |
| 2017 | $4,000 | $165,000 | $0 | $169,000 | $169,000 |
| 2016 | $4,000 | $165,000 | $0 | $169,000 | $169,000 |
| 2015 | $4,000 | $150,000 | $0 | $154,000 | $154,000 |
| 2014 | $4,000 | $150,000 | $0 | $154,000 | $154,000 |
| 2013 | $4,000 | $135,000 | $0 | $139,000 | $139,000 |
| 2012 | $4,000 | $135,000 | $0 | $139,000 | $139,000 |
| 2011 | $4,000 | $135,000 | $0 | $139,000 | $139,000 |
| 2010 | $4,000 | $135,000 | $0 | $139,000 | $139,000 |
| 2009 | $4,000 | $200,000 | $0 | $204,000 | $204,000 |
| 2008 | $4,008 | $186,000 | $0 | $190,008 | $190,008 |
| 2007 | $4,008 | $186,000 | $0 | $190,008 | $190,008 |
Deed and Sales History
| 1 | 09/25/2020 | WD | Warranty Deed | MULCAHY, FRANCIS J | ALEXANDER, TOHNIA THERESA | | | $200,000.00 | 45249 | 4499578 |
| 2 | 07/13/2015 | EZ | Easement | MULCAHY, FRANCIS J | MULCAHY, FRANCIS J | | | $500.00 | 20706 | 4383161 |
| 3 | 01/01/1984 | OTHER | Other - Misc. Documents | MULCAHY, FRANCIS J | MULCAHY, FRANCIS J | | | $7,000.00 | 40239 | 0 |
| 4 | 06/01/1982 | EXECUTORD | Executor Deed | NILES, WILMER J | MULCAHY, FRANCIS J | | | $28,000.00 | 21489 | 397662 |
| 5 | 01/01/1900 | OTHER | Other - Misc. Documents | Unknown | NILES, WILMER J | | | $0.00 | 0 | 0 |
| 6 | 01/01/1900 | OTHER | Other - Misc. Documents | NILES, WILMER J | NILES, WILMER J | | | $0.00 | 0 | 0 |
Payout Agreement
| No payout information available.. |