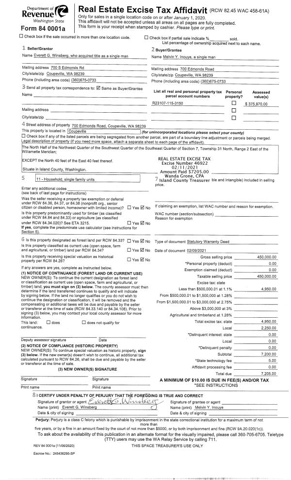
Property
Account |
| Property ID: | 143972 | Abbreviated Legal Description: | 7 - N1/2 NE SE EX SWLY OF HOLST RD 7 |
| Geographic ID: | R32935-228-4610 | Agent Code: | |
| Type: | Real | | |
| Tax Area: | 712 - APPRAISER-S Whid Schl Dist, outside Langley, improved, greater than 1 acre | Land Use Code | 88 |
| Open Space: | N | DFL | Y |
| Historic Property: | N | Remodel Property: | N |
| Multi-Family Redevelopment: | N | | |
| Township: | 29 | Section: | 35 |
| Range: | R3 |
Location |
| Address: | 7326 HEGGENES RD CLINTON, WA 98236 | Mapsco: | |
| Neighborhood: | Cycle 4 | Map ID: | 843 |
| Neighborhood CD: | 4 |
Owner |
| Name: | SKRIPEK, MICHAEL PHILLIP | Owner ID: | 294295 |
| Mailing Address: | KATHLEEN ELIZABETH SKRIPEK 7326 HEGGENES RD CLINTON, WA 98236 | % Ownership: | 100.0000000000% |
| | | Exemptions: | |
Taxes and Assessment Details
Values
| (+) Improvement Homesite Value: | + | $0 | |
| (+) Improvement Non-Homesite Value: | + | $554,983 | |
| (+) Land Homesite Value: | + | $0 | |
| (+) Land Non-Homesite Value: | + | $282,282 | |
| (+) Curr Use (HS): | + | $0 | $0 |
| (+) Curr Use (NHS): | + | $117,718 | $2,602 |
| | | -------------------------- | |
| (=) Market Value: | = | $954,983 | |
| (–) Productivity Loss: | – | $115,116 | |
| | | -------------------------- | |
| (=) Subtotal: | = | $839,867 | |
| (+) Senior Appraised Value: | + | $0 | |
| (+) Non-Senior Appraised Value: | + | $839,867 | |
| | | -------------------------- | |
| (=) Total Appraised Value: | = | $839,867 | |
| (–) Senior Exemption Loss: | – | $0 | |
| (–) Exemption Loss: | – | $0 | |
| | | -------------------------- | |
| (=) Taxable Value: | = | $839,867 | |
Taxing Jurisdiction
| Owner: | SKRIPEK, MICHAEL PHILLIP | | |
| % Ownership: | 100.0000000000% | | |
| Total Value: | $954,983 | | |
| Tax Area: | 712 - APPRAISER-S Whid Schl Dist, outside Langley, improved, greater than 1 acre |
| CF | Conservation Futures | 0.0316035091 | $839,867 | $839,867 | $26.54 | | |
| FIRE3 | Fire & Rescue Dist #3 S Whidbey GEN | 1.2004855531 | $839,867 | $839,867 | $1,008.25 | | |
| HOBOND | Hospital BOND | 0.1910887512 | $839,867 | $839,867 | $160.49 | | |
| HOGEN | Hospital GEN | 0.3902502903 | $839,867 | $839,867 | $327.76 | | |
| CE | County Current Expense | 0.3708482477 | $839,867 | $839,867 | $311.46 | | |
| CR | County Roads | 0.4584763726 | $839,867 | $839,867 | $385.06 | | |
| ISLANDEMS | Hospital GEN (EMS) | 0.5000000000 | $839,867 | $839,867 | $419.93 | | |
| LIB | Library Sno-Isle GEN | 0.3153421757 | $839,867 | $839,867 | $264.85 | | |
| PORTWHID | Port of S Whidbey GEN | 0.1094540357 | $839,867 | $839,867 | $91.93 | | |
| SCH206BOND | School 206 BOND | 0.3161759235 | $839,867 | $839,867 | $265.55 | | |
| SCH206MO | School 206 Enrichment | 0.4547169547 | $839,867 | $839,867 | $381.90 | | |
| ST | State School | 1.3035497053 | $839,867 | $839,867 | $1,094.81 | | |
| ST2 | State School Part 2 | 0.8169543533 | $839,867 | $839,867 | $686.13 | | |
| SWHIDPRBD | P & R S Whidbey BOND | 0.0152817568 | $839,867 | $839,867 | $12.83 | | |
| SWHIDPRBD2 | P & R S Whidbey BOND2 | 0.0138911264 | $839,867 | $839,867 | $11.67 | | |
| SWHIDPRMT | P & R S Whidbey GEN | 0.2053334452 | $839,867 | $839,867 | $172.45 | | |
| | Total Tax Rate: | 6.6934522006 | | | | | |
| | | | | Taxes w/Current Exemptions: | $5,621.61 | | |
| | | | | Taxes w/o Exemptions: | $5,621.61 | | |
Improvement / Building
| Improvement #1: | RESIDENTIAL | State Code: | Y | 2288.3 sqft | Value: | $554,983 |
| Bathrooms: | 2 | Bedrooms: | 3 | | Ceiling: | DRYWALL PAINTED | Exterior Wall/Cover: | WOOD SIDING | | Floor Covering: | CARPET/VINYL 80-20 | Floor Structure: | WOOD W/SUBFLOOR | | Foundation: | CONCRETE | Heating: | FHA GAS | | Interior Finish: | DRYWALL PAINT | Plumbing Fixture Cnt: | 10 | | Roof Slope: | 8" IN 12" | Roof Structure/Cover: | CJ ASPHALT |
|
| | Type | Description | Class CD | Sub Class CD | Year Built | Area |
| | BAS | BASE/MAIN FLOOR | 3 | 0 | 1990 | 1227.0 |
| | UPS | UPPER STORY | 3 | 0 | 1990 | 1061.3 |
| | ATU | ATTIC UNFINISHED | 3 | 0 | 1990 | 340.0 |
| | OWP | OPEN WOOD PORCH W/STEPS | 3 | 0 | 1990 | 242.0 |
| | OWR | OPEN WOOD PORCH W/STEPS/ROOF | 3 | 0 | 1990 | 480.0 |
| | DGR | DETACHED GARAGE | 3 | 0 | 1990 | 528.0 |
| | UTY | STORAGE/UTILITY | 3 | 0 | 1990 | 600.0 |
| | ENP | ENCLOSED PORCH | 3 | 0 | 1990 | 600.0 |
| | CPD | OPEN CARPORT DIRT FLOOR | 3 | 0 | 1990 | 240.0 |
| | UTY | STORAGE/UTILITY | 3 | 0 | 2021 | 5280.0 |
Sketch
Property Image
Land
| 1 | 88 | DESIGNATED FOREST | 7.0000 | 304920.00 | 0.00 | 0.00 | 1.00 | $51,989 | $1,302 |
| 2 | HS | HOMESITE | 1.0000 | 43560.00 | 0.00 | 0.00 | 1.00 | $260,000 | $0 |
| 3 | 88 | DESIGNATED FOREST | 4.2200 | 183823.20 | 0.00 | 0.00 | 1.00 | $31,342 | $629 |
| 4 | 88 | DESIGNATED FOREST | 4.6300 | 201682.80 | 0.00 | 0.00 | 1.00 | $34,387 | $671 |
| 5 | 91 | UNDEVELOPED LAND-METES AND BOUNDS | 3.0000 | 130680.00 | 0.00 | 0.00 | 2.00 | $22,282 | $0 |
Roll Value History
| 2026 | N/A | N/A | N/A | N/A | N/A |
| 2025 | $554,983 | $400,000 | $2,602 | $839,867 | $839,867 |
| 2024 | $562,665 | $360,000 | $2,618 | $833,463 | $833,463 |
| 2023 | $570,347 | $380,000 | $2,509 | $649,430 | $649,430 |
| 2022 | $523,367 | $380,000 | $2,509 | $602,450 | $602,450 |
| 2021 | $323,861 | $300,000 | $2,509 | $386,823 | $386,823 |
| 2020 | $250,029 | $300,000 | $2,509 | $312,991 | $312,991 |
| 2019 | $199,750 | $350,000 | $2,423 | $272,702 | $272,702 |
| 2018 | $200,380 | $245,000 | $2,391 | $252,143 | $252,143 |
| 2017 | $211,628 | $235,000 | $2,391 | $261,374 | $261,374 |
| 2016 | $214,277 | $235,000 | $1,601 | $263,214 | $263,214 |
| 2015 | $216,928 | $235,000 | $1,601 | $265,865 | $265,865 |
| 2014 | $221,282 | $202,470 | $1,601 | $263,683 | $263,683 |
| 2013 | $223,931 | $202,470 | $1,601 | $266,332 | $266,332 |
| 2012 | $0 | $134,725 | $1,601 | $1,601 | $1,601 |
| 2011 | $0 | $158,500 | $1,601 | $1,601 | $1,601 |
| 2010 | $0 | $158,500 | $1,601 | $1,601 | $1,601 |
| 2009 | $0 | $237,750 | $1,601 | $1,601 | $1,601 |
| 2008 | $0 | $321,755 | $1,601 | $1,601 | $1,601 |
| 2007 | $0 | $402,955 | $4,578 | $1,601 | $1,601 |
Deed and Sales History
| 1 | 02/26/2020 | WD | Warranty Deed | KROGSENG, KYLA ADRIENNE ROTH | SKRIPEK, MICHAEL PHILLIP | | | $790,000.00 | 42680 | 4485003 |
| 2 | 03/06/2006 | PRD | Personal Representatives Deed | KROGSENG, SHARON ROTH | KROGSENG, KYLA ADRIENNE ROTH | | | $0.00 | 63921 | 4181466 |
| 3 | 10/18/2001 | DECREE | Divorce Decree/Legal Separation | KROGSENG, PETER J | KROGSENG, SHARON ROTH | | | $0.00 | 69145 | 0 |
| 4 | 03/01/1980 | EZ | Easement | KROGSENG, PETER J | KROGSENG, PETER J | | | $0.00 | 1279 | 367673 |
| 5 | 06/01/1975 | EXECUTORD | Executor Deed | ROBERTS, GEORGE W | KROGSENG, PETER J | | | $0.00 | 55708 | 0 |
| 6 | 01/01/1900 | OTHER | Other - Misc. Documents | Unknown | ROBERTS, GEORGE W | | | $0.00 | 0 | 0 |
Payout Agreement
| No payout information available.. |