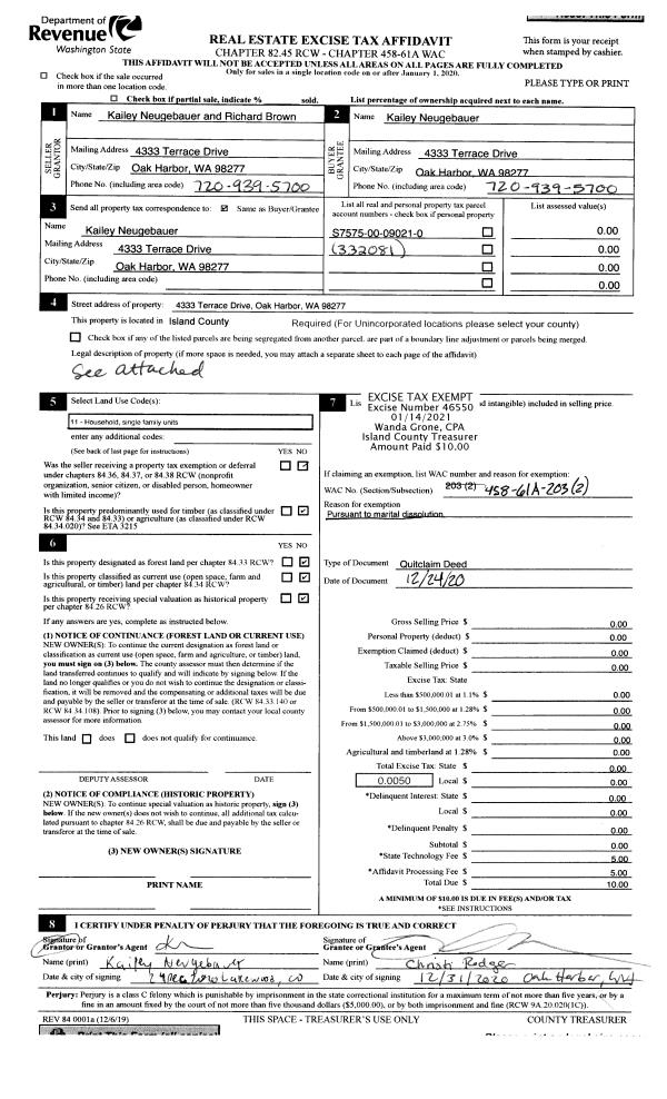
Property
Account |
| Property ID: | 144221 | Abbreviated Legal Description: | 26 - S/2 OF N2/3 OF FOLL: N3/4 OF E/2 NW NE EX N400' |
| Geographic ID: | R32935-454-3700 | Agent Code: | |
| Type: | Real | | |
| Tax Area: | 712 - APPRAISER-S Whid Schl Dist, outside Langley, improved, greater than 1 acre | Land Use Code | 11 |
| Open Space: | N | DFL | N |
| Historic Property: | N | Remodel Property: | N |
| Multi-Family Redevelopment: | N | | |
| Township: | 29 | Section: | 35 |
| Range: | R3 |
Location |
| Address: | 6848 HOLST RD CLINTON, WA 98236 | Mapsco: | |
| Neighborhood: | Cycle 4 | Map ID: | 845 |
| Neighborhood CD: | 4 |
Owner |
| Name: | CHEN, WEN YI | Owner ID: | 279154 |
| Mailing Address: | 6848 HOLST RD CLINTON, WA 98236 | % Ownership: | 100.0000000000% |
| | | Exemptions: | |
Taxes and Assessment Details
Values
| (+) Improvement Homesite Value: | + | $0 | |
| (+) Improvement Non-Homesite Value: | + | $134,136 | |
| (+) Land Homesite Value: | + | $0 | |
| (+) Land Non-Homesite Value: | + | $310,000 | |
| (+) Curr Use (HS): | + | $0 | $0 |
| (+) Curr Use (NHS): | + | $0 | $0 |
| | | -------------------------- | |
| (=) Market Value: | = | $444,136 | |
| (–) Productivity Loss: | – | $0 | |
| | | -------------------------- | |
| (=) Subtotal: | = | $444,136 | |
| (+) Senior Appraised Value: | + | $0 | |
| (+) Non-Senior Appraised Value: | + | $444,136 | |
| | | -------------------------- | |
| (=) Total Appraised Value: | = | $444,136 | |
| (–) Senior Exemption Loss: | – | $0 | |
| (–) Exemption Loss: | – | $0 | |
| | | -------------------------- | |
| (=) Taxable Value: | = | $444,136 | |
Taxing Jurisdiction
| Owner: | CHEN, WEN YI | | |
| % Ownership: | 100.0000000000% | | |
| Total Value: | $444,136 | | |
| Tax Area: | 712 - APPRAISER-S Whid Schl Dist, outside Langley, improved, greater than 1 acre |
| CF | Conservation Futures | 0.0316035091 | $444,136 | $444,136 | $14.04 | | |
| FIRE3 | Fire & Rescue Dist #3 S Whidbey GEN | 1.2004855531 | $444,136 | $444,136 | $533.18 | | |
| HOBOND | Hospital BOND | 0.1910887512 | $444,136 | $444,136 | $84.87 | | |
| HOGEN | Hospital GEN | 0.3902502903 | $444,136 | $444,136 | $173.32 | | |
| CE | County Current Expense | 0.3708482477 | $444,136 | $444,136 | $164.71 | | |
| CR | County Roads | 0.4584763726 | $444,136 | $444,136 | $203.63 | | |
| ISLANDEMS | Hospital GEN (EMS) | 0.5000000000 | $444,136 | $444,136 | $222.07 | | |
| LIB | Library Sno-Isle GEN | 0.3153421757 | $444,136 | $444,136 | $140.05 | | |
| PORTWHID | Port of S Whidbey GEN | 0.1094540357 | $444,136 | $444,136 | $48.61 | | |
| SCH206BOND | School 206 BOND | 0.3161759235 | $444,136 | $444,136 | $140.43 | | |
| SCH206MO | School 206 Enrichment | 0.4547169547 | $444,136 | $444,136 | $201.96 | | |
| ST | State School | 1.3035497053 | $444,136 | $444,136 | $578.95 | | |
| ST2 | State School Part 2 | 0.8169543533 | $444,136 | $444,136 | $362.84 | | |
| SWHIDPRBD | P & R S Whidbey BOND | 0.0152817568 | $444,136 | $444,136 | $6.79 | | |
| SWHIDPRBD2 | P & R S Whidbey BOND2 | 0.0138911264 | $444,136 | $444,136 | $6.17 | | |
| SWHIDPRMT | P & R S Whidbey GEN | 0.2053334452 | $444,136 | $444,136 | $91.20 | | |
| | Total Tax Rate: | 6.6934522006 | | | | | |
| | | | | Taxes w/Current Exemptions: | $2,972.82 | | |
| | | | | Taxes w/o Exemptions: | $2,972.82 | | |
Improvement / Building
| Improvement #1: | RESIDENTIAL | State Code: | Y | 1040.0 sqft | Value: | $134,136 |
| Bathrooms: | 1 | Ceiling: | DRYWALL PAINTED | | Exterior Wall/Cover: | WOOD SIDING | Floor Covering: | VINYL 100% | | Floor Structure: | WOOD W/SUBFLOOR | Foundation: | SLAB | | Heating: | FHA GAS | Interior Finish: | DRYWALL PAINT | | Plumbing Fixture Cnt: | 6 | Roof Slope: | 4" IN 12" | | Roof Structure/Cover: | CJ ASPHALT |   |   |
|
| | Type | Description | Class CD | Sub Class CD | Year Built | Area |
| | BAS | BASE/MAIN FLOOR | 2 | 0 | 1980 | 1040.0 |
| | BIG | BUILT IN GARAGE | 2 | 0 | 1980 | 2573.8 |
| | OWP | OPEN WOOD PORCH W/STEPS | 2 | 0 | 1980 | 160.0 |
| | OCP | OPEN CARPORT | 2 | 0 | 1980 | 128.0 |
| | UTY | STORAGE/UTILITY | 2 | 0 | 1980 | 96.0 |
| | UTY | STORAGE/UTILITY | 2 | 0 | 1980 | 96.0 |
Sketch
| No sketches available for this property. |
Property Image
Land
| 1 | 18 | AC (02.01-03.00) | 3.0000 | 130680.00 | 0.00 | 0.00 | 1.00 | $310,000 | $0 |
Roll Value History
| 2026 | N/A | N/A | N/A | N/A | N/A |
| 2025 | $134,136 | $310,000 | $0 | $444,136 | $444,136 |
| 2024 | $135,929 | $300,000 | $0 | $435,929 | $435,929 |
| 2023 | $137,722 | $290,000 | $0 | $427,722 | $427,722 |
| 2022 | $127,613 | $260,000 | $0 | $387,613 | $387,613 |
| 2021 | $114,153 | $175,000 | $0 | $289,153 | $289,153 |
| 2020 | $100,131 | $165,000 | $0 | $265,131 | $265,131 |
| 2019 | $75,945 | $200,000 | $0 | $275,945 | $275,945 |
| 2018 | $76,165 | $170,000 | $0 | $246,165 | $246,165 |
| 2017 | $76,602 | $150,000 | $0 | $226,602 | $226,602 |
| 2016 | $39,365 | $130,000 | $0 | $169,365 | $169,365 |
| 2015 | $39,365 | $100,000 | $0 | $139,365 | $139,365 |
| 2014 | $25,493 | $100,000 | $0 | $125,493 | $125,493 |
| 2013 | $26,413 | $85,000 | $0 | $111,413 | $111,413 |
| 2012 | $26,413 | $69,700 | $0 | $96,113 | $96,113 |
| 2011 | $26,413 | $82,000 | $0 | $108,413 | $108,413 |
| 2010 | $27,916 | $82,000 | $0 | $109,916 | $109,916 |
| 2009 | $30,264 | $155,000 | $0 | $185,264 | $185,264 |
| 2008 | $31,622 | $166,750 | $0 | $198,372 | $198,372 |
| 2007 | $33,965 | $166,750 | $0 | $200,715 | $200,715 |
Deed and Sales History
| 1 | 03/23/2017 | WD | Warranty Deed | ATKINS, THOMAS | CHEN, WEN YI | | | $235,000.00 | 28633 | 4419775 |
| 2 | 07/13/2006 | WD | Warranty Deed | HAYWARD, CHARLES S | ATKINS, THOMAS | | | $180,000.00 | 63053 | 4175857 |
| 3 | 09/01/1994 | WD | Warranty Deed | SCHMIDT, WILLIAM J | HAYWARD, CHARLES S | | | $87,637.00 | 43978 | 94020604 |
| 4 | 09/01/1989 | WD | Warranty Deed | MACINDOE, RONALD J | SCHMIDT, WILLIAM J | | | $21,500.00 | 94101 | 89013557 |
| 5 | 08/01/1987 | WD | Warranty Deed | HILL, BERNICE | MACINDOE, RONALD J | | | $12,000.00 | 72864 | 87012776 |
| 6 | 01/01/1900 | OTHER | Other - Misc. Documents | Unknown | HILL, BERNICE | | | $0.00 | 0 | 0 |
Payout Agreement
| No payout information available.. |