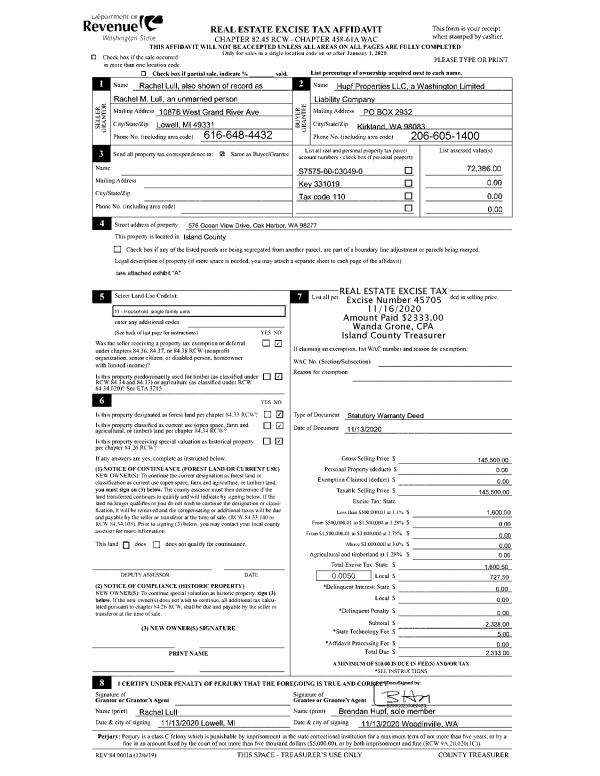
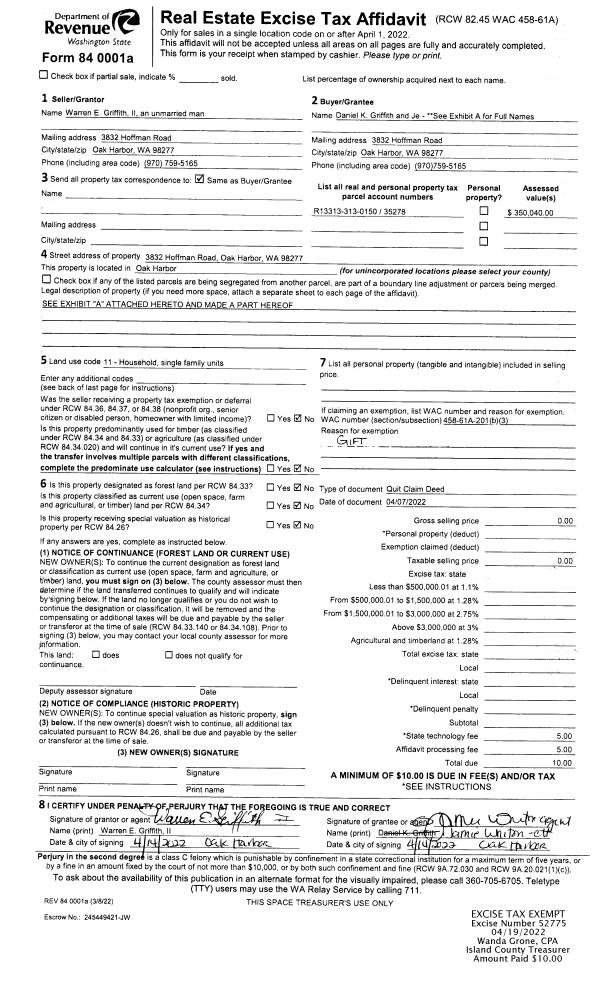
Property
Account |
| Property ID: | 144837 | Abbreviated Legal Description: | 10 - S1/2 SE NW NW TGW & SUBJ TO EZ AC ADJ 5/6/83 |
| Geographic ID: | R32936-405-1100 | Agent Code: | |
| Type: | Real | | |
| Tax Area: | 712 - APPRAISER-S Whid Schl Dist, outside Langley, improved, greater than 1 acre | Land Use Code | 11 |
| Open Space: | N | DFL | N |
| Historic Property: | N | Remodel Property: | N |
| Multi-Family Redevelopment: | N | | |
| Township: | 29 | Section: | 36 |
| Range: | R3 |
Location |
| Address: | 4456 CEDAR RIDGE DR CLINTON, WA 98236 | Mapsco: | |
| Neighborhood: | Cycle 4 | Map ID: | 848 |
| Neighborhood CD: | 4 |
Owner |
| Name: | STEBBINS, ARLENE ISAACSON | Owner ID: | 302581 |
| Mailing Address: | JOHN G STEBBINS & ROBIN W STEBBINS PO BOX 36 CLINTON, WA 98236 | % Ownership: | 100.0000000000% |
| | | Exemptions: | |
Taxes and Assessment Details
Values
| (+) Improvement Homesite Value: | + | $0 | |
| (+) Improvement Non-Homesite Value: | + | $353,499 | |
| (+) Land Homesite Value: | + | $0 | |
| (+) Land Non-Homesite Value: | + | $360,000 | |
| (+) Curr Use (HS): | + | $0 | $0 |
| (+) Curr Use (NHS): | + | $0 | $0 |
| | | -------------------------- | |
| (=) Market Value: | = | $713,499 | |
| (–) Productivity Loss: | – | $0 | |
| | | -------------------------- | |
| (=) Subtotal: | = | $713,499 | |
| (+) Senior Appraised Value: | + | $0 | |
| (+) Non-Senior Appraised Value: | + | $713,499 | |
| | | -------------------------- | |
| (=) Total Appraised Value: | = | $713,499 | |
| (–) Senior Exemption Loss: | – | $0 | |
| (–) Exemption Loss: | – | $0 | |
| | | -------------------------- | |
| (=) Taxable Value: | = | $713,499 | |
Taxing Jurisdiction
| Owner: | STEBBINS, ARLENE ISAACSON | | |
| % Ownership: | 100.0000000000% | | |
| Total Value: | $713,499 | | |
| Tax Area: | 712 - APPRAISER-S Whid Schl Dist, outside Langley, improved, greater than 1 acre |
| CF | Conservation Futures | 0.0316035091 | $713,499 | $713,499 | $22.55 | | |
| FIRE3 | Fire & Rescue Dist #3 S Whidbey GEN | 1.2004855531 | $713,499 | $713,499 | $856.55 | | |
| HOBOND | Hospital BOND | 0.1910887512 | $713,499 | $713,499 | $136.34 | | |
| HOGEN | Hospital GEN | 0.3902502903 | $713,499 | $713,499 | $278.44 | | |
| CE | County Current Expense | 0.3708482477 | $713,499 | $713,499 | $264.60 | | |
| CR | County Roads | 0.4584763726 | $713,499 | $713,499 | $327.12 | | |
| ISLANDEMS | Hospital GEN (EMS) | 0.5000000000 | $713,499 | $713,499 | $356.75 | | |
| LIB | Library Sno-Isle GEN | 0.3153421757 | $713,499 | $713,499 | $225.00 | | |
| PORTWHID | Port of S Whidbey GEN | 0.1094540357 | $713,499 | $713,499 | $78.10 | | |
| SCH206BOND | School 206 BOND | 0.3161759235 | $713,499 | $713,499 | $225.59 | | |
| SCH206MO | School 206 Enrichment | 0.4547169547 | $713,499 | $713,499 | $324.44 | | |
| ST | State School | 1.3035497053 | $713,499 | $713,499 | $930.08 | | |
| ST2 | State School Part 2 | 0.8169543533 | $713,499 | $713,499 | $582.90 | | |
| SWHIDPRBD | P & R S Whidbey BOND | 0.0152817568 | $713,499 | $713,499 | $10.90 | | |
| SWHIDPRBD2 | P & R S Whidbey BOND2 | 0.0138911264 | $713,499 | $713,499 | $9.91 | | |
| SWHIDPRMT | P & R S Whidbey GEN | 0.2053334452 | $713,499 | $713,499 | $146.51 | | |
| | Total Tax Rate: | 6.6934522006 | | | | | |
| | | | | Taxes w/Current Exemptions: | $4,775.78 | | |
| | | | | Taxes w/o Exemptions: | $4,775.78 | | |
Improvement / Building
| Improvement #1: | RESIDENTIAL | State Code: | Y | 2079.0 sqft | Value: | $353,499 |
| Bathrooms: | 3 | Bedrooms: | 2 | | Ceiling: | DRY WALL SPRAYED | Exterior Wall/Cover: | VINYL | | Floor Covering: | CARPET/VINYL 80-20 | Floor Structure: | SLAB ON GRADE | | Foundation: | SLAB/CONCRETE | Heating: | FHA GAS | | Interior Finish: | DRYWALL PAINT | Plumbing Fixture Cnt: | 13 | | Roof Slope: | 3" IN 12" | Roof Structure/Cover: | CJ ALUMINIUM HEAVY |
|
| | Type | Description | Class CD | Sub Class CD | Year Built | Area |
| | BAS | BASE/MAIN FLOOR | 3 | 0 | 1977 | 2079.0 |
| | UTY | STORAGE/UTILITY | 3 | 0 | 1977 | 1701.0 |
| | BIG | BUILT IN GARAGE | 3 | 0 | 1977 | 2079.0 |
| | DGR | DETACHED GARAGE | 3 | 0 | 1977 | 768.0 |
Sketch
Property Image
Land
| 1 | 32 | AC (03.01-09.99) | 4.5300 | 0.00 | 0.00 | 0.00 | 1.00 | $360,000 | $0 |
Roll Value History
| 2026 | N/A | N/A | N/A | N/A | N/A |
| 2025 | $353,499 | $360,000 | $0 | $713,499 | $713,499 |
| 2024 | $358,756 | $340,000 | $0 | $698,756 | $698,756 |
| 2023 | $364,014 | $330,000 | $0 | $694,014 | $694,014 |
| 2022 | $334,381 | $280,000 | $0 | $614,381 | $614,381 |
| 2021 | $294,888 | $230,000 | $0 | $524,888 | $524,888 |
| 2020 | $256,137 | $190,000 | $0 | $446,137 | $446,137 |
| 2019 | $212,077 | $220,000 | $0 | $432,077 | $432,077 |
| 2018 | $212,916 | $210,000 | $0 | $422,916 | $422,916 |
| 2017 | $214,592 | $165,000 | $0 | $379,592 | $379,592 |
| 2016 | $217,944 | $165,000 | $0 | $382,944 | $382,944 |
| 2015 | $221,298 | $150,000 | $0 | $371,298 | $371,298 |
| 2014 | $216,814 | $154,020 | $0 | $370,834 | $370,834 |
| 2013 | $221,014 | $154,020 | $0 | $375,034 | $375,034 |
| 2012 | $224,418 | $154,020 | $0 | $378,438 | $378,438 |
| 2011 | $227,822 | $154,020 | $0 | $381,842 | $381,842 |
| 2010 | $238,972 | $154,020 | $0 | $392,992 | $392,992 |
| 2009 | $250,155 | $199,320 | $0 | $449,475 | $449,475 |
| 2008 | $256,674 | $226,500 | $0 | $483,174 | $483,174 |
| 2007 | $260,673 | $226,500 | $0 | $487,173 | $487,173 |
Deed and Sales History
| 1 | 12/22/2021 | PRD | Personal Representatives Deed | STEBBINS, WILLIAM | STEBBINS, ARLENE ISAACSON | | | $0.00 | 51583 | 4537394 |
| 2 | 05/01/1983 | OTHER | Other - Misc. Documents | Unknown | STEBBINS, WILLIAM | | | $0.00 | 59958 | 0 |
Payout Agreement
| No payout information available.. |