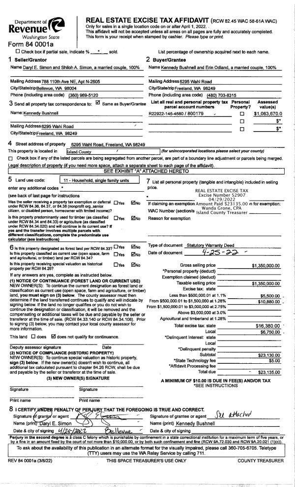
Property
Account |
| Property ID: | 145453 | Abbreviated Legal Description: | 111 - S/2 SW NE NE SW EX CO RD |
| Geographic ID: | R33004-206-2180 | Agent Code: | |
| Type: | Real | | |
| Tax Area: | 542 - APPRAISER-Stan/Cam Schl Dist, Special Dist, improved, greater than 1 acre | Land Use Code | 11 |
| Open Space: | N | DFL | N |
| Historic Property: | N | Remodel Property: | N |
| Multi-Family Redevelopment: | N | | |
| Township: | 30 | Section: | 04 |
| Range: | R3 |
Location |
| Address: | 2650 SANDY DR CAMANO ISLAND, WA 98282 | Mapsco: | |
| Neighborhood: | Cycle 5 | Map ID: | 851 |
| Neighborhood CD: | 5 |
Owner |
| Name: | JENSEN, BARBARA | Owner ID: | 280897 |
| Mailing Address: | 2650 SANDY DR CAMANO ISLAND, WA 98282 | % Ownership: | 100.0000000000% |
| | | Exemptions: | |
Taxes and Assessment Details
Values
| (+) Improvement Homesite Value: | + | $0 | |
| (+) Improvement Non-Homesite Value: | + | $238,170 | |
| (+) Land Homesite Value: | + | $0 | |
| (+) Land Non-Homesite Value: | + | $260,000 | |
| (+) Curr Use (HS): | + | $0 | $0 |
| (+) Curr Use (NHS): | + | $0 | $0 |
| | | -------------------------- | |
| (=) Market Value: | = | $498,170 | |
| (–) Productivity Loss: | – | $0 | |
| | | -------------------------- | |
| (=) Subtotal: | = | $498,170 | |
| (+) Senior Appraised Value: | + | $0 | |
| (+) Non-Senior Appraised Value: | + | $498,170 | |
| | | -------------------------- | |
| (=) Total Appraised Value: | = | $498,170 | |
| (–) Senior Exemption Loss: | – | $0 | |
| (–) Exemption Loss: | – | $0 | |
| | | -------------------------- | |
| (=) Taxable Value: | = | $498,170 | |
Taxing Jurisdiction
| Owner: | JENSEN, BARBARA | | |
| % Ownership: | 100.0000000000% | | |
| Total Value: | $498,170 | | |
| Tax Area: | 542 - APPRAISER-Stan/Cam Schl Dist, Special Dist, improved, greater than 1 acre |
| CF | Conservation Futures | 0.0316035091 | $498,170 | $498,170 | $15.74 | | |
| EMS1 | Fire & Rescue Dist #1 Camano GEN (EMS) | 0.3677864386 | $498,170 | $498,170 | $183.22 | | |
| FIRE1 | Fire & Rescue Dist #1 Camano GEN | 1.2502910536 | $498,170 | $498,170 | $622.86 | | |
| FIRE1BOND | Fire & Rescue Dist #1 Camano BOND | 0.1570001679 | $498,170 | $498,170 | $78.21 | | |
| CE | County Current Expense | 0.3708482477 | $498,170 | $498,170 | $184.75 | | |
| CR | County Roads | 0.4584763726 | $498,170 | $498,170 | $228.40 | | |
| LCIB | Library Sno-Isle BOND (Camano Island) | 0.0396325772 | $498,170 | $498,170 | $19.74 | | |
| LIB | Library Sno-Isle GEN | 0.3153421757 | $498,170 | $498,170 | $157.09 | | |
| SCH205_401 | School 205-401 Enrichment | 1.2698420524 | $498,170 | $498,170 | $632.60 | | |
| SCH205BOND | School 205-401 BOND | 0.9396497583 | $498,170 | $498,170 | $468.11 | | |
| ST | State School | 1.3035497053 | $498,170 | $498,170 | $649.39 | | |
| ST2 | State School Part 2 | 0.8169543533 | $498,170 | $498,170 | $406.98 | | |
| | Total Tax Rate: | 7.3209764117 | | | | | |
| | | | | Taxes w/Current Exemptions: | $3,647.09 | | |
| | | | | Taxes w/o Exemptions: | $3,647.09 | | |
Improvement / Building
| Improvement #1: | RESIDENTIAL | State Code: | Y | 1350.0 sqft | Value: | $238,170 |
| Bathrooms: | 2 | Bedrooms: | 3 | | Ceiling: | DRYWALL PAINTED | Exterior Wall/Cover: | WOOD SIDING | | Floor Covering: | CARPET/VINYL 80-20 | Floor Structure: | WOOD W/SUBFLOOR | | Foundation: | CONCRETE | Heating: | WALL HEAT ELECTRIC | | Interior Finish: | DRYWALL PAINT | Plumbing Fixture Cnt: | 9 | | Roof Slope: | 5" IN 12" | Roof Structure/Cover: | CJ ASPHALT |
|
| | Type | Description | Class CD | Sub Class CD | Year Built | Area |
| | BAS | BASE/MAIN FLOOR | 3 | 0 | 1991 | 1350.0 |
| | AGR | ATTACHED GARAGE | 3 | 0 | 1991 | 440.0 |
| | OWP | OPEN WOOD PORCH W/STEPS | 3 | 0 | 1991 | 192.0 |
Sketch
Property Image
Land
| 1 | 17 | AC (01.01-02.00) | 1.2500 | 54450.00 | 0.00 | 0.00 | 1.00 | $260,000 | $0 |
Roll Value History
| 2026 | N/A | N/A | N/A | N/A | N/A |
| 2025 | $238,170 | $260,000 | $0 | $498,170 | $498,170 |
| 2024 | $241,137 | $240,000 | $0 | $481,137 | $481,137 |
| 2023 | $244,105 | $220,000 | $0 | $464,105 | $464,105 |
| 2022 | $223,728 | $200,000 | $0 | $423,728 | $423,728 |
| 2021 | $196,876 | $170,000 | $0 | $366,876 | $366,876 |
| 2020 | $191,598 | $150,000 | $0 | $341,598 | $341,598 |
| 2019 | $137,548 | $200,000 | $0 | $337,548 | $337,548 |
| 2018 | $137,946 | $150,000 | $0 | $287,946 | $287,946 |
| 2017 | $129,505 | $135,000 | $0 | $264,505 | $264,505 |
| 2016 | $131,104 | $75,000 | $0 | $206,104 | $206,104 |
| 2015 | $120,880 | $50,000 | $0 | $170,880 | $170,880 |
| 2014 | $122,493 | $50,000 | $0 | $172,493 | $172,493 |
| 2013 | $124,547 | $50,000 | $0 | $174,547 | $174,547 |
| 2012 | $126,159 | $74,400 | $0 | $200,559 | $200,559 |
| 2011 | $127,771 | $93,000 | $0 | $220,771 | $220,771 |
| 2010 | $134,550 | $93,000 | $0 | $227,550 | $227,550 |
| 2009 | $140,530 | $120,000 | $0 | $260,530 | $260,530 |
| 2008 | $142,162 | $99,000 | $0 | $241,162 | $241,162 |
| 2007 | $143,795 | $116,000 | $0 | $259,795 | $259,795 |
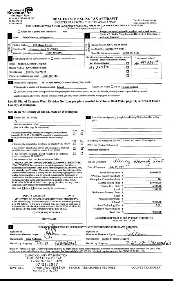
Deed and Sales History
| 1 | 07/05/2017 | WD | Warranty Deed | PETERSONS, KARINA A | JENSEN, BARBARA | | | $289,500.00 | 30150 | 4426029 |
| 2 | 03/01/1997 | DECREE | Divorce Decree/Legal Separation | PETERSONS, MARIS | PETERSONS, KARINA A | | | $0.00 | 70986 | 97004490 |
| 3 | 06/01/1990 | WD | Warranty Deed | BRIDGES, DOUGLAS W | PETERSONS, MARIS | | | $12,000.00 | 4405 | 90014565 |
| 4 | 01/01/1900 | OTHER | Other - Misc. Documents | Unknown | BRIDGES, DOUGLAS W | | | $0.00 | 0 | 0 |
Payout Agreement
| No payout information available.. |