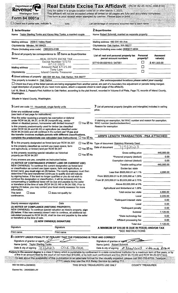
Property
Account |
| Property ID: | 145532 | Abbreviated Legal Description: | 13 - E/2 NW NW SW |
| Geographic ID: | R33004-230-0540 | Agent Code: | |
| Type: | Real | | |
| Tax Area: | 542 - APPRAISER-Stan/Cam Schl Dist, Special Dist, improved, greater than 1 acre | Land Use Code | 11 |
| Open Space: | N | DFL | N |
| Historic Property: | N | Remodel Property: | N |
| Multi-Family Redevelopment: | N | | |
| Township: | 30 | Section: | 04 |
| Range: | R3 |
Location |
| Address: | 842 ASHLEYS WAY CAMANO ISLAND, WA 98282 | Mapsco: | |
| Neighborhood: | Cycle 5 | Map ID: | 851 |
| Neighborhood CD: | 5 |
Owner |
| Name: | PINO ET AL, EVELYN | Owner ID: | 307793 |
| Mailing Address: | 820 NORTHWEST 26TH AVE MIAMI, FL 33125 | % Ownership: | 100.0000000000% |
| | | Exemptions: | |
Taxes and Assessment Details
Values
| (+) Improvement Homesite Value: | + | $0 | |
| (+) Improvement Non-Homesite Value: | + | $524,460 | |
| (+) Land Homesite Value: | + | $0 | |
| (+) Land Non-Homesite Value: | + | $330,000 | |
| (+) Curr Use (HS): | + | $0 | $0 |
| (+) Curr Use (NHS): | + | $0 | $0 |
| | | -------------------------- | |
| (=) Market Value: | = | $854,460 | |
| (–) Productivity Loss: | – | $0 | |
| | | -------------------------- | |
| (=) Subtotal: | = | $854,460 | |
| (+) Senior Appraised Value: | + | $0 | |
| (+) Non-Senior Appraised Value: | + | $854,460 | |
| | | -------------------------- | |
| (=) Total Appraised Value: | = | $854,460 | |
| (–) Senior Exemption Loss: | – | $0 | |
| (–) Exemption Loss: | – | $0 | |
| | | -------------------------- | |
| (=) Taxable Value: | = | $854,460 | |
Taxing Jurisdiction
| Owner: | PINO ET AL, EVELYN | | |
| % Ownership: | 100.0000000000% | | |
| Total Value: | $854,460 | | |
| Tax Area: | 542 - APPRAISER-Stan/Cam Schl Dist, Special Dist, improved, greater than 1 acre |
| CF | Conservation Futures | 0.0316035091 | $854,460 | $854,460 | $27.00 | | |
| EMS1 | Fire & Rescue Dist #1 Camano GEN (EMS) | 0.3677864386 | $854,460 | $854,460 | $314.26 | | |
| FIRE1 | Fire & Rescue Dist #1 Camano GEN | 1.2502910536 | $854,460 | $854,460 | $1,068.32 | | |
| FIRE1BOND | Fire & Rescue Dist #1 Camano BOND | 0.1570001679 | $854,460 | $854,460 | $134.15 | | |
| CE | County Current Expense | 0.3708482477 | $854,460 | $854,460 | $316.87 | | |
| CR | County Roads | 0.4584763726 | $854,460 | $854,460 | $391.75 | | |
| LCIB | Library Sno-Isle BOND (Camano Island) | 0.0396325772 | $854,460 | $854,460 | $33.86 | | |
| LIB | Library Sno-Isle GEN | 0.3153421757 | $854,460 | $854,460 | $269.45 | | |
| SCH205_401 | School 205-401 Enrichment | 1.2698420524 | $854,460 | $854,460 | $1,085.03 | | |
| SCH205BOND | School 205-401 BOND | 0.9396497583 | $854,460 | $854,460 | $802.89 | | |
| ST | State School | 1.3035497053 | $854,460 | $854,460 | $1,113.83 | | |
| ST2 | State School Part 2 | 0.8169543533 | $854,460 | $854,460 | $698.05 | | |
| | Total Tax Rate: | 7.3209764117 | | | | | |
| | | | | Taxes w/Current Exemptions: | $6,255.46 | | |
| | | | | Taxes w/o Exemptions: | $6,255.46 | | |
Improvement / Building
| Improvement #1: | RESIDENTIAL | State Code: | Y | 2406.0 sqft | Value: | $524,460 |
| Bathrooms: | 3 | Bedrooms: | 4 | | Ceiling: | DRYWALL PAINTED | Exterior Wall/Cover: | VINYL | | Floor Covering: | VINYL TILE/CARP 20-80 | Floor Structure: | WOOD W/SUBFLOOR | | Foundation: | CONCRETE | Heating: | FHA GAS | | Interior Finish: | DRYWALL PAINT | Plumbing Fixture Cnt: | 15 | | Roof Slope: | 8" IN 12" | Roof Structure/Cover: | CJ ASPHALT |
|
| | Type | Description | Class CD | Sub Class CD | Year Built | Area |
| | BAS | BASE/MAIN FLOOR | 4 | 0 | 1996 | 2406.0 |
| | OP1 | OPEN PORCH SLAB | 4 | 0 | 1996 | 384.0 |
| | AGR | ATTACHED GARAGE | 4 | 0 | 1996 | 462.0 |
| | UTY | STORAGE/UTILITY | 4 | 0 | 1996 | 63.0 |
| | OWC | OPEN WOOD PORCH W/STEPS/ROOF/C | 4 | 0 | 1996 | 80.0 |
| | DGR | DETACHED GARAGE | 4 | 0 | 1996 | 770.0 |
| | CPD | OPEN CARPORT DIRT FLOOR | 4 | 0 | 1996 | 184.9 |
Sketch
Property Image
Land
| 1 | 32 | AC (03.01-09.99) | 5.0600 | 220413.60 | 0.00 | 0.00 | 1.00 | $330,000 | $0 |
Roll Value History
| 2026 | N/A | N/A | N/A | N/A | N/A |
| 2025 | $524,460 | $330,000 | $0 | $854,460 | $854,460 |
| 2024 | $530,760 | $300,000 | $0 | $830,760 | $830,760 |
| 2023 | $520,343 | $240,000 | $0 | $760,343 | $760,343 |
| 2022 | $476,702 | $210,000 | $0 | $686,702 | $686,702 |
| 2021 | $374,978 | $190,000 | $0 | $564,978 | $564,978 |
| 2020 | $366,202 | $160,000 | $0 | $526,202 | $526,202 |
| 2019 | $277,080 | $230,000 | $0 | $507,080 | $507,080 |
| 2018 | $277,865 | $175,000 | $0 | $452,865 | $452,865 |
| 2017 | $279,438 | $150,000 | $0 | $429,438 | $429,438 |
| 2016 | $282,580 | $130,000 | $0 | $412,580 | $412,580 |
| 2015 | $259,500 | $103,248 | $0 | $362,748 | $362,748 |
| 2014 | $262,550 | $103,248 | $0 | $365,798 | $365,798 |
| 2013 | $265,600 | $103,248 | $0 | $368,848 | $368,848 |
| 2012 | $268,651 | $103,248 | $0 | $371,899 | $371,899 |
| 2011 | $271,701 | $129,060 | $0 | $400,761 | $400,761 |
| 2010 | $281,619 | $129,060 | $0 | $410,679 | $410,679 |
| 2009 | $283,372 | $152,960 | $0 | $436,332 | $436,332 |
| 2008 | $287,220 | $160,608 | $0 | $447,828 | $447,828 |
| 2007 | $290,920 | $160,608 | $0 | $451,528 | $451,528 |
Deed and Sales History
| 1 | 02/25/2023 | WD | Warranty Deed | GRAVES, JEFFREY | PINO ET AL, EVELYN | | | $780,000.00 | 55976 | 4557223 |
| 2 | 01/15/2020 | WD | Warranty Deed | JOHNSON, VERNON M | GRAVES, JEFFREY | | | $575,000.00 | 41877 | 4479796 |
| 3 | 08/08/2007 | OTHER | Other - Misc. Documents | JOHNSON, VERNON M | JOHNSON, VERNON M | | | $0.00 | 80307 | 0 |
| 4 | 04/06/2007 | WD | Warranty Deed | FREEMAN, PHIL E | JOHNSON, VERNON M | | | $549,900.00 | 71203 | 4199298 |
| 5 | 08/21/1998 | QCD | Quit Claim Deed | FREEMAN, PHIL E | FREEMAN, PHIL E | | | $0.00 | 83940 | 98021234 |
| 6 | 07/07/1998 | QCD | Quit Claim Deed | CROFT, RUTH P | FREEMAN, PHIL E | | | $0.00 | 82647 | 98013673 |
| 7 | 09/01/1996 | ESTSEPPROP | Establish Separate Property | FREEMAN, VIVIAN R | CROFT, RUTH P | | | $0.00 | 63314 | 96016324 |
| 8 | 05/01/1993 | REC | Real Estate Contract | CROFT, WARREN J | FREEMAN, VIVIAN R | | | $26,000.00 | 31838 | 93009619 |
| 9 | 01/01/1900 | OTHER | Other - Misc. Documents | Unknown | FREEMAN, PHIL E | | | $0.00 | 82647 | 98013673 |
| 10 | 01/01/1900 | OTHER | Other - Misc. Documents | FREEMAN, PHIL E | CROFT, WARREN J | | | $0.00 | 0 | 0 |
Payout Agreement
| No payout information available.. |