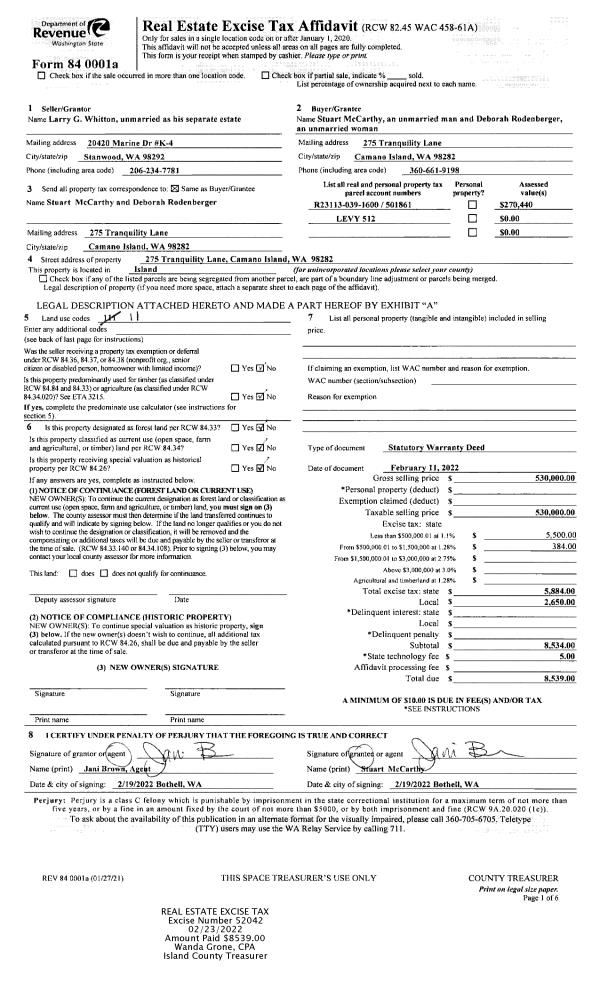
Property
Account |
| Property ID: | 145783 | Abbreviated Legal Description: | 113 - N/2 E/2 OF:E330' OF W990' S/2 S/2 NW & E/2 OF E330' OF W990' N/2 S/2 NW S 0F RD SUB TGW EZ |
| Geographic ID: | R33004-308-0900 | Agent Code: | |
| Type: | Real | | |
| Tax Area: | 549 - APPRAISER-Stan/Cam Schl Dist, Special Dist, vacant & 50 acres or less | Land Use Code | 91 |
| Open Space: | N | DFL | N |
| Historic Property: | N | Remodel Property: | N |
| Multi-Family Redevelopment: | N | | |
| Township: | 30 | Section: | 04 |
| Range: | R3 |
Location |
| Address: | | Mapsco: | |
| Neighborhood: | Cycle 5 | Map ID: | 853 |
| Neighborhood CD: | 5 |
Owner |
| Name: | JEFFS, JAMES F R | Owner ID: | 139428 |
| Mailing Address: | ISOBEL W M JEFFS 8551 ARPE CRES DELTA BC V4C 3Y2 | % Ownership: | 100.0000000000% |
| | | Exemptions: | |
Taxes and Assessment Details
Values
| (+) Improvement Homesite Value: | + | $0 | |
| (+) Improvement Non-Homesite Value: | + | $0 | |
| (+) Land Homesite Value: | + | $0 | |
| (+) Land Non-Homesite Value: | + | $140,000 | |
| (+) Curr Use (HS): | + | $0 | $0 |
| (+) Curr Use (NHS): | + | $0 | $0 |
| | | -------------------------- | |
| (=) Market Value: | = | $140,000 | |
| (–) Productivity Loss: | – | $0 | |
| | | -------------------------- | |
| (=) Subtotal: | = | $140,000 | |
| (+) Senior Appraised Value: | + | $0 | |
| (+) Non-Senior Appraised Value: | + | $140,000 | |
| | | -------------------------- | |
| (=) Total Appraised Value: | = | $140,000 | |
| (–) Senior Exemption Loss: | – | $0 | |
| (–) Exemption Loss: | – | $0 | |
| | | -------------------------- | |
| (=) Taxable Value: | = | $140,000 | |
Taxing Jurisdiction
| Owner: | JEFFS, JAMES F R | | |
| % Ownership: | 100.0000000000% | | |
| Total Value: | $140,000 | | |
| Tax Area: | 549 - APPRAISER-Stan/Cam Schl Dist, Special Dist, vacant & 50 acres or less |
| CF | Conservation Futures | 0.0316035091 | $140,000 | $140,000 | $4.42 | | |
| EMS1 | Fire & Rescue Dist #1 Camano GEN (EMS) | 0.3677864386 | $140,000 | $140,000 | $51.49 | | |
| CE | County Current Expense | 0.3708482477 | $140,000 | $140,000 | $51.92 | | |
| CR | County Roads | 0.4584763726 | $140,000 | $140,000 | $64.19 | | |
| LCIB | Library Sno-Isle BOND (Camano Island) | 0.0396325772 | $140,000 | $140,000 | $5.55 | | |
| LIB | Library Sno-Isle GEN | 0.3153421757 | $140,000 | $140,000 | $44.15 | | |
| SCH205_401 | School 205-401 Enrichment | 1.2698420524 | $140,000 | $140,000 | $177.78 | | |
| SCH205BOND | School 205-401 BOND | 0.9396497583 | $140,000 | $140,000 | $131.55 | | |
| ST | State School | 1.3035497053 | $140,000 | $140,000 | $182.50 | | |
| ST2 | State School Part 2 | 0.8169543533 | $140,000 | $140,000 | $114.37 | | |
| | Total Tax Rate: | 5.9136851902 | | | | | |
| | | | | Taxes w/Current Exemptions: | $827.92 | | |
| | | | | Taxes w/o Exemptions: | $827.92 | | |
Improvement / Building
Sketch
| No sketches available for this property. |
Property Image
Land
| 1 | 17 | AC (01.01-02.00) | 1.1100 | 48351.60 | 0.00 | 0.00 | 1.00 | $140,000 | $0 |
Roll Value History
| 2026 | N/A | N/A | N/A | N/A | N/A |
| 2025 | $0 | $140,000 | $0 | $140,000 | $140,000 |
| 2024 | $0 | $130,000 | $0 | $130,000 | $130,000 |
| 2023 | $0 | $120,000 | $0 | $120,000 | $120,000 |
| 2022 | $0 | $80,000 | $0 | $80,000 | $80,000 |
| 2021 | $0 | $80,000 | $0 | $80,000 | $80,000 |
| 2020 | $0 | $80,000 | $0 | $80,000 | $80,000 |
| 2019 | $0 | $70,000 | $0 | $70,000 | $70,000 |
| 2018 | $0 | $65,000 | $0 | $65,000 | $65,000 |
| 2017 | $0 | $65,000 | $0 | $65,000 | $65,000 |
| 2016 | $0 | $65,000 | $0 | $65,000 | $65,000 |
| 2015 | $0 | $45,000 | $0 | $45,000 | $45,000 |
| 2014 | $0 | $45,000 | $0 | $45,000 | $45,000 |
| 2013 | $0 | $55,800 | $0 | $55,800 | $55,800 |
| 2012 | $0 | $55,800 | $0 | $55,800 | $55,800 |
| 2011 | $0 | $55,800 | $0 | $55,800 | $55,800 |
| 2010 | $0 | $55,800 | $0 | $55,800 | $55,800 |
| 2009 | $0 | $80,000 | $0 | $80,000 | $80,000 |
| 2008 | $0 | $99,000 | $0 | $99,000 | $99,000 |
| 2007 | $0 | $54,000 | $0 | $54,000 | $54,000 |
Deed and Sales History
| 1 | 10/01/1997 | QCD | Quit Claim Deed | JEFFS, JAMES F | JEFFS, JAMES F | | | $0.00 | 73752 | 97020631 |
| 2 | 04/01/1981 | EZ | Easement | HELPS, ARTHUR R | JEFFS, JAMES F | | | $7,000.00 | 11100 | 381764 |
| 3 | 01/01/1900 | OTHER | Other - Misc. Documents | Unknown | HELPS, ARTHUR R | | | $0.00 | 0 | 0 |
Payout Agreement
| No payout information available.. |