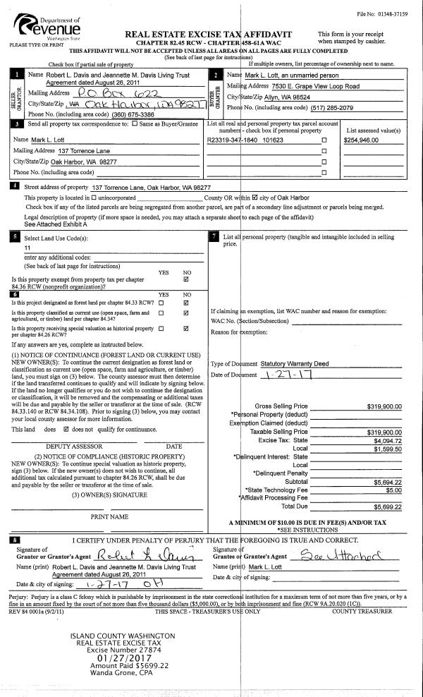
Property
Account |
| Property ID: | 145809 | Abbreviated Legal Description: | 32 - S200'OF N900'OF GL2 E OF BRETLAND RD |
| Geographic ID: | R33004-316-4440 | Agent Code: | |
| Type: | Real | | |
| Tax Area: | 542 - APPRAISER-Stan/Cam Schl Dist, Special Dist, improved, greater than 1 acre | Land Use Code | 11 |
| Open Space: | N | DFL | N |
| Historic Property: | N | Remodel Property: | N |
| Multi-Family Redevelopment: | N | | |
| Township: | 30 | Section: | 04 |
| Range: | R3 |
Location |
| Address: | 2561 BRETLAND RD CAMANO ISLAND, WA 98282 | Mapsco: | |
| Neighborhood: | Cycle 5 | Map ID: | 854 |
| Neighborhood CD: | 5 |
Owner |
| Name: | HARRIGAN, ALBERT | Owner ID: | 59414 |
| Mailing Address: | FRANCES HARRIGAN 2561 BRETLAND RD CAMANO ISLAND, WA 98282 | % Ownership: | 100.0000000000% |
| | | Exemptions: | |
Taxes and Assessment Details
Values
| (+) Improvement Homesite Value: | + | $0 | |
| (+) Improvement Non-Homesite Value: | + | $935,712 | |
| (+) Land Homesite Value: | + | $0 | |
| (+) Land Non-Homesite Value: | + | $640,000 | |
| (+) Curr Use (HS): | + | $0 | $0 |
| (+) Curr Use (NHS): | + | $0 | $0 |
| | | -------------------------- | |
| (=) Market Value: | = | $1,575,712 | |
| (–) Productivity Loss: | – | $0 | |
| | | -------------------------- | |
| (=) Subtotal: | = | $1,575,712 | |
| (+) Senior Appraised Value: | + | $0 | |
| (+) Non-Senior Appraised Value: | + | $1,575,712 | |
| | | -------------------------- | |
| (=) Total Appraised Value: | = | $1,575,712 | |
| (–) Senior Exemption Loss: | – | $0 | |
| (–) Exemption Loss: | – | $0 | |
| | | -------------------------- | |
| (=) Taxable Value: | = | $1,575,712 | |
Taxing Jurisdiction
| Owner: | HARRIGAN, ALBERT | | |
| % Ownership: | 100.0000000000% | | |
| Total Value: | $1,575,712 | | |
| Tax Area: | 542 - APPRAISER-Stan/Cam Schl Dist, Special Dist, improved, greater than 1 acre |
| CF | Conservation Futures | 0.0316035091 | $1,575,712 | $1,575,712 | $49.80 | | |
| EMS1 | Fire & Rescue Dist #1 Camano GEN (EMS) | 0.3677864386 | $1,575,712 | $1,575,712 | $579.53 | | |
| FIRE1 | Fire & Rescue Dist #1 Camano GEN | 1.2502910536 | $1,575,712 | $1,575,712 | $1,970.10 | | |
| FIRE1BOND | Fire & Rescue Dist #1 Camano BOND | 0.1570001679 | $1,575,712 | $1,575,712 | $247.39 | | |
| CE | County Current Expense | 0.3708482477 | $1,575,712 | $1,575,712 | $584.35 | | |
| CR | County Roads | 0.4584763726 | $1,575,712 | $1,575,712 | $722.43 | | |
| LCIB | Library Sno-Isle BOND (Camano Island) | 0.0396325772 | $1,575,712 | $1,575,712 | $62.45 | | |
| LIB | Library Sno-Isle GEN | 0.3153421757 | $1,575,712 | $1,575,712 | $496.89 | | |
| SCH205_401 | School 205-401 Enrichment | 1.2698420524 | $1,575,712 | $1,575,712 | $2,000.91 | | |
| SCH205BOND | School 205-401 BOND | 0.9396497583 | $1,575,712 | $1,575,712 | $1,480.62 | | |
| ST | State School | 1.3035497053 | $1,575,712 | $1,575,712 | $2,054.02 | | |
| ST2 | State School Part 2 | 0.8169543533 | $1,575,712 | $1,575,712 | $1,287.28 | | |
| | Total Tax Rate: | 7.3209764117 | | | | | |
| | | | | Taxes w/Current Exemptions: | $11,535.77 | | |
| | | | | Taxes w/o Exemptions: | $11,535.77 | | |
Improvement / Building
| Improvement #1: | RESIDENTIAL | State Code: | Y | 2581.7 sqft | Value: | $935,712 |
| Bathrooms: | 3 | Bedrooms: | 3 | | Ceiling: | DRYWALL PAINTED | Cooling: | HEAT PUMP/CONV/V | | Exterior Wall/Cover: | CEMENT FIBER | Floor Covering: | HARDWOOD/CARP 60-40 | | Floor Structure: | WOOD W/SUBFLOOR | Foundation: | CONCRETE | | Interior Finish: | DRYWALL PAINT | Plumbing Fixture Cnt: | 14 | | Roof Slope: | 10" IN 12" | Roof Structure/Cover: | CJ ASPHALT |
|
| | Type | Description | Class CD | Sub Class CD | Year Built | Area |
| | BAS | BASE/MAIN FLOOR | 5 | 0 | 2006 | 1512.8 |
| | OCP | OPEN CARPORT | 5 | 0 | 2006 | 240.0 |
| | oTRM | HILLSIDE TRAM | 5 | 0 | 2006 | 252.0 |
| | UTY | STORAGE/UTILITY | 5 | 0 | 2006 | 200.0 |
| | BIG | BUILT IN GARAGE | 5 | 0 | 2006 | 495.0 |
| | UPS | UPPER STORY | 5 | 0 | 2006 | 1068.9 |
| | OWC | OPEN WOOD PORCH W/STEPS/ROOF/C | 5 | 0 | 2006 | 551.5 |
| | UTY | STORAGE/UTILITY | 5 | 0 | 2006 | 144.0 |
| | OWP | OPEN WOOD PORCH W/STEPS | 5 | 0 | 2006 | 140.0 |
| | OWC | OPEN WOOD PORCH W/STEPS/ROOF/C | 5 | 0 | 2006 | 167.0 |
| | ENP | ENCLOSED PORCH | 5 | 0 | 2006 | 222.5 |
| | DGR | DETACHED GARAGE | 5 | 0 | 2006 | 160.0 |
| | ATU | ATTIC UNFINISHED | 5 | 0 | 2006 | 756.0 |
| | OP3 | OPEN PORCH W/ROOF | 5 | 0 | 2006 | 252.0 |
| | DGR | DETACHED GARAGE | 5 | 0 | 2006 | 2254.5 |
Sketch
Property Image
Land
| 1 | HB | HIGH BLUFF | 3.6800 | 160300.80 | 200.00 | 0.00 | 1.00 | $640,000 | $0 |
Roll Value History
| 2026 | N/A | N/A | N/A | N/A | N/A |
| 2025 | $935,712 | $640,000 | $0 | $1,575,712 | $1,575,712 |
| 2024 | $946,104 | $640,000 | $0 | $1,586,104 | $1,586,104 |
| 2023 | $956,492 | $615,000 | $0 | $1,571,492 | $1,571,492 |
| 2022 | $880,245 | $540,000 | $0 | $1,420,245 | $1,420,245 |
| 2021 | $534,128 | $450,000 | $0 | $984,128 | $984,128 |
| 2020 | $520,789 | $345,000 | $0 | $865,789 | $865,789 |
| 2019 | $403,255 | $375,000 | $0 | $778,255 | $778,255 |
| 2018 | $404,384 | $300,000 | $0 | $704,384 | $704,384 |
| 2017 | $404,417 | $300,000 | $0 | $704,417 | $704,417 |
| 2016 | $408,911 | $300,000 | $0 | $708,911 | $708,911 |
| 2015 | $405,011 | $250,000 | $0 | $655,011 | $655,011 |
| 2014 | $415,000 | $250,000 | $0 | $665,000 | $665,000 |
| 2013 | $450,993 | $230,485 | $0 | $681,478 | $681,478 |
| 2012 | $455,217 | $230,485 | $0 | $685,702 | $685,702 |
| 2011 | $459,441 | $288,106 | $0 | $747,547 | $747,547 |
| 2010 | $469,894 | $350,000 | $0 | $819,894 | $819,894 |
| 2009 | $466,735 | $354,265 | $0 | $821,000 | $821,000 |
| 2008 | $516,887 | $364,168 | $0 | $881,055 | $881,055 |
| 2007 | $409,949 | $440,644 | $0 | $850,593 | $850,593 |
Deed and Sales History
| 1 | 03/09/2005 | WD | Warranty Deed | CARLSON, ROYCE | HARRIGAN, ALBERT | | | $318,000.00 | 51029 | 4128417 |
| 2 | 10/20/2003 | WD | Warranty Deed | ROY, N C | CARLSON, ROYCE | | | $228,000.00 | 34798 | 4080306 |
| 3 | 08/01/1996 | WD | Warranty Deed | WATSON, JAMES B | ROY, N C | | | $169,000.00 | 63051 | 96014939 |
| 4 | 01/01/1900 | OTHER | Other - Misc. Documents | Unknown | WATSON, JAMES B | | | $0.00 | 0 | 0 |
Payout Agreement
| No payout information available.. |