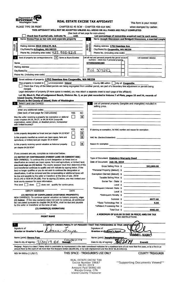
Property
Account |
| Property ID: | 145827 | Abbreviated Legal Description: | 34 - S200'OF N500'OF GL2 E OF BRETLAND RD |
| Geographic ID: | R33004-355-4340 | Agent Code: | |
| Type: | Real | | |
| Tax Area: | 542 - APPRAISER-Stan/Cam Schl Dist, Special Dist, improved, greater than 1 acre | Land Use Code | 11 |
| Open Space: | N | DFL | N |
| Historic Property: | N | Remodel Property: | N |
| Multi-Family Redevelopment: | N | | |
| Township: | 30 | Section: | 04 |
| Range: | R3 |
Location |
| Address: | 2527 BRETLAND RD CAMANO ISLAND, WA 98282 | Mapsco: | |
| Neighborhood: | Cycle 5 | Map ID: | 854 |
| Neighborhood CD: | 5 |
Owner |
| Name: | MOORE, STEPHEN G | Owner ID: | 277626 |
| Mailing Address: | 2527 BRETLAND RD CAMANO ISLAND, WA 98282 | % Ownership: | 100.0000000000% |
| | | Exemptions: | |
Taxes and Assessment Details
Values
| (+) Improvement Homesite Value: | + | $0 | |
| (+) Improvement Non-Homesite Value: | + | $750,835 | |
| (+) Land Homesite Value: | + | $0 | |
| (+) Land Non-Homesite Value: | + | $640,000 | |
| (+) Curr Use (HS): | + | $0 | $0 |
| (+) Curr Use (NHS): | + | $0 | $0 |
| | | -------------------------- | |
| (=) Market Value: | = | $1,390,835 | |
| (–) Productivity Loss: | – | $0 | |
| | | -------------------------- | |
| (=) Subtotal: | = | $1,390,835 | |
| (+) Senior Appraised Value: | + | $0 | |
| (+) Non-Senior Appraised Value: | + | $1,390,835 | |
| | | -------------------------- | |
| (=) Total Appraised Value: | = | $1,390,835 | |
| (–) Senior Exemption Loss: | – | $0 | |
| (–) Exemption Loss: | – | $0 | |
| | | -------------------------- | |
| (=) Taxable Value: | = | $1,390,835 | |
Taxing Jurisdiction
| Owner: | MOORE, STEPHEN G | | |
| % Ownership: | 100.0000000000% | | |
| Total Value: | $1,390,835 | | |
| Tax Area: | 542 - APPRAISER-Stan/Cam Schl Dist, Special Dist, improved, greater than 1 acre |
| CF | Conservation Futures | 0.0316035091 | $1,390,835 | $1,390,835 | $43.96 | | |
| EMS1 | Fire & Rescue Dist #1 Camano GEN (EMS) | 0.3677864386 | $1,390,835 | $1,390,835 | $511.53 | | |
| FIRE1 | Fire & Rescue Dist #1 Camano GEN | 1.2502910536 | $1,390,835 | $1,390,835 | $1,738.95 | | |
| FIRE1BOND | Fire & Rescue Dist #1 Camano BOND | 0.1570001679 | $1,390,835 | $1,390,835 | $218.36 | | |
| CE | County Current Expense | 0.3708482477 | $1,390,835 | $1,390,835 | $515.79 | | |
| CR | County Roads | 0.4584763726 | $1,390,835 | $1,390,835 | $637.66 | | |
| LCIB | Library Sno-Isle BOND (Camano Island) | 0.0396325772 | $1,390,835 | $1,390,835 | $55.12 | | |
| LIB | Library Sno-Isle GEN | 0.3153421757 | $1,390,835 | $1,390,835 | $438.59 | | |
| SCH205_401 | School 205-401 Enrichment | 1.2698420524 | $1,390,835 | $1,390,835 | $1,766.14 | | |
| SCH205BOND | School 205-401 BOND | 0.9396497583 | $1,390,835 | $1,390,835 | $1,306.90 | | |
| ST | State School | 1.3035497053 | $1,390,835 | $1,390,835 | $1,813.02 | | |
| ST2 | State School Part 2 | 0.8169543533 | $1,390,835 | $1,390,835 | $1,136.25 | | |
| | Total Tax Rate: | 7.3209764117 | | | | | |
| | | | | Taxes w/Current Exemptions: | $10,182.27 | | |
| | | | | Taxes w/o Exemptions: | $10,182.27 | | |
Improvement / Building
| Improvement #1: | RESIDENTIAL | State Code: | Y | 3120.0 sqft | Value: | $750,835 |
| Bathrooms: | 2.5 | Bedrooms: | 2 | | Ceiling: | DRY WALL SPRAYED | Cooling: | HEAT PUMP/CONV/V | | Exterior Wall/Cover: | CEMENT FIBER | Floor Covering: | VINYL TILE/HARWD 20-80 | | Floor Structure: | WOOD W/SUBFLOOR | Foundation: | CONCRETE | | Interior Finish: | DRYWALL PAINT | Plumbing Fixture Cnt: | 13 | | Roof Slope: | 18" IN 12" | Roof Structure/Cover: | CJ ASPHALT |
|
| | Type | Description | Class CD | Sub Class CD | Year Built | Area |
| | BAS | BASE/MAIN FLOOR | 4 | 0 | 2018 | 3120.0 |
| | AGR | ATTACHED GARAGE | 4 | 0 | 2018 | 650.0 |
| | OWP | OPEN WOOD PORCH W/STEPS | 4 | 0 | 2018 | 288.0 |
| | OWP | OPEN WOOD PORCH W/STEPS | 4 | 0 | 2018 | 380.0 |
| | OP1 | OPEN PORCH SLAB | 4 | 0 | 2018 | 693.0 |
| | OP4 | OPEN PORCH W/CEILING-ROOF | 4 | 0 | 2018 | 140.0 |
Sketch
Property Image
Land
| 1 | HB | HIGH BLUFF | 3.6800 | 160300.80 | 200.00 | 0.00 | 1.00 | $640,000 | $0 |
Roll Value History
| 2026 | N/A | N/A | N/A | N/A | N/A |
| 2025 | $750,835 | $640,000 | $0 | $1,390,835 | $1,390,835 |
| 2024 | $756,940 | $640,000 | $0 | $1,396,940 | $1,396,940 |
| 2023 | $763,044 | $615,000 | $0 | $1,378,044 | $1,378,044 |
| 2022 | $696,466 | $270,000 | $0 | $966,466 | $966,466 |
| 2021 | $522,800 | $450,000 | $0 | $972,800 | $972,800 |
| 2020 | $509,437 | $330,000 | $0 | $839,437 | $839,437 |
| 2019 | $411,267 | $350,000 | $0 | $761,267 | $761,267 |
| 2018 | $396,679 | $300,000 | $0 | $696,679 | $696,679 |
| 2017 | $0 | $300,000 | $0 | $300,000 | $300,000 |
| 2016 | $0 | $300,000 | $0 | $300,000 | $300,000 |
| 2015 | $0 | $300,000 | $0 | $300,000 | $300,000 |
| 2014 | $0 | $300,000 | $0 | $300,000 | $300,000 |
| 2013 | $0 | $328,016 | $0 | $328,016 | $328,016 |
| 2012 | $0 | $328,016 | $0 | $328,016 | $328,016 |
| 2011 | $0 | $410,020 | $0 | $410,020 | $410,020 |
| 2010 | $0 | $410,020 | $0 | $410,020 | $410,020 |
| 2009 | $0 | $462,926 | $0 | $462,926 | $462,926 |
| 2008 | $0 | $364,168 | $0 | $364,168 | $364,168 |
| 2007 | $0 | $440,644 | $0 | $440,644 | $440,644 |
Deed and Sales History
| 1 | 11/18/2016 | WD | Warranty Deed | CARLSON, CHERIE W | MOORE, STEPHEN G | | | $325,000.00 | 27049 | 4412035 |
| 2 | 06/01/1987 | OTHER | Other - Misc. Documents | CARLSON, CARL R | CARLSON, CHERIE W | | | $0.00 | 62219 | 0 |
| 3 | 01/01/1900 | OTHER | Other - Misc. Documents | Unknown | CARLSON, CARL R | | | $0.00 | 0 | 0 |
Payout Agreement
| No payout information available.. |