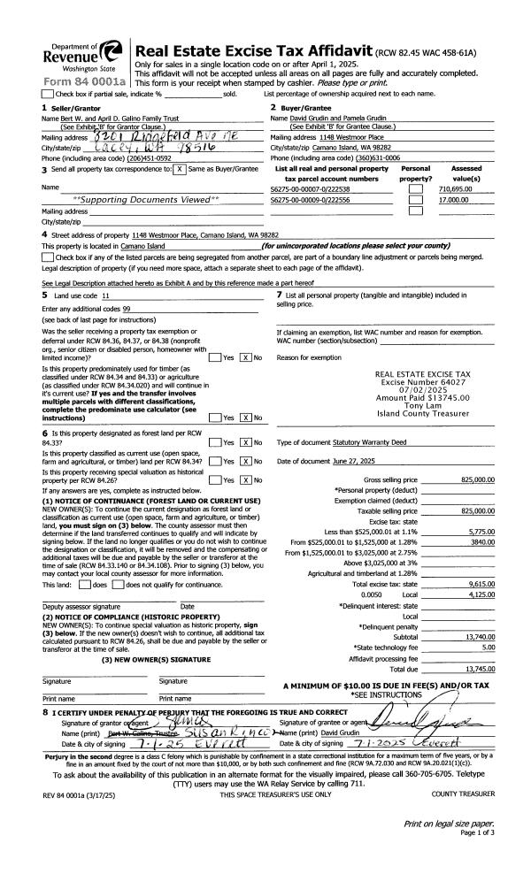
Property
Account |
| Property ID: | 146014 | Abbreviated Legal Description: | 4 - E330' OF W1650' OF S/2 N/2 NW EX RD |
| Geographic ID: | R33004-429-1480 | Agent Code: | |
| Type: | Real | | |
| Tax Area: | 542 - APPRAISER-Stan/Cam Schl Dist, Special Dist, improved, greater than 1 acre | Land Use Code | 11 |
| Open Space: | N | DFL | N |
| Historic Property: | N | Remodel Property: | N |
| Multi-Family Redevelopment: | N | | |
| Township: | 30 | Section: | 04 |
| Range: | R3 |
Location |
| Address: | 914 SANDELL RD CAMANO ISLAND, WA 98282 | Mapsco: | |
| Neighborhood: | Cycle 5 | Map ID: | 853 |
| Neighborhood CD: | 5 |
Owner |
| Name: | JONES, BRYAN M | Owner ID: | 314474 |
| Mailing Address: | MICHELLE JONES 914 SANDELL RD CAMANO ISLAND, WA 98282 | % Ownership: | 100.0000000000% |
| | | Exemptions: | |
Taxes and Assessment Details
Values
| (+) Improvement Homesite Value: | + | $0 | |
| (+) Improvement Non-Homesite Value: | + | $310,608 | |
| (+) Land Homesite Value: | + | $0 | |
| (+) Land Non-Homesite Value: | + | $330,000 | |
| (+) Curr Use (HS): | + | $0 | $0 |
| (+) Curr Use (NHS): | + | $0 | $0 |
| | | -------------------------- | |
| (=) Market Value: | = | $640,608 | |
| (–) Productivity Loss: | – | $0 | |
| | | -------------------------- | |
| (=) Subtotal: | = | $640,608 | |
| (+) Senior Appraised Value: | + | $0 | |
| (+) Non-Senior Appraised Value: | + | $640,608 | |
| | | -------------------------- | |
| (=) Total Appraised Value: | = | $640,608 | |
| (–) Senior Exemption Loss: | – | $0 | |
| (–) Exemption Loss: | – | $0 | |
| | | -------------------------- | |
| (=) Taxable Value: | = | $640,608 | |
Taxing Jurisdiction
| Owner: | JONES, BRYAN M | | |
| % Ownership: | 100.0000000000% | | |
| Total Value: | $640,608 | | |
| Tax Area: | 542 - APPRAISER-Stan/Cam Schl Dist, Special Dist, improved, greater than 1 acre |
| CF | Conservation Futures | 0.0316035091 | $640,608 | $640,608 | $20.25 | | |
| EMS1 | Fire & Rescue Dist #1 Camano GEN (EMS) | 0.3677864386 | $640,608 | $640,608 | $235.61 | | |
| FIRE1 | Fire & Rescue Dist #1 Camano GEN | 1.2502910536 | $640,608 | $640,608 | $800.95 | | |
| FIRE1BOND | Fire & Rescue Dist #1 Camano BOND | 0.1570001679 | $640,608 | $640,608 | $100.58 | | |
| CE | County Current Expense | 0.3708482477 | $640,608 | $640,608 | $237.57 | | |
| CR | County Roads | 0.4584763726 | $640,608 | $640,608 | $293.70 | | |
| LCIB | Library Sno-Isle BOND (Camano Island) | 0.0396325772 | $640,608 | $640,608 | $25.39 | | |
| LIB | Library Sno-Isle GEN | 0.3153421757 | $640,608 | $640,608 | $202.01 | | |
| SCH205_401 | School 205-401 Enrichment | 1.2698420524 | $640,608 | $640,608 | $813.47 | | |
| SCH205BOND | School 205-401 BOND | 0.9396497583 | $640,608 | $640,608 | $601.95 | | |
| ST | State School | 1.3035497053 | $640,608 | $640,608 | $835.06 | | |
| ST2 | State School Part 2 | 0.8169543533 | $640,608 | $640,608 | $523.35 | | |
| | Total Tax Rate: | 7.3209764117 | | | | | |
| | | | | Taxes w/Current Exemptions: | $4,689.89 | | |
| | | | | Taxes w/o Exemptions: | $4,689.89 | | |
Improvement / Building
| Improvement #1: | RESIDENTIAL | State Code: | Y | 996.0 sqft | Value: | $141,488 |
| Bathrooms: | 1 | Bedrooms: | 2 | | Ceiling: | ACOUSTIC FURRED | Exterior Wall/Cover: | WOOD SIDING | | Floor Covering: | VINYL 100% | Floor Structure: | WOOD W/SUBFLOOR | | Foundation: | CONCRETE BLOCKS | Heating: | BASEBOARD ELECTRIC | | Interior Finish: | DRYWALL PAINT | Plumbing Fixture Cnt: | 6 | | Roof Slope: | 4" IN 12" | Roof Structure/Cover: | BEAM ASPHALT |
|
| | Type | Description | Class CD | Sub Class CD | Year Built | Area |
| | BAS | BASE/MAIN FLOOR | 3 | 0 | 1972 | 996.0 |
| | UTY | STORAGE/UTILITY | 3 | 0 | 1972 | 220.0 |
| Improvement #2: | MANUFACTURED HOME | State Code: | Y | 1560.0 sqft | Value: | $169,120 |
| Bathrooms: | 1 | Bedrooms: | 2 | | Ceiling: | PLASTER PAINTED | Cooling: | EVAP NO DUCT | | Exterior Wall/Cover: | VINYL | Floor Covering: | CARPET 100% | | Floor Structure: | SLAB ON GRADE | Foundation: | SLAB | | Heating: | FHA ELECTRIC | Interior Finish: | PLASTER | | Roof Slope: | FLAT | Roof Structure/Cover: | CJ ALUMINIUM HEAVY |
|
Sketch
Property Image
Land
| 1 | 32 | AC (03.01-09.99) | 4.7700 | 0.00 | 0.00 | 0.00 | 1.00 | $330,000 | $0 |
Roll Value History
| 2026 | N/A | N/A | N/A | N/A | N/A |
| 2025 | $310,608 | $330,000 | $0 | $640,608 | $640,608 |
| 2024 | $312,047 | $300,000 | $0 | $612,047 | $612,047 |
| 2023 | $294,223 | $240,000 | $0 | $534,223 | $534,223 |
| 2022 | $269,848 | $210,000 | $0 | $479,848 | $479,848 |
| 2021 | $160,835 | $190,000 | $0 | $350,835 | $350,835 |
| 2020 | $157,502 | $160,000 | $0 | $317,502 | $317,502 |
| 2019 | $121,749 | $230,000 | $0 | $351,749 | $351,749 |
| 2018 | $122,795 | $175,000 | $0 | $297,795 | $297,795 |
| 2017 | $67,144 | $150,000 | $0 | $217,144 | $217,144 |
| 2016 | $68,076 | $130,000 | $0 | $198,076 | $198,076 |
| 2015 | $64,689 | $100,000 | $0 | $164,689 | $164,689 |
| 2014 | $65,804 | $100,000 | $0 | $165,804 | $165,804 |
| 2013 | $68,152 | $103,032 | $0 | $171,184 | $171,184 |
| 2012 | $69,274 | $103,032 | $0 | $172,306 | $172,306 |
| 2011 | $70,397 | $128,790 | $0 | $199,187 | $199,187 |
| 2010 | $77,789 | $128,790 | $0 | $206,579 | $206,579 |
| 2009 | $83,472 | $152,640 | $0 | $236,112 | $236,112 |
| 2008 | $83,472 | $160,272 | $0 | $243,744 | $243,744 |
| 2007 | $84,666 | $160,272 | $0 | $244,938 | $244,938 |
Deed and Sales History
| 1 | 10/31/2024 | WD | Warranty Deed | FRITZ HOMES, LLC | JONES, BRYAN M | | | $629,950.00 | 61762 | 4579091 |
| 2 | 12/31/2020 | QCD | Quit Claim Deed | FRITZ, KURT | FRITZ HOMES, LLC | | | $0.00 | 46610 | 4508467 |
| 3 | 12/31/2020 | QCD | Quit Claim Deed | FRITZ, KURT | FRITZ, KURT | | | $317,502.00 | 46470 | 4507270 |
| 4 | 12/19/2017 | WD | Warranty Deed | SLEE, ERNEST A & CARMEL T | FRITZ, KURT | | | $184,500.00 | 32796 | 4438382 |
| 5 | 10/01/1991 | WD | Warranty Deed | SLEE, AUDREY E | SLEE, ERNEST A | | | $107,000.00 | 13867 | 91016561 |
| 6 | 01/01/1900 | OTHER | Other - Misc. Documents | Unknown | SLEE, AUDREY E | | | $0.00 | 0 | 0 |
Payout Agreement
| No payout information available.. |