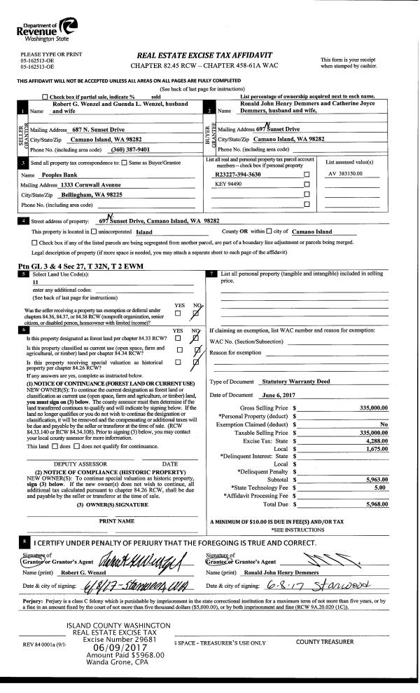
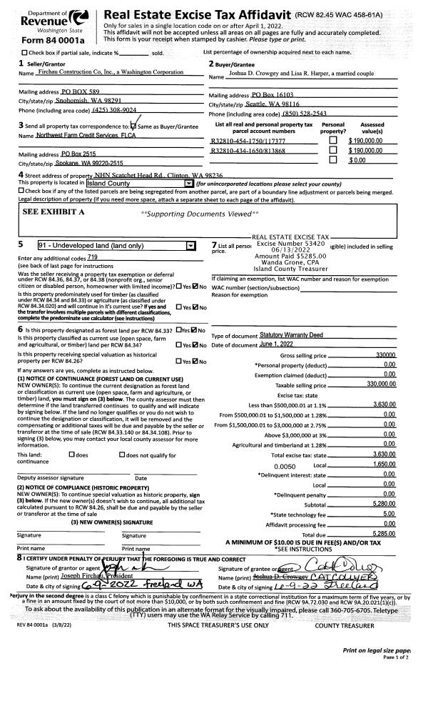
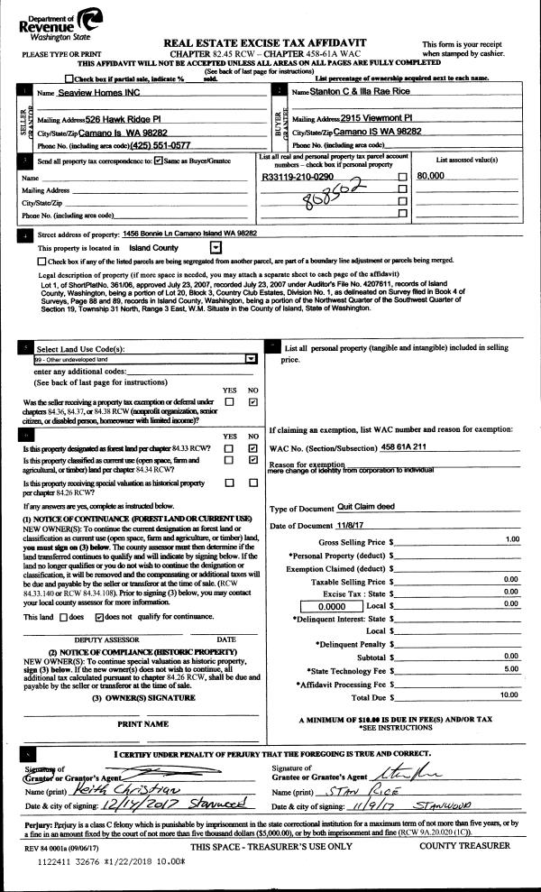
Property
Account |
| Property ID: | 146041 | Abbreviated Legal Description: | MOBILE ON PARCEL 6 - N/2 N/2 NW LY E OF W1650' EX PT LY E OF E CAMANO DR EX N460' EX E CAMANO DR SUB EZ |
| Geographic ID: | R33004-471-1960 | Agent Code: | |
| Type: | Real | | |
| Tax Area: | 542 - APPRAISER-Stan/Cam Schl Dist, Special Dist, improved, greater than 1 acre | Land Use Code | 11 |
| Open Space: | N | DFL | N |
| Historic Property: | N | Remodel Property: | N |
| Multi-Family Redevelopment: | N | | |
| Township: | 30 | Section: | 04 |
| Range: | R3 |
Location |
| Address: | 959 SANDELL RD CAMANO ISLAND, WA 98282 | Mapsco: | |
| Neighborhood: | Cycle 5 | Map ID: | 853 |
| Neighborhood CD: | 5 |
Owner |
| Name: | KALDA, TIMOTHY | Owner ID: | 283697 |
| Mailing Address: | 959 SANDELL RD CAMANO ISLAND, WA 98282 | % Ownership: | 100.0000000000% |
| | | Exemptions: | |
Taxes and Assessment Details
Values
| (+) Improvement Homesite Value: | + | $0 | |
| (+) Improvement Non-Homesite Value: | + | $211,160 | |
| (+) Land Homesite Value: | + | $0 | |
| (+) Land Non-Homesite Value: | + | $290,000 | |
| (+) Curr Use (HS): | + | $0 | $0 |
| (+) Curr Use (NHS): | + | $0 | $0 |
| | | -------------------------- | |
| (=) Market Value: | = | $501,160 | |
| (–) Productivity Loss: | – | $0 | |
| | | -------------------------- | |
| (=) Subtotal: | = | $501,160 | |
| (+) Senior Appraised Value: | + | $0 | |
| (+) Non-Senior Appraised Value: | + | $501,160 | |
| | | -------------------------- | |
| (=) Total Appraised Value: | = | $501,160 | |
| (–) Senior Exemption Loss: | – | $0 | |
| (–) Exemption Loss: | – | $0 | |
| | | -------------------------- | |
| (=) Taxable Value: | = | $501,160 | |
Taxing Jurisdiction
| Owner: | KALDA, TIMOTHY | | |
| % Ownership: | 100.0000000000% | | |
| Total Value: | $501,160 | | |
| Tax Area: | 542 - APPRAISER-Stan/Cam Schl Dist, Special Dist, improved, greater than 1 acre |
| CF | Conservation Futures | 0.0316035091 | $501,160 | $501,160 | $15.84 | | |
| EMS1 | Fire & Rescue Dist #1 Camano GEN (EMS) | 0.3677864386 | $501,160 | $501,160 | $184.32 | | |
| FIRE1 | Fire & Rescue Dist #1 Camano GEN | 1.2502910536 | $501,160 | $501,160 | $626.60 | | |
| FIRE1BOND | Fire & Rescue Dist #1 Camano BOND | 0.1570001679 | $501,160 | $501,160 | $78.68 | | |
| CE | County Current Expense | 0.3708482477 | $501,160 | $501,160 | $185.85 | | |
| CR | County Roads | 0.4584763726 | $501,160 | $501,160 | $229.77 | | |
| LCIB | Library Sno-Isle BOND (Camano Island) | 0.0396325772 | $501,160 | $501,160 | $19.86 | | |
| LIB | Library Sno-Isle GEN | 0.3153421757 | $501,160 | $501,160 | $158.04 | | |
| SCH205_401 | School 205-401 Enrichment | 1.2698420524 | $501,160 | $501,160 | $636.39 | | |
| SCH205BOND | School 205-401 BOND | 0.9396497583 | $501,160 | $501,160 | $470.91 | | |
| ST | State School | 1.3035497053 | $501,160 | $501,160 | $653.29 | | |
| ST2 | State School Part 2 | 0.8169543533 | $501,160 | $501,160 | $409.42 | | |
| | Total Tax Rate: | 7.3209764117 | | | | | |
| | | | | Taxes w/Current Exemptions: | $3,668.97 | | |
| | | | | Taxes w/o Exemptions: | $3,668.97 | | |
Improvement / Building
| Improvement #1: | MANUFACTURED HOME | State Code: | Y | 1620.0 sqft | Value: | $211,160 |
| Bathrooms: | 2 | Bedrooms: | 3 | | Ceiling: | PLASTER PAINTED | Cooling: | EVAP NO DUCT | | Exterior Wall/Cover: | VINYL | Floor Covering: | CARPET 100% | | Floor Structure: | SLAB ON GRADE | Foundation: | SLAB | | Heating: | FHA ELECTRIC | Interior Finish: | PLASTER | | Plumbing Fixture Cnt: | 1 | Roof Slope: | FLAT | | Roof Structure/Cover: | CJ ALUMINIUM HEAVY |   |   |
|
| | Type | Description | Class CD | Sub Class CD | Year Built | Area |
| | BAS | BASE/MAIN FLOOR | 4 | 0 | 1995 | 1620.0 |
| | ENP | ENCLOSED PORCH | 4 | 0 | 1995 | 576.0 |
| | CPD | OPEN CARPORT DIRT FLOOR | 4 | 0 | 1995 | 576.0 |
| | OWP | OPEN WOOD PORCH W/STEPS | 4 | 0 | 1995 | 96.0 |
Sketch
Property Image
Land
| 1 | 18 | AC (02.01-03.00) | 2.2000 | 95832.00 | 0.00 | 0.00 | 1.00 | $290,000 | $0 |
Roll Value History
| 2026 | N/A | N/A | N/A | N/A | N/A |
| 2025 | $211,160 | $290,000 | $0 | $501,160 | $501,160 |
| 2024 | $216,505 | $280,000 | $0 | $496,505 | $496,505 |
| 2023 | $192,929 | $220,000 | $0 | $412,929 | $412,929 |
| 2022 | $178,906 | $210,000 | $0 | $388,906 | $388,906 |
| 2021 | $157,400 | $180,000 | $0 | $337,400 | $337,400 |
| 2020 | $154,573 | $150,000 | $0 | $304,573 | $304,573 |
| 2019 | $124,577 | $200,000 | $0 | $324,577 | $324,577 |
| 2018 | $112,027 | $150,000 | $0 | $262,027 | $262,027 |
| 2017 | $58,257 | $135,000 | $0 | $193,257 | $193,257 |
| 2016 | $60,024 | $105,000 | $0 | $165,024 | $165,024 |
| 2015 | $91,442 | $50,000 | $0 | $141,442 | $141,442 |
| 2014 | $93,183 | $50,000 | $0 | $143,183 | $143,183 |
| 2013 | $100,099 | $50,000 | $0 | $150,099 | $150,099 |
| 2012 | $101,840 | $74,400 | $0 | $176,240 | $176,240 |
| 2011 | $103,581 | $93,000 | $0 | $196,581 | $196,581 |
| 2010 | $111,312 | $93,000 | $0 | $204,312 | $204,312 |
| 2009 | $115,730 | $120,000 | $0 | $235,730 | $235,730 |
| 2008 | $117,879 | $147,900 | $0 | $265,779 | $265,779 |
| 2007 | $120,952 | $147,900 | $0 | $268,852 | $268,852 |
Deed and Sales History
| 1 | 01/23/2018 | QCD | Quit Claim Deed | KALDA, TIMOTHY | KALDA, TIMOTHY | | | $0.00 | 32730 | 4438103 |
| 2 | 01/18/2018 | WD | Warranty Deed | ESTEP, LARRY | KALDA, TIMOTHY | | | $330,000.00 | 32729 | 4438102 |
| 3 | 08/09/2017 | TRUSTEED | Trustee's Deed | RASANE-MALARCHICK, TERESA | ESTEP, LARRY | | | $0.00 | 30986 | 4429769 |
| 4 | 08/25/2005 | ESTSEPPROP | Establish Separate Property | MALARCHICK, MARIO | RASANE-MALARCHICK, TERESA | | | $0.00 | 54185 | 4145442 |
| 5 | 03/19/2002 | ESTSEPPROP | Establish Separate Property | MALARCHICK, MARIO | MALARCHICK, MARIO | | | $0.00 | 21106 | 4015131 |
| 6 | 03/15/2002 | WD | Warranty Deed | VAN, BREUKELEN, A | MALARCHICK, MARIO | | | $171,000.00 | 21105 | 4015130 |
| 7 | 11/01/1995 | OTHER | Other - Misc. Documents | VAN, BREUKELEN, A | VAN, BREUKELEN, A | | | $53,750.00 | 11111111 | 0 |
| 8 | 04/01/1990 | WD | Warranty Deed | WARM, BEACH H | VAN, BREUKELEN, A | | | $15,000.00 | 2573 | 90008332 |
| 9 | 12/01/1986 | QCD | Quit Claim Deed | BLEAKNEY, T M | WARM, BEACH H | | | $0.00 | 63818 | 86016837 |
| 10 | 06/01/1984 | QCD | Quit Claim Deed | GOHEEN, RAYMOND C | BLEAKNEY, T M | | | $0.00 | 41740 | 426042 |
| 11 | 07/01/1980 | TRUSTEED | Trustee's Deed | LARSON, CHESTER N | GOHEEN, RAYMOND C | | | $14,000.00 | 2549 | 371793 |
| 12 | 01/01/1900 | OTHER | Other - Misc. Documents | Unknown | LARSON, CHESTER N | | | $0.00 | 0 | 0 |
Payout Agreement
| No payout information available.. |