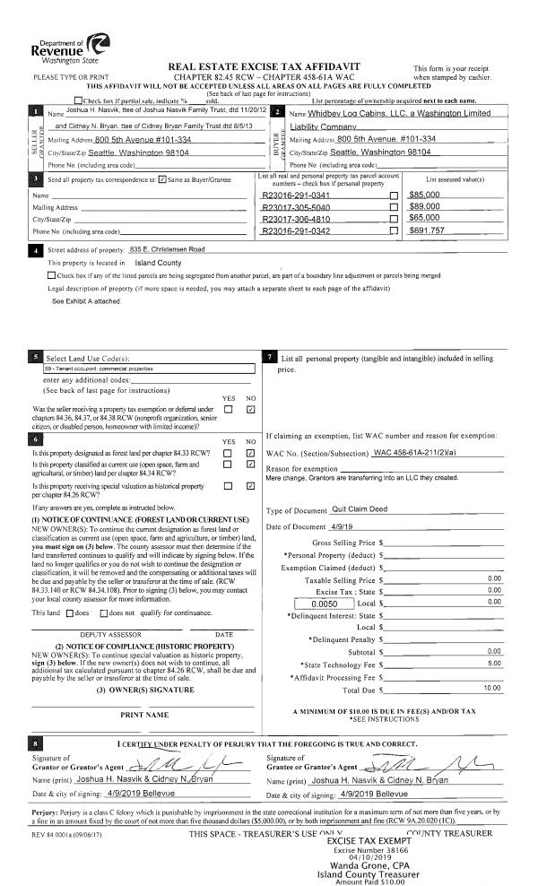
Property
Account |
| Property ID: | 146078 | Abbreviated Legal Description: | 99 - N/2 N/2 NW LY E OF W1650' EX PT LY E OF CO RD EX S200' EX N260' |
| Geographic ID: | R33004-490-1850 | Agent Code: | |
| Type: | Real | | |
| Tax Area: | 542 - APPRAISER-Stan/Cam Schl Dist, Special Dist, improved, greater than 1 acre | Land Use Code | 11 |
| Open Space: | N | DFL | N |
| Historic Property: | N | Remodel Property: | N |
| Multi-Family Redevelopment: | N | | |
| Township: | 30 | Section: | 04 |
| Range: | R3 |
Location |
| Address: | 2436 S EAST CAMANO DR CAMANO ISLAND, WA 98282 | Mapsco: | |
| Neighborhood: | Cycle 5 | Map ID: | 853 |
| Neighborhood CD: | 5 |
Owner |
| Name: | VALDEZ, RENE D. | Owner ID: | 306525 |
| Mailing Address: | JULIE A. VALDEZ 2436 SE CAMANO DR CAMANO ISLAND, WA 98282 | % Ownership: | 100.0000000000% |
| | | Exemptions: | |
Taxes and Assessment Details
Values
| (+) Improvement Homesite Value: | + | $0 | |
| (+) Improvement Non-Homesite Value: | + | $311,909 | |
| (+) Land Homesite Value: | + | $0 | |
| (+) Land Non-Homesite Value: | + | $260,000 | |
| (+) Curr Use (HS): | + | $0 | $0 |
| (+) Curr Use (NHS): | + | $0 | $0 |
| | | -------------------------- | |
| (=) Market Value: | = | $571,909 | |
| (–) Productivity Loss: | – | $0 | |
| | | -------------------------- | |
| (=) Subtotal: | = | $571,909 | |
| (+) Senior Appraised Value: | + | $0 | |
| (+) Non-Senior Appraised Value: | + | $571,909 | |
| | | -------------------------- | |
| (=) Total Appraised Value: | = | $571,909 | |
| (–) Senior Exemption Loss: | – | $0 | |
| (–) Exemption Loss: | – | $0 | |
| | | -------------------------- | |
| (=) Taxable Value: | = | $571,909 | |
Taxing Jurisdiction
| Owner: | VALDEZ, RENE D. | | |
| % Ownership: | 100.0000000000% | | |
| Total Value: | $571,909 | | |
| Tax Area: | 542 - APPRAISER-Stan/Cam Schl Dist, Special Dist, improved, greater than 1 acre |
| CF | Conservation Futures | 0.0316035091 | $571,909 | $571,909 | $18.07 | | |
| EMS1 | Fire & Rescue Dist #1 Camano GEN (EMS) | 0.3677864386 | $571,909 | $571,909 | $210.34 | | |
| FIRE1 | Fire & Rescue Dist #1 Camano GEN | 1.2502910536 | $571,909 | $571,909 | $715.05 | | |
| FIRE1BOND | Fire & Rescue Dist #1 Camano BOND | 0.1570001679 | $571,909 | $571,909 | $89.79 | | |
| CE | County Current Expense | 0.3708482477 | $571,909 | $571,909 | $212.09 | | |
| CR | County Roads | 0.4584763726 | $571,909 | $571,909 | $262.21 | | |
| LCIB | Library Sno-Isle BOND (Camano Island) | 0.0396325772 | $571,909 | $571,909 | $22.67 | | |
| LIB | Library Sno-Isle GEN | 0.3153421757 | $571,909 | $571,909 | $180.35 | | |
| SCH205_401 | School 205-401 Enrichment | 1.2698420524 | $571,909 | $571,909 | $726.23 | | |
| SCH205BOND | School 205-401 BOND | 0.9396497583 | $571,909 | $571,909 | $537.39 | | |
| ST | State School | 1.3035497053 | $571,909 | $571,909 | $745.51 | | |
| ST2 | State School Part 2 | 0.8169543533 | $571,909 | $571,909 | $467.22 | | |
| | Total Tax Rate: | 7.3209764117 | | | | | |
| | | | | Taxes w/Current Exemptions: | $4,186.92 | | |
| | | | | Taxes w/o Exemptions: | $4,186.92 | | |
Improvement / Building
| Improvement #1: | RESIDENTIAL | State Code: | Y | 1424.3 sqft | Value: | $311,909 |
| Bathrooms: | 2.5 | Bedrooms: | 3 | | Ceiling: | DRYWALL PAINTED | Exterior Wall/Cover: | WOOD SIDING | | Floor Covering: | CARPET/VINYL 80-20 | Floor Structure: | WOOD W/SUBFLOOR | | Foundation: | CONCRETE | Heating: | RADIANT FLOOR | | Interior Finish: | DRYWALL PAINT | Plumbing Fixture Cnt: | 11 | | Roof Slope: | 6" IN 12" | Roof Structure/Cover: | CJ ASPHALT |
|
| | Type | Description | Class CD | Sub Class CD | Year Built | Area |
| | BAS | BASE/MAIN FLOOR | 3 | 0 | 2006 | 1424.3 |
| | AGR | ATTACHED GARAGE | 3 | 0 | 2006 | 506.0 |
| | OWC | OPEN WOOD PORCH W/STEPS/ROOF/C | 3 | 0 | 2006 | 170.7 |
| | OWP | OPEN WOOD PORCH W/STEPS | 3 | 0 | 2006 | 461.7 |
Sketch
Property Image
Land
| 1 | 17 | AC (01.01-02.00) | 1.7600 | 76665.60 | 0.00 | 0.00 | 1.00 | $260,000 | $0 |
Roll Value History
| 2026 | N/A | N/A | N/A | N/A | N/A |
| 2025 | $311,909 | $260,000 | $0 | $571,909 | $571,909 |
| 2024 | $314,530 | $240,000 | $0 | $554,530 | $554,530 |
| 2023 | $317,326 | $220,000 | $0 | $537,326 | $537,326 |
| 2022 | $269,948 | $200,000 | $0 | $469,948 | $469,948 |
| 2021 | $242,719 | $170,000 | $0 | $412,719 | $412,719 |
| 2020 | $235,308 | $150,000 | $0 | $385,308 | $385,308 |
| 2019 | $161,756 | $200,000 | $0 | $361,756 | $361,756 |
| 2018 | $162,221 | $150,000 | $0 | $312,221 | $312,221 |
| 2017 | $163,115 | $135,000 | $0 | $298,115 | $298,115 |
| 2016 | $164,969 | $75,000 | $0 | $239,969 | $239,969 |
| 2015 | $180,136 | $50,000 | $0 | $230,136 | $230,136 |
| 2014 | $182,138 | $50,000 | $0 | $232,138 | $232,138 |
| 2013 | $174,284 | $50,000 | $0 | $224,284 | $224,284 |
| 2012 | $176,179 | $74,400 | $0 | $250,579 | $250,579 |
| 2011 | $178,074 | $93,000 | $0 | $271,074 | $271,074 |
| 2010 | $182,553 | $93,000 | $0 | $275,553 | $275,553 |
| 2009 | $186,480 | $120,000 | $0 | $306,480 | $306,480 |
| 2008 | $188,461 | $99,000 | $0 | $287,461 | $287,461 |
| 2007 | $188,584 | $116,000 | $0 | $304,584 | $304,584 |
Deed and Sales History
| 1 | 10/14/2022 | WD | Warranty Deed | ALDAPA, JESSE | VALDEZ, RENE D. | | | $525,000.00 | 55026 | 4553175 |
| 2 | 04/23/2019 | WD | Warranty Deed | RUHAAK, TYLER A | ALDAPA, JESSE | | | $395,000.00 | 38133 | 4461659 |
| 3 | 02/03/2014 | WD | Warranty Deed | MCBRIDE, KATHY | RUHAAK, TYLER A | | | $250,000.00 | 14188 | 4354742 |
| 4 | 04/13/2005 | WD | Warranty Deed | GRANT, STEPHEN F | MCBRIDE, KATHY | | | $79,900.00 | 51602 | 4131387 |
| 5 | 03/01/1993 | WD | Warranty Deed | GRANT, EARL L | GRANT, STEPHEN F | | | $13,000.00 | 41019 | 94006593 |
| 6 | 01/01/1900 | OTHER | Other - Misc. Documents | Unknown | GRANT, EARL L | | | $0.00 | 0 | 0 |
Payout Agreement
| No payout information available.. |