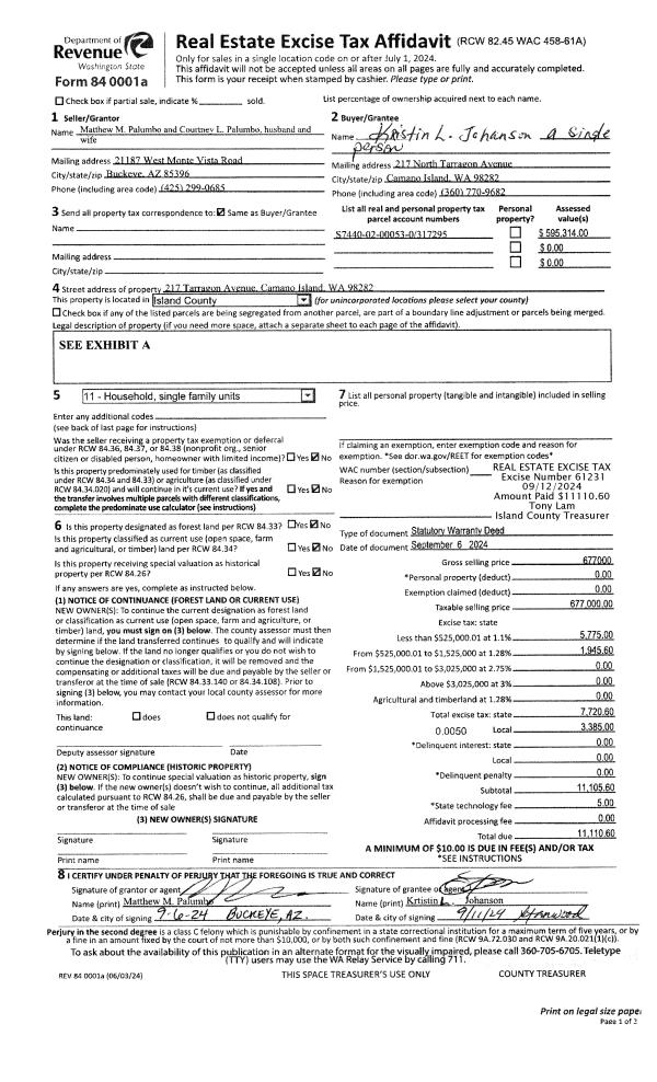
Property
Account |
| Property ID: | 146096 | Abbreviated Legal Description: | 9 - E330' OF W660' OF N/2 N/2 NW EX RD |
| Geographic ID: | R33004-495-0500 | Agent Code: | |
| Type: | Real | | |
| Tax Area: | 542 - APPRAISER-Stan/Cam Schl Dist, Special Dist, improved, greater than 1 acre | Land Use Code | 11 |
| Open Space: | N | DFL | N |
| Historic Property: | N | Remodel Property: | N |
| Multi-Family Redevelopment: | N | | |
| Township: | 30 | Section: | 04 |
| Range: | R3 |
Location |
| Address: | 839 SANDELL RD CAMANO ISLAND, WA 98282 | Mapsco: | |
| Neighborhood: | Cycle 5 | Map ID: | 853 |
| Neighborhood CD: | 5 |
Owner |
| Name: | PIKUL, JESSICA | Owner ID: | 310983 |
| Mailing Address: | SIGISMUND PIKUL III 839 SANDELL RD CAMANO ISLAND, WA 98282 | % Ownership: | 100.0000000000% |
| | | Exemptions: | |
Taxes and Assessment Details
Values
| (+) Improvement Homesite Value: | + | $0 | |
| (+) Improvement Non-Homesite Value: | + | $222,739 | |
| (+) Land Homesite Value: | + | $0 | |
| (+) Land Non-Homesite Value: | + | $330,000 | |
| (+) Curr Use (HS): | + | $0 | $0 |
| (+) Curr Use (NHS): | + | $0 | $0 |
| | | -------------------------- | |
| (=) Market Value: | = | $552,739 | |
| (–) Productivity Loss: | – | $0 | |
| | | -------------------------- | |
| (=) Subtotal: | = | $552,739 | |
| (+) Senior Appraised Value: | + | $0 | |
| (+) Non-Senior Appraised Value: | + | $552,739 | |
| | | -------------------------- | |
| (=) Total Appraised Value: | = | $552,739 | |
| (–) Senior Exemption Loss: | – | $0 | |
| (–) Exemption Loss: | – | $0 | |
| | | -------------------------- | |
| (=) Taxable Value: | = | $552,739 | |
Taxing Jurisdiction
| Owner: | PIKUL, JESSICA | | |
| % Ownership: | 100.0000000000% | | |
| Total Value: | $552,739 | | |
| Tax Area: | 542 - APPRAISER-Stan/Cam Schl Dist, Special Dist, improved, greater than 1 acre |
| CF | Conservation Futures | 0.0316035091 | $552,739 | $552,739 | $17.47 | | |
| EMS1 | Fire & Rescue Dist #1 Camano GEN (EMS) | 0.3677864386 | $552,739 | $552,739 | $203.29 | | |
| FIRE1 | Fire & Rescue Dist #1 Camano GEN | 1.2502910536 | $552,739 | $552,739 | $691.08 | | |
| FIRE1BOND | Fire & Rescue Dist #1 Camano BOND | 0.1570001679 | $552,739 | $552,739 | $86.78 | | |
| CE | County Current Expense | 0.3708482477 | $552,739 | $552,739 | $204.98 | | |
| CR | County Roads | 0.4584763726 | $552,739 | $552,739 | $253.42 | | |
| LCIB | Library Sno-Isle BOND (Camano Island) | 0.0396325772 | $552,739 | $552,739 | $21.91 | | |
| LIB | Library Sno-Isle GEN | 0.3153421757 | $552,739 | $552,739 | $174.30 | | |
| SCH205_401 | School 205-401 Enrichment | 1.2698420524 | $552,739 | $552,739 | $701.89 | | |
| SCH205BOND | School 205-401 BOND | 0.9396497583 | $552,739 | $552,739 | $519.38 | | |
| ST | State School | 1.3035497053 | $552,739 | $552,739 | $720.52 | | |
| ST2 | State School Part 2 | 0.8169543533 | $552,739 | $552,739 | $451.56 | | |
| | Total Tax Rate: | 7.3209764117 | | | | | |
| | | | | Taxes w/Current Exemptions: | $4,046.58 | | |
| | | | | Taxes w/o Exemptions: | $4,046.58 | | |
Improvement / Building
| Improvement #1: | RESIDENTIAL | State Code: | Y | 1793.2 sqft | Value: | $222,739 |
| Bathrooms: | 1 | Bedrooms: | 2 | | Ceiling: | TONGUE & GROOVE | Exterior Wall/Cover: | WOOD SIDING | | Floor Covering: | CARPET/VINYL 80-20 | Floor Structure: | WOOD W/SUBFLOOR | | Foundation: | PEIRS | Heating: | (NONE) | | Interior Finish: | DRYWALL PAINT | Plumbing Fixture Cnt: | 12 | | Roof Slope: | 5" IN 12" | Roof Structure/Cover: | ALUM LIGHT |
|
| | Type | Description | Class CD | Sub Class CD | Year Built | Area |
| | BAS | BASE/MAIN FLOOR | 3 | 0 | 1965 | 883.2 |
| | OWP | OPEN WOOD PORCH W/STEPS | 3 | 0 | 1965 | 343.2 |
| | OWR | OPEN WOOD PORCH W/STEPS/ROOF | 3 | 0 | 1965 | 190.0 |
| | DWN | DOWNSTAIRS LIVING AREA | 3 | 0 | 1965 | 222.0 |
| | UPS | UPPER STORY | 3 | 0 | 1965 | 688.0 |
| | DGR | DETACHED GARAGE | 3 | 0 | 1965 | 609.0 |
| | OCP | OPEN CARPORT | 3 | 0 | 1965 | 504.0 |
Sketch
Property Image
Land
| 1 | 32 | AC (03.01-09.99) | 4.7700 | 0.00 | 0.00 | 0.00 | 1.00 | $330,000 | $0 |
Roll Value History
| 2026 | N/A | N/A | N/A | N/A | N/A |
| 2025 | $222,739 | $330,000 | $0 | $552,739 | $552,739 |
| 2024 | $226,151 | $300,000 | $0 | $526,151 | $526,151 |
| 2023 | $229,565 | $240,000 | $0 | $469,565 | $469,565 |
| 2022 | $210,962 | $210,000 | $0 | $420,962 | $420,962 |
| 2021 | $109,890 | $190,000 | $0 | $299,890 | $299,890 |
| 2020 | $107,593 | $160,000 | $0 | $267,593 | $267,593 |
| 2019 | $84,146 | $230,000 | $0 | $314,146 | $314,146 |
| 2018 | $84,441 | $175,000 | $0 | $259,441 | $259,441 |
| 2017 | $85,026 | $150,000 | $0 | $235,026 | $235,026 |
| 2016 | $86,207 | $130,000 | $0 | $216,207 | $216,207 |
| 2015 | $64,186 | $100,000 | $0 | $164,186 | $164,186 |
| 2014 | $65,322 | $100,000 | $0 | $165,322 | $165,322 |
| 2013 | $69,685 | $103,032 | $0 | $172,717 | $172,717 |
| 2012 | $70,827 | $103,032 | $0 | $173,859 | $173,859 |
| 2011 | $71,970 | $128,790 | $0 | $200,760 | $200,760 |
| 2010 | $78,575 | $128,790 | $0 | $207,365 | $207,365 |
| 2009 | $81,046 | $152,640 | $0 | $233,686 | $233,686 |
| 2008 | $82,450 | $160,272 | $0 | $242,722 | $242,722 |
| 2007 | $83,790 | $160,272 | $0 | $244,062 | $244,062 |
Deed and Sales History
| 1 | 11/20/2023 | QCD | Quit Claim Deed | PIKUL III, SIGISMUND (1/3) | PIKUL, JESSICA | | | $0.00 | 58808 | 4567861 |
| 2 | 04/08/2020 | QCD | Quit Claim Deed | PIKUL II, SIGISMUND | PIKUL III, SIGISMUND (1/3) | | | $0.00 | 42632 | 4484631 |
| 3 | 12/10/2017 | WD | Warranty Deed | DONICHT, PATRICK | PIKUL II, SIGISMUND | | | $205,000.00 | 32256 | 4435677 |
| 4 | 12/28/2017 | DECREE | Divorce Decree/Legal Separation | CLARKE, A MCLAURIN | DONICHT, PATRICK | | | | 87700 | |
| 5 | 05/01/1992 | WD | Warranty Deed | CLARKE, A M | CLARKE, A M | | | $135,000.00 | 21889 | 92009116 |
| 6 | 05/01/1992 | QCD | Quit Claim Deed | HOPKINS, FORREST/LUCILLE | CLARKE, A M | | | $0.00 | 21890 | 92009117 |
| 7 | 08/01/1991 | WD | Warranty Deed | TOEVS, JAMES M | HOPKINS, FORREST/LUCILLE | | | $45,000.00 | 13195 | 91013579 |
| 8 | 11/01/1985 | WD | Warranty Deed | RIECK, CHARLES E | TOEVS, JAMES M | | | $12,500.00 | 53342 | 85013207 |
| 9 | 11/01/1983 | QCD | Quit Claim Deed | RIECK, CHARLES E | RIECK, CHARLES E | | | $0.00 | 33521 | 418198 |
| 10 | 01/01/1900 | OTHER | Other - Misc. Documents | Unknown | RIECK, CHARLES E | | | $0.00 | 0 | 0 |
Payout Agreement
| No payout information available.. |