Property
Account |
| Property ID: | 146103 | Abbreviated Legal Description: | 43 - E330'OF W990'OF N1/2 N1/2 NW EX RD TGW & SUB EZ AF#85000832 |
| Geographic ID: | R33004-495-0830 | Agent Code: | |
| Type: | Real | | |
| Tax Area: | 542 - APPRAISER-Stan/Cam Schl Dist, Special Dist, improved, greater than 1 acre | Land Use Code | 11 |
| Open Space: | N | DFL | N |
| Historic Property: | N | Remodel Property: | N |
| Multi-Family Redevelopment: | N | | |
| Township: | 30 | Section: | 04 |
| Range: | R3 |
Location |
| Address: | 877 SANDELL RD CAMANO ISLAND, WA 98282 | Mapsco: | |
| Neighborhood: | Cycle 5 | Map ID: | 853 |
| Neighborhood CD: | 5 |
Owner |
| Name: | PIKUL, SIGISMUND | Owner ID: | 294403 |
| Mailing Address: | 839 SANDELL RD CAMANO ISLAND, WA 98282 | % Ownership: | 100.0000000000% |
| | | Exemptions: | |
Taxes and Assessment Details
Values
| (+) Improvement Homesite Value: | + | $0 | |
| (+) Improvement Non-Homesite Value: | + | $856,484 | |
| (+) Land Homesite Value: | + | $0 | |
| (+) Land Non-Homesite Value: | + | $330,000 | |
| (+) Curr Use (HS): | + | $0 | $0 |
| (+) Curr Use (NHS): | + | $0 | $0 |
| | | -------------------------- | |
| (=) Market Value: | = | $1,186,484 | |
| (–) Productivity Loss: | – | $0 | |
| | | -------------------------- | |
| (=) Subtotal: | = | $1,186,484 | |
| (+) Senior Appraised Value: | + | $0 | |
| (+) Non-Senior Appraised Value: | + | $1,186,484 | |
| | | -------------------------- | |
| (=) Total Appraised Value: | = | $1,186,484 | |
| (–) Senior Exemption Loss: | – | $0 | |
| (–) Exemption Loss: | – | $0 | |
| | | -------------------------- | |
| (=) Taxable Value: | = | $1,186,484 | |
Taxing Jurisdiction
| Owner: | PIKUL, SIGISMUND | | |
| % Ownership: | 100.0000000000% | | |
| Total Value: | $1,186,484 | | |
| Tax Area: | 542 - APPRAISER-Stan/Cam Schl Dist, Special Dist, improved, greater than 1 acre |
| CF | Conservation Futures | 0.0316035091 | $1,186,484 | $1,186,484 | $37.50 | | |
| EMS1 | Fire & Rescue Dist #1 Camano GEN (EMS) | 0.3677864386 | $1,186,484 | $1,186,484 | $436.37 | | |
| FIRE1 | Fire & Rescue Dist #1 Camano GEN | 1.2502910536 | $1,186,484 | $1,186,484 | $1,483.45 | | |
| FIRE1BOND | Fire & Rescue Dist #1 Camano BOND | 0.1570001679 | $1,186,484 | $1,186,484 | $186.28 | | |
| CE | County Current Expense | 0.3708482477 | $1,186,484 | $1,186,484 | $440.01 | | |
| CR | County Roads | 0.4584763726 | $1,186,484 | $1,186,484 | $543.97 | | |
| LCIB | Library Sno-Isle BOND (Camano Island) | 0.0396325772 | $1,186,484 | $1,186,484 | $47.02 | | |
| LIB | Library Sno-Isle GEN | 0.3153421757 | $1,186,484 | $1,186,484 | $374.15 | | |
| SCH205_401 | School 205-401 Enrichment | 1.2698420524 | $1,186,484 | $1,186,484 | $1,506.65 | | |
| SCH205BOND | School 205-401 BOND | 0.9396497583 | $1,186,484 | $1,186,484 | $1,114.88 | | |
| ST | State School | 1.3035497053 | $1,186,484 | $1,186,484 | $1,546.64 | | |
| ST2 | State School Part 2 | 0.8169543533 | $1,186,484 | $1,186,484 | $969.30 | | |
| | Total Tax Rate: | 7.3209764117 | | | | | |
| | | | | Taxes w/Current Exemptions: | $8,686.22 | | |
| | | | | Taxes w/o Exemptions: | $8,686.22 | | |
Improvement / Building
| Improvement #1: | RESIDENTIAL | State Code: | Y | 1717.5 sqft | Value: | $441,601 |
| Bathrooms: | 3 | Bedrooms: | 2 | | Ceiling: | DRYWALL PAINTED | Cooling: | HEAT PUMP/CONV/V | | Exterior Wall/Cover: | CEMENT FIBER | Floor Covering: | CARPET/VINYL 60-40 | | Floor Structure: | WOOD W/SUBFLOOR | Foundation: | CONCRETE | | Interior Finish: | DRYWALL PAINT | Plumbing Fixture Cnt: | 13 | | Roof Slope: | 3" IN 12" | Roof Structure/Cover: | CJ ALUMINIUM HEAVY |
|
| | Type | Description | Class CD | Sub Class CD | Year Built | Area |
| | BAS | BASE/MAIN FLOOR | 4 | 0 | 2021 | 1717.5 |
| | AGR | ATTACHED GARAGE | 4 | 0 | 2021 | 473.0 |
| | OWP | OPEN WOOD PORCH W/STEPS | 4 | 0 | 2021 | 180.0 |
| Improvement #2: | RESIDENTIAL | State Code: | Y | 1175.7 sqft | Value: | $414,883 |
| Bathrooms: | 2 | Bedrooms: | 1 | | Ceiling: | DRYWALL PAINTED | Cooling: | HEAT PUMP/CONV/V | | Exterior Wall/Cover: | VINYL | Floor Covering: | (NONE) | | Floor Structure: | SLAB ON GRADE | Foundation: | SLAB | | Interior Finish: | DRYWALL PAINT | Plumbing Fixture Cnt: | 13 | | Roof Slope: | 4" IN 12" | Roof Structure/Cover: | CJ ALUMINIUM HEAVY |
|
| | Type | Description | Class CD | Sub Class CD | Year Built | Area |
| | BAS | BASE/MAIN FLOOR | 3 | 0 | 2022 | 1175.7 |
| | AGR | ATTACHED GARAGE | 3 | 0 | 2022 | 1942.5 |
| | OP4 | OPEN PORCH W/CEILING-ROOF | 3 | 0 | 2022 | 1262.5 |
Sketch
Property Image
Land
| 1 | 32 | AC (03.01-09.99) | 4.7700 | 0.00 | 0.00 | 0.00 | 1.00 | $330,000 | $0 |
Roll Value History
| 2026 | N/A | N/A | N/A | N/A | N/A |
| 2025 | $856,484 | $330,000 | $0 | $1,186,484 | $1,186,484 |
| 2024 | $864,342 | $300,000 | $0 | $1,164,342 | $1,164,342 |
| 2023 | $711,463 | $240,000 | $0 | $951,463 | $951,463 |
| 2022 | $429,742 | $210,000 | $0 | $639,742 | $639,742 |
| 2021 | $367,949 | $140,000 | $0 | $507,949 | $507,949 |
| 2020 | $0 | $100,000 | $0 | $100,000 | $100,000 |
| 2019 | $0 | $100,000 | $0 | $100,000 | $100,000 |
| 2018 | $0 | $80,000 | $0 | $80,000 | $80,000 |
| 2017 | $0 | $80,000 | $0 | $80,000 | $80,000 |
| 2016 | $0 | $65,000 | $0 | $65,000 | $65,000 |
| 2015 | $0 | $65,000 | $0 | $65,000 | $65,000 |
| 2014 | $0 | $65,000 | $0 | $65,000 | $65,000 |
| 2013 | $0 | $114,480 | $0 | $114,480 | $114,480 |
| 2012 | $0 | $114,480 | $0 | $114,480 | $114,480 |
| 2011 | $0 | $114,480 | $0 | $114,480 | $114,480 |
| 2010 | $0 | $114,480 | $0 | $114,480 | $114,480 |
| 2009 | $0 | $143,100 | $0 | $143,100 | $143,100 |
| 2008 | $0 | $91,584 | $0 | $91,584 | $91,584 |
| 2007 | $0 | $91,584 | $0 | $91,584 | $91,584 |
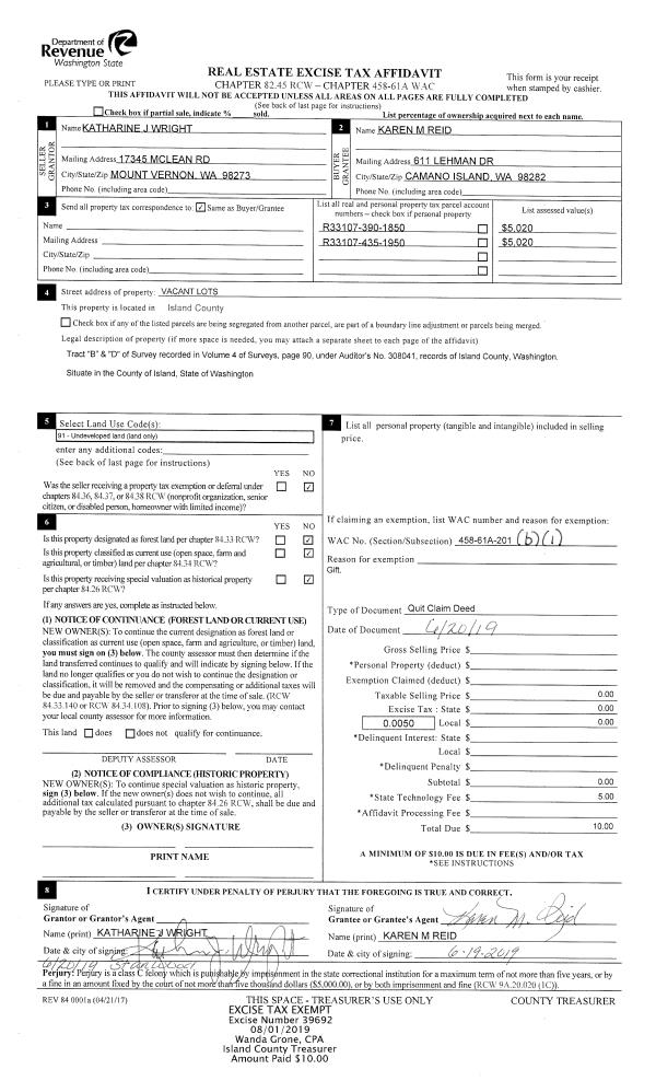
Deed and Sales History
| 1 | 06/01/2020 | WD | Warranty Deed | TURNER, CARA | PIKUL, SIGISMUND | | | $175,000.00 | 43206 | 4487950 |
| 2 | 07/30/2019 | WD | Warranty Deed | LARSON, CURTIS L | TURNER, CARA | | | $110,000.00 | 39938 | 4469756 |
| 3 | 06/19/2009 | PRD | Personal Representatives Deed | LARSON, ROSALEE | LARSON, CURTIS L | | | $0.00 | 91689 | 4257148 |
| 4 | 02/05/1999 | ESTSEPPROP | Establish Separate Property | Unknown | LARSON, ROSALEE | | | $0.00 | 90467 | 99003079 |
Payout Agreement
| No payout information available.. |