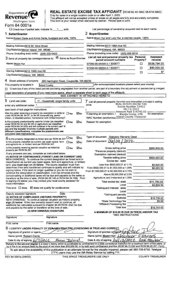
Property
Account |
| Property ID: | 146149 | Abbreviated Legal Description: | 91 - N/2 W/2 OF E330' OF W1650' OF N/2 N/2 NW TGW EZ |
| Geographic ID: | R33004-511-1400 | Agent Code: | |
| Type: | Real | | |
| Tax Area: | 542 - APPRAISER-Stan/Cam Schl Dist, Special Dist, improved, greater than 1 acre | Land Use Code | 11 |
| Open Space: | N | DFL | N |
| Historic Property: | N | Remodel Property: | N |
| Multi-Family Redevelopment: | N | | |
| Township: | 30 | Section: | 04 |
| Range: | R3 |
Location |
| Address: | 911 HAVEN PLACE CAMANO ISLAND, WA 98282 | Mapsco: | |
| Neighborhood: | Cycle 5 | Map ID: | 853 |
| Neighborhood CD: | 5 |
Owner |
| Name: | AMBSDORF, MICHAEL | Owner ID: | 4543 |
| Mailing Address: | 911 SANDELL RD CAMANO ISLAND, WA 98282-8242 | % Ownership: | 100.0000000000% |
| | | Exemptions: | |
Taxes and Assessment Details
Values
| (+) Improvement Homesite Value: | + | $0 | |
| (+) Improvement Non-Homesite Value: | + | $107,367 | |
| (+) Land Homesite Value: | + | $0 | |
| (+) Land Non-Homesite Value: | + | $260,000 | |
| (+) Curr Use (HS): | + | $0 | $0 |
| (+) Curr Use (NHS): | + | $0 | $0 |
| | | -------------------------- | |
| (=) Market Value: | = | $367,367 | |
| (–) Productivity Loss: | – | $0 | |
| | | -------------------------- | |
| (=) Subtotal: | = | $367,367 | |
| (+) Senior Appraised Value: | + | $0 | |
| (+) Non-Senior Appraised Value: | + | $367,367 | |
| | | -------------------------- | |
| (=) Total Appraised Value: | = | $367,367 | |
| (–) Senior Exemption Loss: | – | $0 | |
| (–) Exemption Loss: | – | $0 | |
| | | -------------------------- | |
| (=) Taxable Value: | = | $367,367 | |
Taxing Jurisdiction
| Owner: | AMBSDORF, MICHAEL | | |
| % Ownership: | 100.0000000000% | | |
| Total Value: | $367,367 | | |
| Tax Area: | 542 - APPRAISER-Stan/Cam Schl Dist, Special Dist, improved, greater than 1 acre |
| CF | Conservation Futures | 0.0316035091 | $367,367 | $367,367 | $11.61 | | |
| EMS1 | Fire & Rescue Dist #1 Camano GEN (EMS) | 0.3677864386 | $367,367 | $367,367 | $135.11 | | |
| FIRE1 | Fire & Rescue Dist #1 Camano GEN | 1.2502910536 | $367,367 | $367,367 | $459.32 | | |
| FIRE1BOND | Fire & Rescue Dist #1 Camano BOND | 0.1570001679 | $367,367 | $367,367 | $57.68 | | |
| CE | County Current Expense | 0.3708482477 | $367,367 | $367,367 | $136.24 | | |
| CR | County Roads | 0.4584763726 | $367,367 | $367,367 | $168.43 | | |
| LCIB | Library Sno-Isle BOND (Camano Island) | 0.0396325772 | $367,367 | $367,367 | $14.56 | | |
| LIB | Library Sno-Isle GEN | 0.3153421757 | $367,367 | $367,367 | $115.85 | | |
| SCH205_401 | School 205-401 Enrichment | 1.2698420524 | $367,367 | $367,367 | $466.50 | | |
| SCH205BOND | School 205-401 BOND | 0.9396497583 | $367,367 | $367,367 | $345.20 | | |
| ST | State School | 1.3035497053 | $367,367 | $367,367 | $478.88 | | |
| ST2 | State School Part 2 | 0.8169543533 | $367,367 | $367,367 | $300.12 | | |
| | Total Tax Rate: | 7.3209764117 | | | | | |
| | | | | Taxes w/Current Exemptions: | $2,689.50 | | |
| | | | | Taxes w/o Exemptions: | $2,689.50 | | |
Improvement / Building
| Improvement #1: | RESIDENTIAL | State Code: | Y | 576.0 sqft | Value: | $107,367 |
| Bathrooms: | 1 | Bedrooms: | 1 | | Ceiling: | TONGUE & GROOVE | Exterior Wall/Cover: | LOG TO 10" | | Floor Covering: | HARDWOOD 100% | Floor Structure: | WOOD W/SUBFLOOR | | Foundation: | CONCRETE | Heating: | BASEBOARD ELECTRIC | | Interior Finish: | DRYWALL PAINT | Plumbing Fixture Cnt: | 5 | | Roof Slope: | 6" IN 12" | Roof Structure/Cover: | ALUM LIGHT |
|
| | Type | Description | Class CD | Sub Class CD | Year Built | Area |
| | BAS | BASE/MAIN FLOOR | 3 | 0 | 1965 | 576.0 |
| | OWC | OPEN WOOD PORCH W/STEPS/ROOF/C | 3 | 0 | 1965 | 90.0 |
| | ENP | ENCLOSED PORCH | 3 | 0 | 1965 | 0.0 |
| | ENP | ENCLOSED PORCH | 3 | 0 | 1965 | 225.0 |
Sketch
Property Image
Land
| 1 | 17 | AC (01.01-02.00) | 1.2500 | 54450.00 | 0.00 | 0.00 | 1.00 | $260,000 | $0 |
Roll Value History
| 2026 | N/A | N/A | N/A | N/A | N/A |
| 2025 | $107,367 | $260,000 | $0 | $367,367 | $367,367 |
| 2024 | $111,138 | $240,000 | $0 | $351,138 | $351,138 |
| 2023 | $112,741 | $220,000 | $0 | $332,741 | $332,741 |
| 2022 | $104,012 | $200,000 | $0 | $304,012 | $304,012 |
| 2021 | $70,533 | $170,000 | $0 | $240,533 | $240,533 |
| 2020 | $69,032 | $150,000 | $0 | $219,032 | $219,032 |
| 2019 | $50,762 | $200,000 | $0 | $250,762 | $250,762 |
| 2018 | $50,943 | $150,000 | $0 | $200,943 | $200,943 |
| 2017 | $55,959 | $135,000 | $0 | $190,959 | $190,959 |
| 2016 | $56,749 | $75,000 | $0 | $131,749 | $131,749 |
| 2015 | $66,812 | $50,000 | $0 | $116,812 | $116,812 |
| 2014 | $67,744 | $50,000 | $0 | $117,744 | $117,744 |
| 2013 | $70,649 | $50,000 | $0 | $120,649 | $120,649 |
| 2012 | $71,599 | $74,400 | $0 | $145,999 | $145,999 |
| 2011 | $72,548 | $93,000 | $0 | $165,548 | $165,548 |
| 2010 | $79,900 | $93,000 | $0 | $172,900 | $172,900 |
| 2009 | $66,748 | $120,000 | $0 | $186,748 | $186,748 |
| 2008 | $67,564 | $99,000 | $0 | $166,564 | $166,564 |
| 2007 | $68,380 | $116,000 | $0 | $184,380 | $184,380 |
Deed and Sales History
| 1 | 12/01/1986 | WD | Warranty Deed | GEPNER, LORRAINE G | AMBSDORF, MICHAEL | | | $29,950.00 | 63738 | 86016656 |
| 2 | 01/01/1900 | OTHER | Other - Misc. Documents | Unknown | GEPNER, LORRAINE G | | | $0.00 | 0 | 0 |
Payout Agreement
| No payout information available.. |