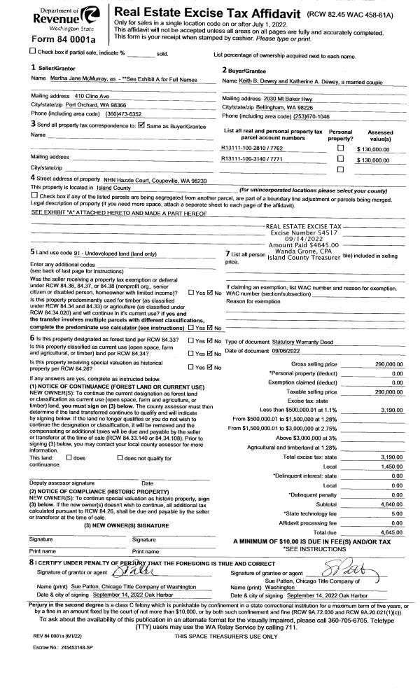
Property
Account |
| Property ID: | 146354 | Abbreviated Legal Description: | 48 - NW NE SE |
| Geographic ID: | R33005-235-3710 | Agent Code: | |
| Type: | Real | | |
| Tax Area: | 542 - APPRAISER-Stan/Cam Schl Dist, Special Dist, improved, greater than 1 acre | Land Use Code | 83 |
| Open Space: | Y | DFL | N |
| Historic Property: | N | Remodel Property: | N |
| Multi-Family Redevelopment: | N | | |
| Township: | 30 | Section: | 05 |
| Range: | R3 |
Location |
| Address: | 749 TYCORY LN CAMANO ISLAND, WA 98282 | Mapsco: | |
| Neighborhood: | Cycle 5 | Map ID: | 855 |
| Neighborhood CD: | 5 |
Owner |
| Name: | CAMANO NATURE-FARM COMMUNITY ASSOCIATION | Owner ID: | 311595 |
| Mailing Address: | 749 TYSORY LN CAMANO ISLAND, WA 98282 | % Ownership: | 100.0000000000% |
| | | Exemptions: | |
Taxes and Assessment Details
Values
| (+) Improvement Homesite Value: | + | $0 | |
| (+) Improvement Non-Homesite Value: | + | $181,565 | |
| (+) Land Homesite Value: | + | $0 | |
| (+) Land Non-Homesite Value: | + | $0 | |
| (+) Curr Use (HS): | + | $0 | $0 |
| (+) Curr Use (NHS): | + | $330,000 | $2,323 |
| | | -------------------------- | |
| (=) Market Value: | = | $511,565 | |
| (–) Productivity Loss: | – | $327,677 | |
| | | -------------------------- | |
| (=) Subtotal: | = | $183,888 | |
| (+) Senior Appraised Value: | + | $0 | |
| (+) Non-Senior Appraised Value: | + | $183,888 | |
| | | -------------------------- | |
| (=) Total Appraised Value: | = | $183,888 | |
| (–) Senior Exemption Loss: | – | $0 | |
| (–) Exemption Loss: | – | $0 | |
| | | -------------------------- | |
| (=) Taxable Value: | = | $183,888 | |
Taxing Jurisdiction
| Owner: | CAMANO NATURE-FARM COMMUNITY ASSOCIATION | | |
| % Ownership: | 100.0000000000% | | |
| Total Value: | $511,565 | | |
| Tax Area: | 542 - APPRAISER-Stan/Cam Schl Dist, Special Dist, improved, greater than 1 acre |
| CF | Conservation Futures | 0.0316035091 | $183,888 | $183,888 | $5.81 | | |
| EMS1 | Fire & Rescue Dist #1 Camano GEN (EMS) | 0.3677864386 | $183,888 | $183,888 | $67.63 | | |
| FIRE1 | Fire & Rescue Dist #1 Camano GEN | 1.2502910536 | $183,888 | $183,888 | $229.91 | | |
| FIRE1BOND | Fire & Rescue Dist #1 Camano BOND | 0.1570001679 | $183,888 | $183,888 | $28.87 | | |
| CE | County Current Expense | 0.3708482477 | $183,888 | $183,888 | $68.19 | | |
| CR | County Roads | 0.4584763726 | $183,888 | $183,888 | $84.31 | | |
| LCIB | Library Sno-Isle BOND (Camano Island) | 0.0396325772 | $183,888 | $183,888 | $7.29 | | |
| LIB | Library Sno-Isle GEN | 0.3153421757 | $183,888 | $183,888 | $57.99 | | |
| SCH205_401 | School 205-401 Enrichment | 1.2698420524 | $183,888 | $183,888 | $233.51 | | |
| SCH205BOND | School 205-401 BOND | 0.9396497583 | $183,888 | $183,888 | $172.79 | | |
| ST | State School | 1.3035497053 | $183,888 | $183,888 | $239.71 | | |
| ST2 | State School Part 2 | 0.8169543533 | $183,888 | $183,888 | $150.23 | | |
| | Total Tax Rate: | 7.3209764117 | | | | | |
| | | | | Taxes w/Current Exemptions: | $1,346.24 | | |
| | | | | Taxes w/o Exemptions: | $1,346.24 | | |
Improvement / Building
| Improvement #1: | MANUFACTURED HOME | State Code: | Y | 1846.6 sqft | Value: | $181,565 |
| Bathrooms: | 0 | Bedrooms: | 0 | | Ceiling: | PLASTER PAINTED | Cooling: | EVAP NO DUCT | | Exterior Wall/Cover: | VINYL | Floor Covering: | CARPET 100% | | Floor Structure: | SLAB ON GRADE | Foundation: | SLAB | | Heating: | FHA ELECTRIC | Interior Finish: | PLASTER | | Plumbing Fixture Cnt: | 1 | Roof Slope: | FLAT | | Roof Structure/Cover: | CJ ALUMINIUM HEAVY |   |   |
|
| | Type | Description | Class CD | Sub Class CD | Year Built | Area |
| | BAS | BASE/MAIN FLOOR | 4 | 0 | 2007 | 1846.6 |
| | CPD | OPEN CARPORT DIRT FLOOR | 4 | 0 | 2007 | 192.0 |
| | ENP | ENCLOSED PORCH | 4 | 0 | 2007 | 380.0 |
Sketch
Property Image
Land
| 1 | 32 | AC (03.01-09.99) | 9.5600 | 416433.60 | 0.00 | 0.00 | 1.00 | $330,000 | $2,323 |
Roll Value History
| 2026 | N/A | N/A | N/A | N/A | N/A |
| 2025 | $181,565 | $330,000 | $2,323 | $183,888 | $183,888 |
| 2024 | $186,161 | $300,000 | $2,323 | $188,484 | $188,484 |
| 2023 | $165,889 | $290,000 | $2,323 | $168,212 | $168,212 |
| 2022 | $153,825 | $210,000 | $2,323 | $156,148 | $156,148 |
| 2021 | $121,678 | $190,000 | $2,323 | $124,001 | $124,001 |
| 2020 | $119,495 | $160,000 | $0 | $279,495 | $279,495 |
| 2019 | $96,291 | $230,000 | $0 | $326,291 | $326,291 |
| 2018 | $97,373 | $175,000 | $0 | $272,373 | $272,373 |
| 2017 | $99,522 | $165,000 | $0 | $264,522 | $264,522 |
| 2016 | $100,604 | $130,000 | $0 | $230,604 | $230,604 |
| 2015 | $100,407 | $114,720 | $0 | $215,127 | $215,127 |
| 2014 | $102,613 | $114,720 | $0 | $217,333 | $217,333 |
| 2013 | $109,366 | $114,720 | $0 | $224,086 | $224,086 |
| 2012 | $110,469 | $114,720 | $0 | $225,189 | $225,189 |
| 2011 | $112,675 | $143,400 | $0 | $256,075 | $256,075 |
| 2010 | $116,354 | $143,400 | $0 | $259,754 | $259,754 |
| 2009 | $121,115 | $210,320 | $0 | $331,435 | $331,435 |
| 2008 | $175,681 | $183,552 | $0 | $359,233 | $359,233 |
| 2007 | $176,952 | $184,175 | $0 | $361,127 | $361,127 |
Deed and Sales History
| 1 | 02/29/2024 | WD | Warranty Deed | ANANDA FARMS LLC | CAMANO NATURE-FARM COMMUNITY ASSOCIATION | | | $1,215,200.00 | 59337 | 4569967 |
|   | |
| 2 | 11/20/2012 | WD | Warranty Deed | SUTTER, SUSAN A | ANANDA FARMS LLC | | | $249,000.00 | 9566 | 4328024 |
| 3 | 11/01/2004 | WD | Warranty Deed | MAXWELL, STEVEN A | SUTTER, SUSAN A | | | $107,836.00 | 45231 | 4117343 |
| 4 | 08/28/2002 | ESTSEPPROP | Establish Separate Property | MAXWELL, STEVEN A | MAXWELL, STEVEN A | | | $0.00 | 23980 | 4033250 |
| 5 | 10/03/2002 | WD | Warranty Deed | FIRCHAU CONSTRUCTION, | MAXWELL, STEVEN A | | | $89,950.00 | 23981 | 40333251 |
| 6 | 06/11/2002 | WD | Warranty Deed | SODERBERG, ROWLAN F | FIRCHAU CONSTRUCTION, | | | $93,000.00 | 22254 | 4022873 |
| 7 | 01/01/1900 | OTHER | Other - Misc. Documents | Unknown | SODERBERG, ROWLAN F | | | $0.00 | 0 | 0 |
Payout Agreement
| No payout information available.. |