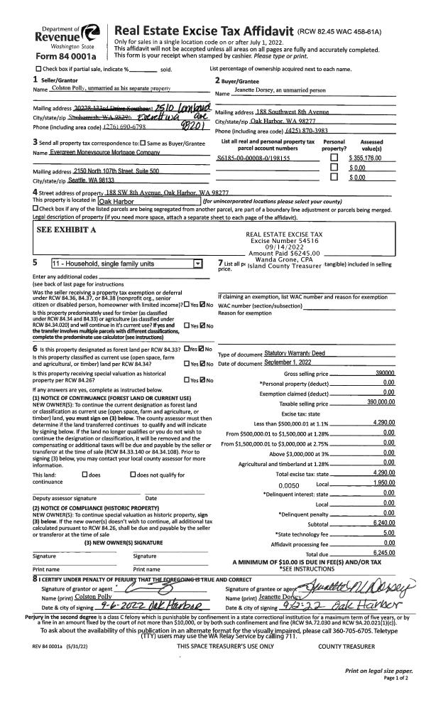
Property
Account |
| Property ID: | 146452 | Abbreviated Legal Description: | 45 - E/2 SW SE NE |
| Geographic ID: | R33005-305-3870 | Agent Code: | |
| Type: | Real | | |
| Tax Area: | 542 - APPRAISER-Stan/Cam Schl Dist, Special Dist, improved, greater than 1 acre | Land Use Code | 83 |
| Open Space: | Y | DFL | N |
| Historic Property: | N | Remodel Property: | N |
| Multi-Family Redevelopment: | N | | |
| Township: | 30 | Section: | 05 |
| Range: | R3 |
Location |
| Address: | 732 HAVEN PLACE CAMANO ISLAND, WA 98282 | Mapsco: | |
| Neighborhood: | Cycle 5 | Map ID: | 857 |
| Neighborhood CD: | 5 |
Owner |
| Name: | CAMANO NATURE-FARM COMMUNITY ASSOCIATION | Owner ID: | 311595 |
| Mailing Address: | 749 TYSORY LN CAMANO ISLAND, WA 98282 | % Ownership: | 100.0000000000% |
| | | Exemptions: | |
Taxes and Assessment Details
Values
| (+) Improvement Homesite Value: | + | $0 | |
| (+) Improvement Non-Homesite Value: | + | $413,019 | |
| (+) Land Homesite Value: | + | $0 | |
| (+) Land Non-Homesite Value: | + | $0 | |
| (+) Curr Use (HS): | + | $0 | $0 |
| (+) Curr Use (NHS): | + | $330,000 | $1,162 |
| | | -------------------------- | |
| (=) Market Value: | = | $743,019 | |
| (–) Productivity Loss: | – | $328,838 | |
| | | -------------------------- | |
| (=) Subtotal: | = | $414,181 | |
| (+) Senior Appraised Value: | + | $0 | |
| (+) Non-Senior Appraised Value: | + | $414,181 | |
| | | -------------------------- | |
| (=) Total Appraised Value: | = | $414,181 | |
| (–) Senior Exemption Loss: | – | $0 | |
| (–) Exemption Loss: | – | $0 | |
| | | -------------------------- | |
| (=) Taxable Value: | = | $414,181 | |
Taxing Jurisdiction
| Owner: | CAMANO NATURE-FARM COMMUNITY ASSOCIATION | | |
| % Ownership: | 100.0000000000% | | |
| Total Value: | $743,019 | | |
| Tax Area: | 542 - APPRAISER-Stan/Cam Schl Dist, Special Dist, improved, greater than 1 acre |
| CF | Conservation Futures | 0.0316035091 | $414,181 | $414,181 | $13.09 | | |
| EMS1 | Fire & Rescue Dist #1 Camano GEN (EMS) | 0.3677864386 | $414,181 | $414,181 | $152.33 | | |
| FIRE1 | Fire & Rescue Dist #1 Camano GEN | 1.2502910536 | $414,181 | $414,181 | $517.85 | | |
| FIRE1BOND | Fire & Rescue Dist #1 Camano BOND | 0.1570001679 | $414,181 | $414,181 | $65.03 | | |
| CE | County Current Expense | 0.3708482477 | $414,181 | $414,181 | $153.60 | | |
| CR | County Roads | 0.4584763726 | $414,181 | $414,181 | $189.89 | | |
| LCIB | Library Sno-Isle BOND (Camano Island) | 0.0396325772 | $414,181 | $414,181 | $16.42 | | |
| LIB | Library Sno-Isle GEN | 0.3153421757 | $414,181 | $414,181 | $130.61 | | |
| SCH205_401 | School 205-401 Enrichment | 1.2698420524 | $414,181 | $414,181 | $525.94 | | |
| SCH205BOND | School 205-401 BOND | 0.9396497583 | $414,181 | $414,181 | $389.19 | | |
| ST | State School | 1.3035497053 | $414,181 | $414,181 | $539.91 | | |
| ST2 | State School Part 2 | 0.8169543533 | $414,181 | $414,181 | $338.37 | | |
| | Total Tax Rate: | 7.3209764117 | | | | | |
| | | | | Taxes w/Current Exemptions: | $3,032.23 | | |
| | | | | Taxes w/o Exemptions: | $3,032.23 | | |
Improvement / Building
| Improvement #1: | MANUFACTURED HOME | State Code: | Y | 2528.8 sqft | Value: | $239,719 |
| Bathrooms: | 2.5 | Bedrooms: | 3 | | Ceiling: | PLASTER PAINTED | Cooling: | EVAP NO DUCT | | Exterior Wall/Cover: | VINYL | Floor Covering: | CARPET 100% | | Floor Structure: | SLAB ON GRADE | Foundation: | SLAB | | Heating: | FHA ELECTRIC | Interior Finish: | PLASTER | | Plumbing Fixture Cnt: | 1 | Roof Slope: | FLAT | | Roof Structure/Cover: | CJ ALUMINIUM HEAVY |   |   |
|
| | Type | Description | Class CD | Sub Class CD | Year Built | Area |
| | BAS | BASE/MAIN FLOOR | 4 | 0 | 1999 | 2528.8 |
| | OWC | OPEN WOOD PORCH W/STEPS/ROOF/C | 4 | 0 | 1999 | 10.3 |
| | DGR | DETACHED GARAGE | 4 | 0 | 1999 | 728.0 |
| | DGR | DETACHED GARAGE | 4 | 0 | 1999 | 900.0 |
| | UTY | STORAGE/UTILITY | 4 | 0 | 1999 | 360.0 |
| | OWP | OPEN WOOD PORCH W/STEPS | 4 | 0 | 1999 | 180.0 |
| | OWR | OPEN WOOD PORCH W/STEPS/ROOF | 4 | 0 | 1999 | 720.0 |
| Improvement #2: | RESIDENTIAL | State Code: | Y | 513.0 sqft | Value: | $173,300 |
| Bathrooms: | 1 | Bedrooms: | 0 | | Ceiling: | DRYWALL PAINTED | Cooling: | HEAT PUMP/CONV/V | | Exterior Wall/Cover: | PLY/HARDBOARD T-111 | Floor Covering: | VINYL 100% | | Floor Structure: | WOOD W/SUBFLOOR | Foundation: | CONCRETE BLOCKS | | Interior Finish: | DRYWALL PAINT | Plumbing Fixture Cnt: | 5 | | Roof Slope: | 6" IN 12" | Roof Structure/Cover: | CJ ALUMINIUM HEAVY |
|
| | Type | Description | Class CD | Sub Class CD | Year Built | Area |
| | BAS | BASE/MAIN FLOOR | 3 | 0 | 2021 | 513.0 |
| | OWP | OPEN WOOD PORCH W/STEPS | 3 | 0 | 2021 | 90.0 |
| | OWR | OPEN WOOD PORCH W/STEPS/ROOF | 3 | 0 | 2021 | 48.0 |
| | OP3 | OPEN PORCH W/ROOF | 3 | 0 | 2021 | 880.0 |
Sketch
| No sketches available for this property. |
Property Image
Land
| 1 | 32 | AC (03.01-09.99) | 4.7800 | 0.00 | 0.00 | 0.00 | 1.00 | $330,000 | $1,162 |
Roll Value History
| 2026 | N/A | N/A | N/A | N/A | N/A |
| 2025 | $413,019 | $330,000 | $1,162 | $414,181 | $414,181 |
| 2024 | $426,180 | $300,000 | $1,162 | $427,342 | $427,342 |
| 2023 | $363,366 | $290,000 | $1,162 | $364,528 | $364,528 |
| 2022 | $339,354 | $210,000 | $1,162 | $340,516 | $340,516 |
| 2021 | $176,968 | $190,000 | $1,162 | $178,130 | $178,130 |
| 2020 | $172,425 | $160,000 | $0 | $332,425 | $332,425 |
| 2019 | $146,969 | $230,000 | $0 | $376,969 | $376,969 |
| 2018 | $148,220 | $175,000 | $0 | $323,220 | $323,220 |
| 2017 | $149,437 | $150,000 | $0 | $299,437 | $299,437 |
| 2016 | $151,938 | $130,000 | $0 | $281,938 | $281,938 |
| 2015 | $182,429 | $103,248 | $0 | $285,677 | $285,677 |
| 2014 | $185,304 | $103,248 | $0 | $288,552 | $288,552 |
| 2013 | $170,333 | $103,248 | $0 | $273,581 | $273,581 |
| 2012 | $172,559 | $103,248 | $0 | $275,807 | $275,807 |
| 2011 | $174,786 | $129,060 | $0 | $303,846 | $303,846 |
| 2010 | $190,188 | $129,060 | $0 | $319,248 | $319,248 |
| 2009 | $191,682 | $161,325 | $0 | $353,007 | $353,007 |
| 2008 | $195,234 | $160,608 | $0 | $355,842 | $355,842 |
| 2007 | $198,190 | $160,608 | $0 | $358,798 | $358,798 |
Deed and Sales History
| 1 | 02/29/2024 | WD | Warranty Deed | ANANDA FARMS LLC | CAMANO NATURE-FARM COMMUNITY ASSOCIATION | | | $1,215,200.00 | 59337 | 4569967 |
|   | |
| 2 | 07/10/2013 | WD | Warranty Deed | PRICE, BARBARA A | ANANDA FARMS LLC | | | $330,000.00 | 12125 | 4344814 |
| 3 | 02/05/2002 | ESTSEPPROP | Establish Separate Property | KOPPY, BARBARA A | PRICE, BARBARA A | | | $0.00 | 69305 | 0 |
| 4 | 03/23/2001 | DECREE | Divorce Decree/Legal Separation | KOPPY, TED J | KOPPY, BARBARA A | | | $0.00 | 11188 | 20029412 |
| 5 | 12/04/1998 | WD | Warranty Deed | FIRCHAU, CONSTRUCTION, I | KOPPY, TED J | | | $49,500.00 | 84855 | 98026750 |
| 6 | 01/01/1998 | WD | Warranty Deed | HARRISON, ROBERT W | FIRCHAU, CONSTRUCTION, I | | | $51,500.00 | 80399 | 98002032 |
| 7 | 04/01/1991 | WD | Warranty Deed | WRIGHT, DENNIS S | HARRISON, ROBERT W | | | $23,000.00 | 11381 | 91005931 |
| 8 | 11/01/1978 | OTHER | Other - Misc. Documents | KOPPY, TED J | WRIGHT, DENNIS S | | | $11,900.00 | 85601 | 343127 |
| 9 | 01/01/1900 | OTHER | Other - Misc. Documents | Unknown | KOPPY, TED J | | | $0.00 | 0 | 0 |
Payout Agreement
| No payout information available.. |