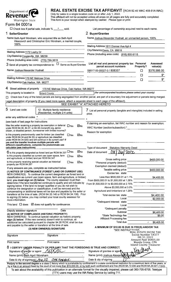
Property
Account |
| Property ID: | 146915 | Abbreviated Legal Description: | 50 - SE SE: BG SWCR SE SE E165' N30' TPB N325' W165' S325' E165' TPB SUB EZ (LOT D SP 71-128 AF#250060) |
| Geographic ID: | R33010-020-4050 | Agent Code: | |
| Type: | Real | | |
| Tax Area: | 562 - APPRAISER-Stan/Cam Schl Dist, Special Dist, improved, greater than 1 acre | Land Use Code | 11 |
| Open Space: | N | DFL | N |
| Historic Property: | N | Remodel Property: | N |
| Multi-Family Redevelopment: | N | | |
| Township: | 30 | Section: | 10 |
| Range: | R3 |
Location |
| Address: | 1511 DALLMAN RD CAMANO ISLAND, WA 98282 | Mapsco: | |
| Neighborhood: | 58NofTamarackS | Map ID: | 864 |
| Neighborhood CD: | 58RntamS |
Owner |
| Name: | ACKRON, RENEE J | Owner ID: | 59548 |
| Mailing Address: | 1511 DALLMAN RD CAMANO ISLAND, WA 98282-8224 | % Ownership: | 100.0000000000% |
| | | Exemptions: | |
Taxes and Assessment Details
Values
| (+) Improvement Homesite Value: | + | $0 | |
| (+) Improvement Non-Homesite Value: | + | $279,769 | |
| (+) Land Homesite Value: | + | $0 | |
| (+) Land Non-Homesite Value: | + | $250,000 | |
| (+) Curr Use (HS): | + | $0 | $0 |
| (+) Curr Use (NHS): | + | $0 | $0 |
| | | -------------------------- | |
| (=) Market Value: | = | $529,769 | |
| (–) Productivity Loss: | – | $0 | |
| | | -------------------------- | |
| (=) Subtotal: | = | $529,769 | |
| (+) Senior Appraised Value: | + | $0 | |
| (+) Non-Senior Appraised Value: | + | $529,769 | |
| | | -------------------------- | |
| (=) Total Appraised Value: | = | $529,769 | |
| (–) Senior Exemption Loss: | – | $0 | |
| (–) Exemption Loss: | – | $0 | |
| | | -------------------------- | |
| (=) Taxable Value: | = | $529,769 | |
Taxing Jurisdiction
| Owner: | ACKRON, RENEE J | | |
| % Ownership: | 100.0000000000% | | |
| Total Value: | $529,769 | | |
| Tax Area: | 562 - APPRAISER-Stan/Cam Schl Dist, Special Dist, improved, greater than 1 acre |
| CF | Conservation Futures | 0.0316035091 | $529,769 | $529,769 | $16.74 | | |
| EMS1 | Fire & Rescue Dist #1 Camano GEN (EMS) | 0.3677864386 | $529,769 | $529,769 | $194.84 | | |
| FIRE1 | Fire & Rescue Dist #1 Camano GEN | 1.2502910536 | $529,769 | $529,769 | $662.37 | | |
| FIRE1BOND | Fire & Rescue Dist #1 Camano BOND | 0.1570001679 | $529,769 | $529,769 | $83.17 | | |
| CE | County Current Expense | 0.3708482477 | $529,769 | $529,769 | $196.46 | | |
| CR | County Roads | 0.4584763726 | $529,769 | $529,769 | $242.89 | | |
| LCIB | Library Sno-Isle BOND (Camano Island) | 0.0396325772 | $529,769 | $529,769 | $21.00 | | |
| LIB | Library Sno-Isle GEN | 0.3153421757 | $529,769 | $529,769 | $167.06 | | |
| SCH205_401 | School 205-401 Enrichment | 1.2698420524 | $529,769 | $529,769 | $672.72 | | |
| SCH205BOND | School 205-401 BOND | 0.9396497583 | $529,769 | $529,769 | $497.80 | | |
| ST | State School | 1.3035497053 | $529,769 | $529,769 | $690.58 | | |
| ST2 | State School Part 2 | 0.8169543533 | $529,769 | $529,769 | $432.80 | | |
| | Total Tax Rate: | 7.3209764117 | | | | | |
| | | | | Taxes w/Current Exemptions: | $3,878.43 | | |
| | | | | Taxes w/o Exemptions: | $3,878.43 | | |
Improvement / Building
| Improvement #1: | RESIDENTIAL | State Code: | Y | 1536.0 sqft | Value: | $279,769 |
| Bathrooms: | 2 | Bedrooms: | 3 | | Ceiling: | DRYWALL PAINTED | Exterior Wall/Cover: | CEMENT FIBER | | Floor Covering: | HARDWOOD/CARP 20-80 | Floor Structure: | WOOD W/SUBFLOOR | | Foundation: | CONCRETE | Heating: | WALL HEAT ELECTRIC | | Interior Finish: | DRYWALL PAINT | Plumbing Fixture Cnt: | 9 | | Roof Slope: | 12" IN 12" | Roof Structure/Cover: | CJ ASPHALT |
|
| | Type | Description | Class CD | Sub Class CD | Year Built | Area |
| | BAS | BASE/MAIN FLOOR | 3 | 0 | 1999 | 624.0 |
| | BIG | BUILT IN GARAGE | 3 | 0 | 1999 | 576.0 |
| | UPS | UPPER STORY | 3 | 0 | 1999 | 624.0 |
| | OWP | OPEN WOOD PORCH W/STEPS | 3 | 0 | 1999 | 43.3 |
| | OWP | OPEN WOOD PORCH W/STEPS | 3 | 0 | 1999 | 305.0 |
| | UPH | HALF STORY | 3 | 0 | 1999 | 288.0 |
Sketch
| No sketches available for this property. |
Property Image
Land
| 1 | 17 | AC (01.01-02.00) | 1.2300 | 53578.80 | 0.00 | 0.00 | 1.00 | $250,000 | $0 |
Roll Value History
| 2026 | N/A | N/A | N/A | N/A | N/A |
| 2025 | $279,769 | $250,000 | $0 | $529,769 | $529,769 |
| 2024 | $288,163 | $220,000 | $0 | $508,163 | $508,163 |
| 2023 | $291,583 | $220,000 | $0 | $511,583 | $511,583 |
| 2022 | $267,127 | $200,000 | $0 | $467,127 | $467,127 |
| 2021 | $204,502 | $150,000 | $0 | $354,502 | $354,502 |
| 2020 | $199,286 | $140,000 | $0 | $339,286 | $339,286 |
| 2019 | $145,303 | $170,000 | $0 | $315,303 | $315,303 |
| 2018 | $145,731 | $150,000 | $0 | $295,731 | $295,731 |
| 2017 | $146,578 | $135,000 | $0 | $281,578 | $281,578 |
| 2016 | $148,282 | $75,000 | $0 | $223,282 | $223,282 |
| 2015 | $147,886 | $50,000 | $0 | $197,886 | $197,886 |
| 2014 | $149,641 | $50,000 | $0 | $199,641 | $199,641 |
| 2013 | $151,395 | $50,000 | $0 | $201,395 | $201,395 |
| 2012 | $153,149 | $74,400 | $0 | $227,549 | $227,549 |
| 2011 | $154,903 | $93,000 | $0 | $247,903 | $247,903 |
| 2010 | $165,535 | $93,000 | $0 | $258,535 | $258,535 |
| 2009 | $174,948 | $120,000 | $0 | $294,948 | $294,948 |
| 2008 | $177,164 | $99,000 | $0 | $276,164 | $276,164 |
| 2007 | $179,333 | $86,000 | $0 | $265,333 | $265,333 |
Deed and Sales History
| 1 | 10/01/1996 | WD | Warranty Deed | JOHNSEN, RONNIE D | ACKRON, RENEE J | | | $52,846.00 | 63556 | 96017399 |
| 2 | 07/01/1988 | REC | Real Estate Contract | MONEY, GEORGE E | JOHNSEN, RONNIE D | | | $32,000.00 | 82546 | 88009592 |
| 3 | 04/01/1981 | EXECUTORD | Executor Deed | SUNN, RUSSELL M | MONEY, GEORGE E | | | $11,521.00 | 11033 | 381522 |
| 4 | 03/01/1979 | OTHER | Other - Misc. Documents | Unknown | SUNN, RUSSELL M | | | $7,750.00 | 91949 | 351513 |
Payout Agreement
| No payout information available.. |