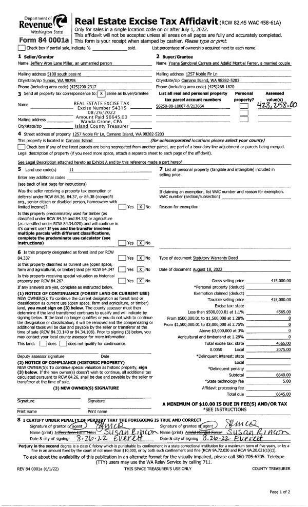
Property
Account |
| Property ID: | 146979 | Abbreviated Legal Description: | 67 - IN SE SE: BG SWCR SE SE E1155.36' N30' TPB N325' W165.36' S325' E165.36' TPB TGW & SUB TO EZ (TR A SP 75-63 AF#301462) |
| Geographic ID: | R33010-020-5030 | Agent Code: | |
| Type: | Real | | |
| Tax Area: | 562 - APPRAISER-Stan/Cam Schl Dist, Special Dist, improved, greater than 1 acre | Land Use Code | 11 |
| Open Space: | N | DFL | N |
| Historic Property: | N | Remodel Property: | N |
| Multi-Family Redevelopment: | N | | |
| Township: | 30 | Section: | 10 |
| Range: | R3 |
Location |
| Address: | 3192 SANTA FE CT CAMANO ISLAND, WA 98282 | Mapsco: | |
| Neighborhood: | 58NofTamarackS | Map ID: | 864 |
| Neighborhood CD: | 58RntamS |
Owner |
| Name: | EVANS, DARREN | Owner ID: | 296838 |
| Mailing Address: | SHAWNEE EVANS 6703 SCOTT ST LIVERPOOL, TX 77577 | % Ownership: | 100.0000000000% |
| | | Exemptions: | |
Taxes and Assessment Details
Values
| (+) Improvement Homesite Value: | + | $0 | |
| (+) Improvement Non-Homesite Value: | + | $381,946 | |
| (+) Land Homesite Value: | + | $0 | |
| (+) Land Non-Homesite Value: | + | $250,000 | |
| (+) Curr Use (HS): | + | $0 | $0 |
| (+) Curr Use (NHS): | + | $0 | $0 |
| | | -------------------------- | |
| (=) Market Value: | = | $631,946 | |
| (–) Productivity Loss: | – | $0 | |
| | | -------------------------- | |
| (=) Subtotal: | = | $631,946 | |
| (+) Senior Appraised Value: | + | $0 | |
| (+) Non-Senior Appraised Value: | + | $631,946 | |
| | | -------------------------- | |
| (=) Total Appraised Value: | = | $631,946 | |
| (–) Senior Exemption Loss: | – | $0 | |
| (–) Exemption Loss: | – | $0 | |
| | | -------------------------- | |
| (=) Taxable Value: | = | $631,946 | |
Taxing Jurisdiction
| Owner: | EVANS, DARREN | | |
| % Ownership: | 100.0000000000% | | |
| Total Value: | $631,946 | | |
| Tax Area: | 562 - APPRAISER-Stan/Cam Schl Dist, Special Dist, improved, greater than 1 acre |
| CF | Conservation Futures | 0.0316035091 | $631,946 | $631,946 | $19.97 | | |
| EMS1 | Fire & Rescue Dist #1 Camano GEN (EMS) | 0.3677864386 | $631,946 | $631,946 | $232.42 | | |
| FIRE1 | Fire & Rescue Dist #1 Camano GEN | 1.2502910536 | $631,946 | $631,946 | $790.12 | | |
| FIRE1BOND | Fire & Rescue Dist #1 Camano BOND | 0.1570001679 | $631,946 | $631,946 | $99.22 | | |
| CE | County Current Expense | 0.3708482477 | $631,946 | $631,946 | $234.36 | | |
| CR | County Roads | 0.4584763726 | $631,946 | $631,946 | $289.73 | | |
| LCIB | Library Sno-Isle BOND (Camano Island) | 0.0396325772 | $631,946 | $631,946 | $25.05 | | |
| LIB | Library Sno-Isle GEN | 0.3153421757 | $631,946 | $631,946 | $199.28 | | |
| SCH205_401 | School 205-401 Enrichment | 1.2698420524 | $631,946 | $631,946 | $802.47 | | |
| SCH205BOND | School 205-401 BOND | 0.9396497583 | $631,946 | $631,946 | $593.81 | | |
| ST | State School | 1.3035497053 | $631,946 | $631,946 | $823.77 | | |
| ST2 | State School Part 2 | 0.8169543533 | $631,946 | $631,946 | $516.27 | | |
| | Total Tax Rate: | 7.3209764117 | | | | | |
| | | | | Taxes w/Current Exemptions: | $4,626.47 | | |
| | | | | Taxes w/o Exemptions: | $4,626.47 | | |
Improvement / Building
| Improvement #1: | RESIDENTIAL | State Code: | Y | 1980.9 sqft | Value: | $381,946 |
| Bathrooms: | 2.5 | Bedrooms: | 4 | | Ceiling: | DRYWALL PAINTED | Exterior Wall/Cover: | WOOD SIDING | | Floor Covering: | HARDWOOD/CARP 60-40 | Floor Structure: | WOOD W/SUBFLOOR | | Foundation: | CONCRETE | Heating: | WALL HEAT ELECTRIC | | Interior Finish: | DRYWALL PAINT | Plumbing Fixture Cnt: | 12 | | Roof Slope: | 6" IN 12" | Roof Structure/Cover: | CJ ASPHALT |
|
| | Type | Description | Class CD | Sub Class CD | Year Built | Area |
| | BAS | BASE/MAIN FLOOR | 4 | 0 | 1991 | 963.1 |
| | BIG | BUILT IN GARAGE | 4 | 0 | 1991 | 722.8 |
| | UPS | UPPER STORY | 4 | 0 | 1991 | 1017.8 |
| | OWP | OPEN WOOD PORCH W/STEPS | 4 | 0 | 1991 | 767.0 |
| | OP2 | OPEN PORCH W/STEPS | 4 | 0 | 1991 | 44.1 |
| | UTY | STORAGE/UTILITY | 4 | 0 | 1991 | 200.0 |
Sketch
Property Image
Land
| 1 | 17 | AC (01.01-02.00) | 1.2400 | 54014.40 | 0.00 | 0.00 | 1.00 | $250,000 | $0 |
Roll Value History
| 2026 | N/A | N/A | N/A | N/A | N/A |
| 2025 | $381,946 | $250,000 | $0 | $631,946 | $631,946 |
| 2024 | $386,826 | $220,000 | $0 | $606,826 | $606,826 |
| 2023 | $391,707 | $220,000 | $0 | $611,707 | $611,707 |
| 2022 | $359,106 | $200,000 | $0 | $559,106 | $559,106 |
| 2021 | $307,285 | $150,000 | $0 | $457,285 | $457,285 |
| 2020 | $221,607 | $140,000 | $0 | $361,607 | $361,607 |
| 2019 | $168,227 | $170,000 | $0 | $338,227 | $338,227 |
| 2018 | $168,794 | $150,000 | $0 | $318,794 | $318,794 |
| 2017 | $169,928 | $135,000 | $0 | $304,928 | $304,928 |
| 2016 | $172,191 | $75,000 | $0 | $247,191 | $247,191 |
| 2015 | $163,405 | $50,000 | $0 | $213,405 | $213,405 |
| 2014 | $165,580 | $50,000 | $0 | $215,580 | $215,580 |
| 2013 | $167,753 | $50,000 | $0 | $217,753 | $217,753 |
| 2012 | $169,928 | $74,400 | $0 | $244,328 | $244,328 |
| 2011 | $172,102 | $93,000 | $0 | $265,102 | $265,102 |
| 2010 | $183,606 | $93,000 | $0 | $276,606 | $276,606 |
| 2009 | $189,992 | $99,000 | $0 | $288,992 | $288,992 |
| 2008 | $192,301 | $99,000 | $0 | $291,301 | $291,301 |
| 2007 | $194,556 | $86,000 | $0 | $280,556 | $280,556 |
Deed and Sales History
| 1 | 11/18/2020 | WD | Warranty Deed | PAYNE, GARY R | EVANS, DARREN | | | $549,000.00 | 45906 | 4503528 |
| 2 | 06/01/1997 | WD | Warranty Deed | FELICI, RICKY J | PAYNE, GARY R | | | $172,000.00 | 72034 | 97009509 |
| 3 | 08/01/1995 | WD | Warranty Deed | PRUDENTIAL, RESIDENTIAL | FELICI, RICKY J | | | $155,000.00 | 52979 | 95013851 |
| 4 | 04/01/1995 | WD | Warranty Deed | HANSON, MARK R | PRUDENTIAL, RESIDENTIAL | | | $158,500.00 | 51363 | 95006373 |
| 5 | 09/01/1990 | WD | Warranty Deed | ARRINGTON, DALE | HANSON, MARK R | | | $23,950.00 | 5641 | 90018892 |
| 6 | 02/01/1990 | WD | Warranty Deed | ARRINGTON, DALE | ARRINGTON, DALE | | | $11,900.00 | 868 | 90002835 |
| 7 | 02/01/1990 | WD | Warranty Deed | HUNTER, KENNETH | ARRINGTON, DALE | | | $0.00 | 886 | 90002895 |
| 8 | 01/01/1900 | OTHER | Other - Misc. Documents | Unknown | HUNTER, KENNETH | | | $0.00 | 0 | 0 |
Payout Agreement
| No payout information available.. |