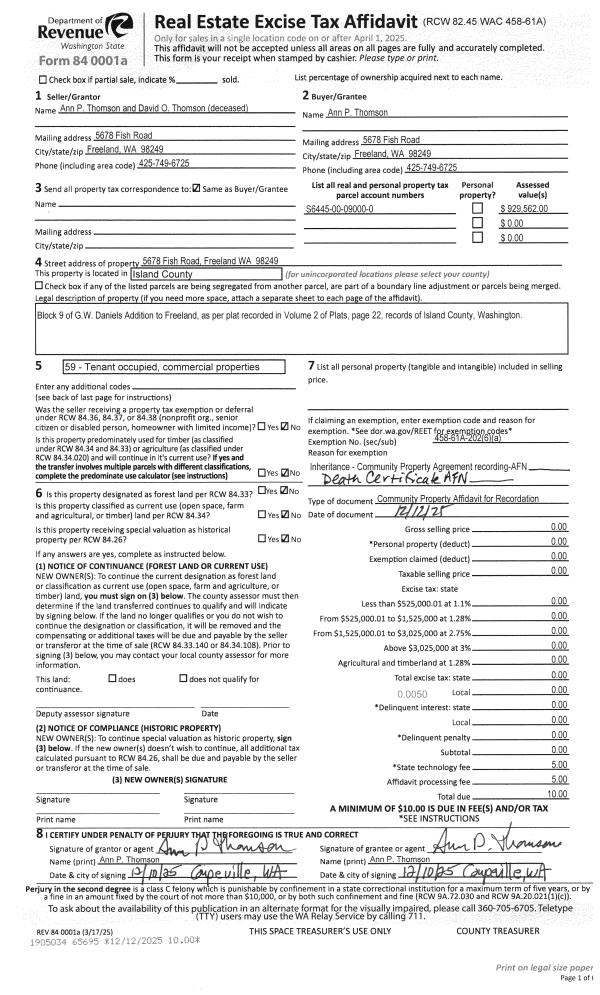
Property
Account |
| Property ID: | 14763 | Abbreviated Legal Description: | 63 - SW SE NE SE TGW & SUBJ TO EZ AF#87009500 (TR G SP 77-20) |
| Geographic ID: | R13205-148-4800 | Agent Code: | |
| Type: | Real | | |
| Tax Area: | 112 - APPRAISER-OH Schl Dist, outside OH, improved, greater than 1 acre | Land Use Code | 11 |
| Open Space: | N | DFL | N |
| Historic Property: | N | Remodel Property: | N |
| Multi-Family Redevelopment: | N | | |
| Township: | 32 | Section: | 05 |
| Range: | R1 |
Location |
| Address: | 2105 BOULDER MEADOW LN OAK HARBOR, WA 98277 | Mapsco: | |
| Neighborhood: | Cycle 1 | Map ID: | 99 |
| Neighborhood CD: | 1 |
Owner |
| Name: | THOSTENSON, BROOKS | Owner ID: | 316547 |
| Mailing Address: | MARIKO THOMAS 2105 BOULDER MEADOW LN OAK HARBOR, WA 98277 | % Ownership: | 100.0000000000% |
| | | Exemptions: | |
Taxes and Assessment Details
Values
| (+) Improvement Homesite Value: | + | $0 | |
| (+) Improvement Non-Homesite Value: | + | $387,487 | |
| (+) Land Homesite Value: | + | $0 | |
| (+) Land Non-Homesite Value: | + | $260,000 | |
| (+) Curr Use (HS): | + | $0 | $0 |
| (+) Curr Use (NHS): | + | $0 | $0 |
| | | -------------------------- | |
| (=) Market Value: | = | $647,487 | |
| (–) Productivity Loss: | – | $0 | |
| | | -------------------------- | |
| (=) Subtotal: | = | $647,487 | |
| (+) Senior Appraised Value: | + | $0 | |
| (+) Non-Senior Appraised Value: | + | $647,487 | |
| | | -------------------------- | |
| (=) Total Appraised Value: | = | $647,487 | |
| (–) Senior Exemption Loss: | – | $0 | |
| (–) Exemption Loss: | – | $0 | |
| | | -------------------------- | |
| (=) Taxable Value: | = | $647,487 | |
Taxing Jurisdiction
| Owner: | THOSTENSON, BROOKS | | |
| % Ownership: | 100.0000000000% | | |
| Total Value: | $647,487 | | |
| Tax Area: | 112 - APPRAISER-OH Schl Dist, outside OH, improved, greater than 1 acre |
| CF | Conservation Futures | 0.0316035091 | $647,487 | $647,487 | $20.46 | | |
| CEM1 | Cemetery #1 | 0.0040320932 | $647,487 | $647,487 | $2.61 | | |
| FIRE2 | Fire & Rescue Dist #2 N Whidbey GEN | 0.5475949600 | $647,487 | $647,487 | $354.56 | | |
| HOBOND | Hospital BOND | 0.1910887512 | $647,487 | $647,487 | $123.73 | | |
| HOGEN | Hospital GEN | 0.3902502903 | $647,487 | $647,487 | $252.68 | | |
| CE | County Current Expense | 0.3708482477 | $647,487 | $647,487 | $240.12 | | |
| CR | County Roads | 0.4584763726 | $647,487 | $647,487 | $296.86 | | |
| ISLANDEMS | Hospital GEN (EMS) | 0.5000000000 | $647,487 | $647,487 | $323.74 | | |
| LIB | Library Sno-Isle GEN | 0.3153421757 | $647,487 | $647,487 | $204.18 | | |
| NWHIDPRMT | P & R N Whidbey GEN | 0.2004466701 | $647,487 | $647,487 | $129.79 | | |
| SCH201MO | School 201 Enrichment | 1.8559231640 | $647,487 | $647,487 | $1,201.69 | | |
| ST | State School | 1.3035497053 | $647,487 | $647,487 | $844.03 | | |
| ST2 | State School Part 2 | 0.8169543533 | $647,487 | $647,487 | $528.97 | | |
| | Total Tax Rate: | 6.9861102925 | | | | | |
| | | | | Taxes w/Current Exemptions: | $4,523.42 | | |
| | | | | Taxes w/o Exemptions: | $4,523.42 | | |
Improvement / Building
| Improvement #1: | RESIDENTIAL | State Code: | Y | 2040.0 sqft | Value: | $387,487 |
| Bathrooms: | 2 | Bedrooms: | 3 | | Ceiling: | TONGUE & GROOVE | Exterior Wall/Cover: | LOG TO 10" | | Floor Covering: | HARDWOOD/CARP 60-40 | Floor Structure: | WOOD W/SUBFLOOR | | Foundation: | CONCRETE | Heating: | FHA ELECTRIC | | Interior Finish: | DRYWALL PAINT | Plumbing Fixture Cnt: | 9 | | Roof Slope: | 8" IN 12" | Roof Structure/Cover: | BEAM ALUMINUM HEAVY |
|
| | Type | Description | Class CD | Sub Class CD | Year Built | Area |
| | BAS | BASE/MAIN FLOOR | 4 | 0 | 1978 | 1360.0 |
| | UPS | UPPER STORY | 4 | 0 | 1978 | 680.0 |
| | OWR | OPEN WOOD PORCH W/STEPS/ROOF | 4 | 0 | 1978 | 140.0 |
| | OWR | OPEN WOOD PORCH W/STEPS/ROOF | 4 | 0 | 1978 | 180.0 |
| | UTY | STORAGE/UTILITY | 4 | 0 | 1978 | 576.0 |
Sketch
Property Image
Land
| 1 | 18 | AC (02.01-03.00) | 2.5000 | 108900.00 | 0.00 | 0.00 | 1.00 | $260,000 | $0 |
Roll Value History
| 2026 | N/A | N/A | N/A | N/A | N/A |
| 2025 | $387,487 | $260,000 | $0 | $647,487 | $647,487 |
| 2024 | $416,219 | $250,000 | $0 | $666,219 | $666,219 |
| 2023 | $399,401 | $240,000 | $0 | $639,401 | $639,401 |
| 2022 | $366,731 | $220,000 | $0 | $586,731 | $586,731 |
| 2021 | $323,311 | $180,000 | $0 | $503,311 | $503,311 |
| 2020 | $316,370 | $140,000 | $0 | $456,370 | $456,370 |
| 2019 | $239,042 | $200,000 | $0 | $439,042 | $439,042 |
| 2018 | $239,837 | $160,000 | $0 | $399,837 | $399,837 |
| 2017 | $213,073 | $150,000 | $0 | $363,073 | $363,073 |
| 2016 | $216,205 | $120,000 | $0 | $336,205 | $336,205 |
| 2015 | $219,340 | $90,000 | $0 | $309,340 | $309,340 |
| 2014 | $222,472 | $90,000 | $0 | $312,472 | $312,472 |
| 2013 | $225,607 | $102,000 | $0 | $327,607 | $327,607 |
| 2012 | $228,741 | $102,000 | $0 | $330,741 | $330,741 |
| 2011 | $210,398 | $120,000 | $0 | $330,398 | $330,398 |
| 2010 | $216,565 | $120,000 | $0 | $336,565 | $336,565 |
| 2009 | $225,990 | $200,000 | $0 | $425,990 | $425,990 |
| 2008 | $237,805 | $132,000 | $0 | $369,805 | $369,805 |
| 2007 | $241,106 | $132,000 | $0 | $373,106 | $373,106 |
Deed and Sales History
| 1 | 05/19/2025 | WD | Warranty Deed | WOOTEN, JON | THOSTENSON, BROOKS | | | $648,500.00 | 63515 | 4586084 |
| 2 | 06/17/2016 | WD | Warranty Deed | BENNETT, DEREN D | WOOTEN, JON | | | $376,000.00 | 24914 | 4401789 |
| 3 | 05/14/2013 | WD | Warranty Deed | BENNETT, RANDALL W | BENNETT, DEREN D | | | $280,000.00 | 11315 | 4339855 |
| 4 | 01/19/2012 | QCD | Quit Claim Deed | BENNETT, RANDALL W | BENNETT, RANDALL W | | | $0.00 | 6738 | 4308909 |
| 5 | 09/01/1995 | WD | Warranty Deed | NELMS, DUANE P | BENNETT, RANDALL W | | | $175,000.00 | 53335 | 95015344 |
| 6 | 12/01/1986 | WD | Warranty Deed | REINHART, RONALD W | NELMS, DUANE P | | | $77,900.00 | 63560 | 86016079 |
| 7 | 04/01/1983 | WD | Warranty Deed | MCMULLEN, JOHN P | REINHART, RONALD W | | | $0.00 | 31118 | 408929 |
| 8 | 01/01/1900 | OTHER | Other - Misc. Documents | Unknown | MCMULLEN, JOHN P | | | $0.00 | 0 | 0 |
Payout Agreement
| No payout information available.. |