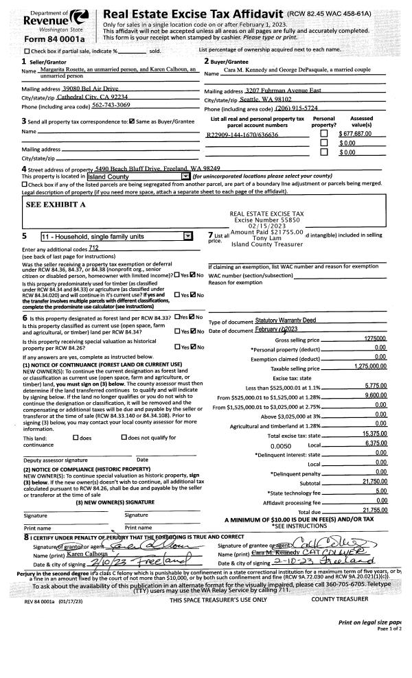
Property
Account |
| Property ID: | 147843 | Abbreviated Legal Description: | 13 - IN SECS 13 & 14: BG SWCR SEC 13 N1*W1129.99' TPB S88*W (SEC 14) 559.45' TO ELN E CAMANO DR N33*W ALG SD DR 77.50' N86*E601 .41' TO ELN SEC 14 N86*E (SEC 13) 300' M/L TO HITDLN SELY ALG SD LN 125' M/L TP N88*E FR TPB S88*W360' M/L TPB INCL ADJ TIDES |
| Geographic ID: | R33013-119-0150 | Agent Code: | |
| Type: | Real | | |
| Tax Area: | 542 - APPRAISER-Stan/Cam Schl Dist, Special Dist, improved, greater than 1 acre | Land Use Code | 11 |
| Open Space: | N | DFL | N |
| Historic Property: | N | Remodel Property: | N |
| Multi-Family Redevelopment: | N | | |
| Township: | 30 | Section: | 13 |
| Range: | R3 |
Location |
| Address: | 3509 S EAST CAMANO DR CAMANO ISLAND, WA 98282 | Mapsco: | |
| Neighborhood: | 58RecamWF-East Cam | Map ID: | 868 |
| Neighborhood CD: | 58RecamWF |
Owner |
| Name: | YOHO, BEVERLY JEAN | Owner ID: | 271698 |
| Mailing Address: | 3509 EAST CAMANO DR CAMANO ISLAND, WA 98282 | % Ownership: | 100.0000000000% |
| | | Exemptions: | |
Taxes and Assessment Details
Values
| (+) Improvement Homesite Value: | + | $0 | |
| (+) Improvement Non-Homesite Value: | + | $242,209 | |
| (+) Land Homesite Value: | + | $0 | |
| (+) Land Non-Homesite Value: | + | $551,250 | |
| (+) Curr Use (HS): | + | $0 | $0 |
| (+) Curr Use (NHS): | + | $0 | $0 |
| | | -------------------------- | |
| (=) Market Value: | = | $793,459 | |
| (–) Productivity Loss: | – | $0 | |
| | | -------------------------- | |
| (=) Subtotal: | = | $793,459 | |
| (+) Senior Appraised Value: | + | $0 | |
| (+) Non-Senior Appraised Value: | + | $793,459 | |
| | | -------------------------- | |
| (=) Total Appraised Value: | = | $793,459 | |
| (–) Senior Exemption Loss: | – | $0 | |
| (–) Exemption Loss: | – | $0 | |
| | | -------------------------- | |
| (=) Taxable Value: | = | $793,459 | |
Taxing Jurisdiction
| Owner: | YOHO, BEVERLY JEAN | | |
| % Ownership: | 100.0000000000% | | |
| Total Value: | $793,459 | | |
| Tax Area: | 542 - APPRAISER-Stan/Cam Schl Dist, Special Dist, improved, greater than 1 acre |
| CF | Conservation Futures | 0.0316035091 | $793,459 | $793,459 | $25.08 | | |
| EMS1 | Fire & Rescue Dist #1 Camano GEN (EMS) | 0.3677864386 | $793,459 | $793,459 | $291.82 | | |
| FIRE1 | Fire & Rescue Dist #1 Camano GEN | 1.2502910536 | $793,459 | $793,459 | $992.05 | | |
| FIRE1BOND | Fire & Rescue Dist #1 Camano BOND | 0.1570001679 | $793,459 | $793,459 | $124.57 | | |
| CE | County Current Expense | 0.3708482477 | $793,459 | $793,459 | $294.25 | | |
| CR | County Roads | 0.4584763726 | $793,459 | $793,459 | $363.78 | | |
| LCIB | Library Sno-Isle BOND (Camano Island) | 0.0396325772 | $793,459 | $793,459 | $31.45 | | |
| LIB | Library Sno-Isle GEN | 0.3153421757 | $793,459 | $793,459 | $250.21 | | |
| SCH205_401 | School 205-401 Enrichment | 1.2698420524 | $793,459 | $793,459 | $1,007.57 | | |
| SCH205BOND | School 205-401 BOND | 0.9396497583 | $793,459 | $793,459 | $745.57 | | |
| ST | State School | 1.3035497053 | $793,459 | $793,459 | $1,034.31 | | |
| ST2 | State School Part 2 | 0.8169543533 | $793,459 | $793,459 | $648.22 | | |
| | Total Tax Rate: | 7.3209764117 | | | | | |
| | | | | Taxes w/Current Exemptions: | $5,808.88 | | |
| | | | | Taxes w/o Exemptions: | $5,808.88 | | |
Improvement / Building
| Improvement #1: | RESIDENTIAL | State Code: | Y | 1104.0 sqft | Value: | $242,209 |
| Bathrooms: | 1 | Bedrooms: | 2 | | Ceiling: | TONGUE & GROOVE | Exterior Wall/Cover: | WOOD SIDING | | Floor Covering: | CERAMIC TILE/CPT 40-60 | Floor Structure: | WOOD W/SUBFLOOR | | Foundation: | CONCRETE BLOCKS | Heating: | FHA GAS | | Interior Finish: | DRYWALL PAINT | Plumbing Fixture Cnt: | 6 | | Roof Slope: | 18" IN 12" | Roof Structure/Cover: | BEAM ALUMINUM HEAVY |
|
| | Type | Description | Class CD | Sub Class CD | Year Built | Area |
| | BAS | BASE/MAIN FLOOR | 3 | 0 | 1995 | 744.0 |
| | OP1 | OPEN PORCH SLAB | 3 | 0 | 1995 | 259.0 |
| | UPH | HALF STORY | 3 | 0 | 1995 | 360.0 |
| | OWP | OPEN WOOD PORCH W/STEPS | 3 | 0 | 1995 | 165.5 |
| | DGR | DETACHED GARAGE | 3 | 0 | 1995 | 480.0 |
Sketch
| No sketches available for this property. |
Property Image
Land
| 1 | HB | HIGH BLUFF | 2.1200 | 92347.20 | 100.00 | 0.00 | 1.00 | $550,000 | $0 |
| 2 | 55 | TIDES | 0.0000 | 0.00 | 125.00 | 0.00 | 1.00 | $1,250 | $0 |
Roll Value History
| 2026 | N/A | N/A | N/A | N/A | N/A |
| 2025 | $242,209 | $551,250 | $0 | $793,459 | $793,459 |
| 2024 | $245,266 | $526,250 | $0 | $771,516 | $771,516 |
| 2023 | $248,322 | $526,250 | $0 | $774,572 | $774,572 |
| 2022 | $227,629 | $476,250 | $0 | $703,879 | $703,879 |
| 2021 | $181,615 | $276,250 | $0 | $457,865 | $457,865 |
| 2020 | $177,358 | $251,250 | $0 | $428,608 | $428,608 |
| 2019 | $128,997 | $301,250 | $0 | $430,247 | $430,247 |
| 2018 | $129,393 | $251,250 | $0 | $380,643 | $380,643 |
| 2017 | $130,189 | $221,250 | $0 | $351,439 | $351,439 |
| 2016 | $131,775 | $221,250 | $0 | $353,025 | $353,025 |
| 2015 | $129,517 | $201,250 | $0 | $330,767 | $330,767 |
| 2014 | $131,124 | $201,250 | $0 | $332,374 | $332,374 |
| 2013 | $132,733 | $191,822 | $0 | $324,555 | $324,555 |
| 2012 | $134,339 | $224,732 | $0 | $359,071 | $359,071 |
| 2011 | $135,948 | $280,602 | $0 | $416,550 | $416,550 |
| 2010 | $141,303 | $311,641 | $0 | $452,944 | $452,944 |
| 2009 | $145,783 | $335,137 | $0 | $480,920 | $480,920 |
| 2008 | $148,031 | $335,137 | $0 | $483,168 | $483,168 |
| 2007 | $150,296 | $334,262 | $0 | $484,558 | $484,558 |
Deed and Sales History
| 1 | 08/03/2015 | WD | Warranty Deed | WINTER, RALPH O | YOHO, BEVERLY JEAN | | | $349,000.00 | 20805 | 4383645 |
| 2 | 11/01/1993 | WD | Warranty Deed | HELLMAN, GOSTA M | WINTER, RALPH O | | | $104,950.00 | 34852 | 93025324 |
| 3 | 01/01/1900 | OTHER | Other - Misc. Documents | Unknown | HELLMAN, GOSTA M | | | $0.00 | 0 | 0 |
Payout Agreement
| No payout information available.. |