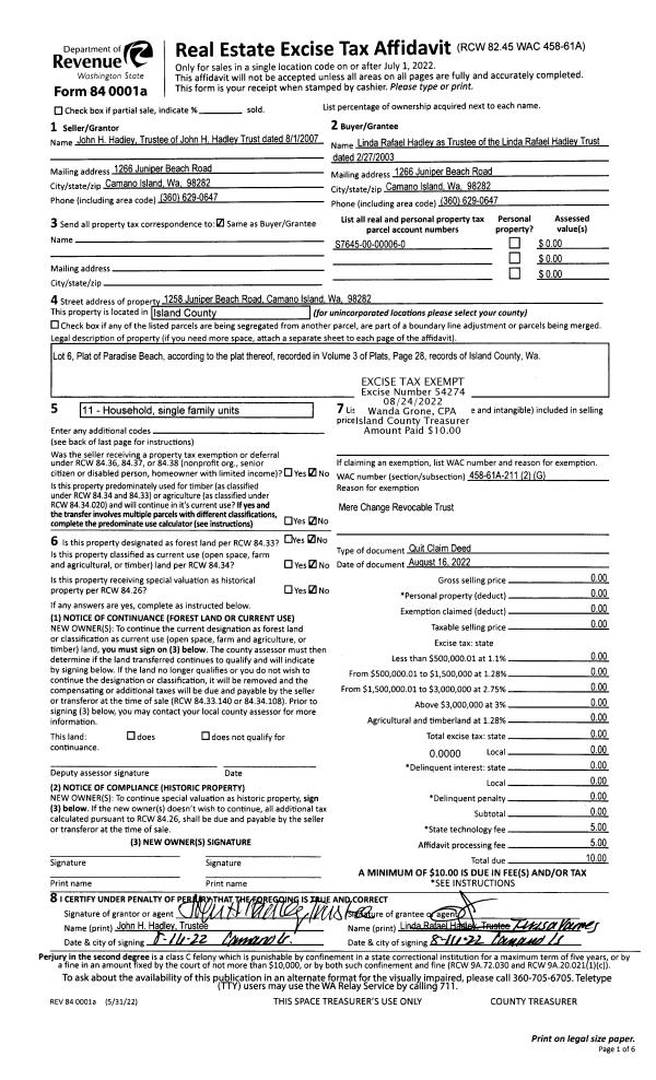
Property
Account |
| Property ID: | 147932 | Abbreviated Legal Description: | 57 - IN NE SE SW: BG SWCR NE SE SW N1*W295.19' N89*E 95' S1*E50' N89*E200' S59*E 107.60' S1*E190' S89*W384 .02' TPB TGW EZ |
| Geographic ID: | R33014-080-2170 | Agent Code: | |
| Type: | Real | | |
| Tax Area: | 542 - APPRAISER-Stan/Cam Schl Dist, Special Dist, improved, greater than 1 acre | Land Use Code | 11 |
| Open Space: | N | DFL | N |
| Historic Property: | N | Remodel Property: | N |
| Multi-Family Redevelopment: | N | | |
| Township: | 30 | Section: | 14 |
| Range: | R3 |
Location |
| Address: | 1756 CASSIDY CT CAMANO ISLAND, WA 98282 | Mapsco: | |
| Neighborhood: | 58SofTamarackS | Map ID: | 869 |
| Neighborhood CD: | 58RstamS |
Owner |
| Name: | MARIZ, ANNA P | Owner ID: | 274329 |
| Mailing Address: | 1756 CASSIDY COURT CAMANO ISLAND, WA 98282 | % Ownership: | 100.0000000000% |
| | | Exemptions: | |
Taxes and Assessment Details
Values
| (+) Improvement Homesite Value: | + | $0 | |
| (+) Improvement Non-Homesite Value: | + | $378,650 | |
| (+) Land Homesite Value: | + | $0 | |
| (+) Land Non-Homesite Value: | + | $270,000 | |
| (+) Curr Use (HS): | + | $0 | $0 |
| (+) Curr Use (NHS): | + | $0 | $0 |
| | | -------------------------- | |
| (=) Market Value: | = | $648,650 | |
| (–) Productivity Loss: | – | $0 | |
| | | -------------------------- | |
| (=) Subtotal: | = | $648,650 | |
| (+) Senior Appraised Value: | + | $0 | |
| (+) Non-Senior Appraised Value: | + | $648,650 | |
| | | -------------------------- | |
| (=) Total Appraised Value: | = | $648,650 | |
| (–) Senior Exemption Loss: | – | $0 | |
| (–) Exemption Loss: | – | $0 | |
| | | -------------------------- | |
| (=) Taxable Value: | = | $648,650 | |
Taxing Jurisdiction
| Owner: | MARIZ, ANNA P | | |
| % Ownership: | 100.0000000000% | | |
| Total Value: | $648,650 | | |
| Tax Area: | 542 - APPRAISER-Stan/Cam Schl Dist, Special Dist, improved, greater than 1 acre |
| CF | Conservation Futures | 0.0316035091 | $648,650 | $648,650 | $20.50 | | |
| EMS1 | Fire & Rescue Dist #1 Camano GEN (EMS) | 0.3677864386 | $648,650 | $648,650 | $238.56 | | |
| FIRE1 | Fire & Rescue Dist #1 Camano GEN | 1.2502910536 | $648,650 | $648,650 | $811.00 | | |
| FIRE1BOND | Fire & Rescue Dist #1 Camano BOND | 0.1570001679 | $648,650 | $648,650 | $101.84 | | |
| CE | County Current Expense | 0.3708482477 | $648,650 | $648,650 | $240.55 | | |
| CR | County Roads | 0.4584763726 | $648,650 | $648,650 | $297.39 | | |
| LCIB | Library Sno-Isle BOND (Camano Island) | 0.0396325772 | $648,650 | $648,650 | $25.71 | | |
| LIB | Library Sno-Isle GEN | 0.3153421757 | $648,650 | $648,650 | $204.55 | | |
| SCH205_401 | School 205-401 Enrichment | 1.2698420524 | $648,650 | $648,650 | $823.68 | | |
| SCH205BOND | School 205-401 BOND | 0.9396497583 | $648,650 | $648,650 | $609.50 | | |
| ST | State School | 1.3035497053 | $648,650 | $648,650 | $845.55 | | |
| ST2 | State School Part 2 | 0.8169543533 | $648,650 | $648,650 | $529.92 | | |
| | Total Tax Rate: | 7.3209764117 | | | | | |
| | | | | Taxes w/Current Exemptions: | $4,748.75 | | |
| | | | | Taxes w/o Exemptions: | $4,748.75 | | |
Improvement / Building
| Improvement #1: | RESIDENTIAL | State Code: | Y | 2013.3 sqft | Value: | $378,650 |
| Bathrooms: | 2 | Bedrooms: | 3 | | Ceiling: | DRYWALL PAINTED | Exterior Wall/Cover: | CEMENT FIBER | | Floor Covering: | HARDWOOD/CARP 60-40 | Floor Structure: | WOOD W/SUBFLOOR | | Foundation: | CONCRETE | Heating: | FHA GAS | | Interior Finish: | DRYWALL PAINT | Plumbing Fixture Cnt: | 9 | | Roof Slope: | 4" IN 12" | Roof Structure/Cover: | CJ ALUMINIUM HEAVY |
|
| | Type | Description | Class CD | Sub Class CD | Year Built | Area |
| | BAS | BASE/MAIN FLOOR | 4 | 0 | 1992 | 1040.7 |
| | UTY | STORAGE/UTILITY | 4 | 0 | 1992 | 44.5 |
| | UPS | UPPER STORY | 4 | 0 | 1992 | 447.3 |
| | OWP | OPEN WOOD PORCH W/STEPS | 4 | 0 | 1992 | 34.9 |
| | OWP | OPEN WOOD PORCH W/STEPS | 4 | 0 | 1992 | 20.5 |
| | OWP | OPEN WOOD PORCH W/STEPS | 4 | 0 | 1992 | 53.6 |
| | OWP | OPEN WOOD PORCH W/STEPS | 4 | 0 | 1992 | 205.3 |
| | LOF | LOFT | 4 | 0 | 1992 | 135.0 |
| | DWN | DOWNSTAIRS LIVING AREA | 4 | 0 | 1992 | 390.3 |
| | DGR | DETACHED GARAGE | 4 | 0 | 1992 | 320.0 |
Sketch
| No sketches available for this property. |
Property Image
Land
| 1 | 18 | AC (02.01-03.00) | 2.1600 | 94089.60 | 0.00 | 0.00 | 1.00 | $270,000 | $0 |
Roll Value History
| 2026 | N/A | N/A | N/A | N/A | N/A |
| 2025 | $378,650 | $270,000 | $0 | $648,650 | $648,650 |
| 2024 | $383,547 | $270,000 | $0 | $653,547 | $653,547 |
| 2023 | $388,450 | $240,000 | $0 | $628,450 | $628,450 |
| 2022 | $356,175 | $210,000 | $0 | $566,175 | $566,175 |
| 2021 | $248,609 | $150,000 | $0 | $398,609 | $398,609 |
| 2020 | $243,023 | $140,000 | $0 | $383,023 | $383,023 |
| 2019 | $189,278 | $170,000 | $0 | $359,278 | $359,278 |
| 2018 | $189,877 | $150,000 | $0 | $339,877 | $339,877 |
| 2017 | $188,961 | $135,000 | $0 | $323,961 | $323,961 |
| 2016 | $191,322 | $80,000 | $0 | $271,322 | $271,322 |
| 2015 | $178,559 | $50,000 | $0 | $228,559 | $228,559 |
| 2014 | $180,774 | $50,000 | $0 | $230,774 | $230,774 |
| 2013 | $194,068 | $50,000 | $0 | $244,068 | $244,068 |
| 2012 | $194,068 | $74,400 | $0 | $268,468 | $268,468 |
| 2011 | $196,286 | $93,000 | $0 | $289,286 | $289,286 |
| 2010 | $201,337 | $93,000 | $0 | $294,337 | $294,337 |
| 2009 | $211,247 | $120,000 | $0 | $331,247 | $331,247 |
| 2008 | $213,588 | $99,000 | $0 | $312,588 | $312,588 |
| 2007 | $215,940 | $86,000 | $0 | $301,940 | $301,940 |
Deed and Sales History
| 1 | 02/16/2021 | QCD | Quit Claim Deed | MARIZ, GEORGE E | MARIZ, ANNA P | | | $252,795.00 | 47203 | 4512637 |
| 2 | 03/28/2016 | QCD | Quit Claim Deed | MARIZ, ANNA P | MARIZ, GEORGE E | | | $83,500.00 | 23788 | 4397063 |
| 3 | 03/28/2016 | DECREE | Divorce Decree/Legal Separation | TETER, MICHAEL J | MARIZ, ANNA P | | | $0.00 | 23783 | 4397062 |
| 4 | 02/21/2014 | WD | Warranty Deed | BORREE, JEANINE M | TETER, MICHAEL J | | | $210,000.00 | 14421 | 4355845 |
| 5 | 01/01/1991 | WD | Warranty Deed | KALANQUIN, TODD | BORREE, JEANINE M | | | $33,400.00 | 10070 | 91000424 |
| 6 | 05/01/1990 | WD | Warranty Deed | NASH, ALBERT G | KALANQUIN, TODD | | | $16,475.00 | 3337 | 90010880 |
| 7 | 01/01/1900 | OTHER | Other - Misc. Documents | Unknown | NASH, ALBERT G | | | $0.00 | 0 | 0 |
Payout Agreement
| No payout information available.. |