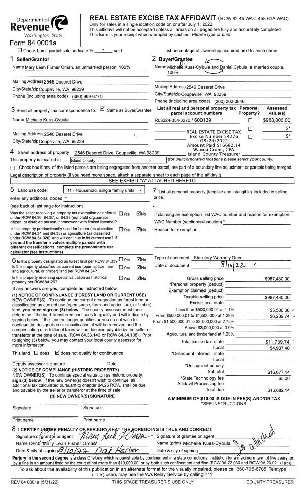
Property
Account |
| Property ID: | 148012 | Abbreviated Legal Description: | 85 - W145' OF:N/2 NE SE SW EX RDS - NE NW SE SW EX S30 TGW EZ |
| Geographic ID: | R33014-116-1890 | Agent Code: | |
| Type: | Real | | |
| Tax Area: | 542 - APPRAISER-Stan/Cam Schl Dist, Special Dist, improved, greater than 1 acre | Land Use Code | 11 |
| Open Space: | N | DFL | N |
| Historic Property: | N | Remodel Property: | N |
| Multi-Family Redevelopment: | N | | |
| Township: | 30 | Section: | 14 |
| Range: | R3 |
Location |
| Address: | 1753 CASSIDY CT CAMANO ISLAND, WA 98282 | Mapsco: | |
| Neighborhood: | 58SofTamarackS | Map ID: | 869 |
| Neighborhood CD: | 58RstamS |
Owner |
| Name: | NAMINI TTEE, MANIJEH | Owner ID: | 315302 |
| Mailing Address: | 22 SAGE CREEK IRVINE, CA 92603 | % Ownership: | 100.0000000000% |
| | | Exemptions: | |
Taxes and Assessment Details
Values
| (+) Improvement Homesite Value: | + | $0 | |
| (+) Improvement Non-Homesite Value: | + | $198,486 | |
| (+) Land Homesite Value: | + | $0 | |
| (+) Land Non-Homesite Value: | + | $270,000 | |
| (+) Curr Use (HS): | + | $0 | $0 |
| (+) Curr Use (NHS): | + | $0 | $0 |
| | | -------------------------- | |
| (=) Market Value: | = | $468,486 | |
| (–) Productivity Loss: | – | $0 | |
| | | -------------------------- | |
| (=) Subtotal: | = | $468,486 | |
| (+) Senior Appraised Value: | + | $0 | |
| (+) Non-Senior Appraised Value: | + | $468,486 | |
| | | -------------------------- | |
| (=) Total Appraised Value: | = | $468,486 | |
| (–) Senior Exemption Loss: | – | $0 | |
| (–) Exemption Loss: | – | $0 | |
| | | -------------------------- | |
| (=) Taxable Value: | = | $468,486 | |
Taxing Jurisdiction
| Owner: | NAMINI TTEE, MANIJEH | | |
| % Ownership: | 100.0000000000% | | |
| Total Value: | $468,486 | | |
| Tax Area: | 542 - APPRAISER-Stan/Cam Schl Dist, Special Dist, improved, greater than 1 acre |
| CF | Conservation Futures | 0.0316035091 | $468,486 | $468,486 | $14.81 | | |
| EMS1 | Fire & Rescue Dist #1 Camano GEN (EMS) | 0.3677864386 | $468,486 | $468,486 | $172.30 | | |
| FIRE1 | Fire & Rescue Dist #1 Camano GEN | 1.2502910536 | $468,486 | $468,486 | $585.74 | | |
| FIRE1BOND | Fire & Rescue Dist #1 Camano BOND | 0.1570001679 | $468,486 | $468,486 | $73.55 | | |
| CE | County Current Expense | 0.3708482477 | $468,486 | $468,486 | $173.74 | | |
| CR | County Roads | 0.4584763726 | $468,486 | $468,486 | $214.79 | | |
| LCIB | Library Sno-Isle BOND (Camano Island) | 0.0396325772 | $468,486 | $468,486 | $18.57 | | |
| LIB | Library Sno-Isle GEN | 0.3153421757 | $468,486 | $468,486 | $147.73 | | |
| SCH205_401 | School 205-401 Enrichment | 1.2698420524 | $468,486 | $468,486 | $594.90 | | |
| SCH205BOND | School 205-401 BOND | 0.9396497583 | $468,486 | $468,486 | $440.21 | | |
| ST | State School | 1.3035497053 | $468,486 | $468,486 | $610.69 | | |
| ST2 | State School Part 2 | 0.8169543533 | $468,486 | $468,486 | $382.73 | | |
| | Total Tax Rate: | 7.3209764117 | | | | | |
| | | | | Taxes w/Current Exemptions: | $3,429.76 | | |
| | | | | Taxes w/o Exemptions: | $3,429.76 | | |
Improvement / Building
| Improvement #1: | RESIDENTIAL | State Code: | Y | 1008.0 sqft | Value: | $198,486 |
| Bathrooms: | 1.5 | Bedrooms: | 2 | | Ceiling: | BEAM PAINTED | Exterior Wall/Cover: | PLY/HARDBOARD T-111 | | Floor Covering: | VINYL/HARDWOOD 20-80 | Floor Structure: | WOOD W/SUBFLOOR | | Foundation: | CONCRETE | Heating: | BASEBOARD ELECTRIC | | Interior Finish: | DRYWALL PAINT | Plumbing Fixture Cnt: | 9 | | Roof Slope: | 3" IN 12" | Roof Structure/Cover: | BEAM ROLL COMPOSITION |
|
| | Type | Description | Class CD | Sub Class CD | Year Built | Area |
| | BAS | BASE/MAIN FLOOR | 3 | 0 | 1972 | 1008.0 |
| | UB6 | BASEMENT UNFINISHED 6" | 3 | 0 | 1972 | 924.0 |
| | OWP | OPEN WOOD PORCH W/STEPS | 3 | 0 | 1972 | 899.0 |
Sketch
| No sketches available for this property. |
Property Image
Land
| 1 | 18 | AC (02.01-03.00) | 2.2800 | 99316.80 | 0.00 | 0.00 | 1.00 | $270,000 | $0 |
Roll Value History
| 2026 | N/A | N/A | N/A | N/A | N/A |
| 2025 | $198,486 | $270,000 | $0 | $468,486 | $468,486 |
| 2024 | $201,791 | $270,000 | $0 | $471,791 | $471,791 |
| 2023 | $204,584 | $240,000 | $0 | $444,584 | $444,584 |
| 2022 | $187,783 | $210,000 | $0 | $397,783 | $397,783 |
| 2021 | $149,533 | $150,000 | $0 | $299,533 | $299,533 |
| 2020 | $145,420 | $140,000 | $0 | $285,420 | $285,420 |
| 2019 | $100,906 | $170,000 | $0 | $270,906 | $270,906 |
| 2018 | $101,250 | $150,000 | $0 | $251,250 | $251,250 |
| 2017 | $101,938 | $135,000 | $0 | $236,938 | $236,938 |
| 2016 | $103,318 | $80,000 | $0 | $183,318 | $183,318 |
| 2015 | $88,163 | $50,000 | $0 | $138,163 | $138,163 |
| 2014 | $89,541 | $50,000 | $0 | $139,541 | $139,541 |
| 2013 | $89,525 | $50,000 | $0 | $139,525 | $139,525 |
| 2012 | $90,881 | $74,400 | $0 | $165,281 | $165,281 |
| 2011 | $92,237 | $93,000 | $0 | $185,237 | $185,237 |
| 2010 | $96,351 | $93,000 | $0 | $189,351 | $189,351 |
| 2009 | $96,142 | $120,000 | $0 | $216,142 | $216,142 |
| 2008 | $97,504 | $99,000 | $0 | $196,504 | $196,504 |
| 2007 | $98,865 | $86,000 | $0 | $184,865 | $184,865 |
Deed and Sales History
| 1 | 01/30/2025 | WD | Warranty Deed | KARBALAIHASAN, MAHMOOD | NAMINI TTEE, MANIJEH | | | $153,000.00 | 62459 | 4581816 |
| 2 | 09/10/2013 | WD | Warranty Deed | COUMBE, ARTHUR EUGENE | KARBALAIHASAN, MAHMOOD | | | $153,000.00 | 12843 | 4348335 |
| 3 | 03/01/2000 | PRD | Personal Representatives Deed | COUMBE, A E | COUMBE, ARTHUR EUGENE | | | $0.00 | 1138 | 20005575 |
| 4 | 01/01/1900 | OTHER | Other - Misc. Documents | Unknown | COUMBE, A E | | | $0.00 | 0 | 0 |
Payout Agreement
| No payout information available.. |