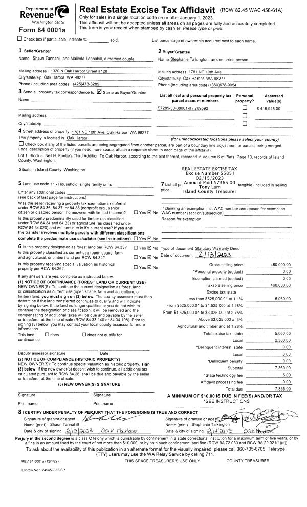
Property
Account |
| Property ID: | 148049 | Abbreviated Legal Description: | 58 - SEC 13 & 14 BG SW CR SEC 13 N1*W ALG WLN SEC 13 1221.61' TPB S86*W601.41' 'TO E LN OF ECAM DR N33*W ALG SD DR 77.5' N84*E854.2' M/L TO LN OF ORD HI TIDE SELY ALG SD HITIDE ELN 125' M/L TP N86*E FR TPB S86*W300' M/L TPB INCL ADJ TIDES |
| Geographic ID: | R33014-126-5080 | Agent Code: | |
| Type: | Real | | |
| Tax Area: | 542 - APPRAISER-Stan/Cam Schl Dist, Special Dist, improved, greater than 1 acre | Land Use Code | 11 |
| Open Space: | N | DFL | N |
| Historic Property: | N | Remodel Property: | N |
| Multi-Family Redevelopment: | N | | |
| Township: | 30 | Section: | 14 |
| Range: | R3 |
Location |
| Address: | 3503 S EAST CAMANO DR CAMANO ISLAND, WA 98282 | Mapsco: | |
| Neighborhood: | 58RecamWF-East Cam | Map ID: | 870 |
| Neighborhood CD: | 58RecamWF |
Owner |
| Name: | ROSIE, DONALD G | Owner ID: | 267331 |
| Mailing Address: | RAELEEN F ROSIE 134 N WEST AVE ARLINGTON, WA 98223 | % Ownership: | 100.0000000000% |
| | | Exemptions: | |
Taxes and Assessment Details
Values
| (+) Improvement Homesite Value: | + | $0 | |
| (+) Improvement Non-Homesite Value: | + | $374,664 | |
| (+) Land Homesite Value: | + | $0 | |
| (+) Land Non-Homesite Value: | + | $551,050 | |
| (+) Curr Use (HS): | + | $0 | $0 |
| (+) Curr Use (NHS): | + | $0 | $0 |
| | | -------------------------- | |
| (=) Market Value: | = | $925,714 | |
| (–) Productivity Loss: | – | $0 | |
| | | -------------------------- | |
| (=) Subtotal: | = | $925,714 | |
| (+) Senior Appraised Value: | + | $0 | |
| (+) Non-Senior Appraised Value: | + | $925,714 | |
| | | -------------------------- | |
| (=) Total Appraised Value: | = | $925,714 | |
| (–) Senior Exemption Loss: | – | $0 | |
| (–) Exemption Loss: | – | $0 | |
| | | -------------------------- | |
| (=) Taxable Value: | = | $925,714 | |
Taxing Jurisdiction
| Owner: | ROSIE, DONALD G | | |
| % Ownership: | 100.0000000000% | | |
| Total Value: | $925,714 | | |
| Tax Area: | 542 - APPRAISER-Stan/Cam Schl Dist, Special Dist, improved, greater than 1 acre |
| CF | Conservation Futures | 0.0316035091 | $925,714 | $925,714 | $29.26 | | |
| EMS1 | Fire & Rescue Dist #1 Camano GEN (EMS) | 0.3677864386 | $925,714 | $925,714 | $340.47 | | |
| FIRE1 | Fire & Rescue Dist #1 Camano GEN | 1.2502910536 | $925,714 | $925,714 | $1,157.41 | | |
| FIRE1BOND | Fire & Rescue Dist #1 Camano BOND | 0.1570001679 | $925,714 | $925,714 | $145.34 | | |
| CE | County Current Expense | 0.3708482477 | $925,714 | $925,714 | $343.30 | | |
| CR | County Roads | 0.4584763726 | $925,714 | $925,714 | $424.42 | | |
| LCIB | Library Sno-Isle BOND (Camano Island) | 0.0396325772 | $925,714 | $925,714 | $36.69 | | |
| LIB | Library Sno-Isle GEN | 0.3153421757 | $925,714 | $925,714 | $291.92 | | |
| SCH205_401 | School 205-401 Enrichment | 1.2698420524 | $925,714 | $925,714 | $1,175.51 | | |
| SCH205BOND | School 205-401 BOND | 0.9396497583 | $925,714 | $925,714 | $869.85 | | |
| ST | State School | 1.3035497053 | $925,714 | $925,714 | $1,206.71 | | |
| ST2 | State School Part 2 | 0.8169543533 | $925,714 | $925,714 | $756.27 | | |
| | Total Tax Rate: | 7.3209764117 | | | | | |
| | | | | Taxes w/Current Exemptions: | $6,777.15 | | |
| | | | | Taxes w/o Exemptions: | $6,777.15 | | |
Improvement / Building
| Improvement #1: | RESIDENTIAL | State Code: | Y | 916.8 sqft | Value: | $194,893 |
| Bathrooms: | 1.5 | Bedrooms: | 2 | | Ceiling: | DRYWALL PAINTED | Exterior Wall/Cover: | CEMENT FIBER | | Floor Covering: | CARPET/VINYL 60-40 | Floor Structure: | WOOD W/SUBFLOOR | | Foundation: | CONCRETE | Heating: | WALL HEAT ELECTRIC | | Interior Finish: | DRYWALL PAINT | Plumbing Fixture Cnt: | 8 | | Roof Slope: | 6" IN 12" | Roof Structure/Cover: | CJ ASPHALT |
|
| | Type | Description | Class CD | Sub Class CD | Year Built | Area |
| | BAS | BASE/MAIN FLOOR | 3 | 0 | 2013 | 916.8 |
| | OWC | OPEN WOOD PORCH W/STEPS/ROOF/C | 3 | 0 | 2013 | 71.5 |
| | OWP | OPEN WOOD PORCH W/STEPS | 3 | 0 | 2013 | 165.3 |
| | OWP | OPEN WOOD PORCH W/STEPS | 3 | 0 | 2013 | 44.2 |
| Improvement #2: | RESIDENTIAL | State Code: | Y | 576.0 sqft | Value: | $179,771 |
| Bathrooms: | 1 | Bedrooms: | 0 | | Ceiling: | DRYWALL PAINTED | Exterior Wall/Cover: | CEMENT FIBER | | Floor Covering: | VINYL TILE | Floor Structure: | WOOD W/SUBFLOOR | | Foundation: | SLAB | Heating: | WALL HEAT ELECTRIC | | Interior Finish: | DRYWALL PAINT | Plumbing Fixture Cnt: | 6 | | Roof Slope: | 8" IN 12" | Roof Structure/Cover: | CJ ASPHALT |
|
| | Type | Description | Class CD | Sub Class CD | Year Built | Area |
| | BAS | BASE/MAIN FLOOR | 3 | 0 | 2024 | 576.0 |
| | BIG | BUILT IN GARAGE | 3 | 0 | 2024 | 576.0 |
| | BAW | BALCONY WOOD RAIL | 3 | 0 | 2024 | 16.0 |
| | OWP | OPEN WOOD PORCH W/STEPS | 3 | 0 | 2024 | 287.8 |
Sketch
Property Image
Land
| 1 | HB | HIGH BLUFF | 1.6000 | 69696.00 | 125.00 | 0.00 | 1.00 | $550,000 | $0 |
| 2 | 55 | TIDES | 0.1435 | 6250.00 | 125.00 | 0.00 | 1.00 | $1,050 | $0 |
Roll Value History
| 2026 | N/A | N/A | N/A | N/A | N/A |
| 2025 | $374,664 | $551,050 | $0 | $925,714 | $925,714 |
| 2024 | $379,835 | $526,050 | $0 | $905,885 | $905,885 |
| 2023 | $275,027 | $526,050 | $0 | $801,077 | $801,077 |
| 2022 | $180,733 | $476,050 | $0 | $656,783 | $656,783 |
| 2021 | $155,908 | $276,050 | $0 | $431,958 | $431,958 |
| 2020 | $150,808 | $251,050 | $0 | $401,858 | $401,858 |
| 2019 | $106,917 | $301,050 | $0 | $407,967 | $407,967 |
| 2018 | $107,197 | $251,050 | $0 | $358,247 | $358,247 |
| 2017 | $107,758 | $221,050 | $0 | $328,808 | $328,808 |
| 2016 | $108,880 | $221,050 | $0 | $329,930 | $329,930 |
| 2015 | $104,934 | $201,050 | $0 | $305,984 | $305,984 |
| 2014 | $101,050 | $201,050 | $0 | $302,100 | $302,100 |
| 2013 | $98,005 | $139,410 | $0 | $237,415 | $237,415 |
| 2012 | $0 | $139,410 | $0 | $139,410 | $139,410 |
| 2011 | $0 | $174,000 | $0 | $174,000 | $174,000 |
| 2010 | $0 | $248,121 | $0 | $248,121 | $248,121 |
| 2009 | $0 | $266,824 | $0 | $266,824 | $266,824 |
| 2008 | $0 | $284,858 | $0 | $284,858 | $284,858 |
| 2007 | $0 | $284,123 | $0 | $284,123 | $284,123 |
Deed and Sales History
| 1 | 07/21/2014 | WD | Warranty Deed | STAN, JAMES E | ROSIE, DONALD G | | | $325,000.00 | 16208 | 4363160 |
| 2 | 10/01/2010 | WD | Warranty Deed | KIM, TAE M | STAN, JAMES E | | | $180,000.00 | 2483 | 4282330 |
| 3 | 05/27/2004 | ESTSEPPROP | Establish Separate Property | KIM, TAE M | KIM, TAE M | | | $0.00 | 42311 | 4102210 |
| 4 | 05/14/2004 | WD | Warranty Deed | JOHNSON, LAURIE M | KIM, TAE M | | | $130,000.00 | 42310 | 4102209 |
| 5 | 07/12/2001 | QCD | Quit Claim Deed | BOWEN, DONALD H | JOHNSON, LAURIE M | | | $0.00 | 12651 | 20037225 |
| 6 | 01/01/1900 | OTHER | Other - Misc. Documents | Unknown | BOWEN, DONALD H | | | $0.00 | 0 | 0 |
Payout Agreement
| No payout information available.. |