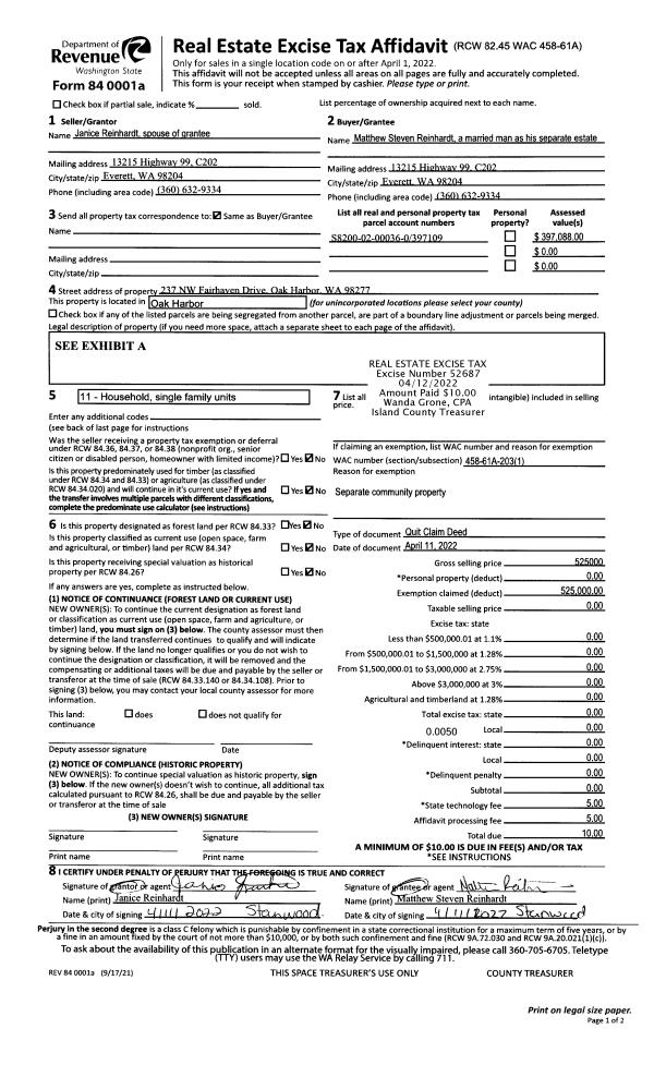
Property
Account |
| Property ID: | 148101 | Abbreviated Legal Description: | 48 - S/2 SW NE SW LY W OF FOLL DESC EZ: 40' WIDE & LY 20' ON EA SIDE OF FOLL DESC CLN: BG SWCR SD SUBD N89*E ALG SLN SD SUBD 135.07' TPB N51*E24.31' ALG CUR/L 100 .78' N2*E94.86' N11*E170.79 ALG CUR/R 95.83' N27*E222 |
| Geographic ID: | R33014-148-1440 | Agent Code: | |
| Type: | Real | | |
| Tax Area: | 542 - APPRAISER-Stan/Cam Schl Dist, Special Dist, improved, greater than 1 acre | Land Use Code | 11 |
| Open Space: | N | DFL | N |
| Historic Property: | N | Remodel Property: | N |
| Multi-Family Redevelopment: | N | | |
| Township: | 30 | Section: | 14 |
| Range: | R3 |
Location |
| Address: | 3480 SHADY LN CAMANO ISLAND, WA 98282 | Mapsco: | |
| Neighborhood: | 58SofTamarackAC | Map ID: | 869 |
| Neighborhood CD: | 58RstamAC |
Owner |
| Name: | FONTANA, BAMBIE | Owner ID: | 302133 |
| Mailing Address: | 3480 SHADY LN CAMANO ISLAND, WA 98282 | % Ownership: | 100.0000000000% |
| | | Exemptions: | |
Taxes and Assessment Details
Values
| (+) Improvement Homesite Value: | + | $0 | |
| (+) Improvement Non-Homesite Value: | + | $272,538 | |
| (+) Land Homesite Value: | + | $0 | |
| (+) Land Non-Homesite Value: | + | $250,000 | |
| (+) Curr Use (HS): | + | $0 | $0 |
| (+) Curr Use (NHS): | + | $0 | $0 |
| | | -------------------------- | |
| (=) Market Value: | = | $522,538 | |
| (–) Productivity Loss: | – | $0 | |
| | | -------------------------- | |
| (=) Subtotal: | = | $522,538 | |
| (+) Senior Appraised Value: | + | $0 | |
| (+) Non-Senior Appraised Value: | + | $522,538 | |
| | | -------------------------- | |
| (=) Total Appraised Value: | = | $522,538 | |
| (–) Senior Exemption Loss: | – | $0 | |
| (–) Exemption Loss: | – | $0 | |
| | | -------------------------- | |
| (=) Taxable Value: | = | $522,538 | |
Taxing Jurisdiction
| Owner: | FONTANA, BAMBIE | | |
| % Ownership: | 100.0000000000% | | |
| Total Value: | $522,538 | | |
| Tax Area: | 542 - APPRAISER-Stan/Cam Schl Dist, Special Dist, improved, greater than 1 acre |
| CF | Conservation Futures | 0.0316035091 | $522,538 | $522,538 | $16.51 | | |
| EMS1 | Fire & Rescue Dist #1 Camano GEN (EMS) | 0.3677864386 | $522,538 | $522,538 | $192.18 | | |
| FIRE1 | Fire & Rescue Dist #1 Camano GEN | 1.2502910536 | $522,538 | $522,538 | $653.32 | | |
| FIRE1BOND | Fire & Rescue Dist #1 Camano BOND | 0.1570001679 | $522,538 | $522,538 | $82.04 | | |
| CE | County Current Expense | 0.3708482477 | $522,538 | $522,538 | $193.78 | | |
| CR | County Roads | 0.4584763726 | $522,538 | $522,538 | $239.57 | | |
| LCIB | Library Sno-Isle BOND (Camano Island) | 0.0396325772 | $522,538 | $522,538 | $20.71 | | |
| LIB | Library Sno-Isle GEN | 0.3153421757 | $522,538 | $522,538 | $164.78 | | |
| SCH205_401 | School 205-401 Enrichment | 1.2698420524 | $522,538 | $522,538 | $663.54 | | |
| SCH205BOND | School 205-401 BOND | 0.9396497583 | $522,538 | $522,538 | $491.00 | | |
| ST | State School | 1.3035497053 | $522,538 | $522,538 | $681.15 | | |
| ST2 | State School Part 2 | 0.8169543533 | $522,538 | $522,538 | $426.89 | | |
| | Total Tax Rate: | 7.3209764117 | | | | | |
| | | | | Taxes w/Current Exemptions: | $3,825.47 | | |
| | | | | Taxes w/o Exemptions: | $3,825.47 | | |
Improvement / Building
| Improvement #1: | RESIDENTIAL | State Code: | Y | 1541.6 sqft | Value: | $272,538 |
| Bathrooms: | 2 | Bedrooms: | 2 | | Ceiling: | DRYWALL PAINTED | Cooling: | HEAT PUMP/CONV/V | | Exterior Wall/Cover: | WOOD SIDING | Floor Covering: | VINYL TILE | | Floor Structure: | WOOD W/SUBFLOOR | Foundation: | CONCRETE | | Interior Finish: | DRYWALL PAINT | Plumbing Fixture Cnt: | 9 | | Roof Slope: | 4" IN 12" | Roof Structure/Cover: | CJ ASPHALT |
|
| | Type | Description | Class CD | Sub Class CD | Year Built | Area |
| | BAS | BASE/MAIN FLOOR | 3 | 0 | 1979 | 1541.6 |
| | OP1 | OPEN PORCH SLAB | 3 | 0 | 1979 | 1051.6 |
| | AGR | ATTACHED GARAGE | 3 | 0 | 1979 | 559.7 |
| | UTY | STORAGE/UTILITY | 3 | 0 | 1979 | 199.9 |
| | OWP | OPEN WOOD PORCH W/STEPS | 3 | 0 | 1979 | 49.0 |
| | OP1 | OPEN PORCH SLAB | 3 | 0 | 1979 | 240.0 |
Sketch
| No sketches available for this property. |
Property Image
Land
| 1 | 17 | AC (01.01-02.00) | 1.5100 | 65775.60 | 0.00 | 0.00 | 1.00 | $250,000 | $0 |
Roll Value History
| 2026 | N/A | N/A | N/A | N/A | N/A |
| 2025 | $272,538 | $250,000 | $0 | $522,538 | $522,538 |
| 2024 | $276,160 | $220,000 | $0 | $496,160 | $496,160 |
| 2023 | $279,782 | $220,000 | $0 | $499,782 | $499,782 |
| 2022 | $277,161 | $200,000 | $0 | $477,161 | $477,161 |
| 2021 | $119,888 | $150,000 | $0 | $269,888 | $269,888 |
| 2020 | $116,709 | $140,000 | $0 | $256,709 | $256,709 |
| 2019 | $108,760 | $170,000 | $0 | $278,760 | $278,760 |
| 2018 | $109,122 | $150,000 | $0 | $259,122 | $259,122 |
| 2017 | $109,844 | $135,000 | $0 | $244,844 | $244,844 |
| 2016 | $111,289 | $80,000 | $0 | $191,289 | $191,289 |
| 2015 | $125,826 | $50,000 | $0 | $175,826 | $175,826 |
| 2014 | $127,823 | $50,000 | $0 | $177,823 | $177,823 |
| 2013 | $129,821 | $50,000 | $0 | $179,821 | $179,821 |
| 2012 | $131,818 | $74,400 | $0 | $206,218 | $206,218 |
| 2011 | $133,815 | $93,000 | $0 | $226,815 | $226,815 |
| 2010 | $142,629 | $93,000 | $0 | $235,629 | $235,629 |
| 2009 | $166,098 | $120,000 | $0 | $286,098 | $286,098 |
| 2008 | $168,148 | $99,000 | $0 | $267,148 | $267,148 |
| 2007 | $170,199 | $86,000 | $0 | $256,199 | $256,199 |
Deed and Sales History
| 1 | 11/17/2021 | WD | Warranty Deed | GARRETT, MARY | FONTANA, BAMBIE | | | $458,000.00 | 51083 | 4534584 |
| 2 | 05/22/2019 | WD | Warranty Deed | POLLOCK, JOHN A | GARRETT, MARY | | | $210,000.00 | 38758 | 4464433 |
| 3 | 05/04/2004 | WD | Warranty Deed | STANDLEY, RAY T | POLLOCK, JOHN A | | | $199,000.00 | 41876 | 4099607 |
| 4 | 10/01/1994 | WD | Warranty Deed | HOWLAND, ROBERT R | STANDLEY, RAY T | | | $137,000.00 | 44456 | 94022923 |
| 5 | 01/01/1900 | OTHER | Other - Misc. Documents | Unknown | HOWLAND, ROBERT R | | | $0.00 | 0 | 0 |
Payout Agreement
| No payout information available.. |