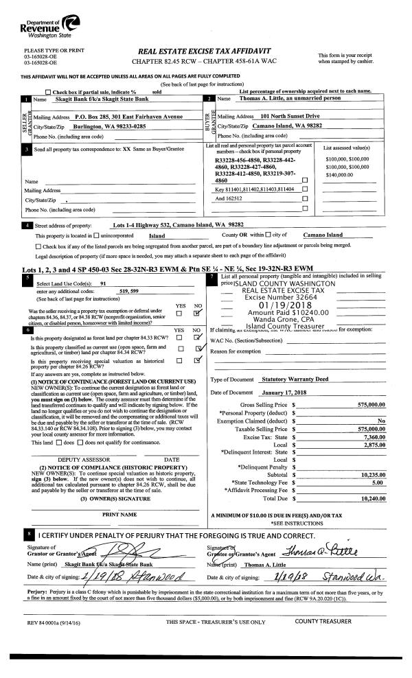
Property
Account |
| Property ID: | 148110 | Abbreviated Legal Description: | 26 - S/2 SW NE SW LY E OF CLN EZ DESC: BG SWCR OF SD SUBDIV N89*E135.07' TPB N51*E24.31' ALG CUR/L 100.78' N2*E94.86' N11*E 170.79' ALG CUR/R 95.83' N27*E222.94' TO NLN SD SUBDIV & TERM OF DESC |
| Geographic ID: | R33014-148-1770 | Agent Code: | |
| Type: | Real | | |
| Tax Area: | 542 - APPRAISER-Stan/Cam Schl Dist, Special Dist, improved, greater than 1 acre | Land Use Code | 11 |
| Open Space: | N | DFL | N |
| Historic Property: | N | Remodel Property: | N |
| Multi-Family Redevelopment: | N | | |
| Township: | 30 | Section: | 14 |
| Range: | R3 |
Location |
| Address: | 3485 SHADY LN CAMANO ISLAND, WA 98282 | Mapsco: | |
| Neighborhood: | 58SofTamarackAC | Map ID: | 869 |
| Neighborhood CD: | 58RstamAC |
Owner |
| Name: | JOHNSON, ROBERT MOSLING | Owner ID: | 283980 |
| Mailing Address: | 3485 SHADY LN CAMANO ISLAND, WA 98282 | % Ownership: | 100.0000000000% |
| | | Exemptions: | |
Taxes and Assessment Details
Values
| (+) Improvement Homesite Value: | + | $0 | |
| (+) Improvement Non-Homesite Value: | + | $338,797 | |
| (+) Land Homesite Value: | + | $0 | |
| (+) Land Non-Homesite Value: | + | $320,000 | |
| (+) Curr Use (HS): | + | $0 | $0 |
| (+) Curr Use (NHS): | + | $0 | $0 |
| | | -------------------------- | |
| (=) Market Value: | = | $658,797 | |
| (–) Productivity Loss: | – | $0 | |
| | | -------------------------- | |
| (=) Subtotal: | = | $658,797 | |
| (+) Senior Appraised Value: | + | $0 | |
| (+) Non-Senior Appraised Value: | + | $658,797 | |
| | | -------------------------- | |
| (=) Total Appraised Value: | = | $658,797 | |
| (–) Senior Exemption Loss: | – | $0 | |
| (–) Exemption Loss: | – | $0 | |
| | | -------------------------- | |
| (=) Taxable Value: | = | $658,797 | |
Taxing Jurisdiction
| Owner: | JOHNSON, ROBERT MOSLING | | |
| % Ownership: | 100.0000000000% | | |
| Total Value: | $658,797 | | |
| Tax Area: | 542 - APPRAISER-Stan/Cam Schl Dist, Special Dist, improved, greater than 1 acre |
| CF | Conservation Futures | 0.0316035091 | $658,797 | $658,797 | $20.82 | | |
| EMS1 | Fire & Rescue Dist #1 Camano GEN (EMS) | 0.3677864386 | $658,797 | $658,797 | $242.30 | | |
| FIRE1 | Fire & Rescue Dist #1 Camano GEN | 1.2502910536 | $658,797 | $658,797 | $823.69 | | |
| FIRE1BOND | Fire & Rescue Dist #1 Camano BOND | 0.1570001679 | $658,797 | $658,797 | $103.43 | | |
| CE | County Current Expense | 0.3708482477 | $658,797 | $658,797 | $244.31 | | |
| CR | County Roads | 0.4584763726 | $658,797 | $658,797 | $302.04 | | |
| LCIB | Library Sno-Isle BOND (Camano Island) | 0.0396325772 | $658,797 | $658,797 | $26.11 | | |
| LIB | Library Sno-Isle GEN | 0.3153421757 | $658,797 | $658,797 | $207.75 | | |
| SCH205_401 | School 205-401 Enrichment | 1.2698420524 | $658,797 | $658,797 | $836.57 | | |
| SCH205BOND | School 205-401 BOND | 0.9396497583 | $658,797 | $658,797 | $619.04 | | |
| ST | State School | 1.3035497053 | $658,797 | $658,797 | $858.77 | | |
| ST2 | State School Part 2 | 0.8169543533 | $658,797 | $658,797 | $538.21 | | |
| | Total Tax Rate: | 7.3209764117 | | | | | |
| | | | | Taxes w/Current Exemptions: | $4,823.04 | | |
| | | | | Taxes w/o Exemptions: | $4,823.04 | | |
Improvement / Building
| Improvement #1: | RESIDENTIAL | State Code: | Y | 1469.9 sqft | Value: | $338,797 |
| Bathrooms: | 2 | Bedrooms: | 3 | | Ceiling: | BEAM PAINTED | Exterior Wall/Cover: | WOOD SIDING | | Floor Covering: | VINYL TILE/CARP 20-80 | Floor Structure: | WOOD W/SUBFLOOR | | Foundation: | CONCRETE | Heating: | FHA GAS | | Interior Finish: | DRYWALL PAINT | Plumbing Fixture Cnt: | 6 | | Roof Slope: | 4" IN 12" | Roof Structure/Cover: | BEAM ALUMINUM HEAVY |
|
| | Type | Description | Class CD | Sub Class CD | Year Built | Area |
| | BAS | BASE/MAIN FLOOR | 3 | 0 | 1979 | 1014.0 |
| | UB8 | BASEMENT UNFINISHED 8" | 3 | 0 | 1979 | 311.9 |
| | DWN | DOWNSTAIRS LIVING AREA | 3 | 0 | 1979 | 155.9 |
| | UPS | UPPER STORY | 3 | 0 | 1979 | 300.0 |
| | BAW | BALCONY WOOD RAIL | 3 | 0 | 1979 | 80.0 |
| | OWP | OPEN WOOD PORCH W/STEPS | 3 | 0 | 1979 | 182.0 |
| | OWP | OPEN WOOD PORCH W/STEPS | 3 | 0 | 1979 | 688.0 |
| | ENP | ENCLOSED PORCH | 3 | 0 | 1979 | 256.0 |
| | OWC | OPEN WOOD PORCH W/STEPS/ROOF/C | 3 | 0 | 1979 | 444.0 |
| | ENP | ENCLOSED PORCH | 3 | 0 | 1979 | 392.0 |
| | OWP | OPEN WOOD PORCH W/STEPS | 3 | 0 | 1979 | 153.5 |
Sketch
| No sketches available for this property. |
Property Image
Land
| 1 | 32 | AC (03.01-09.99) | 3.4900 | 152024.40 | 0.00 | 0.00 | 1.00 | $320,000 | $0 |
Roll Value History
| 2026 | N/A | N/A | N/A | N/A | N/A |
| 2025 | $338,797 | $320,000 | $0 | $658,797 | $658,797 |
| 2024 | $342,152 | $280,000 | $0 | $622,152 | $622,152 |
| 2023 | $346,581 | $260,000 | $0 | $606,581 | $606,581 |
| 2022 | $317,849 | $210,000 | $0 | $527,849 | $527,849 |
| 2021 | $184,089 | $160,000 | $0 | $344,089 | $344,089 |
| 2020 | $179,958 | $150,000 | $0 | $329,958 | $329,958 |
| 2019 | $132,914 | $200,000 | $0 | $332,914 | $332,914 |
| 2018 | $133,334 | $165,000 | $0 | $298,334 | $298,334 |
| 2017 | $132,164 | $150,000 | $0 | $282,164 | $282,164 |
| 2016 | $133,901 | $130,000 | $0 | $263,901 | $263,901 |
| 2015 | $88,968 | $64,000 | $0 | $152,968 | $152,968 |
| 2014 | $90,380 | $64,000 | $0 | $154,380 | $154,380 |
| 2013 | $96,616 | $58,632 | $0 | $155,248 | $155,248 |
| 2012 | $98,028 | $58,632 | $0 | $156,660 | $156,660 |
| 2011 | $99,440 | $93,000 | $0 | $192,440 | $192,440 |
| 2010 | $99,183 | $93,000 | $0 | $192,183 | $192,183 |
| 2009 | $110,304 | $108,000 | $0 | $218,304 | $218,304 |
| 2008 | $111,837 | $110,000 | $0 | $221,837 | $221,837 |
| 2007 | $113,370 | $110,000 | $0 | $223,370 | $223,370 |
Deed and Sales History
| 1 | 12/26/2017 | WD | Warranty Deed | FOLTZ TTEE, TI | JOHNSON, ROBERT MOSLING | | | $341,000.00 | 33029 | 4439629 |
| 2 | 01/30/2018 | QCD | Quit Claim Deed | RJ TRUST | FOLTZ TTEE, TI | | | $0.00 | 33022 | 4439628 |
| 3 | 05/02/2014 | TRUSTEED | Trustee's Deed | FOLTZ. TI | RJ TRUST | | | $0.00 | 15185 | 4358937 |
| 4 | 09/11/2007 | ESTSEPPROP | Establish Separate Property | FOLTZ, T I & BOBBI L | FOLTZ. TI | | | $0.00 | 15090 | 4358651 |
| 5 | 01/01/1989 | WD | Warranty Deed | CUNNINGTON, MARY R | FOLTZ, TI | | | $62,000.00 | 90178 | 89000607 |
| 6 | 12/01/1987 | TRUSTEED | Trustee's Deed | O'CONNER, STEPHEN J | CUNNINGTON, MARY R | | | $0.00 | 73890 | 87016918 |
| 7 | 03/01/1983 | WD | Warranty Deed | CUNNINGTON, REX | O'CONNER, STEPHEN J | | | $59,000.00 | 30777 | 407633 |
| 8 | 04/01/1979 | CD | DNU - Correction Deed | CUNNINGTON, REX | CUNNINGTON, REX | | | $0.00 | 91844 | 0 |
| 9 | 04/01/1979 | CD | DNU - Correction Deed | TEADERMAN, PHILIP E | CUNNINGTON, REX | | | $0.00 | 91844 | 0 |
| 10 | 01/01/1900 | OTHER | Other - Misc. Documents | Unknown | TEADERMAN, PHILIP E | | | $0.00 | 0 | 0 |
Payout Agreement
| No payout information available.. |