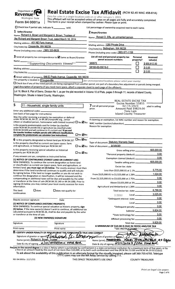
Property
Account |
| Property ID: | 148129 | Abbreviated Legal Description: | 71 - IN SECS 13 & 14: BG SWCR SEC 13 N1*W ALG WLN SEC 13 1515.63' TPB S79*W 735.46' TO ELN E CAMANO DR N33*W ALG SD DR 77.50' N75*E750' M/L TO HITDLN SELY ALG SD LN 110' M/L TP N79*E FR TPB S79*W10' M/L TPB INCL ADJ TIDES |
| Geographic ID: | R33014-151-4960 | Agent Code: | |
| Type: | Real | | |
| Tax Area: | 542 - APPRAISER-Stan/Cam Schl Dist, Special Dist, improved, greater than 1 acre | Land Use Code | 11 |
| Open Space: | N | DFL | N |
| Historic Property: | N | Remodel Property: | N |
| Multi-Family Redevelopment: | N | | |
| Township: | 30 | Section: | 14 |
| Range: | R3 |
Location |
| Address: | 3485 S EAST CAMANO DR CAMANO ISLAND, WA 98282 | Mapsco: | |
| Neighborhood: | 58RecamWF-East Cam | Map ID: | 870 |
| Neighborhood CD: | 58RecamWF |
Owner |
| Name: | FILIPPOV, RUSLAN | Owner ID: | 4783 |
| Mailing Address: | VERONICA FILIPPOV 3485 S EAST CAMANO DR CAMANO ISLAND, WA 98282 | % Ownership: | 100.0000000000% |
| | | Exemptions: | |
Taxes and Assessment Details
Values
| (+) Improvement Homesite Value: | + | $0 | |
| (+) Improvement Non-Homesite Value: | + | $1,009,240 | |
| (+) Land Homesite Value: | + | $0 | |
| (+) Land Non-Homesite Value: | + | $526,000 | |
| (+) Curr Use (HS): | + | $0 | $0 |
| (+) Curr Use (NHS): | + | $0 | $0 |
| | | -------------------------- | |
| (=) Market Value: | = | $1,535,240 | |
| (–) Productivity Loss: | – | $0 | |
| | | -------------------------- | |
| (=) Subtotal: | = | $1,535,240 | |
| (+) Senior Appraised Value: | + | $0 | |
| (+) Non-Senior Appraised Value: | + | $1,535,240 | |
| | | -------------------------- | |
| (=) Total Appraised Value: | = | $1,535,240 | |
| (–) Senior Exemption Loss: | – | $0 | |
| (–) Exemption Loss: | – | $0 | |
| | | -------------------------- | |
| (=) Taxable Value: | = | $1,535,240 | |
Taxing Jurisdiction
| Owner: | FILIPPOV, RUSLAN | | |
| % Ownership: | 100.0000000000% | | |
| Total Value: | $1,535,240 | | |
| Tax Area: | 542 - APPRAISER-Stan/Cam Schl Dist, Special Dist, improved, greater than 1 acre |
| CF | Conservation Futures | 0.0316035091 | $1,535,240 | $1,535,240 | $48.52 | | |
| EMS1 | Fire & Rescue Dist #1 Camano GEN (EMS) | 0.3677864386 | $1,535,240 | $1,535,240 | $564.64 | | |
| FIRE1 | Fire & Rescue Dist #1 Camano GEN | 1.2502910536 | $1,535,240 | $1,535,240 | $1,919.50 | | |
| FIRE1BOND | Fire & Rescue Dist #1 Camano BOND | 0.1570001679 | $1,535,240 | $1,535,240 | $241.03 | | |
| CE | County Current Expense | 0.3708482477 | $1,535,240 | $1,535,240 | $569.34 | | |
| CR | County Roads | 0.4584763726 | $1,535,240 | $1,535,240 | $703.87 | | |
| LCIB | Library Sno-Isle BOND (Camano Island) | 0.0396325772 | $1,535,240 | $1,535,240 | $60.85 | | |
| LIB | Library Sno-Isle GEN | 0.3153421757 | $1,535,240 | $1,535,240 | $484.13 | | |
| SCH205_401 | School 205-401 Enrichment | 1.2698420524 | $1,535,240 | $1,535,240 | $1,949.51 | | |
| SCH205BOND | School 205-401 BOND | 0.9396497583 | $1,535,240 | $1,535,240 | $1,442.59 | | |
| ST | State School | 1.3035497053 | $1,535,240 | $1,535,240 | $2,001.26 | | |
| ST2 | State School Part 2 | 0.8169543533 | $1,535,240 | $1,535,240 | $1,254.22 | | |
| | Total Tax Rate: | 7.3209764117 | | | | | |
| | | | | Taxes w/Current Exemptions: | $11,239.46 | | |
| | | | | Taxes w/o Exemptions: | $11,239.46 | | |
Improvement / Building
| Improvement #1: | RESIDENTIAL | State Code: | Y | 5222.8 sqft | Value: | $1,009,240 |
| Bathrooms: | 3.5 | Bedrooms: | 5 | | Ceiling: | TONGUE & GROOVE | Exterior Wall/Cover: | CEMENT FIBER | | Floor Covering: | HARDWOOD 100% | Floor Structure: | WOOD W/SUBFLOOR | | Foundation: | CONCRETE | Heating: | FHA GAS | | Interior Finish: | DRYWALL PAINT | Plumbing Fixture Cnt: | 13 | | Roof Slope: | 8" IN 12" | Roof Structure/Cover: | BEAM ALUMINUM HEAVY |
|
| | Type | Description | Class CD | Sub Class CD | Year Built | Area |
| | BAS | BASE/MAIN FLOOR | 5 | 0 | 2009 | 1599.5 |
| | DWN | DOWNSTAIRS LIVING AREA | 5 | 0 | 2009 | 1599.5 |
| | OWC | OPEN WOOD PORCH W/STEPS/ROOF/C | 5 | 0 | 2009 | 68.8 |
| | OWC | OPEN WOOD PORCH W/STEPS/ROOF/C | 5 | 0 | 2009 | 128.0 |
| | OWC | OPEN WOOD PORCH W/STEPS/ROOF/C | 5 | 0 | 2009 | 643.5 |
| | BAI | BALCONY IRON RAIL | 5 | 0 | 2009 | 20.7 |
| | UPS | UPPER STORY | 5 | 0 | 2009 | 1824.0 |
| | LOF | LOFT | 5 | 0 | 2009 | 199.8 |
| | BIG | BUILT IN GARAGE | 5 | 0 | 2009 | 1280.0 |
| | OCP | OPEN CARPORT | 5 | 0 | 2009 | 534.5 |
| | OWC | OPEN WOOD PORCH W/STEPS/ROOF/C | 5 | 0 | 2009 | 96.0 |
| | CPD | OPEN CARPORT DIRT FLOOR | 5 | 0 | 2023 | 130.0 |
| | UTY | STORAGE/UTILITY | 5 | 0 | 2023 | 160.0 |
Sketch
| No sketches available for this property. |
Property Image
Land
| 1 | HB | HIGH BLUFF | 1.6900 | 73616.40 | 110.00 | 0.00 | 1.00 | $525,000 | $0 |
| 2 | 55 | TIDES | 0.1263 | 5500.00 | 110.00 | 0.00 | 1.00 | $1,000 | $0 |
Roll Value History
| 2026 | N/A | N/A | N/A | N/A | N/A |
| 2025 | $1,009,240 | $526,000 | $0 | $1,535,240 | $1,535,240 |
| 2024 | $1,017,720 | $501,000 | $0 | $1,518,720 | $1,518,720 |
| 2023 | $1,034,768 | $501,000 | $0 | $1,535,768 | $1,535,768 |
| 2022 | $936,160 | $451,000 | $0 | $1,387,160 | $1,387,160 |
| 2021 | $738,821 | $276,000 | $0 | $1,014,821 | $1,014,821 |
| 2020 | $720,302 | $251,000 | $0 | $971,302 | $971,302 |
| 2019 | $674,218 | $301,000 | $0 | $975,218 | $975,218 |
| 2018 | $638,260 | $251,000 | $0 | $889,260 | $889,260 |
| 2017 | $475,670 | $221,000 | $0 | $696,670 | $696,670 |
| 2016 | $206,925 | $221,000 | $0 | $427,925 | $427,925 |
| 2015 | $172,341 | $201,000 | $0 | $373,341 | $373,341 |
| 2014 | $174,194 | $201,000 | $0 | $375,194 | $375,194 |
| 2013 | $176,048 | $197,123 | $0 | $373,171 | $373,171 |
| 2012 | $177,901 | $249,313 | $0 | $427,214 | $427,214 |
| 2011 | $165,789 | $311,391 | $0 | $477,180 | $477,180 |
| 2010 | $87,990 | $311,391 | $0 | $399,381 | $399,381 |
| 2009 | $0 | $103,169 | $0 | $103,169 | $103,169 |
| 2008 | $0 | $259,887 | $0 | $259,887 | $259,887 |
| 2007 | $0 | $259,247 | $0 | $259,247 | $259,247 |
Deed and Sales History
| 1 | 03/18/2008 | BLA | DNU - Boundary Line Adjustment | NOREN-BISHOP LLC, | NOREN-BISHOP LLC, | | | $0.00 | 80649 | 4161526 |
| 2 | 08/15/2006 | WD | Warranty Deed | NOREN-BISHOP LLC, | FILIPPOV, RUSLAN | | | $310,000.00 | 63569 | 4179340 |
| 3 | 07/22/2005 | WD | Warranty Deed | KROPACK, MARC A | NOREN-BISHOP LLC, | | | $167,603.00 | 53532 | 4141704 |
| 4 | 12/15/1998 | WD | Warranty Deed | CHASE, ROBERT P | KROPACK, MARC A | | | $81,152.00 | 90038 | 99000286 |
| 5 | 11/01/1997 | QCD | Quit Claim Deed | CHASE, ROBERT P | CHASE, ROBERT P | | | $0.00 | 73905 | 97018655 |
| 6 | 02/01/1996 | PRD | Personal Representatives Deed | CHASE, ROBERT P | CHASE, ROBERT P | | | $0.00 | 60581 | 96003160 |
| 7 | 01/01/1900 | OTHER | Other - Misc. Documents | Unknown | CHASE, ROBERT P | | | $0.00 | 0 | 0 |
Payout Agreement
| No payout information available.. |