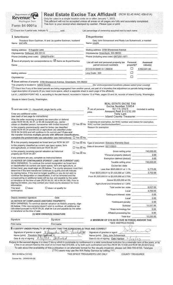
Property
Account |
| Property ID: | 148147 | Abbreviated Legal Description: | 69 - IN GL3:BG SW CR SEC 13 N1*W1410.68' S81*W688.78' N33*W155' TPB N33*W77.5' N72*E770' M/L TO HI TIDELN SE ALG TIDELN 120' M/L TP N75*E FR TPB S75*W750' M/L TPB TGW TIDES |
| Geographic ID: | R33014-159-4930 | Agent Code: | |
| Type: | Real | | |
| Tax Area: | 549 - APPRAISER-Stan/Cam Schl Dist, Special Dist, vacant & 50 acres or less | Land Use Code | 91 |
| Open Space: | N | DFL | N |
| Historic Property: | N | Remodel Property: | N |
| Multi-Family Redevelopment: | N | | |
| Township: | 30 | Section: | 14 |
| Range: | R3 |
Location |
| Address: | | Mapsco: | |
| Neighborhood: | 58RecamWF-East Cam | Map ID: | 870 |
| Neighborhood CD: | 58RecamWF |
Owner |
| Name: | FILIPPOV, RUSLAN | Owner ID: | 285039 |
| Mailing Address: | VERONICA FILIPPOV 3485 SE CAMANO DR CAMANO ISLAND, WA 98282 | % Ownership: | 100.0000000000% |
| | | Exemptions: | |
Taxes and Assessment Details
Values
| (+) Improvement Homesite Value: | + | $0 | |
| (+) Improvement Non-Homesite Value: | + | $0 | |
| (+) Land Homesite Value: | + | $0 | |
| (+) Land Non-Homesite Value: | + | $276,200 | |
| (+) Curr Use (HS): | + | $0 | $0 |
| (+) Curr Use (NHS): | + | $0 | $0 |
| | | -------------------------- | |
| (=) Market Value: | = | $276,200 | |
| (–) Productivity Loss: | – | $0 | |
| | | -------------------------- | |
| (=) Subtotal: | = | $276,200 | |
| (+) Senior Appraised Value: | + | $0 | |
| (+) Non-Senior Appraised Value: | + | $276,200 | |
| | | -------------------------- | |
| (=) Total Appraised Value: | = | $276,200 | |
| (–) Senior Exemption Loss: | – | $0 | |
| (–) Exemption Loss: | – | $0 | |
| | | -------------------------- | |
| (=) Taxable Value: | = | $276,200 | |
Taxing Jurisdiction
| Owner: | FILIPPOV, RUSLAN | | |
| % Ownership: | 100.0000000000% | | |
| Total Value: | $276,200 | | |
| Tax Area: | 549 - APPRAISER-Stan/Cam Schl Dist, Special Dist, vacant & 50 acres or less |
| CF | Conservation Futures | 0.0316035091 | $276,200 | $276,200 | $8.73 | | |
| EMS1 | Fire & Rescue Dist #1 Camano GEN (EMS) | 0.3677864386 | $276,200 | $276,200 | $101.58 | | |
| CE | County Current Expense | 0.3708482477 | $276,200 | $276,200 | $102.43 | | |
| CR | County Roads | 0.4584763726 | $276,200 | $276,200 | $126.63 | | |
| LCIB | Library Sno-Isle BOND (Camano Island) | 0.0396325772 | $276,200 | $276,200 | $10.95 | | |
| LIB | Library Sno-Isle GEN | 0.3153421757 | $276,200 | $276,200 | $87.10 | | |
| SCH205_401 | School 205-401 Enrichment | 1.2698420524 | $276,200 | $276,200 | $350.73 | | |
| SCH205BOND | School 205-401 BOND | 0.9396497583 | $276,200 | $276,200 | $259.53 | | |
| ST | State School | 1.3035497053 | $276,200 | $276,200 | $360.04 | | |
| ST2 | State School Part 2 | 0.8169543533 | $276,200 | $276,200 | $225.64 | | |
| | Total Tax Rate: | 5.9136851902 | | | | | |
| | | | | Taxes w/Current Exemptions: | $1,633.36 | | |
| | | | | Taxes w/o Exemptions: | $1,633.36 | | |
Improvement / Building
Sketch
| No sketches available for this property. |
Property Image
Land
| 1 | HB | HIGH BLUFF | 1.6900 | 73616.40 | 120.00 | 0.00 | 1.00 | $275,000 | $0 |
| 2 | 55 | TIDES | 0.0000 | 0.00 | 120.00 | 0.00 | 1.00 | $1,200 | $0 |
Roll Value History
| 2026 | N/A | N/A | N/A | N/A | N/A |
| 2025 | $0 | $276,200 | $0 | $276,200 | $276,200 |
| 2024 | $0 | $251,200 | $0 | $251,200 | $251,200 |
| 2023 | $0 | $251,200 | $0 | $251,200 | $251,200 |
| 2022 | $0 | $226,200 | $0 | $226,200 | $226,200 |
| 2021 | $0 | $176,200 | $0 | $176,200 | $176,200 |
| 2020 | $0 | $151,200 | $0 | $151,200 | $151,200 |
| 2019 | $0 | $151,200 | $0 | $151,200 | $151,200 |
| 2018 | $0 | $151,200 | $0 | $151,200 | $151,200 |
| 2017 | $0 | $151,200 | $0 | $151,200 | $151,200 |
| 2016 | $0 | $151,200 | $0 | $151,200 | $151,200 |
| 2015 | $612 | $141,200 | $0 | $141,812 | $141,812 |
| 2014 | $612 | $141,200 | $0 | $141,812 | $141,812 |
| 2013 | $612 | $140,232 | $0 | $140,844 | $140,844 |
| 2012 | $612 | $140,232 | $0 | $140,844 | $140,844 |
| 2011 | $612 | $174,990 | $0 | $175,602 | $175,602 |
| 2010 | $612 | $248,271 | $0 | $248,883 | $248,883 |
| 2009 | $648 | $266,974 | $0 | $267,622 | $267,622 |
| 2008 | $696 | $260,087 | $0 | $260,783 | $260,783 |
| 2007 | $732 | $259,247 | $0 | $259,979 | $259,979 |
Deed and Sales History
| 1 | 05/14/2018 | WD | Warranty Deed | MYERS JR, ARTHUR R | FILIPPOV, RUSLAN | | | $175,000.00 | 34103 | 4444428 |
| 2 | 06/20/2006 | WD | Warranty Deed | NOREN-BISHOP LLC, | MYERS JR, ARTHUR R | | | $270,000.00 | 62870 | 4174926 |
| 3 | 07/22/2005 | WD | Warranty Deed | KROPACK, MARC AND JENNIFER | NOREN-BISHOP LLC, | | | $249,853.00 | 53532 | 4141704 |
| 4 | 10/07/1999 | WD | Warranty Deed | COOPER, BARBARA A | KROPACK, MARC AND JENNIFER | | | $76,000.00 | 94254 | 99023390 |
| 5 | 12/01/1978 | OTHER | Other - Misc. Documents | Unknown | COOPER, BARBARA A | | | $23,500.00 | 90750 | 347760 |
Payout Agreement
| No payout information available.. |